-
Köpa
Köpa -
Sälja
Sälja - Hitta bostad
- Skapa bevakning
- Hitta mäklare
Första parkett mot havet, Karlsöarna och fantastiska solnedgångar
Eksta, Gotland
*Säljaren
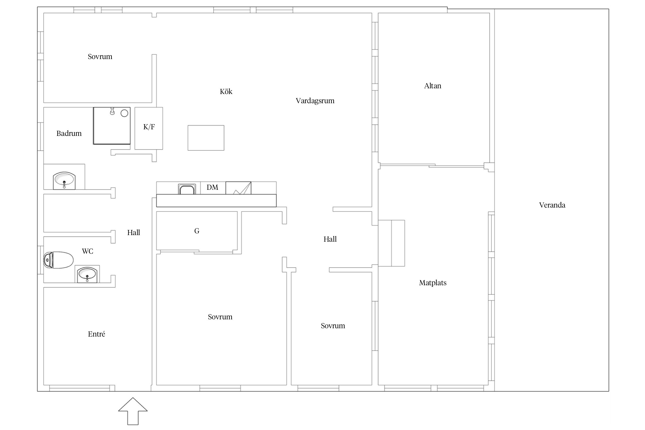
Grå byggnad ca 75kvm
Röd byggnad ca 45 kvm
Nu har du chansen att förvärva en alldeles unik vackert belägen fastighet med en hänförande utsikt över havet och Karlsöarna och där solnedgångarna är magiska. Här erbjuds stora möjligheter för släkt och vänner att umgås i två stycken bostadsbyggnader som är uppförda på fastigheten där även garage och friggebod finns. Den grå byggnaden är fullt utrustad medan den röda byggnadens toalett, dusch och ett sovrum ligger i ett separat utbygge på ca 25 kvm i nära anslutning. Byggnaderna har av nuvarande ägare kontinuerligt underhållits och renoverats och är därmed i gott skick. Vill man inte nyttja båda husen själv så är hyresintäkterna på en plats som denna mycket goda framförallt sommartid. Detta är platsen som talar för sig själv och väldigt sällan finns tillgänglig på marknaden.
Tveka inte att kontakta oss för mer information eller för att boka tid för visning.



Stuga 2
Stuga 3
Stuga 1
Eksta Hajstäde 1:17
*Säljaren
Grå byggnad ca 75kvm
Röd byggnad ca 45 kvm
2008: Röd separat utbygge med badrum.
2015-2016: Kök och röd stuga helrenoverade. Fönster, fasad, tak invändigt och all el bytt.
2018: Garage nybyggt.
2019: Nya luftvärmepumpar insatta.
2018-2019: Grå storstuga, nytt kök, badrum, panel, tak invändigt, all el bytt och fönster.
Friggebod helrenoverat tak, panel, fönster och all el bytt.
2022: Virkesförråd
På fastigheten finns det två stugor, en friggebod, ett garage och ett virkesförråd.
Uteplats i västerläge och österläge. Här har du sol större delen av dagen.
Kommunalt vatten och avlopp
Det finns ett rymligt garage och parkering på uppfarten
Ändring Av Detaljplan (2007-05-09) Naturvårdsområde (1993-04-26) Byggnadsplan (1965-12-10)
Förbrukning och kostnad är uppgifter från GEAB
Eldstäder är ej registrerade hos brandförebyggarna så en besiktning rekommenderas innan dom tas i bruk.
Det finns 4 st pantbrev uttagna om sammanlagt 200 000 kr
Bjurfors är självklart verksamma på en av Sveriges soligaste platser – Gotland. Med vår stora lokalkännedom och med koll på landets flyttströmmar till och från Gotland hittar vi rätt köpare och rätt bostad. Välkommen till Bjurfors Gotland för en lyckad bostadsaffär!
Vill du köpa, sälja eller värdera bostad på Gotland? Kontakta våra mäklare på Gotland! Passa också på att anmäla dig till vår kostnadsfria söktjänst Boagenten som hjälper dig att hitta ditt drömboende.
Kontakta mäklaren om du behöver hjälp att ta fram en boendekalkyl.
När du köper din bostad genom Bjurfors kan du ansöka om bolån till en förmånlig ränta hos vår samarbetspartner SEB.
Ansvarig mäklare
Extra kontaktperson