-
Köpa
Köpa -
Sälja
Sälja - Hitta bostad
- Skapa bevakning
- Hitta mäklare
Högst upp med charmen, funktionen och cityläget.
Öster city, Jönköping
*I månadsavgiften ingår värme, vatten, kabel-tv och bostadsrättstillägg.
**Areauppgifter enligt bostadsrättsföreningen
Bokad visning. Anmäl dig på Bjurfors.se. Anmälan krävs.
Mitt i staden med fokus på Charm och gångavstånd till Högskolan.
Välkommen till Odengatan 21 C – platsen där charm, funktionalitet och oslagbart cityläge sammanfogas till en harmonisk enhet.
Denna enrummare på tredje våningen (högst upp) erbjuder generösa ytor, rymligt kök och stora fönsterpartier mot två håll som skapar en känsla av både ljus och rymd. Här lever du i ett hem vars äldre huscharm vackert bevarats, synliga exempel i detaljer som generös takhöjd, vackert enstavsgolv och stenskivor i fönsternischer. Detta är ett välskött och fräscht boende där du kan njuta av en trevlig och lugn atmosfär, med bara några kvarter från stadens puls.
På gång- eller cykelavstånd finner du precis allt du behöver, och de populära stråken runt sjöarna är alltid inom bekväma räckhåll. Det här är det perfekta hemmet för studenter som vill ha närhet till högskolan eller för den som älskar kombinationen av cityliv, charm och bekvämlighet.
Kontakta ansvarig mäklare för en visning och känn in platsen själv!
Lätt att tycka om, lätt att få plats. Takhöjden i kombination med utformningen gör att den känns rymlig precis överallt.
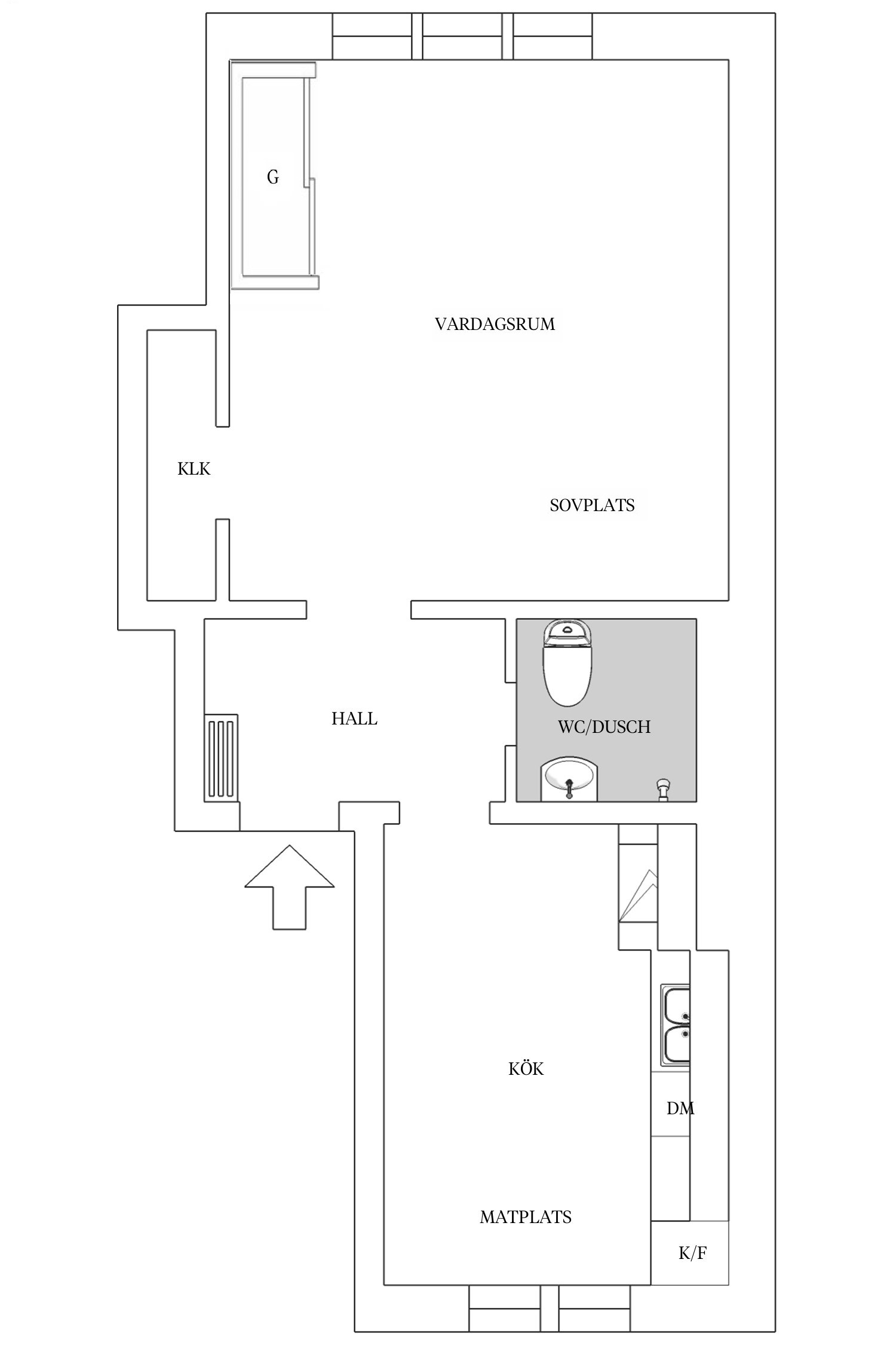
Väl inne möter man en klassisk hall som leder till de övriga rummen, ljusa väggar och parkett på golvet.
Köket är utmärkt i sin storlek, sitt skick och och sitt utseende. Här är det inget man behöver fixa till utan det är bara att njuta av bänkytor, maskiner, stuvutrymme och plats för matbordet invid fönster mot innergården. Praktiskt med en diskmaskin, kyl/frys, häll och varmluftsugn. Modernt kök i vitt från 2011-2012.
Badrummet är fräscht, helkaklat och renoverades 2011-2012. Lagom i sin storlek och där även en toppmatad tvättmaskin skulle få plats om man nu inte vill använda föreningens fullutrustade tvättstuga.
Vardagsrummet/sovrummet, lägenhetens sociala rum är lätt att möblera, kvadratiskt i sin utformning och enstavsgolvet breder ut sig över hela golvytan. Klädkammaren via vardagsrummet för dold gömma, har fasta hyllplan och är en snygg detalj i vardagsrummet. Dessutom ingår den stora skjutdörrsgarderoben som slukar det mesta i klädväg.
Sammantaget en citypärla med kvadraten på rätt ställe. Takhöjden och de vackra trägolven är definitivt ett signum.



Planlösning
*Areauppgifter enligt bostadsrättsföreningen
I månadsavgiften ingår värme, vatten, kabel-tv och bostadsrättstillägg.
*Omfattande renovering 2011-12
Till lägenheten medföljer två förråd, ett vindsförråd och ett källarförråd.
Det finns gemensamma balkonger att njuta av.
Föreningen förfogar över 12 stycken parkeringsplatser. Kostnad: 700 kr/månad. Separat kösystem!
(Laddplatser finns, separat kö).
Fastigheten är ansluten till Wetternet via fiber. Bredband tecknas separat.
Bostadsrättens indirekta nettoskuldsättning baseras på föreningens skulder/lån minus föreningens räntebärande tillgångar och likvida medel. Beräkningen är gjord och baseras enbart på den senaste tillgängliga årsredovisningen. För mer information kontakta ansvarig fastighetsmäklare.
El och försäkring tillkommer. Driftkostnader kan variera beroende på individuell förbrukning, avtal med leverantörer samt framtida prisförändringar.
Föreningens fastighet Dvärgen 15 bebyggdes år 1942 och större byggnation skedde kring åren 1988, 2011-12, och föreningen bildades år 2017-18. Brf Odengatan 21 Jönköping består av ett bostadshus med adresser Odengatan 21 A, B och C, och antalet lägenheter är totalt 18 stycken fördelat på 1-3 rok.
Fastigheten är strategiskt belägen mellan sjöar och park, och med hela stadens utbud runt hörnet.
Fastigheten är försäkrad med en fullvärdesförsäkring, där bland annat bostadsrättstillägget ingår för föreningens lägenheter.
Den ekonomiska förvaltningen sköts av Jönköpingsbostäder.
Utförda renoveringar
2023 - Renovering trapphus
2023 - Installation laddstolpar
2022 - Dränering
2022 - Renovering tak
2021 - Nya kärlskåp
2012 - Stambyte
2012 - Ny el
Övriga utrymmen i föreningen
Som medlem i föreningen har man tillgång till en gemensam tvättstuga som finns på källarplan (Uppgång A), samt cykelrum och lägenhetsförråd m.m. Parkeringsplatser finns på gårdsplan.
Bor man på Öster har man nära till allt. Bageri, mataffärer och mysiga restauranger. För den kulturintresserade finns Stadsbiblioteket och Länsmuseet runt hörnet och Spira på bekvämt promenadavstånd. I närområdet finns gågator med kulturmärkta kvarter, några av stans populäraste gym och shopping i mängder. För många som bosätter på Jönköping Öster vill ha nära till stadspuls och shopping.
Köpa, sälja eller värdera bostad i Öster city? Kontakta Bjurfors mäklare i Jönköping! Passa också på att anmäla dig till vår kostnadsfria söktjänst Boagenten som hjälper dig att hitta ditt drömboende.
Kontakta mäklaren om du behöver hjälp att ta fram en boendekalkyl.
När du köper din bostad genom Bjurfors kan du ansöka om bolån till en förmånlig ränta hos våra banksamarbetspartners Söderberg & Partners och SEB.
Bokad visning. Anmäl dig på Bjurfors.se. Anmälan krävs.
Ansvarig mäklare