-
Köpa
Köpa -
Sälja
Sälja - Hitta bostad
- Skapa bevakning
- Hitta mäklare
Stilfull 4:a i Gamla Enskede
Enskede - Gamla Enskede, Stockholm
*inkl värme & vatten. En obligatorisk kostnad för bredband tillkommer med 299 kr
På Förhand ligger bostäder som av olika anledningar inte är ute till försäljning just nu men som kan komma att säljas om förutsättningarna är rätt.
Underbar Enskedevåning som har renoverats med omsorg och behållit charmiga detaljer från 1920-talet. Lägenheten kännetecknas av högkvalitativa material och bevarade originaldetaljer såsom spegeldörrar och spröjsade fönster. Boendet erbjuder ett välplanerat kök, byggt på plats, som smidigt övergår till vardagsrummet, samt tre sovrum med utsikt över en lugn innergård. Ett elegant badrum och separat toalettrum kompletterar lägenheten. Lägenheten ligger i centrala Gamla Enskede, endast en minuts promenad från Sandsborgs centrum och tunnelbanan, som snabbt förbinder dig med Södermalm. Garageplats kan hyras och lägenheten har ett stort förråd.
Lägenheten, som totalrenoverades 2012, har vit laserade trägolv som löper genom hela bostaden och nyligen installerade treglasfönster med extra isolering, stilfullt utformade för att matcha 1920-talsstilen.
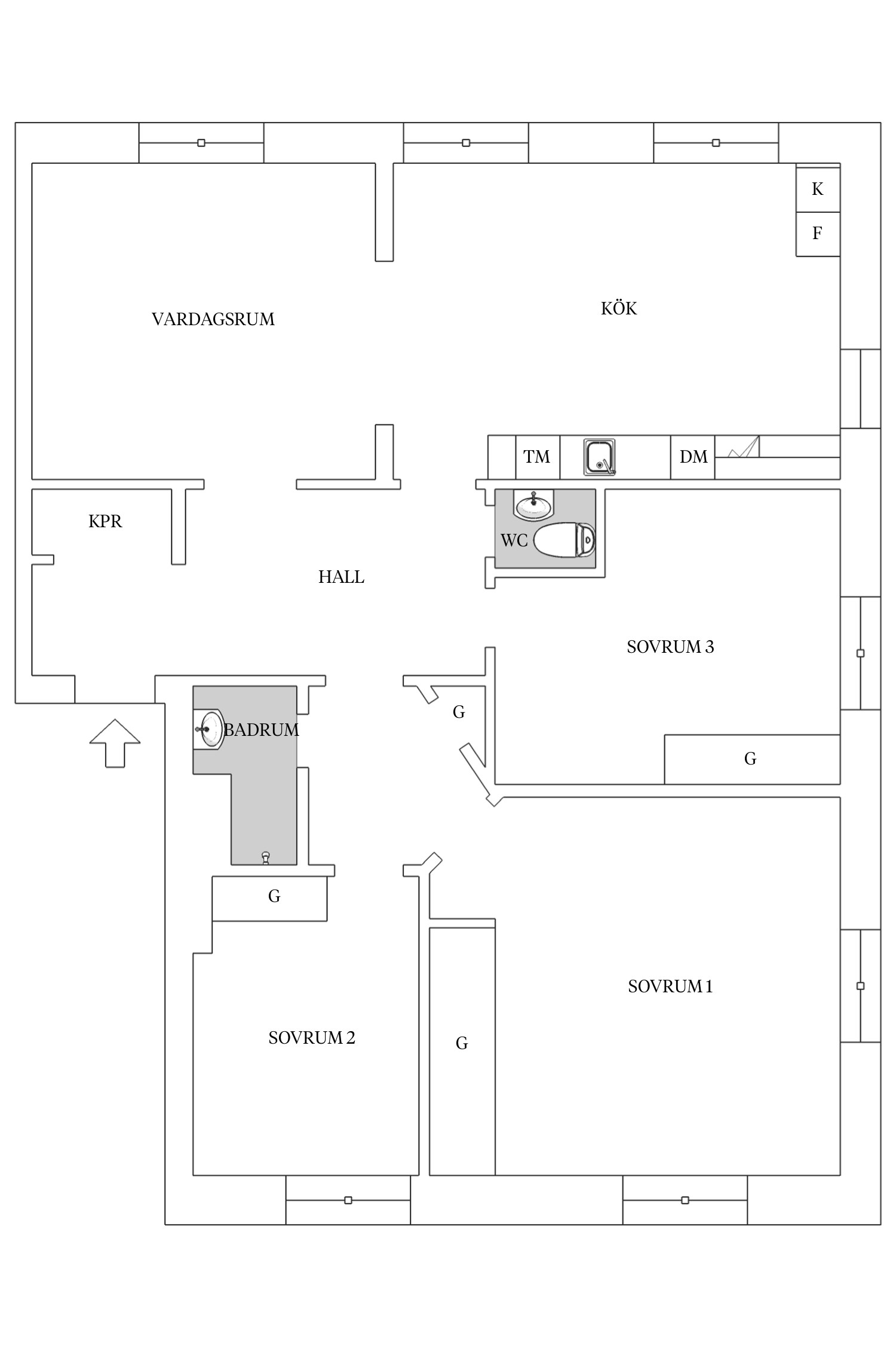
Hall: I hallen möts man av en ljus och välkomnande atmosfär, med en inre del som leder till både kök och vardagsrum, samt till sovrummen som ligger avskilt mot gården.
Kök: Det rymliga köket är specialdesignat av en möbelsnickare och utrustat med moderna vitvaror från välkända märken. Köket erbjuder rikligt med förvaringsutrymme och en stilfull marmorbänk. Här finns även en tvättmaskin installerad.
Vardagsrum: Vardagsrummet är rymligt och flödar naturligt samman med köket, vilket skapar en idealisk yta för såväl avkoppling som underhållning.
Sovrum 1: Detta är ett rymligt och ljusfyllt hörnrum, perfekt för en dubbelsäng och en mysig läshörna eller arbetsplats. Stort förvaringsutrymme erbjuds genom en hel vägg med garderober.
Sovrum 2 & 3: Dessa rum är också rymliga till ytan och här får man plats med allt man behöver. Båda rummen har en lugn och avskild placering och erbjuder gott om förvaringsutrymme i inbyggda garderober.
Badrum: Badrummet är renoverat 2012 och är smakfullt inrett med kaklade väggar, mörkt klinkergolv med golvvärme, takdusch och andra moderna bekvämligheter. Det finns även ett separat WC-RUM, tillgängligt från hallen, med toalett och handfat, och inrett med mörkt klinkergolv och spotlights.
Hall
I hallen möts man av en ljus och välkomnande atmosfär, med en inre del som leder till både kök och vardagsrum, samt till sovrummen som ligger avskilt mot gården.
Kök
Det rymliga köket är specialdesignat av en möbelsnickare och utrustat med moderna vitvaror från välkända märken. Köket erbjuder rikligt med förvaringsutrymme och en stilfull marmorbänk. Här finns även en tvättmaskin installerad.
Vardagsrum
Vardagsrummet är rymligt och flödar naturligt samman med köket, vilket skapar en idealisk yta för såväl avkoppling som underhållning.
Sovrum 1
Detta är ett rymligt och ljusfyllt hörnrum, perfekt för en dubbelsäng och en mysig läshörna eller arbetsplats. Stort förvaringsutrymme erbjuds genom en hel vägg med garderober.
Sovrum 2 & 3
Dessa rum är också rymliga till ytan och här får man plats med allt man behöver. Båda rummen har en lugn och avskild placering och erbjuder gott om förvaringsutrymme i inbyggda garderober.
Badrum
Badrummet är renoverat 2012 och är smakfullt inrett med kaklade väggar, mörkt klinkergolv med golvvärme, takdusch och andra moderna bekvämligheter. Det finns även ett separat WC-RUM, tillgängligt från hallen, med toalett och handfat, och inrett med mörkt klinkergolv och spotlights.



*Våningsplan 0,5 av 2,5.
inkl värme & vatten. En obligatorisk kostnad för bredband tillkommer med 299 kr
Föreningen har 3 garage och 3 p-platser. Ingen kö. Hyra av garage kostar 500 kr/mån.
Fiber
Bostadsrättens indirekta nettoskuldsättning baseras på föreningens skulder/lån minus föreningens räntebärande tillgångar och likvida medel. Beräkningen är gjord via Bopedia. För mer information kontakta ansvarig fastighetsmäklare.
Övrigt = Nätkostnad
*Betalas av köpare
Brf Vattenkonsten 4 är en äkta bostadsrättsförening som bildades 2012 och är belägen på Nynäsvägen 331 i Enskede. Föreningens fastighet förvärvades genom ombildning 2012 och består av ett flerbostadshus om 2½ våningar med 5 lägenheter. Fastighetens byggnad är uppförd 1927 och totalrenoverad 2012. Föreningen innehar fastigheten med tomträtt, nuvarande avgäldsperiod löper t o m 30/9 2026.
OMRÅDE Här bor man med småstadskänsla mitt i Enskedes villabebyggelse och charmiga parkmiljö. Mysiga promenadstråk med Gamla Enskede bageri runt knuten, populära Matboden med uteservering, nya restaurangen Matateljén med omtalat kök samt cykelavstånd till populära Enskedeparkens bageri. Det tar bara några få minuter att gå till Sandsborgs centrum med stor Icabutik, simhall, bibliotek, apotek, frisör etc och i området finns även pizzeria, solarium, kiosk och videoaffär. För de sportiga finns Enskede IP med fotbollsplaner och friidrott, Enskede Ridskola och Enskede Rackethall. I Margaretaparken spelar Parkteatern om somrarna och Enskedespelet engagerar många Enskedebor som medverkande och publik. Det är heller inte långt till världsarvet Skogskyrkogården och till härliga Nackareservatet med badsjöar, skid- och löparspår och golfbana.
SKOLOR Enskede skola (F-9) och Enskede Byskola (F-6) ligger på ett par minuters gångavstånd och det finns flera omtyckta förskolor i området.
KOMMUNIKATIONER Kommunikationerna är goda med gröna linjens tunnelbana ett par minuter från huset samt ett flertal busslinjer. T-banan tar dig till city på 10 minuter och med bil tar det ungefär samma tid till Stockholms centralstation. Här tar du dig även lätt ut till väg 73 och 222 samt E4 norr och söder.
Huset helrenoverades 2012. Följande renoveringar är gjorda:
- Stambyte v/a
- Elstambyte
- Nya badrum
- Nya kök
- 3-glasfönster med extra isolerglasruta
- Ny tvättstuga
- Nya källarförråd
- Målning av fasad, trapphus och källare samt alla golv
Parkeringsplats till lägenheten finns.
Fiber
Tvättstuga finns i källaren.
Uppgifterna i denna objektsbeskrivning är grundade på av säljaren och av berörd förening lämnad information. Köpare/spekulanter uppmanas att kontrollera dessa uppgifter med föreningen rörande lediga p-platser, kommande renoveringar och eventuella avgiftsförändringar. Köpare/spekulanter är medvetna om att bostaden köpes i befintligt skick och uppmanas att undersöka bostaden noggrant. Köparen uppmanas kontrollera bostadens bo- och biarea om denna är väsentlig för köparen. Nedtagning av väggar och/eller väsentliga förändringar, ingrepp i bärande konstruktioner och ändring av ledningar för avlopp, värme, gas eller vatten av en lägenhet är alltid en fråga för föreningens styrelse att ta ställning till i varje enskilt fall. Detta gäller även om förändringen inte medför risker för byggnadens konstruktion. Köpare uppmanas även att kontrollera eventuella byggplaner o.s.v. i området om detta är av betydelse för köparen. Besök Stockholms stads hemsida www.stockholm.se
I Gamla Enskedes anrika villakvarter finns välrenommerade skolor, utmärkta kommunikationer och ett trevligt serviceutbud av bageri & café samt restauranger och butiker. Här bor ni med ett utmärkt läge nära Enskede Skola, Triangelkyrkan samt nära mysiga Delselius Bageri, Gamla Enskede Matbod och Matateljen. Det finns även secondhandaffärer, antikaffärer och inredningsbutiker i området.
NÄRSERVICE
Det populära Globen-området med shopping, konserter och sportevenemang ligger inom några minuters gångavstånd. Storstadens alla begivenheter finns inom bekvämt avstånd. Varför inte ta en härlig promenad genom området och över Skanstullsbron till Södermalm eller en mysig cykeltur?
Ni hittar en Icabutik vid Sandsborg och en Coop vid Sockenplan, för den som vill storhandla finns en stor Ica Bea kvantum på Enskedevägen eller Ica Supermarket i Globen.
KOMMUNIKATION
Nära till tunnelbana som tar dig till pulsen på Södermalm är ca sex minuter och till T-centralen ca 15 minuter.
PARKERING
I området råder boendeparkering till en kostnad om 500 kr/mån. För mer info gå in på www.stockholmstad.se
Köpa, sälja eller värdera bostad i Gamla Enskede? Kontakta våra mäklare i Enskede! Passa också på att anmäla dig till vår kostnadsfria söktjänst Boagenten som hjälper dig att hitta ditt drömboende.
Kontakta mäklaren om du behöver hjälp att ta fram en boendekalkyl.
När du köper din bostad genom Bjurfors kan du ansöka om bolån till en förmånlig ränta hos vår samarbetspartner SEB.
Extra kontaktperson