-
Köpa
Köpa -
Sälja
Sälja - Hitta bostad
- Skapa bevakning
- Hitta mäklare
Jättefin tvåa med renoverat kök & badrum samt härlig balkong i söderläge!
Hammarbyhöjden, Stockholm
*inkl. värme och VA. En kostnad om 299 kr/mån tillkommer för bredband.
Anmäl dig till visningen under annonsen för uppdateringar!
På Förhand ligger bostäder som av olika anledningar inte är ute till försäljning just nu men som kan komma att säljas om förutsättningarna är rätt.
Välkommen till denna rymliga och smakfullt renoverade tvåa i populära Hammarbyhöjden – optimal för dig som söker ett hem i toppskick med det lilla extra.
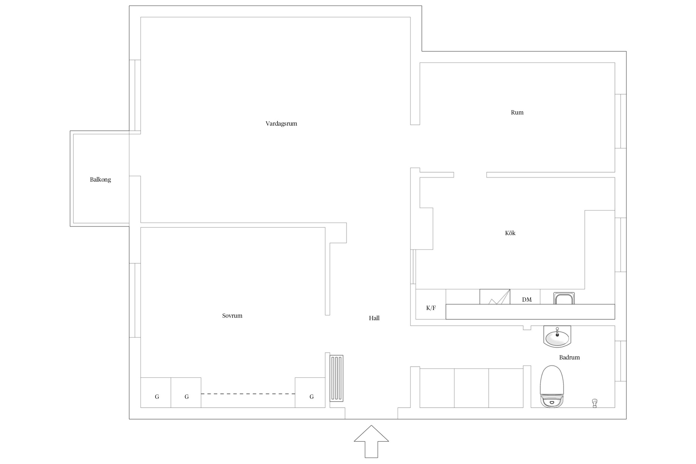
Här möts du av ett modernt kök med stilrena materialval och gott om arbetsytor, perfekt för både vardagsmatlagning och middagar med vänner. Köket är stort och har två fönsterpartier vilket möjliggör att dela av för att få ytterligare ett rum. Vardagsrummet är ljust och inbjudande med generösa ytor för soffgrupp och övrig inredning. Från vardagsrummet når du bostadens härliga balkong , en självklar plats för kvällens avkoppling. Det rogivande sovrummet erbjuder plats för en större säng och har platsbyggd förvaring. Badrummet är fräscht och helkaklat med moderna lösningar.
Lägenheten kombinerar charm och funktion på bästa sätt, och med sitt fina skick är det bara att flytta in och börja trivas. Läget i Hammarbyhöjden ger närhet till både natur, service och smidiga kommunikationer – samtidigt som city bara ligger några minuter bort.
Vardagsrum
Trivsamt vardagsrum med utgång till bostadens balkong. Rummet kan möbleras med bl.a. soffa, soffbord, TV-möbel och bokhylla. Balkongen ligger i ett högt och fritt läge och med väldigt trevlig utsikt, här kan man njuta av solen hela dagen.
Kök
Snyggt renoverat kök med gott om förvaring och arbetsytor. Den maskinella utrustningen består av induktionsspis, varmluftsugn, fläkt, integrerad diskmaskin samt integrerad kyl/frys. Här finns plats för ett större matbord. Rummet går att dela av och således få ett extra rum.
Sovrum
Rymligt sovrum som har plats för dubbelsäng. Praktisk, platsbyggd förvaring finns.
Badrum
Stambytt och stilfullt renoverat badrum med helkaklade väggar och 6-kantigt klinkergolv med golvvärme. Badrummet är inrett med WC, handfat med kommod, badrumsskåp samt dusch med duschvägg. Fint litet fönster som ger naturligt ljusinsläpp.
Hall
Välkomnande hall med hatthylla för avhängning av ytterkläder och plats för hallmöbel. Här finns även en inbyggd garderob inredd med Elfa-system.



Planlösning
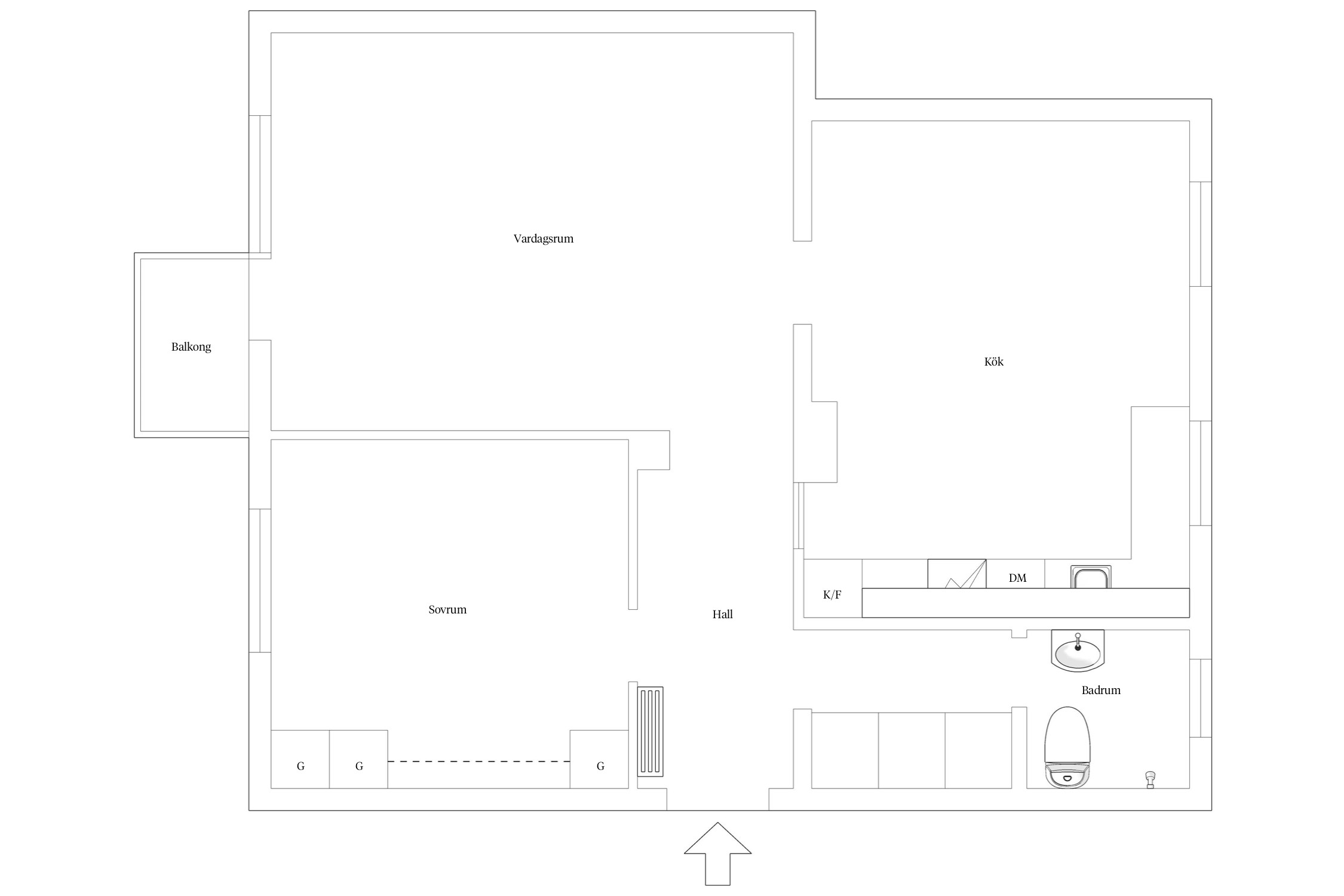
Alternativ planlösning
Adjunkten 5
inkl. värme och VA. En kostnad om 299 kr/mån tillkommer för bredband.
Parkering/boendeparkering på gatorna i området.
Bostadsrättens indirekta nettoskuldsättning baseras på föreningens skulder/lån minus föreningens räntebärande tillgångar och likvida medel. Beräkningen är gjord via Bopedia. För mer information kontakta ansvarig fastighetsmäklare.
*Betalas av köpare
Brf Adjunkten 5 är en äkta förening som omfattar 14 lägenheter belägna på Lidköpingsvägen 17 och 19. Föreningen förvärvade fastigheten 2002. Marken upplåts med tomträtt och nuvarande avgäld löper ut 2033.
Det finns inga avgiftsändringar inplanerade i nuläget. Information från styrelsen den 12 sep 2025.
Urval av renoveringar
2021 Dränering
2018 Installation av bergvärme
2017 Installation av FTX-ventilation
2016 Fiber
1993 Stambyte
Föreningen har ett gruppavtal med Bahnhof till en kostnad om 299 kr/mån per hushåll.
I huset finns gemensam tvättstuga och cykelförråd.
Till bostaden hör ett källarförråd.
Hammarbyhöjden, även kallad den vita staden, är en mycket omtyckt stadsdel i södra Stockholm med en känsla av småstadsidyll. En stor del av områdets popularitet beror på närheten till skog och natur men där man samtidigt har närheten till stan.
Området gränsar till vackra och oerhört omtyckta Nackareservatet med härliga strövområden, badsjöar, golfbana, elljusspår, skidspår m.m. I Nackareservatet finns underbara Hellasgården med fina motionsslingor, utegym, bastu och vinterbad.
I Hammarbyhöjden finner du Hammarbybacken där du har en unik möjlighet att åka skidor här med Stockholms skyline som bakgrund vintertid. På sommaren förvandlas Hammarbybacken till ett fartfyllt aktivitetsområde för både stora och små med en Klätterpark, Mountain Coaster och Klättertorn och mycket annat, för mer information se: www.skistar.com/sv/hammarbybacken
Mellan Hammarbyhöjden, Björkhagen och Kärrtorp ligger även härliga Nytorps Gärde, vilket leder ut till reservatet. Här finns utomhusbad, motionsslingor och utegym.
I Hammarbyhöjden har du nära till det mesta. Med ett kort avstånd från bostaden ligger Finn Malmgrens Plan. Där finns all tänkbar service såsom Konsum, apotek, 7-eleven, kemtvätt, gym, bankomat, restauranger med mera. På kort avstånd finns även Hammarby Sjöstad med stort utbud av trevliga restauranger, caféer och butiker samt Sickla Köpkvarter med allt du behöver. Globen City med dess rika utbud på affärer, idrotts- samt konsertarrangemang finns också inom kort gångavstånd.
Med T-banan tar du dig in till söder på cirka 5 minuter och till T-Centralen på 12 minuter. Skärmarbrinks station finns även på kort gångavstånd därifrån två gröna T-banelinjer avgår.
Flera skolor finns i området; Hammarbyskolan Södra, Hammarbyskolan Norra, Björkhagens skola, Kulturskolan Raketen och Trollsländans Särskola.
Flertalet förskolor finns också inom området, läs mer: http://www.stockholm.se/ForskolaSkola/.
Köpa, sälja eller värdera bostad i Hammarbyhöjden? Kontakta våra mäklare i Hammarby och Skarpnäck! Passa också på att anmäla dig till vår kostnadsfria söktjänst Boagenten som hjälper dig att hitta ditt drömboende.
Kontakta mäklaren om du behöver hjälp att ta fram en boendekalkyl.
När du köper din bostad genom Bjurfors kan du ansöka om bolån till en förmånlig ränta hos vår samarbetspartner SEB.
Anmäl dig till visningen under annonsen för uppdateringar!
Ansvarig mäklare