-
Köpa
Köpa -
Sälja
Sälja - Hitta bostad
- Skapa bevakning
- Hitta mäklare
Genomgående 20-tals lägenhet med balkong i härligt söderläge -Möjlig 2:a
Södermalm Maria, Stockholm
*I månadsavgiften ingår kabel-TV, värme och vatten. Obligatoriskt tillägg om 85 kr/mån för bredband tillkommer. Individuell förbrukning av el debiteras lägenheten i efterhand.
**
42 kvm och 1 rok enligt lägenhetsförteckningen.
På Förhand ligger bostäder som av olika anledningar inte är ute till försäljning just nu men som kan komma att säljas om förutsättningarna är rätt.
Välkommen till denna charmiga 20-talslägenhet på Södermalm, belägen i ett av Stockholms mest eftertraktade områden, bara ett stenkast från Mariatorget.
Den smarta planlösningen gör bostaden både rymlig och funktionell, idealisk för såväl singelhushåll som par. Stora spröjsade fönster i två väderstreck släpper in ett vackert ljusflöde och skapar en härlig rymd, medan den generösa takhöjden förstärker den luftiga känslan. De vackra brädgolven och bevarade originaldetaljerna, såsom serveringsskåp och djupa fönsternischer, ger hemmet en tidlös charm och karaktär.
Bostaden har en genomtänkt disposition med plats för alla möbler och ett separat kök med matplats. Här finns även en rymlig klädkammare samt goda förvaringsmöjligheter i både allrum och hall. Lägenheten har ett mycket lugnt och tyst läge med fin utsikt över innergården.. Vidare erbjuds ett fräscht, kaklat badrum, en välplanerad sovalkov med plats för en 160 cm bred säng och ett välutrustat kök i fint skick, där den genuina charmen och känslan från byggåret bevarats.
Den vackra innergården är en skyddad oas som skapar en lugn och avkopplande miljö för gemenskap och vila under sommarmånaderna. Här finns flera sittgrupper och en grillplats, perfekt för trevliga kvällar med vänner och familj.
Brf Postiljonen är en välskött och populär förening med stark ekonomi och en solid kassa på flera miljoner. Föreningen äger marken, har en låg belåning på endast 2022 kr/kvm och inga planerade avgiftsförändringar.
Här bor du på en mycket lugn gata med omedelbar tillgång till Södermalms rika utbud av shopping, restauranger och nöjen, samtidigt som närheten till grönområden och badplatser erbjuder en perfekt balans mellan stadsliv och natur. Mariatorget och Zinkensdamm ligger bara en kort promenad bort och rymmer många av stadsdelens mest uppskattade matställen och caféer. Här finns mycket goda kommunikationer med tunnelbanestationerna Mariatorget och Zinkensdamm samt flera busslinjer i närheten. För dig som enkelt vill ta dig till Arlanda ligger Södra Stations pendeltåg bara 500 meter bort.
Sommartid bjuder Tanto på grönskande omgivningar och en inbjudande strand, perfekt för avkoppling och sociala aktiviteter. Här finns även vackra promenadstråk längs vattnet för den som vill njuta av en naturskön omgivning. Kombinationen av charmiga kvarter, levande kultur och goda transportmöjligheter gör detta till en plats som förenar bekvämlighet med trivsel.
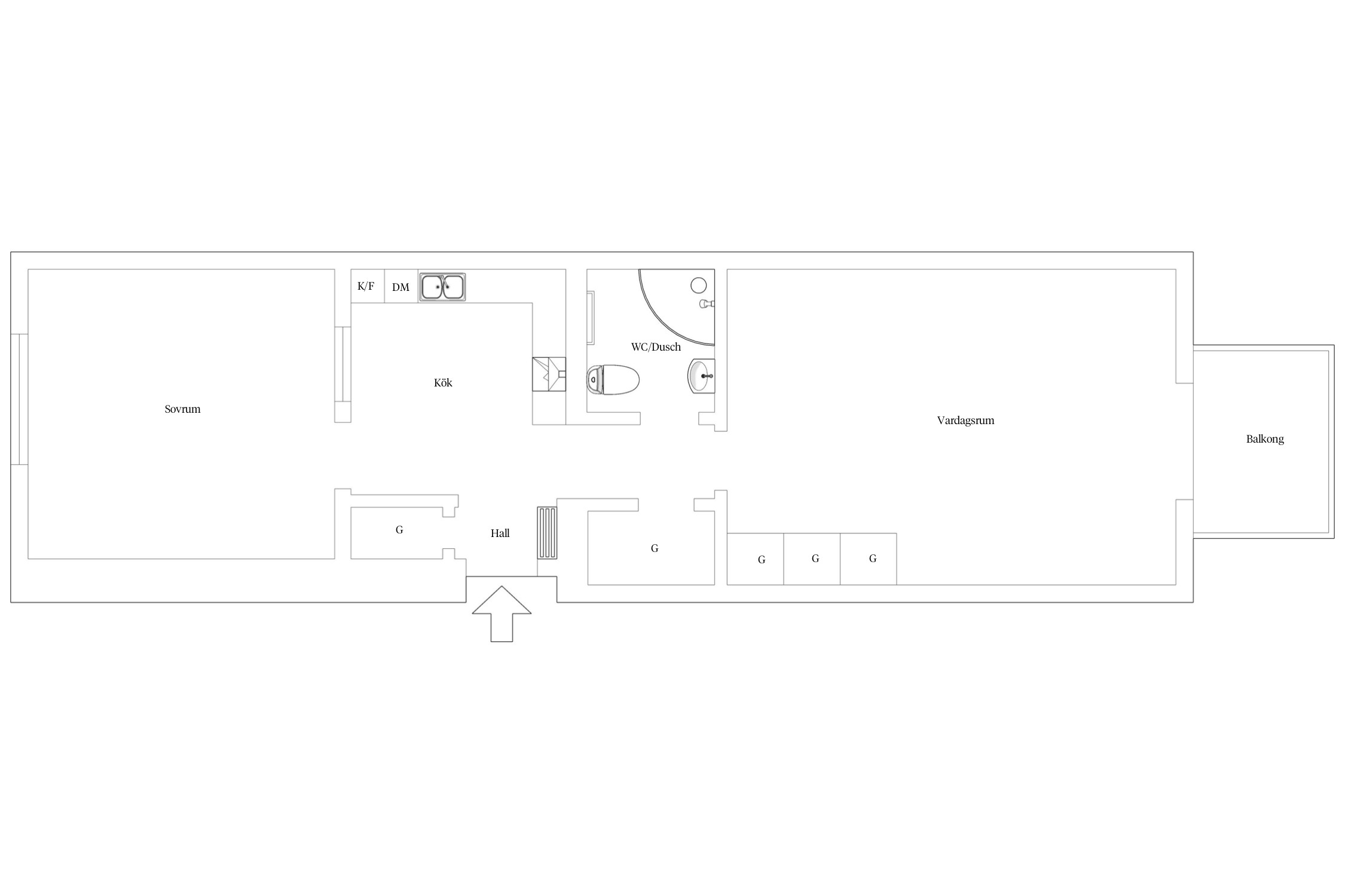
HALL
Parkettgolv och ljusa väggar. I hallen finns gott om plats för förvaring och har direkt anslutning till sovalkoven.
KÖK
Brädgolv och ljusa väggar. Charmigt vitt kök i original med vitt kakel ovanför bänskiva i rostfritt. Köket är utrustat med gasspis, fläkt, diskmaskin, skåpsförvaring, kyl och frys.
VARDAGSRUM
Parkettgolv och ljusgrå väggar. Rymligt vardagsrum med plats för både soffgrupp, skrivbordsdel eller matbord om så önskas. Från vardagsrummet når vi den magiska balkongen i soligt söderläge belägen mot innergården.
ALKOV
Parkettgolv och ljusa väggar. Välplanerad alkov med plats för säng. Lägenheten går att göra till en möjlig tvåa genom att placera köket i alkoven istället. För genomförande krävs godkännande från styrelsen.
FÖRRÅD
Lägenhetsinnehavare disponerar över ett vindsförråd.
RENOVERING
2019 byttes arbetsbänken, fläkten och diskmaskinen i köket. Samma år slipades golven, ytskikten gjordes vid i hela lägenheten och nytt kakel lades i köket. Lägg där till ett nytt säkringsskåp.



Planlösning
Alternativ planläsning
*
42 kvm och 1 rok enligt lägenhetsförteckningen.
I månadsavgiften ingår kabel-TV, värme och vatten. Obligatoriskt tillägg om 85 kr/mån för bredband tillkommer. Individuell förbrukning av el debiteras lägenheten i efterhand.
Söderläge mot innergården
Bostadsrättens indirekta nettoskuldsättning baseras på föreningens skulder/lån minus föreningens räntebärande tillgångar och likvida medel. Beräkningen är gjord och baseras enbart på den senaste tillgängliga årsredovisningen. För mer information kontakta ansvarig fastighetsmäklare.
Brf Postiljonen omfattar 147 lägenheter och 2 hyreslokaler med adresserna Wollmar Yxkullsgatan 48 A-D, Samaritgränd 7 och 9 samt Dr Abelins Gata 2.
Fastigheten ritades för HSB som byggherre av Sven Wallander som är en välkänd arkitekt från denna tid. Wallanders ledord för kvarteret var Paris där han i samma tidsera även ritade upp hus på St Paulsgatan. Huset har tidstypiska 20-talsdetaljer såsom spröjsade fönster, slätputsade fasader, varsamt dekorerade glasentréer samt trapphus med vacker konststen. Sedan föreningen tog över fastigheten vid slutförandet 1928 har man tagit tillvara dess tidstypiska känsla och tursamt nog valt att bevara så mycket som möjligt från husets vackra 20-tals arkitektur.
Föreningen har gemensamt elavtal och varje medlemmar och hyresgäster blir debiterade för sin faktiska elförbrukning som ett tillägg på medlemsavgiften.
Besök gärna föreningens informativa hemsida: http://postiljonen.bostadsratterna.se/
Många i föreningen har gasspis och sedan man förberett för trefas-el har allt fler satt in elspis. Det är förberett för trefas-el i så mån att kabel är dragen från elcentral till alla lägenheter.
Kommande avgiftsförändring: 10 % höjning fr.o.m. 2026-04-01.
2025 - Stenläggning av gången Wollmar Yxkullgata 48
2024 - Fasad, fönster och balkonger ut mot gatorna
2024 - Upprustning av en tvättstuga
2023 - Stamspolning
2023 - OVK
2021 - Fasad, fönster och balkonger ut mot gatorna (på Wollmar Yxkullsgatan 48 A-D inklusive Wollmar Yxkullsgången, Samaritgränd 7 och 9 samt Dr Abelins gata 2)
2019 - Byte till gemensamhetsel samt installation av bergvärme
2019 - Stamspolning
2015 - Målning av tak
2012 och 2014 - Renovering och målning av fönster
1992 - Byte av elstigare
1990 och 2001- Takrenovering
1982 - Stambyte
1974 och 2012- Fasad- och balkongrenovering
Planerat underhåll/renoveringar:
Föreningen planerar för stamrenovering men är endast i förstudie-stadiet.
Kabel TV via ComHem och bredband via fiber Bredband 2/ComHem 85kr/mån.
Föreningens innergård är mycket mysig med flera sittgrupper, grillar, kryddträdgård och mysig grönska.
Till lägenheten hör ett vindsförråd.
Föreningen har fyra gemensamma tvättstugor varav en är med drop in.
Två cykelförråd, barnvagnsförråd samt en samlingslokal för olika aktiviteter.
Övernattningsrum finns att hyra för föreningens medlemmar.
Uppgifterna i denna objektsbeskrivning är grundade på av säljaren och av berörd förening lämnad information. Köpare/spekulanter uppmanas att kontrollera dessa uppgifter med föreningen rörande kommande renoveringar och eventuella avgiftsförändringar.
Köparen uppmanas att kontrollera bostadens bo- och biarea om denna är väsentlig för köparen. Observera att "alternativa planlösningar" endast är idéer och förslag. Nedtagning av väggar och/eller väsentliga förändringar, ingrepp i bärande konstruktioner och ändring av ledningar för avlopp, värme, gas eller vatten av en lägenhet är alltid en fråga för föreningens styrelse att ta ställning till i varje enskilt fall. Detta gäller även om förändringen inte medför risker för byggnadens konstruktion. Köpare uppmanas även att kontrollera eventuella byggplaner o.s.v. i området om detta är av betydelse för köparen. Besök Stockholms stads hemsida: www.stockholm.se
Södermalm är ett av Stockholms mest populära områden med flera olika centrum, här finns något för alla. Söder erbjuder Stockholms första moské, Mosebacke, Münchenbryggeriet, Nytorget och den hänförande utsikten från Fjällgatan och Monteliusvägen.
Maria-området är ett av Södermalms absolut populäraste områden centrum i Mariatorget. Här finns alla restauranger du kan önska, populära butiker och prisbelönta caféer. Mariaberget är en av Stockholms vackraste platser med kullerstensgator och kulturhus. Längs Hornsgatan finns gallerier och hantverkare.
På Söder finns all tänkbar service, vårdcentral och läkarmottagning samt nära till Rosenlunds sjukhus, Ersta sjukhus och Södersjukhuset. Flera förskolor, skolor och gymnasium med olika inriktningar, både friskolor och kommunala.
Kommunikationerna är goda med tunnelbana, flera busslinjer och pendeltåg från Södra station. Slussen utgör en knutpunkt för kollektivtrafiken med Saltsjöbanan och i närheten går även färjorna till Djurgården.
Köpa, sälja eller värdera bostad på Södermalm Maria? Kontakta våra mäklare på Södermalm! Passa också på att anmäla dig till vår kostnadsfria söktjänst Boagenten som hjälper dig att hitta ditt drömboende.
Kontakta mäklaren om du behöver hjälp att ta fram en boendekalkyl.
När du köper din bostad genom Bjurfors kan du ansöka om bolån till en förmånlig ränta hos vår samarbetspartner SEB.
Ansvarig mäklare
Extra kontaktperson