-
Köpa
Köpa -
Sälja
Sälja - Hitta bostad
- Skapa bevakning
- Hitta mäklare
Ljus och vacker sekelskiftesbostad med balkong och burspråk
Vasastan, Stockholm
*Inkl. Värme, vatten kabel-TV (basutbudet) och internet. (Ett obligatoriskt tillägg om balkongtillägg på 30 kr/mån samt värmetillägg om 952 kr/mån tillkommer).
**Faktisk uppmätning
På Förhand ligger bostäder som av olika anledningar inte är ute till försäljning just nu men som kan komma att säljas om förutsättningarna är rätt.
Kontakta mäklaren för mer information gällande budgivningen.
Välkommen till en ljus och luftig sekelskiftesbostad med ett rofyllt gårdsläge – bara två kvarter från Odenplan.
Här möts du av en välplanerad bostad som kombinerar bevarad charm med modern komfort. Öppen planlösning mellan kök och vardagsrum ger generös yta för umgänge. Ett vackert burspråk, fungerande kakelugn och plats för både matbord och soffgrupp gör rummet till hemmets naturliga samlingspunkt.
-Burspråk
-Balkong mot gård
-Öppen planlösning
-Fungerande kakelugn
-Stabil förening
Genomgående ljusa trägolv tillsammans med sobra färgval ger en harmonisk känsla. De stora fönsterpartierna i kombination med den generösa takhöjden fyller lägenheten med naturligt ljus och förstärker känslan av rymd.
Det stilrena köket är funktionellt med integrerad diskmaskin, gott om förvaring bakom släta vita luckor och bra arbetsytor. Här finns plats för ett rejält matbord för cirka sex personer – perfekt för middagsbjudningar.
Bostaden erbjuder även goda förvaringsmöjligheter, med rymliga klädkammare i både hall och sovrum. Det helkaklade badrummet är stort och påkostat med dusch, golvvärme och stilrena materialval. Hiss bidrar till vardagskomforten.
Den stora balkongen vetter mot den lugna gården, i ett stilla och privat läge.
Med Odenplan precis runt hörnet bor du mitt i hjärtat av Vasastan, omgiven av ett rikt utbud av restauranger, caféer och barer. Starta dagen med frukost på något av de många bagerierna i närheten, ta lunch på Melanders, njut av middag på Lilla Ego och avsluta kvällen med en drink på klassiska Tennstopet. För den som söker grönska och rörelse ligger både Vasaparken och Hagaparken inom promenadavstånd.
Kommunikationerna är svårslagna – tunnelbana, bussar och Citybanans uppgång ligger bara ett kvarter bort.
Ett hem med stil, själ och ett svårslaget läge.
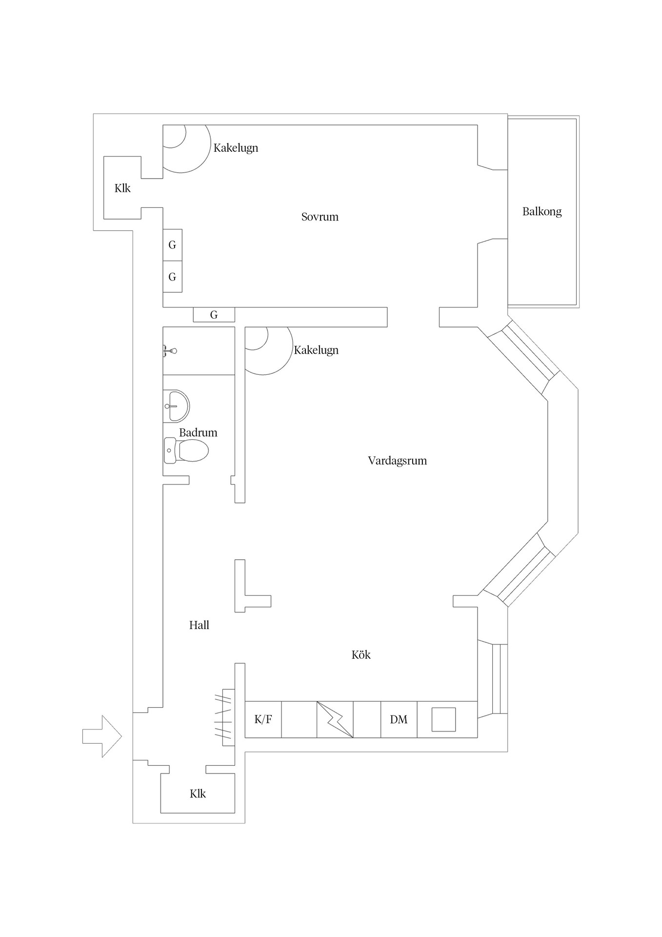
HALL
Välkomnande entré med ljusa trägolv och vitmålade väggar som skapar ett ljust och inbjudande första intryck. Här finns plats för avhängning och en rymlig klädkammare i originalutförande. Hallen är möblerbar och rymmer exempelvis ett sideboard.
BADRUM
Stort badrum med stilrent marmorgolv med golvvärme. Klassiskt vitkaklade väggar och utrustat med dusch bakom glasväggar, WC, handfat med kommod samt spegel. Infällda spotlights för behagligt ljusflöde.
KÖK
Stilrent och funktionellt kök med originalgolv i ljust trä, vitmålade väggar och fönster mot den lugna innergården. Köket är utrustat med moderna vitvaror: spishäll, ugn, integrerad diskmaskin samt kyl/frys. Den öppna planlösningen mot vardagsrummet skapar en social och luftig yta, med plats för ett generöst matbord för upp till sex personer.
VARDAGSRUM
Ljust och inbjudande vardagsrum med generösa ytor, vackra originalgolv i trä och vitmålade väggar. Ett vackert burspråk med två stora fönster ger karaktär och rikligt ljusinsläpp. Den fungerande kakelugnen ger ytterligare charm och den öppna planlösningen mot köket förstärker rummets sociala funktion.
SOVRUM
Rofyllt och rymligt sovrum med ljusa trägolv, vitmålade väggar och dubbla glasade pardörrar mot balkongen och fungerade kakelugn. Här finns en generös klädkammare i original, en garderob med bevarad originaldörr. Rummet rymmer enkelt en dubbelsäng med tillhörande nattduksbord samt skrivbord eller byrå.
BALKONG
Stor och solig balkong i österläge med utsikt mot den lummiga innergården. Här kan du njuta av morgonsol och förmiddagssol. Balkongen har gott om plats för utemöbler och växter.
FÖRRÅD
Till lägenheten hör ett praktiskt vindsförråd som erbjuder extra förvaringsutrymme.



Upplandsgatan 79A
*Faktisk uppmätning
Inkl. Värme, vatten kabel-TV (basutbudet) och internet. (Ett obligatoriskt tillägg om balkongtillägg på 30 kr/mån samt värmetillägg om 952 kr/mån tillkommer).
Bostadsrättens indirekta nettoskuldsättning baseras på föreningens skulder/lån minus föreningens räntebärande tillgångar och likvida medel. Beräkningen är gjord och baseras enbart på den senaste tillgängliga årsredovisningen. För mer information kontakta ansvarig fastighetsmäklare.
Driftkostnader uppskattade enligt säljare
*Betalas av köpare
Brf Sleipner 16 är en äkta bostadsrättsförening som bildades 1974. Föreningen upplåter 26 lägenheter med bostadsrätt samt 2 lokaler med hyresrätt (möbelsnickeri och konst). Fastigheten är fullvärdesförsäkrad via Brandkontoret. Ansvarsförsäkring ingår för styrelsen.
2024 Förstudie/förslagsunderlag stammar, OVK-besiktning
2023 Stamspolning och filmning samt förstudie inför ett ev. stambyte
2022 Komplettering brandsäkerhet, Sotning/besiktning eldstäde,
Elslingor stuprör/tak - Gathus och gårdshus, Komplettering av taksäkerhet
2021 Spolning stammar, Renovering av fönster/balkongdörrar i vindslägenheter - Två fönster resp två balkongdörrar
2020 Oljebyte i hissar samt hiss-pc i gathuset
2019-2020 Byte frekvens i hissar - Utbyte frekvens, kontaktorer, bromsmotstånd och pulsgivare. 2019
gathus, 2020 gårdshus
2019 Renovering tvättstuga
2019 Taksäkerhet
2018 Utbyte av elcentraler i gat- och gårdshus
2017 nytt låssystem entréer och allmänna utrymmen
2017 Tak till cykelställ
2016 Renovering soprum
2016 Relining av tre stammar i gathuset, resterande stammar är från 1979 (resterande stammar är filmade och bedöms vara i gott skick).
2015 Fiberinstallation
2014 Ny belysning vind
2013 Renovering av fönster och portar
2012 Renovering fasad
2012 Byte av plåttak, stuprör och hängrännor
2011 Byte av två hissar
2010 Fönsterrenovering
2007 Ny styrytrustning fjärrvärme
2007 Ny portkodsutrustning
2007 Ny asfalt på gård och portik
2006 Balkonger
2005 Innanfönster gårdshus
2005 Inredning hisskorgar/ny inredning hissar
2004 Målning trapphus
2003 nya golv i trapphus
2000 ny fjärrvärmecentral
1999 Tätning av rökgaskanaler
1998 Ny tvättstuga
1998 Nya balkonger
1979 Nya elstigare
1979 Omputsning fasad
1979 Nyinstallation hiss
Eventuella kommande renoveringar:
2025 - Förbättringsarbeten asfalt/brunnar gårdar, Sotning eldstäder, Underhåll hiss
Reparation undercentral, Reparation avloppsstam i en lägenhet
2026 - Byte av undercentral, Reparation/målning fönster, Reparation entréportar, Underhåll hiss
2026-2028 - Stambyte inkl. inkommande vattenledningar
2027 - Polering golv trapphus, Ytskick soprum, Renovering föreningslokal, Underhåll hiss
2028- Byte av elservis samt ny anslutning Ellevio
Föreningen innehar inga egna parkeringsplatser. I området råder boendeparkering på gatan och kan ansökas via Stockholms stad (www.stockholm.se/boendep) för den som är mantalsskriven i stadsdelen, ansökningskostnad 300 kr. Boendeparkering kostar 1600 kr/mån alternativt 90 kr/dygn.
Kabel-TV levereras via Com Hem och bredband via Ownit.
Föreningen har två grönskande och fina innergårdar med sittgrupper och grillmöjligheter. Man kan boka dessa för sin privata tillställning.
Till förfogande finna även en föreningslokal med pentry, toalett och där man även kan korttids boka för övernattning. Denna lånar man helt utan kostnad.
Intill föreningslokalen har föreningens medlemmar även tillgång till en bastu .
Här finns också ett snickerirum, ett extra gemensamt samt en tvättstuga med all maskinell utrustning.
I vidsträckta Vasastan ryms Birkastan, områdena Röda bergen, Atlas, Sabbatsberg och Sibirien, ett öknamn från 1800-talet när området låg i stadens ytterkant. Nu växer området ytterligare i och med byggnationen av Norra stationsområdet som beräknas vara färdigt år 2025.
Stadsdelen började växa fram under senare delen av 1800-talet, innan dess präglades området av landsbygd. Kvarteren låg i Vasagatans förlängning och fick därför namnet Vasastan 1926. Stockholms Stadsbibliotek invigdes i mars 1928. Vasaparken är stadsdelens finaste och mest populära grönområde. August Strindberg tillbringade sina första år i livet i Vasastan och Astrid Lindgren bodde i Vasastan under 70 år, främst i lägenheten på Dalagatan med utsikt över Vasaparken.
En populär del av Vasastan är Birkastan med sina gemytliga kvarter mellan S:t Eriksgatan, Karlbergsvägen, Norrbackagatan, Norra station och Rörstrandsgatan.
I Vasastan finns förutom de stora butikskedjorna också många trevliga småbutiker med olika karaktär och specialiteter. Här finns också gott om kaféer, kvarterskrogar och restauranger. I övrigt finns här all tänkbar service med vårdcentraler, Odenplans läkarhus, bvc, närakut och specialistvård. Här finns också många förskolor, skolor och gymnasium med olika inriktning i både kommunal och privat regi.
Inom stadsdelen finns flera busslinjer och nyöppnade Citybanan som är en gemensam station för både tunnelbana och pendeltåg vid Odenplan. Flygbussarna stannar vid S:t Eriksplan.
Köpa, sälja eller värdera bostad i Vasastan? Kontakta våra mäklare i Vasastan! Passa också på att anmäla dig till vår kostnadsfria söktjänst Boagenten som hjälper dig att hitta ditt drömboende.
Kontakta mäklaren om du behöver hjälp att ta fram en boendekalkyl.
När du köper din bostad genom Bjurfors kan du ansöka om bolån till en förmånlig ränta hos vår samarbetspartner SEB.
Kontakta mäklaren för mer information gällande budgivningen.
Kontakta mäklareAnsvarig mäklare