-
Köpa
Köpa -
Sälja
Sälja - Hitta bostad
- Skapa bevakning
- Hitta mäklare
Östhammar, Östhammar
*Areauppgifter enligt ritning
Bygg nytt tillsammans med A-hus strax utanför Östhammar intill golfbanan
Bygg drömhuset tillsammans med A-hus strax utanför Östhammar. Här kan vi erbjuda mycket bra, byggklara tomter. Till Östhammar centrum är det inte långt, här finns allt man kan önska som vårdcentral, tandläkare, skola, förskola, apotek, matbutiker och mycket mer. Till Öregrund tar du dig på ca 10-15 minuter med bil. För dig som spelar golf så ligger fina Öregrunds GK bara ett stenkast bort.
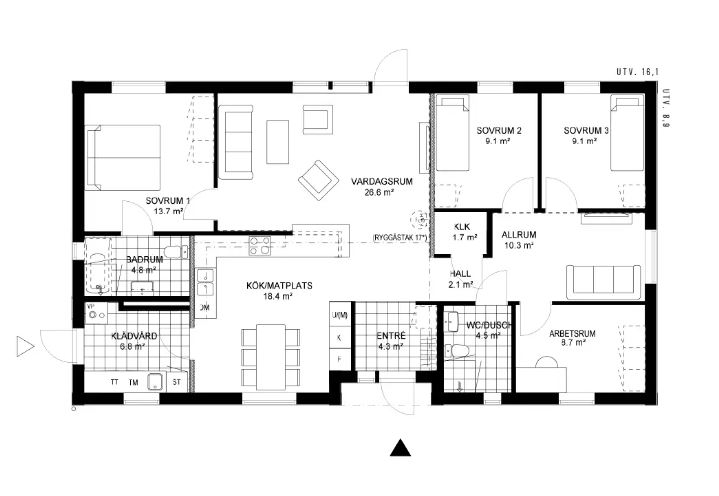
Husförslag Villa Vallda:
Väljer ni Villa Vallda får ni ett välplanerat 1-planshus på 126 kvadrat där alla kan känna sig hemma.
I Villa Vallda öppnar de stora altandörrarna upp mot uteplatsen – och ljuset möter dig redan när du kliver in genom den väderskyddade entrén på framsidan. Här har du ett hem med upp till fyra sovrum där alla ytor är genomtänkta, hela vägen från det stora huvudsovrummet – med ett badrum ni får ha för er själva – till det avskilda kontoret och barnens egna allrum. På matplatsen i köket som vetter åt framsidan äter ni ostört, och den sköna bardisken mot vardagsrummet gör det lätt att laga mat tillsammans eller bara umgås lite avslappnat med vännerna.
Totalpris: 4 350 000 kr inkl. tomtköp, lagfart, husbyggnation i totalentreprenad, markkostnader enligt offert från markentreprenör + en markbuffert, bygglovskostnader, kontrollansvarig och anslutningsavgifter för el, vatten och avlopp (gemensamt VA).
Självklart kan man välja ett annat hus ur A-hus breda utbud av husmodeller så länge det följer detaljplanen. Kontakta oss för att ta reda på vilket hus som passar er bäst.
Observera att det endast är exempelbilder som kan innehålla tillval som kan påverka priset.
Bjurfors förmedlar endast tomten. Entreprenadkontrakt skrivs med A-hus.
För mer info om husmodellerna, kontakta:
Anton Törne
0733060196
Anton.torne@a-hus.se
Pernilla Blomfelt
0737083122
Pernilla.blomfelt@a-hus.se



Björnäs 12:22
*Areauppgifter enligt ritning
Vatten saknas, Avlopp saknas.
Detaljplan (2010-11-09)
Gemensamhetsanläggning: Östhammar björnäs ga:1 ändamål: Vägar, Garage och/eller parkering
Det finns 2 st pantbrev uttagna om sammanlagt 320 000 kr
Uppsala är Sveriges fjärde största stad. Det är en växande tätort med en stark arbetsmarknad. I de centrala delarna hittar man sevärdheter som Uppsala slott, Linnéträdgården och norra Europas största domkyrka. Staden är mycket känd för sitt universitet som är Nordens äldsta, grundat år 1477. Varje år läser drygt 40 000 studenter i Uppsala. Universitetet är en stor arbetsplats som tillsammans med Akademiska sjukhuset erbjuder flera tusen arbetstillfällen.
Från Uppsala finns goda kommunikationer till såväl Stockholm som andra närliggande orter. I Uppsala finns en bra variation när det gäller boendet och du kan välja att bo lantligt eller centralt, i villa eller bostadsrätt. I området hittar du ett stort urval av skolor, både kommunala och fristående med olika profiler och inriktningar. Här finns också elitlag inom innebandy, bandy, basket och badminton.
Vill du köpa, sälja eller värdera bostad i Uppsala? Kontakta våra mäklare i Uppsala! Passa också på att anmäla dig till vår kostnadsfria söktjänst Boagenten som hjälper dig att hitta ditt drömboende.
Kontakta mäklaren om du behöver hjälp att ta fram en boendekalkyl.
När du köper din bostad genom Bjurfors kan du ansöka om bolån till en förmånlig ränta hos våra banksamarbetspartners Söderberg & Partners och SEB.
Ansvarig mäklare
Extra kontaktperson