-
Köpa
Köpa -
Sälja
Sälja - Hitta bostad
- Skapa bevakning
- Hitta mäklare
Bälinge, Uppsala
Bygg nytt i Åloppe utanför Bälinge
Bygg nytt i Åloppe utanför Bälinge! Tillsammans med A-hus kan vi nu presentera fyra byggklara tomter.
Villa Vallda, 5 390 000 kr. Totalpriset innefattar tomt, lagfartskostnad, nyckelfärdigt hus, VA, el, fiber och bygglovskostnader.
Vackert beläget mellan öppna fält och lummiga skogsdungar finner du Åloppe, en stillsam by med genuin landsbygdskänsla, endast några minuter från Bälinge och en kort bilfärd från Uppsala stad. Här bor man med naturen som närmsta granne men med bekväm närhet till service, skolor och kommunikationer.
Det omgivande landskapet präglas av vidsträckta åkrar, slingrande grusvägar och välskötta gårdar som ger området sin charm och karaktär. Många som flyttar hit uppskattar lugnet, de fria vyerna och känslan av att verkligen komma hem till landet utan att behöva göra avkall på närheten till stadens utbud.
Bälinge samhälle ligger endast några kilometer bort och erbjuder matbutik, skola F-9, förskolor, vårdcentral, idrottsanläggningar och ett levande föreningsliv. För den som pendlar till Uppsala når du city på cirka 15–20 minuter med bil, och det finns även bussförbindelser för en smidig vardag.
Runt Åloppe finns gott om möjligheter till friluftsliv och rekreation med skogspromenader, cykelturer, ridvägar och vintertid plogade isbanor på de närliggande sjöarna. Här lever du i takt med årstiderna, i en genuin och trivsam bygd där grannskapet ofta präglas av omtanke och samhörighet.
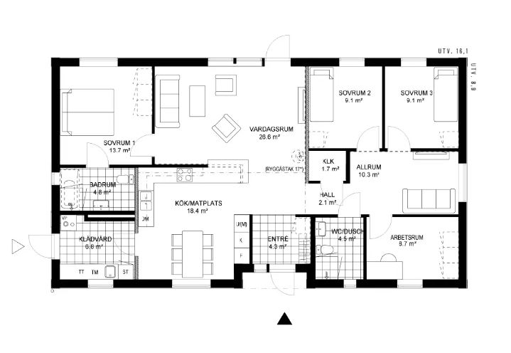
Villa Vallda i modern stil är ett 1-planshus på 126 välplanerade kvadrat där alla får utrymme att trivas.
Välkommen hem till Villa Vallda. Kliv in genom den väderskyddade entrén och du kommer in i ett ombonat kök med egen matplats som vetter mot framsidan. Här öppnar den avslappnade bardisken upp mot det ljusa vardagsrummet med sina stora fönster mot uteplatsen. En smart planlösning med välplanerade rum gör det lätt att trivas. Ert sovrum är stort och har ett lyxigt privat badrum. Barnen har två egna sovrum och ett rejält tilltaget sällskapsrum att umgås med kompisar i. Och med ett eget kontor blir det lätt att stänga dörren om sig och jobba ostört.
Observera att det endast är exempelbilder som kan innehålla tillval som kan påverka priset.
Självklart kan man välja ett annat hus ur A-hus breda utbud av husmodeller. Kontakta oss för att ta reda på vilket hus som passar er bäst.
Bjurfors förmedlar endast tomten. Entreprenadkontrakt skrivs med A-hus.
För mer info kontakta:
Anton Törne
0733060196
Anton.torne@a-hus.se
Pernilla Blomfelt
0737083122
Pernilla.blomfelt@a-hus.se



Uppsala är Sveriges fjärde största stad. Det är en växande tätort med en stark arbetsmarknad. I de centrala delarna hittar man sevärdheter som Uppsala slott, Linnéträdgården och norra Europas största domkyrka. Staden är mycket känd för sitt universitet som är Nordens äldsta, grundat år 1477. Varje år läser drygt 40 000 studenter i Uppsala. Universitetet är en stor arbetsplats som tillsammans med Akademiska sjukhuset erbjuder flera tusen arbetstillfällen.
Från Uppsala finns goda kommunikationer till såväl Stockholm som andra närliggande orter. I Uppsala finns en bra variation när det gäller boendet och du kan välja att bo lantligt eller centralt, i villa eller bostadsrätt. I området hittar du ett stort urval av skolor, både kommunala och fristående med olika profiler och inriktningar. Här finns också elitlag inom innebandy, bandy, basket och badminton.
Köpa, sälja eller värdera bostad i Uppsala? Kontakta våra mäklare i Uppsala! Passa också på att anmäla dig till vår kostnadsfria söktjänst Boagenten som hjälper dig att hitta ditt drömboende.
Kontakta mäklaren om du behöver hjälp att ta fram en boendekalkyl.
När du köper din bostad genom Bjurfors kan du ansöka om bolån till en förmånlig ränta hos våra banksamarbetspartners Söderberg & Partners och SEB.
Ansvarig mäklare