Hoppa till innehåll
Exteriörbild

Ljus och välplanerad lägenhet i hjärtat av Uppsala. Charm, funktion och balkong!

  • 44,4 kvm
  • 1 rum
  • 2 195 000 kr

Främre Luthagen, Uppsala

Odensgatan 4A

Utgångspris:
2 195 000 kr
Avgift:
3 569 kr*
Antal rum:
1
Boarea:
44,4 kvm**
Typ:
Lägenhet
Våningsplan:
1 av 5
Hiss:
Ja
Balkong:
Ja

*Obligatoriskt tillägg om 65 kr/mån för TV

**enligt uppgift från den ekonomiska förvaltaren

Vill du veta mer om bostaden?

Ansvarig mäklare

Robin Gelinder

Fastighetsmäklare / Franchisetagare

Bjurfors Uppsala
Robin Gelinder

BOKA EN KOSTNADSFRI VÄRDERING

Ljus och välplanerad lägenhet i hjärtat av Uppsala. Charm, funktion och balkong!

Beskrivning

Välkommen till denna charmiga och välplanerade lägenhet på Odensgatan, belägen i ett av Uppsalas mest attraktiva kvarter. Här erbjuds ett hem där varje detalj är genomtänkt och där det klassiska 30-talshuset möter modern funktionalitet. Tack vare ljuset som strömmar in genom stora fönster och den genomgående planlösningen känns bostaden både luftig och trivsam.

Vardagsrummet ger idag god plats för både soffgrupp och säng, och delas av med en praktisk förvaringslösning som kan ingå i överlåtelsen. Härifrån når ni bostadens balkong i soligt läge som ligger mot en lugn återvändsgata och där Fyrisån nås med ett längre stenkast.

Köket är funktionellt och välutrustat. Här möts ett modernt kök med bra funktion med ett charmigt serveringsskåp bevarat från byggåret. För dig som önskar finns möjlighet att dela av köket och skapa ett mindre sovrum/sovdel.

Brf Odensgården är en stabil och välskött förening med genomtänkta gemensamma utrymmen, inklusive tvättstuga och cykelrum. Här bor du centralt men ändå lugnt, med närhet till stadens puls, restauranger, kaféer, kultur och shopping, samtidigt som grönområden och Fyrisåns promenadstråk ligger på kort gångavstånd.

Detta hem passar lika bra för förstagångsköparen som för den som vill ha ett bekvämt och lättskött boende med karaktär.

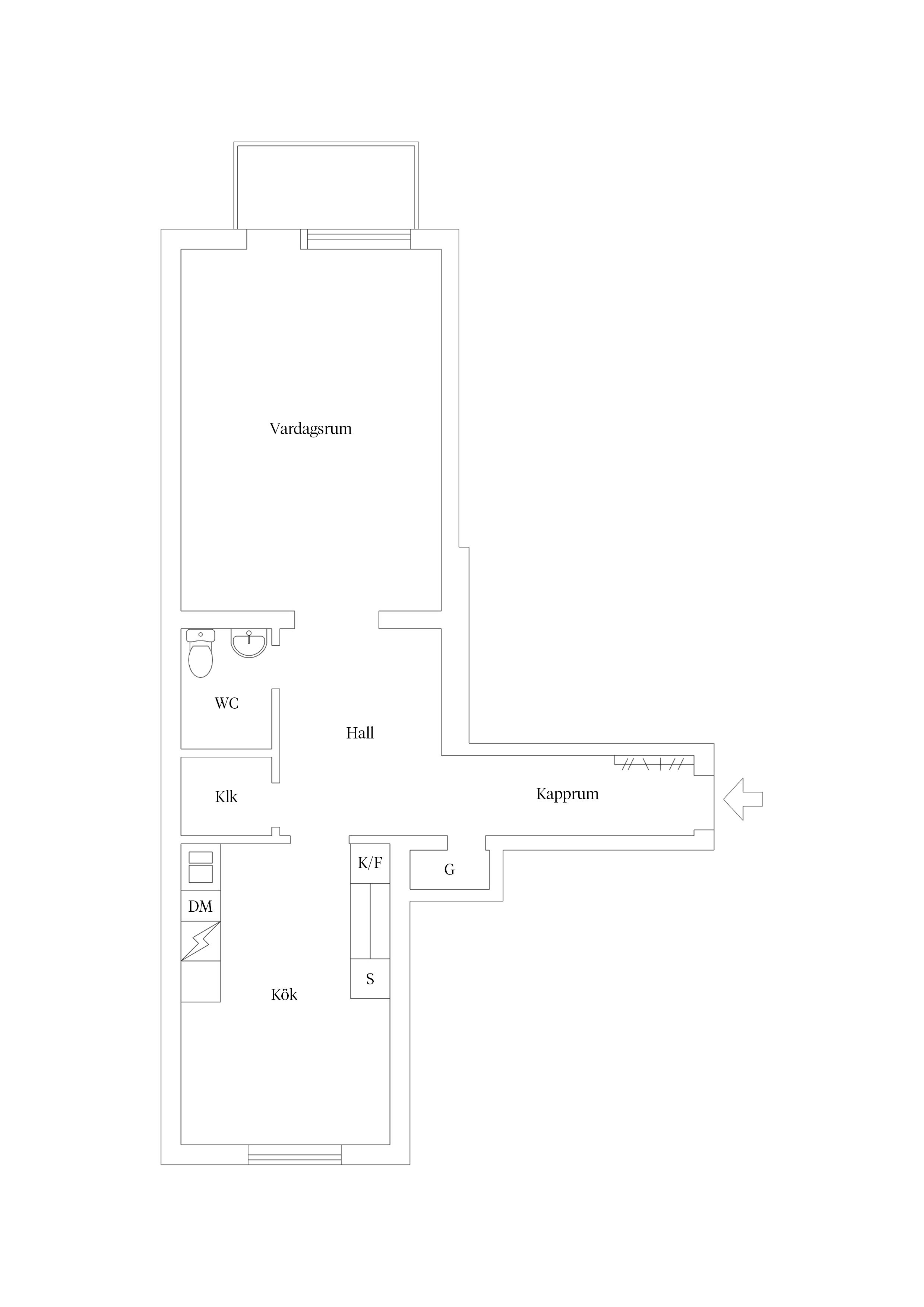
Planritning

Planlösning

Fakta om bostaden

Information

Typ
Lägenhet
Upplåtelseform
Bostadsrätt
Utgångspris
2 195 000 kr
Lägenhetsnummer
2
Våningsplan
1 av 5
Hiss
Ja
Rum
1
Boarea
44,4 kvm*
Balkong
Ja

*enligt uppgift från den ekonomiska förvaltaren

Månadsavgift

Avgift/hyra
3 569 kr

Obligatoriskt tillägg om 65 kr/mån för TV

Byggnadssätt

Byggår
1939

Uteplats/balkong

Balkong
Ja

Ekonomi

Andel i föreningen
2,2572%
Andel av årsavgiften är
2,2572%
Bostadsrättens indirekta nettoskuldsättning
135 624 kr

Bostadsrättens indirekta nettoskuldsättning baseras på föreningens skulder/lån minus föreningens räntebärande tillgångar och likvida medel. Beräkningen är gjord via Bopedia. För mer information kontakta ansvarig fastighetsmäklare.

Energideklaration

Utförd
Ja
Energiklass
E
Energideklarationsdatum
2020-01-17

Bostadsrättsförening

Namn
Odensgården
Organisationsform/typ
Bostadsrättsförening
Antal lägenheter
47
Äkta/oäkta bostadsrättsförening
Äkta
Överlåtelseavgift
1 480 kr*
Föreningen tillåter delat ägande
Ja, minsta ägarandel 10%
Föreningen tillåter juridisk person som köpare
Nej
Föreningen äger marken
Ja

*Betalas av köpare

Föreningens ekonomi

Föreningen höjde avgiften med 2% från 1/1-26.

Renoveringar - Utförda och planerade

Gjorda renoveringar:
1997 Renovering av gemensamhetslokaler med trinettkök, bastu, tvättstuga, sopsorteringshus och cykelhus, samtliga källarförråd
1999 (VA) Rörstamsbyte
1999 Elstambyte
1999. Omläggning av tak
1999 Nytt gårdsbjälklag
2002-2003.Nyinstallation av hiss
2002-2003Omputsning av fasad
2002-04 Renovering av balkonger
2015 Nya fönster
2016 Säkerhetsdörrar
2018 Balkonger nyrenoverade
2020 Radonmätning
Stamspolning
Omfattande åtgärder i föreningens värmesystem
Renovering entrédörrar
Nya tvättmaskiner inköpts

Kommande renoveringar:
2026: Fönstermålning av delar av huset, föreningen har en underhållsplan som följs.
(Kontrollerat med ordförande 2025-11-21)

Parkering

Föreningen tillhandahåller ej parkeringsplatser. Boendeparkering finns i området.

TV/bredband

Bredband: Tele2 medlem tecknar själv avtal om så önskas.
TV: Tele2

Gemensamma utrymmen

Tillgång till tvättstuga, föreningslokal, träningsrum, bastu (för tillfälligt ur funktion) och cykelrum i källaren.

Övrigt

Senaste radonmätningen gjordes 2022. En lägenhet i 4A befann sig över gränsvärdet (210) och ska mätas om i höst. Tilluften har ökats i några lägenheter 2022 för att minska risken för höga radonvärden.

Om Uppsala

Att bo i Uppsala

Uppsala är Sveriges fjärde största stad. Det är en växande tätort med en stark arbetsmarknad. I de centrala delarna hittar man sevärdheter som Uppsala slott, Linnéträdgården och norra Europas största domkyrka. Staden är mycket känd för sitt universitet som är Nordens äldsta, grundat år 1477. Varje år läser drygt 40 000 studenter i Uppsala. Universitetet är en stor arbetsplats som tillsammans med Akademiska sjukhuset erbjuder flera tusen arbetstillfällen.

Från Uppsala finns goda kommunikationer till såväl Stockholm som andra närliggande orter. I Uppsala finns en bra variation när det gäller boendet och du kan välja att bo lantligt eller centralt, i villa eller bostadsrätt. I området hittar du ett stort urval av skolor, både kommunala och fristående med olika profiler och inriktningar. Här finns också elitlag inom innebandy, bandy, basket och badminton.

Köpa, sälja eller värdera bostad i Uppsala? Kontakta våra mäklare i Uppsala! Passa också på att anmäla dig till vår kostnadsfria söktjänst Boagenten som hjälper dig att hitta ditt drömboende.

Karta

Odensgatan 4A

Odensgatan 4A

753 15 UPPSALA

Visa i Google Maps (öppnas i nytt fönster)

Boendekalkyl

Kontakta mäklaren om du behöver hjälp att ta fram en boendekalkyl.

När du köper din bostad genom Bjurfors kan du ansöka om bolån till en förmånlig ränta hos vår samarbetspartner SEB.

Ansök om lånelöfte hos SEB

Håll koll på detta objekt

Mäklare

Ansvarig mäklare

Robin Gelinder, Bjurfors Uppsala

Vill du veta mer om bostaden?

Kampanjbild Boneo

Liknande bostäder