-
Köpa
Köpa -
Sälja
Sälja - Hitta bostad
- Skapa bevakning
- Hitta mäklare
Arkitektritat radhus för familjen som vill ha det lilla extra!
Juvansbo, Uppsala
*ingår i avgiften: Sophantering och snöröjning.
**uppgifter enligt den ekonomiska förvaltaren
Bokad visning.
Detta stilfulla gavelradhus bjuder på en imponerande boendemiljö med stora fönsterpartier som ger ett fantastiskt ljusinsläpp och panoramavyer från flera vinklar. Här bor du i ett mysigt område nära natur och badplatser, samtidigt som du når Uppsala på bara cirka 12 minuter.
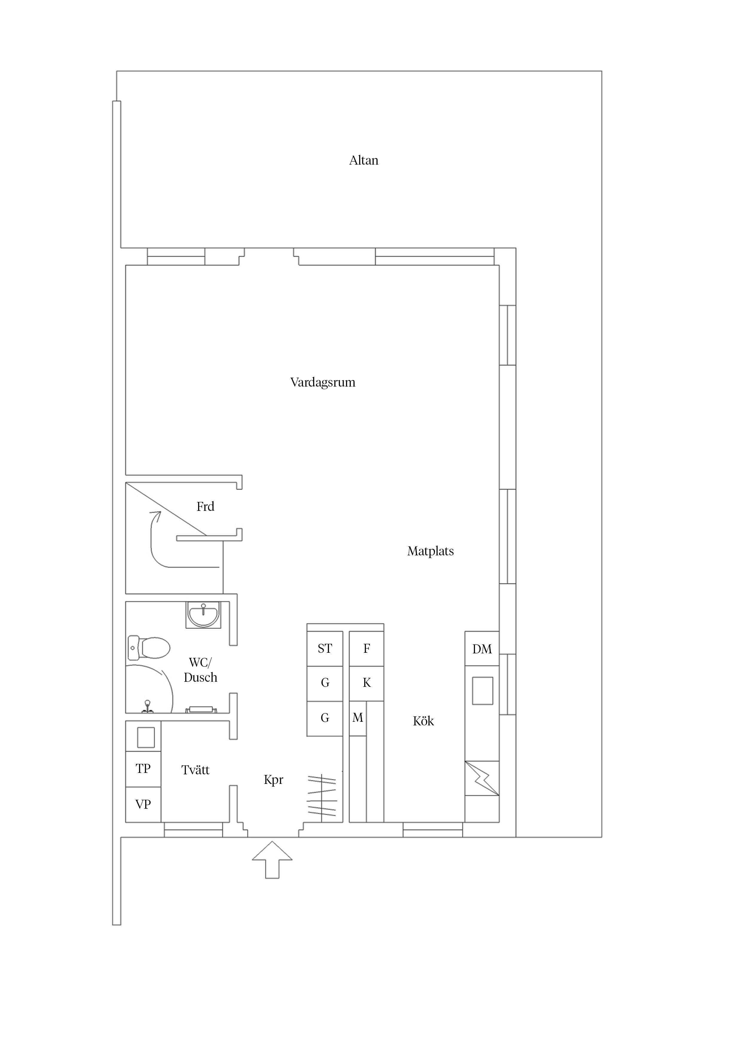
Redan vid entrén möts du av en härlig rymd, där takhöjden på omkring tre meter och den öppna planlösningen skapar en känsla av lyx och generositet. De sociala ytorna är genomtänkta och inredda med högkvalitativa material, som fönsterbänkar i carraramarmor och vackra parkettgolv. Två eleganta badrum, varav ett med dusch och det andra med badkar, bidrar till bekvämligheten. De stora fönstren förstärker känslan av modernitet och låter ljuset flöda in, samtidigt som de ramar in utsikten mot det natursköna landskapet. Sovrummen erbjuder god förvaring i form av platsbyggda garderober.
På entréplanet samspelar kök och vardagsrum i en trivsam och luftig helhet. Här kan ni njuta av en värmande och stämningshöjande kamin. Här finns även ett badrum, separat tvättstuga och ett praktiskt förråd under trappan. Övervåningen rymmer tre rejäla sovrum, ett allrum och ett badrum med badkar.
Huset kombinerar smakfull design med praktiska lösningar och är i mycket gott skick. Till radhuset hör en parkeringsplats med laddstolpe för elbil samt ett externt förråd som ger extra förvaringsutrymme.
Björklinge ligger vackert vid Långsjön och erbjuder fina badplatser, möjligheter till båtliv samt ett rikt utbud av idrottsaktiviteter och ett elljusspår som vintertid fungerar som skidspår. I området finns välsorterad matbutik, flera restauranger, bra förskolor och skolor samt goda bussförbindelser som gör det enkelt att ta sig till Uppsala och Gränbystaden på kort tid.



*uppgifter enligt den ekonomiska förvaltaren
ingår i avgiften: Sophantering och snöröjning.
Bostadsrättens indirekta nettoskuldsättning baseras på föreningens skulder/lån minus föreningens räntebärande tillgångar och likvida medel. Beräkningen är gjord via Bopedia. För mer information kontakta ansvarig fastighetsmäklare.
*Betalas av köpare
13 radhus med 3 lägenheter i varje, totalt 39 lägenheter.
Ingen beslutad avgiftsförändring i dagsläget (kontrollerat med styrelsen 2025-11-06)
Bostadsrättsföreningen står för bostadsrättstillägget.
2021/22 OVK
Föreningen har inga kommande renoveringar (kontrollerat med styrelsen 2025-11-06)
Parkering finns tillgänglig på uppfarten.
Öppen fiber
Uppsala är Sveriges fjärde största stad. Det är en växande tätort med en stark arbetsmarknad. I de centrala delarna hittar man sevärdheter som Uppsala slott, Linnéträdgården och norra Europas största domkyrka. Staden är mycket känd för sitt universitet som är Nordens äldsta, grundat år 1477. Varje år läser drygt 40 000 studenter i Uppsala. Universitetet är en stor arbetsplats som tillsammans med Akademiska sjukhuset erbjuder flera tusen arbetstillfällen.
Från Uppsala finns goda kommunikationer till såväl Stockholm som andra närliggande orter. I Uppsala finns en bra variation när det gäller boendet och du kan välja att bo lantligt eller centralt, i villa eller bostadsrätt. I området hittar du ett stort urval av skolor, både kommunala och fristående med olika profiler och inriktningar. Här finns också elitlag inom innebandy, bandy, basket och badminton.
Köpa, sälja eller värdera bostad i Uppsala? Kontakta våra mäklare i Uppsala! Passa också på att anmäla dig till vår kostnadsfria söktjänst Boagenten som hjälper dig att hitta ditt drömboende.
Kontakta mäklaren om du behöver hjälp att ta fram en boendekalkyl.
När du köper din bostad genom Bjurfors kan du ansöka om bolån till en förmånlig ränta hos vår samarbetspartner SEB.
Bokad visning.
Ansvarig mäklare