-
Köpa
Köpa -
Sälja
Sälja - Hitta bostad
- Skapa bevakning
- Hitta mäklare
Uppsala
*Areauppgifter enligt ritning
Bygg nytt i Oxsätra med A-hus!
Bygg nytt i Oxsätra med A-hus!
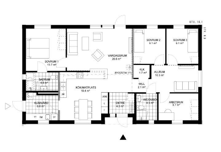
Husförslag villa Vallda.
Väljer ni Villa Vallda får ni ett välplanerat 1-planshus på 126 kvadrat där alla kan känna sig hemma.
I Villa Vallda öppnar de stora altandörrarna upp mot uteplatsen och ljuset möter dig redan när du kliver in genom den väderskyddade entrén på framsidan. Här har du ett hem med upp till fyra sovrum där alla ytor är genomtänkta, hela vägen från det stora huvudsovrummet med ett badrum ni får ha för er själva till det avskilda kontoret och barnens egna allrum. På matplatsen i köket som vetter åt framsidan äter ni ostört, och den sköna bardisken mot vardagsrummet gör det lätt att laga mat tillsammans eller bara umgås lite avslappnat med vännerna.
Området erbjuder ett lugnt och lantligt boende med närhet till både natur och service. Bälinge nås på cirka 10 minuter med bil och erbjuder bland annat förskola, skola och livsmedelsbutik. Även Jumkil ligger nära, cirka 8 minuter bort, med förskola och skola (F–6). I Oxsätra, endast ett par minuter bort, finns välsorterad Handlarn samt möjlighet till drivmedel. Uppsala nås på omkring 20 minuter med bil. I närområdet finns dessutom ett aktivt föreningsliv med ett brett utbud av idrotts- och fritidsaktiviteter för alla åldrar.



Oxsätra 3:17
*Areauppgifter enligt ritning
Vatten saknas, Avlopp saknas.
Förmån: Officialservitut Väg, 0380K-2024/127.1
Uppsala är Sveriges fjärde största stad. Det är en växande tätort med en stark arbetsmarknad. I de centrala delarna hittar man sevärdheter som Uppsala slott, Linnéträdgården och norra Europas största domkyrka. Staden är mycket känd för sitt universitet som är Nordens äldsta, grundat år 1477. Varje år läser drygt 40 000 studenter i Uppsala. Universitetet är en stor arbetsplats som tillsammans med Akademiska sjukhuset erbjuder flera tusen arbetstillfällen.
Från Uppsala finns goda kommunikationer till såväl Stockholm som andra närliggande orter. I Uppsala finns en bra variation när det gäller boendet och du kan välja att bo lantligt eller centralt, i villa eller bostadsrätt. I området hittar du ett stort urval av skolor, både kommunala och fristående med olika profiler och inriktningar. Här finns också elitlag inom innebandy, bandy, basket och badminton.
Köpa, sälja eller värdera bostad i Uppsala? Kontakta våra mäklare i Uppsala! Passa också på att anmäla dig till vår kostnadsfria söktjänst Boagenten som hjälper dig att hitta ditt drömboende.
Kontakta mäklaren om du behöver hjälp att ta fram en boendekalkyl.
När du köper din bostad genom Bjurfors kan du ansöka om bolån till en förmånlig ränta hos vår samarbetspartner SEB.
Ansvarig mäklare