Inviting home with sunny south-facing terrace – Playa Flamenca
Playa Flamenca, Orihuela Costa
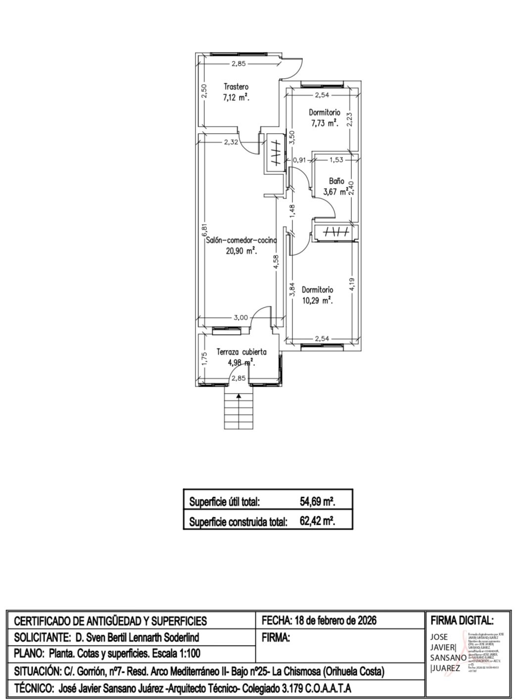
Cozy ground floor apartment with two bedrooms, one bathroom and parking in a safe, fenced area.
In the well-maintained Res. Arco Mediterraneo II, a tasteful ground-floor residence is now offered - perfect for those looking for comfortable accommodation in a sunny south-facing location.
Very close by is the popular Piscina Bar Las Chismosas, a popular meeting place with a pool, mini golf and restaurant, ideal for both young and old. The area offers a wide range of international restaurants, grocery stores, pharmacies, banks and all necessary services. For shopping and entertainment, the well-known La Zenia Boulevard is just a few minutes away. The beautiful sandy beaches of Playa Flamenca are also close by and offer crystal clear water and lovely beach walks all year round.
At first glance, you are greeted by an inviting and sun-drenched terrace with a lovely southerly orientation. Lush plants create a private and harmonious environment with plenty of space for lounge furniture. Here you will find all the conditions for long breakfasts in the morning sun and warm dinners under the Spanish evening sky.
Inside, you are greeted by a bright and open plan kitchen and living room – a social and pleasant space where family and friends naturally gather. The kitchen is fully equipped and offers generous work surfaces and plenty of storage.
Directly adjacent to the kitchen is a very practical, separate space with a washing machine and dryer as well as additional storage options – a much appreciated detail that simplifies everyday life. From here you also reach, via a lockable door, a smaller patio at the back of the home.
The home offers two bright and harmonious bedrooms, both with space for a double bed and good storage. The fresh bathroom is equipped with a bathtub - a practical solution, not least for families with children or for relaxing moments after a day at the beach.
The communal pool is conveniently located a short distance from the home and is a natural gathering point during the warmer months of the year. Adjacent to the pool area is another entrance to the urbanization, providing easy access.
Just outside the home, within the locked and secure area, there is convenient parking. The urbanization has recently undergone an extensive refresh with newly painted facades and replaced doors and gates, giving the entire area a very well-kept and attractive impression.
This attractive property is sold exclusively with us at Bjurfors Costa Blanca. Please feel free to contact us for a private viewing or if you would like further information.



Playa Flamenca, which borders Punta Prima to the north and La Zenia to the south, is located in the southern part of the Costa Blanca, about 10 miles south of Torrevieja and only 45 minutes from Alicante airport.
Playa Flamenca is one of the areas south of Torrevieja where development began in the 1980s down by the beach and has since grown further up, which means that today we find a wide range of housing, everything from traditional single-storey villas to smaller apartments and bungalows as well as state-of-the-art new buildings that are under construction.
As housing has been built, the range of services has also gradually grown and today everything you need is within walking distance. There are several smaller shopping centers and a large selection of restaurants that follow each other, and there is also a school and a health center. In Playa Flamenca we also find the Scandinavian School which offers instruction in both Swedish and Finnish.
Playa Flamenca's golden beaches with crystal clear waters have been awarded the Blue Flag for their environment, service and safety. The coastal area offers lovely walks along the coast.
Every Saturday morning, the well-attended market is held on Calle Nicolas de Bussi, where you can buy locally grown vegetables, fresh flowers and textiles. Worth mentioning is the proximity to Zenia Boulevard, which is within walking or cycling distance, which is the area's largest shopping center with well-known shops. Here in Playa Flamenca you will also find one of Bjurfor's offices along the coast.
C/ Gorrión - Res. Arco Mediterraneo II
03189 Orihuela Costa
Show in Google Maps (opens in new tab/window)Responsible agent
Extra contact person