Inviting apartment with two balconies in cozy Algorfa
Algorfa – La Finca, Vega Baja
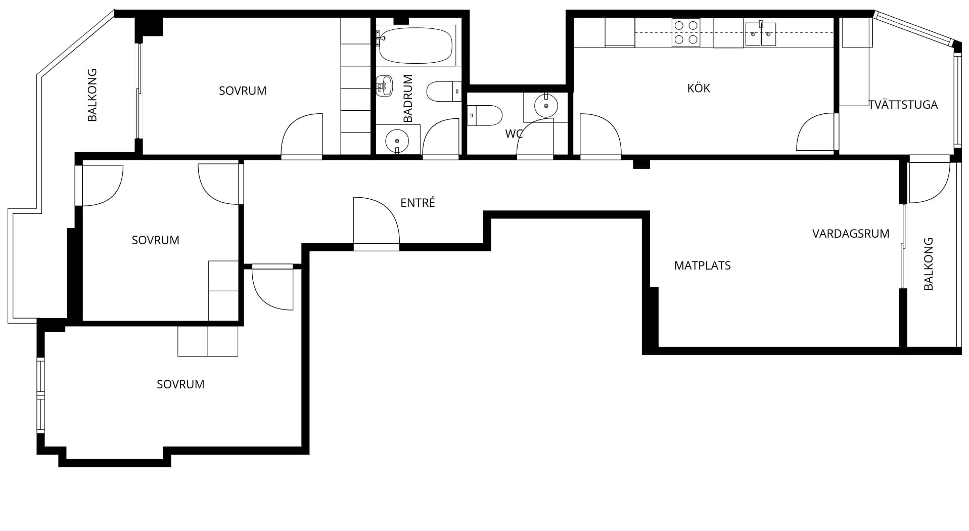
Spacious home with three bedrooms, a bathroom, a separate toilet and access to a shared roof terrace with fantastic views.
Presented here is a spacious and inviting apartment in the heart of Algorfa, a home that combines genuine Spanish small-town charm with generous spaces, light and a quiet, central location.
The apartment is located two flights of stairs up in a well-maintained building without an elevator, which enhances the feeling of a classic and charming residence. As a resident of the property, you have access to a shared roof terrace with expansive views of the mountains and the beautiful surroundings.
The apartment itself is very spacious and bright throughout, with a well-planned floor plan that creates both space and harmony. Two balconies give the home a fantastic amount of light and the opportunity to follow the sun during the day – one balcony to the south for sunny days and one to the north for coolness during hot summer months.
The home offers three generous bedrooms, all with space for a double bed and storage, making the apartment ideal for both permanent residence and holiday home. The separate kitchen is functional and homely, with plenty of cupboards and work surfaces. Directly adjacent to the kitchen is a practical laundry room with extra storage space, a detail that makes everyday life easier. There is also a bathroom with shower and a separate guest toilet, providing extra comfort for both family and guests.
The interior is cozy and welcoming, with a warm atmosphere that makes you feel right at home. It's easy to feel comfortable here, whether you're looking for a quiet permanent residence or a place to enjoy long stays in the sun.
Within easy walking distance are La Plaza and Ermita de Algorfa, the vibrant centre of the village where Algorfa is well known for its lively fiestas all year round. Nearby there is also an excellent municipal swimming pool area and modern sports facilities that create opportunities for an active and enjoyable lifestyle. A wide range of services – supermarkets, pharmacies, health centre, banks, cafes and restaurants – are also within easy walking distance.
The proximity to green areas, orange groves and mountains gives a natural feeling, while the beaches of the Costa Blanca are a short drive away. For golf enthusiasts, the well-known La Finca Golf is very close by.
Parking is easily available on the street outside the home, making everyday life easy and convenient.
In summary, this is a charming, bright and generous home with an excellent location in central Algorfa. Please contact us at Bjurfors Costa Blanca for more information or to book a viewing.



Responsible agent
Extra contact person