Nuevo proyecto con buena ubicación en Los Balcones
Los Balcones, Torrevieja
¡No te pierdas la casa de tus sueños! Ahora puedes suscribirte de forma rápida y gratuita a los anuncios de nuestras viviendas en España que se adapten a tus intereses y necesidades.
SuscribirsePisos de nueva construcción de dos o tres dormitorios y amplias terrazas en Los Balcones
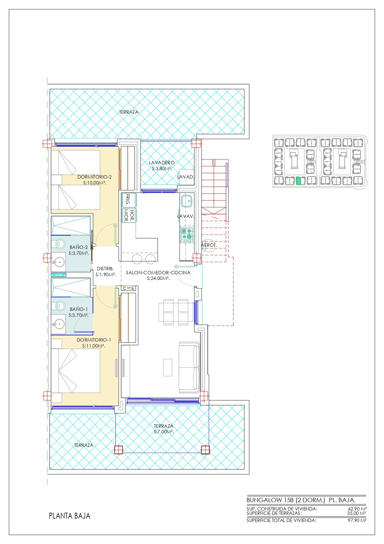
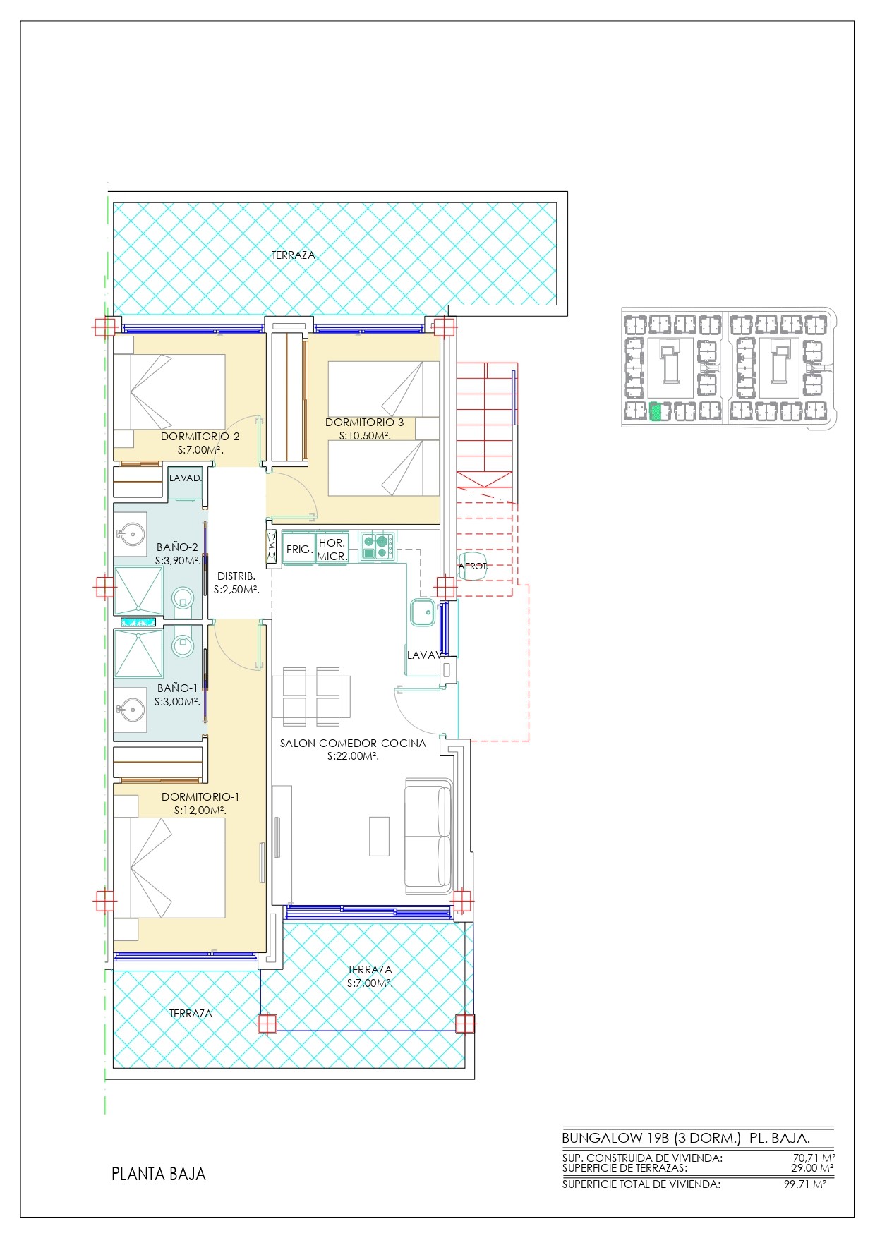
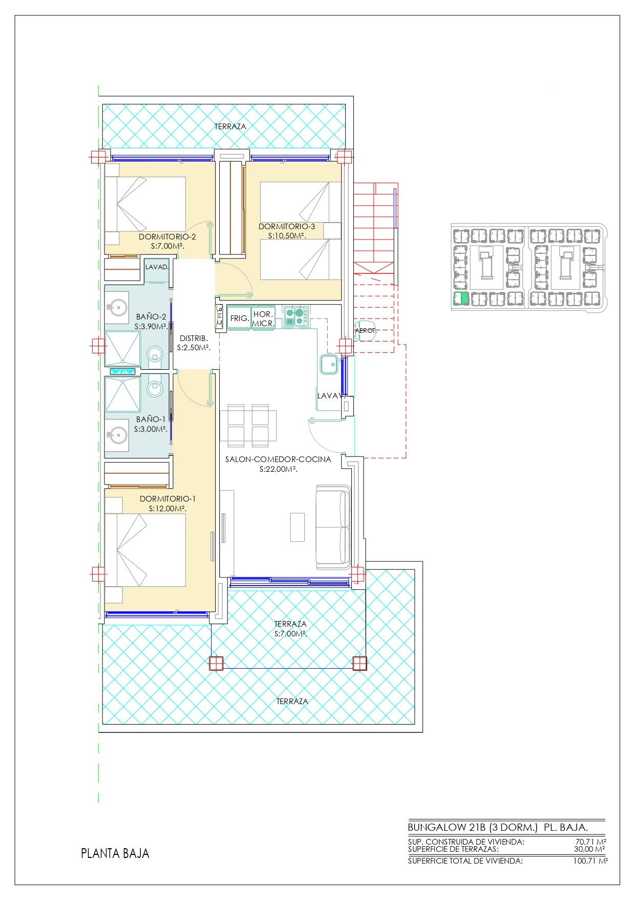
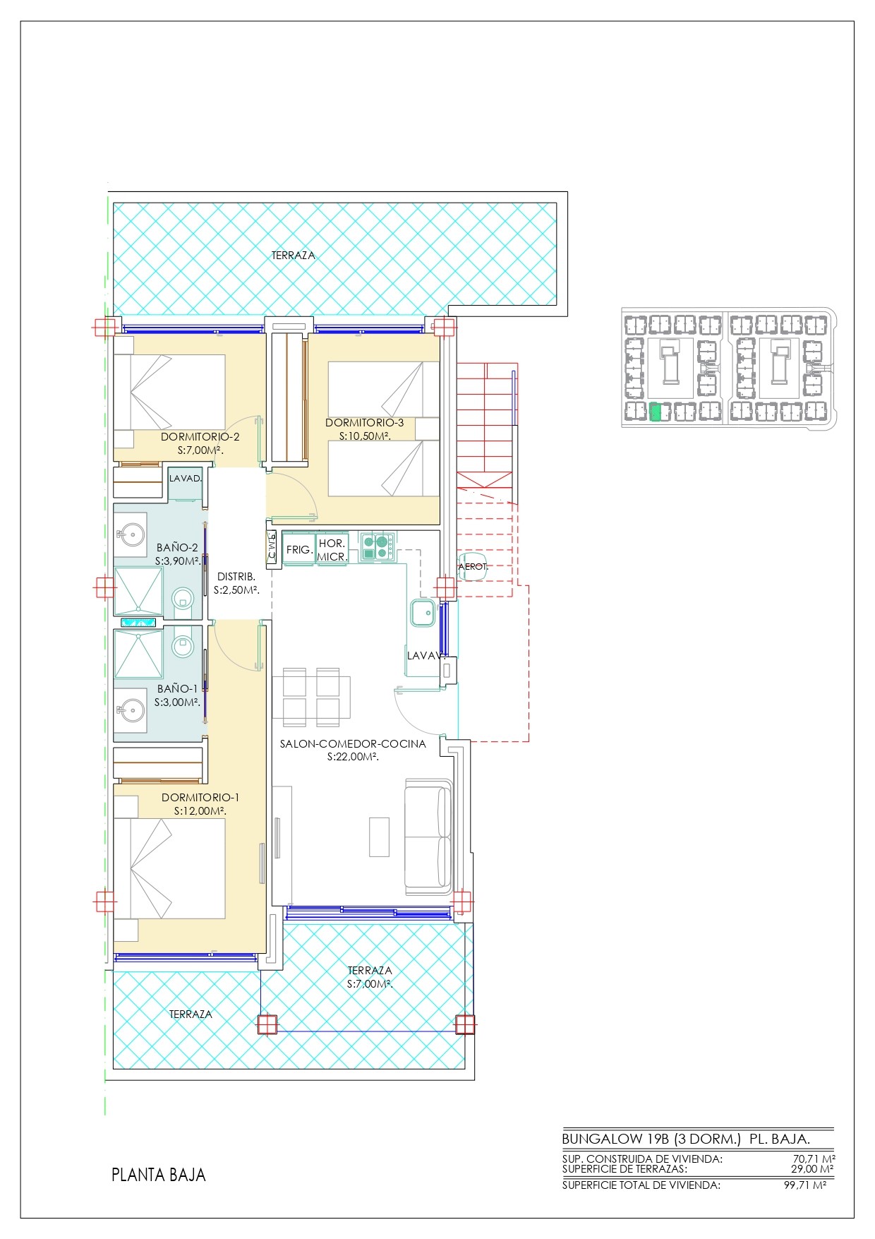
Bjurfors Costa Blanca presenta este maravilloso proyecto con muy buena ubicación que consta de 104 apartamentos, planta baja con amplias terrazas y plantas altas con azoteas. La primera fase cuenta con 52 apartamentos a elegir, de dos o tres dormitorios. Todos los apartamentos cuentan con una distribución abierta entre la cocina y el salón, así como acceso a amplias terrazas con vistas a las zonas verdes o al lago salado.
La urbanización ofrecerá dos piscinas comunitarias rodeadas de zonas verdes y la oportunidad de adquirir una plaza de aparcamiento privado y trastero subterráneo.
A un corto paseo se puede llegar a varios restaurantes, supermercados y cafeterías. A las hermosas playas de Torrevieja se puede llegar en pocos minutos en coche, así como al centro comercial más grande de la zona, La Zenia Boulevard o varios campos de golf.
¡Bienvenido a contactar a Bjurfors Costa Blanca para más información o para reservar su tour!



Agente responsable
Persona de contacto adicional