Directamente en el campo de golf y con impresionantes vistas
Benahavís
¡No te pierdas la casa de tus sueños! Ahora puedes suscribirte de forma rápida y gratuita a los anuncios de nuestras viviendas en España que se adapten a tus intereses y necesidades.
SuscribirseEsta impresionante villa, actualmente en construcción, ocupa una posición de esquina dominante en una zona codiciada, El Cerrojo en La Quinta.
Construida en cuatro plantas directamente sobre el campo de golf y con vistas a la montaña y al mar.
La villa es tan privada como cómoda y está llena de un diseño de última generación.
Relájese en el jacuzzi de la azotea, flote en la piscina infinita, haga ejercicio en el gimnasio bien equipado, pase un rato a solas en el sauna o simplemente disfrute de la compañía de amigos en la sala de entretenimiento con una botella de vino de la bodega: el las opciones son infinitas
La parcela orientada al sur garantiza mucha luz natural en las amplias zonas de estar y sol en las terrazas durante todo el día, lo que la hace perfecta para la mezcla andaluza de vida interior y exterior.
Bjurfors tiene acceso a toda la oferta de viviendas en venta en la Costa del Sol, así que no dude en ponerse en contacto con nosotros y le ayudaremos a encontrar la casa de sus sueños.



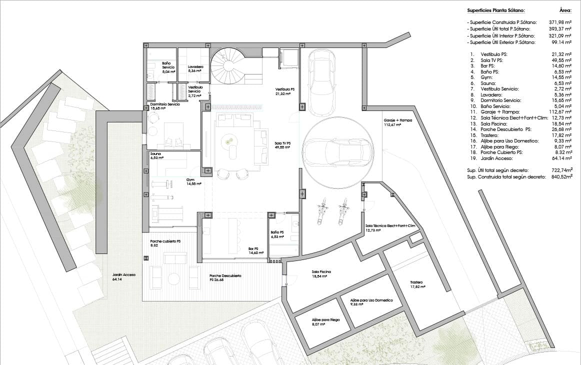
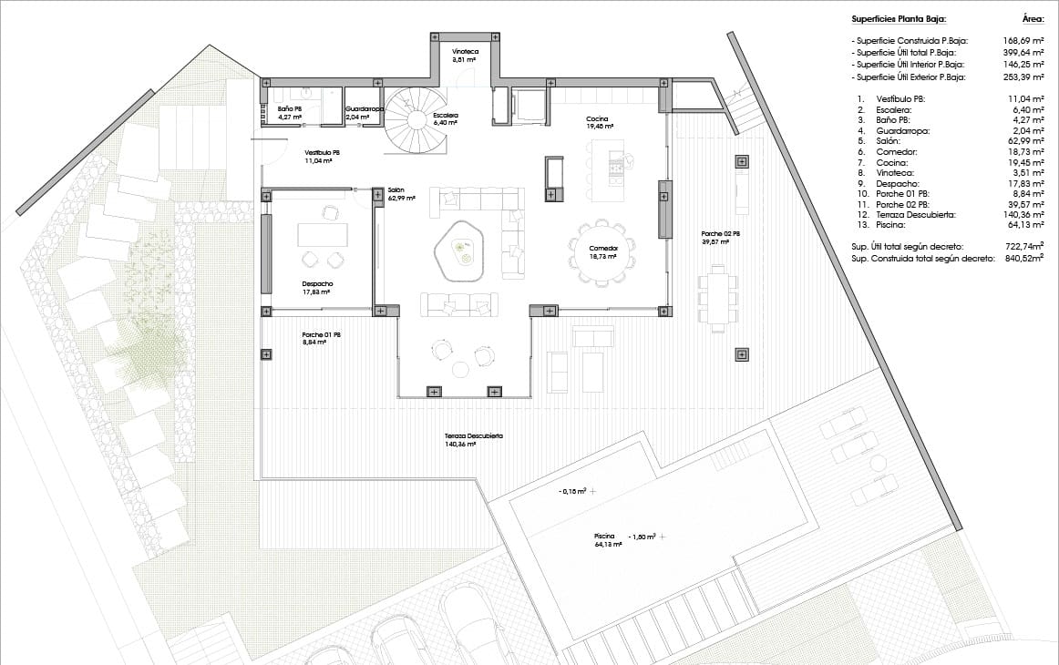
Layout
Benahavís es el hogar de más de 7.000 personas y ofrece un paisaje impresionante con vistas inmejorables de las montañas. La ciudad y sus alrededores se caracterizan por una hermosa vegetación, calles pintorescas, y encantadores edificios blancos. Como parte del próspero municipio de Benahavís, la ciudad se ha vuelto muy popular entre los compradores de viviendas tanto suecos como internacionales. La ciudad se encuentra a sólo 7 kilómetros del mar y a 50 minutos en coche del aeropuerto de Málaga, ofreciendo lo mejor de ambos mundos en esta impresionante zona.
En Bjurfors Real Estate somos expertos en el mercado inmobiliario en Marbella. Le ayudamos a comprar o vender una casa en Benahavís. ¡Contáctenos hoy!