Precioso ático en la prestigiosa Res. Amay Quinto en Punta Prima.
Punta Prima, Orihuela Costa
¡No te pierdas la casa de tus sueños! Ahora puedes suscribirte de forma rápida y gratuita a los anuncios de nuestras viviendas en España que se adapten a tus intereses y necesidades.
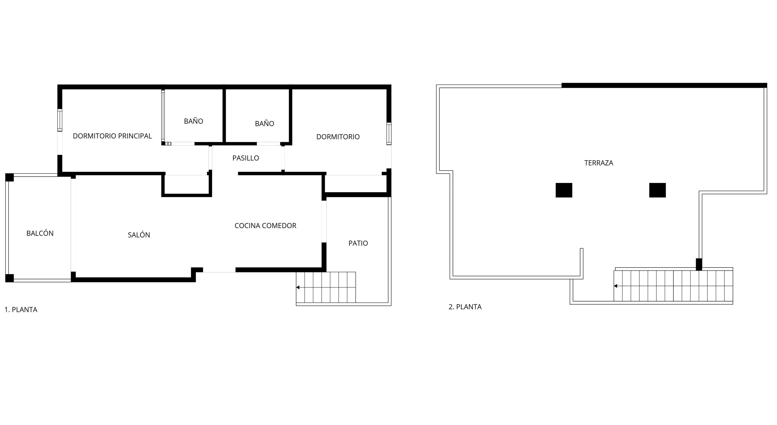
SuscribirseLuminosa y moderna vivienda de dos dormitorios, dos baños (uno en suite), dos balcones y un solarium con sol todo el día.
Bienvenido a un exclusivo ático en el codiciado residencial Amay Quinto, en la soleada Punta Prima: un hogar donde el diseño sofisticado, el confort moderno y los pequeños detalles se combinan para transformar el día a día en auténtica calidad de vida.
Aquí disfrutarás de una ubicación inmejorable. A poca distancia a pie encontrarás una amplia oferta de restaurantes, cafeterías, tiendas y supermercados, mientras que el cristalino mar Mediterráneo te espera a solo unos minutos con sus encantadoras playas y ambiente costero. Para los amantes del golf, hay varios campos de renombre a escasa distancia.
La vivienda, situada en la planta superior, ofrece una distribución inteligente y elegante. Dispone de dos dormitorios luminosos con espacio para camas de 180 cm y 160 cm respectivamente, además de dos modernos baños, uno de ellos en suite, lo que proporciona un extra de comodidad y privacidad.
El salón de concepto abierto se abre a un soleado balcón orientado al sur con vistas a la exuberante zona de piscina: un oasis de tranquilidad donde la convivencia se combina con el descanso. En el lado opuesto de la vivienda hay otro balcón, perfecto para disfrutar del café matutino o para contemplar la vida del barrio durante el día.
En la planta superior te espera el auténtico punto culminante de la vivienda: el solárium privado. Un amplio espacio que se extiende con vistas panorámicas al entorno y al resplandeciente mar Mediterráneo. Este solárium está diseñado para disfrutar del estilo de vida mediterráneo, con espacio para muebles de salón, comedor exterior y una elegante cocina al aire libre equipada con nevera. También cuenta con un práctico espacio de almacenaje para cojines y accesorios, una refrescante ducha exterior, así como lavadora y secadora convenientemente ubicadas. Un lugar donde cada momento se convierte en un recuerdo memorable.
El ático está equipado con varios extras pensados para ofrecer el máximo confort: una pared de cristal de tres secciones en uno de los balcones que permite una entrada generosa de luz natural, un filtro de agua instalado en la toma principal que protege tanto los electrodomésticos como los utensilios de cocina, y tres toldos en uno de los balcones que aportan sombra e intimidad.
La vivienda incluye una cómoda plaza de garaje y un trastero de gran tamaño, ubicado justo al lado del aparcamiento: una combinación perfecta de funcionalidad y espacio extra de almacenamiento.
La zona comunitaria con piscina es un auténtico oasis con palmeras, vegetación frondosa y dos fantásticas piscinas que invitan a disfrutar de un refrescante baño o simplemente relajarse en un entorno tranquilo. La piscina más cercana a la vivienda está climatizada durante los meses de invierno, algo muy valorado.
Esta propiedad se vende en exclusiva con Bjurfors Costa Blanca y representa una oportunidad única de adquirir un hogar que aúna elegancia, funcionalidad y una de las mejores ubicaciones de la costa. Ideal tanto como refugio vacacional como para vivir cómodamente todo el año.
Contáctanos hoy mismo para más información o para concertar una visita. Este ático hay que vivirlo para apreciarlo.



Punta Prima, estratégicamente ubicada, se encuentra en la zona sur de la Costa Blanca, justo al sur de Torrevieja y a solo 40 minutos del aeropuerto de Alicante. Desde aquí, todo está cerca: se encuentra a poca distancia en bicicleta tanto del centro de Torrevieja como de las cercanas Playa Flamenca y La Zenia. Al igual que muchas otras urbanizaciones de la costa, Punta Prima se extiende desde el mar unos kilómetros tierra adentro y consta de varias zonas residenciales que surgieron desde la década de 1970 y que aún se encuentran en construcción. La zona cuenta con una buena combinación de parques, centros comerciales locales, numerosos restaurantes de calidad con diferentes tipos de cocina, cafeterías, etc.
La zona costera ofrece agradables paseos por su variada costa de extensas playas, calas y zonas rocosas. Si le apetece comer en el paseo marítimo, no deje de visitar el Restaurante Nautilus y el Restaurante Punta Prima, que le ofrecen la oportunidad de disfrutar de una comida junto al mar Mediterráneo.
Desde Punta Prima, ir en bicicleta es una forma cómoda de llegar al centro de Torrevieja. La zona portuaria de Torrevieja está a solo unos 4 km por el carril bici. Además, gracias al buen acceso a la N-332 y la AP7, se puede llegar fácilmente a las ciudades cercanas de Alicante, Cartagena o Murcia.
Agente responsable
Persona de contacto adicional