Page is also available in
Villa moderna con piscina privada en Ciudad Quesada
Rojales – Ciudad Quesada, Vega Baja
¡No te pierdas la casa de tus sueños! Ahora puedes suscribirte de forma rápida y gratuita a los anuncios de nuestras viviendas en España que se adapten a tus intereses y necesidades.
SuscribirseCasa reformada y con buen gusto, con tres dormitorios, tres baños, una parcela espaciosa y garaje de nueva construcción.
Aquí se presenta una elegante y moderna villa ubicada en la atractiva Ciudad Quesada, donde la luz y un ambiente mediterráneo relajado se combinan de la mejor manera.
La ubicación es muy ventajosa, con fácil acceso a todo tipo de servicios imaginables: el supermercado más cercano está a tan solo 100 metros, restaurantes, cafeterías y tiendas a unos 2 kilómetros, campos de golf a unos 3 kilómetros y playas de arena fina a unos 4 kilómetros, mientras que el aeropuerto de Alicante se encuentra a unos 40 kilómetros.
Ciudad Quesada es una zona popular y bien desarrollada que ofrece una amplia variedad de restaurantes, tiendas, un ambiente internacional y un buen servicio durante todo el año, a la vez que se encuentra cerca de la naturaleza, el golf y la costa, lo que la convierte en una zona igualmente atractiva tanto para la residencia permanente como para las vacaciones.
La casa fue construida en 2015 con un enfoque en el diseño moderno y la selección de materiales de calidad, lo que, junto con el excelente mantenimiento por parte del propietario actual, proporciona una vivienda en excelentes condiciones, lista para ser utilizada por los nuevos propietarios sin necesidad de realizar ninguna obra.
Al llegar, le recibirá un ambiente armonioso y espacios amplios, y el jardín orientado al sur con su terraza adjunta crea las condiciones perfectas para disfrutar de la vida al aire libre con sol durante la mayor parte del día, ya sea que desee disfrutar de momentos de tranquilidad junto a la piscina, reunirse con amigos para cenar bajo la pérgola o simplemente relajarse al calor.
La planta baja ofrece un salón luminoso y espacioso de planta abierta que da a una cocina moderna, donde grandes paneles de vidrio difuminan la frontera entre el interior y el exterior y conducen al jardín, donde la piscina climatizada de agua salada se convierte en un punto de encuentro natural.
En esta planta también hay dos amplios dormitorios y dos baños, uno de ellos en suite, con el mismo diseño elegante que el resto de la casa.
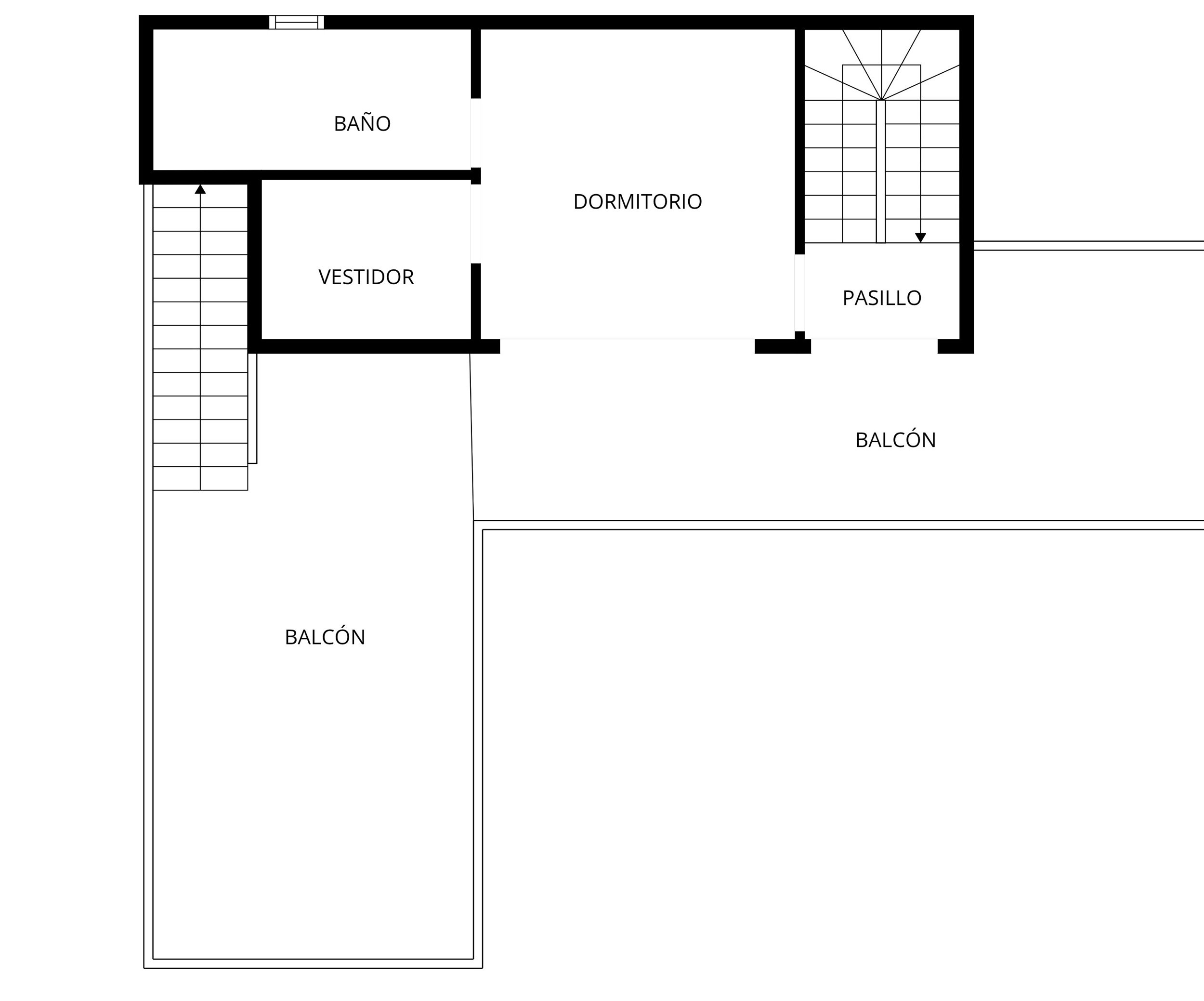
En la planta superior se encuentra el dormitorio principal con baño propio y un práctico vestidor con cerradura, además de acceso a una soleada terraza con vistas relajantes y hermosas de los alrededores y de los conocidos lagos salados.
En la planta superior encontrará una terraza privada en la azotea, equipada con paneles solares instalados en 2022, lo que contribuye a reducir los costes de funcionamiento y a crear un entorno de vida energéticamente eficiente.
La propiedad, recién pintada, también ofrece varias comodidades nuevas, como un garaje de nueva construcción desde 2025, un sistema de baterías conectado al sistema de paneles solares del mismo año, aire acondicionado con control centralizado que incluye refrigeración y calefacción, persianas eléctricas controladas por paneles solares y un sistema de purificación de agua.
Le invitamos a ponerse en contacto con nosotros en Bjurfors Costa Blanca hoy mismo para reservar una visita privada a esta hermosa vivienda.



Av. Guatemala - Res. Laguna Villas III
031 70 Vega Baja
Mostrar en Google Maps (opens in new tab/window)Agente responsable
Persona de contacto adicional