Modernt och stilfullt radhus med takterrass i det populära området Euromarina La Zenia Beach
La Zenia, Orihuela Costa
Missa inte din drömbostad! Nu kan du snabbt skapa en bevakning via vår kostnadsfria tjänst och få tips om bostäder i Spanien som passar just dina intressen och behov.
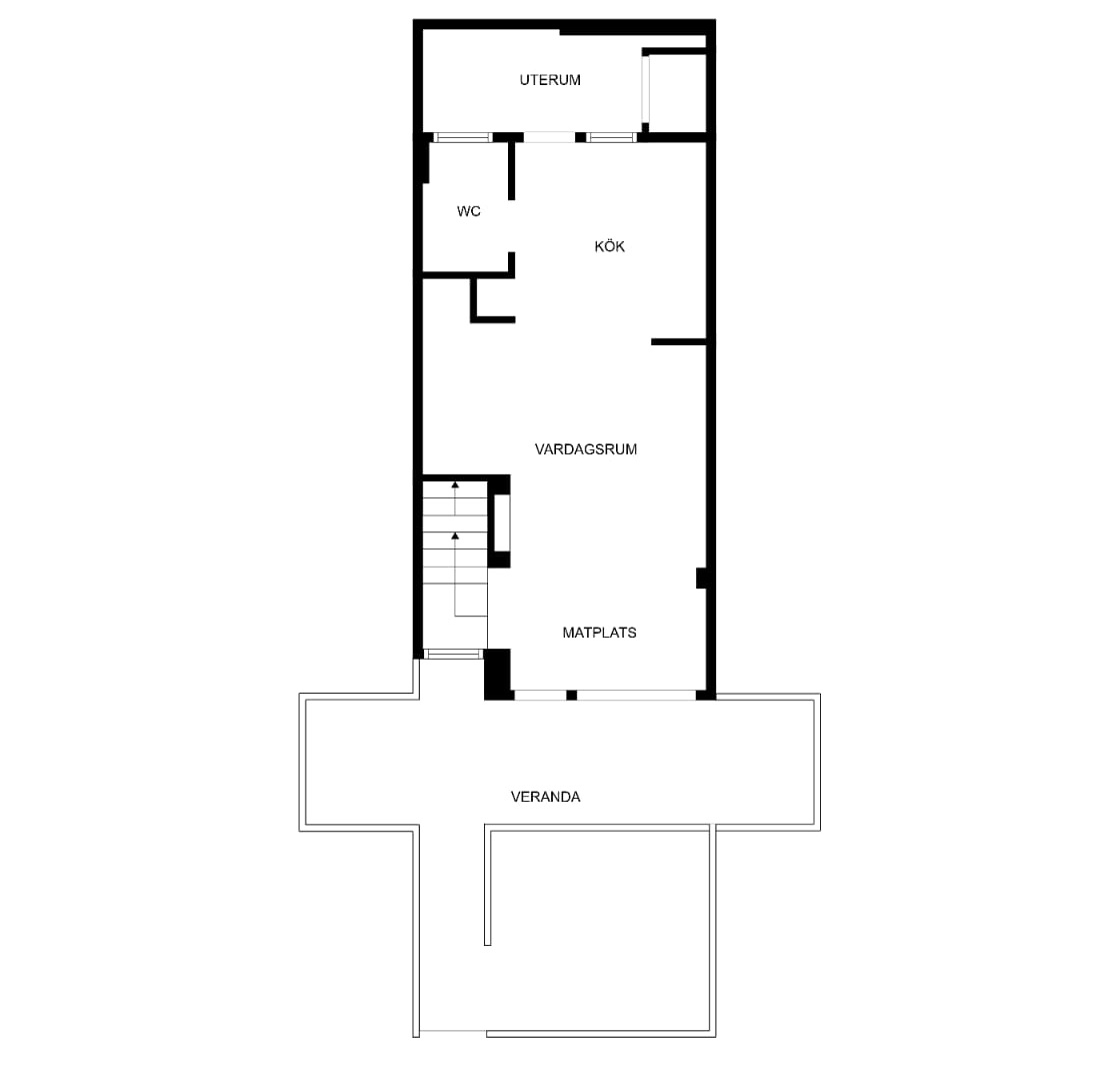
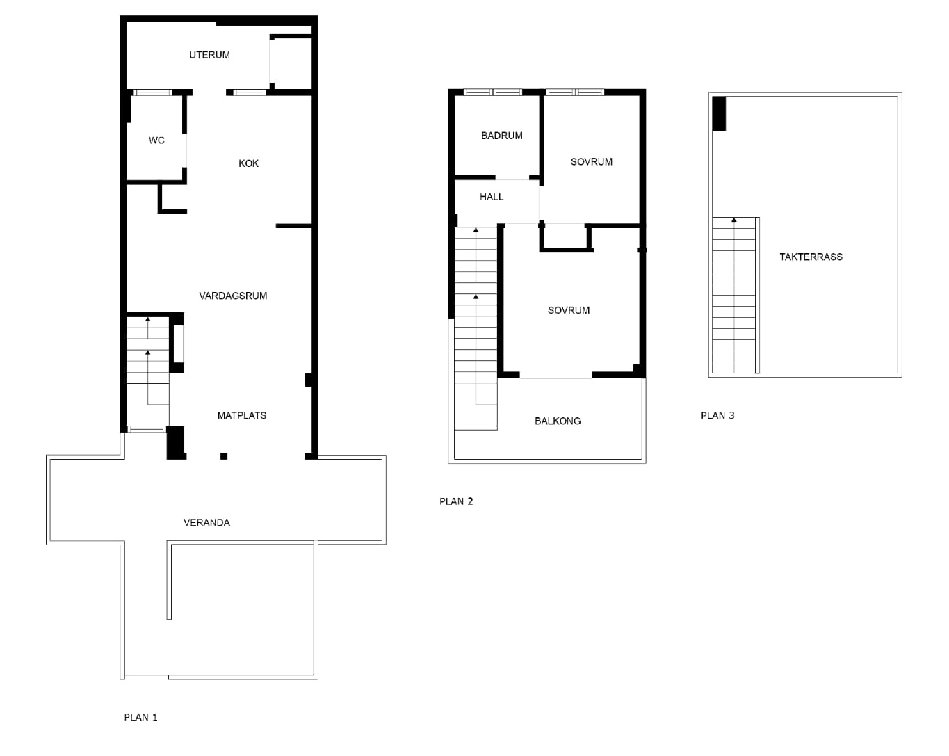
Skapa bevakningModern bostad med två sovrum, ett badrum, gästtoalett, parkering inne på området och ett inbjudande gemensamt poolområde.
Välkommen till detta fantastiska radhus som erbjuder en perfekt kombination av stil, komfort och ett oslagbart läge.
Radhuset är beläget i ett av de mest eftertraktade områdena på Costa Blanca, bara ett stenkast från det populära shoppingcentret La Zenia Boulevard. Här hittar du ett brett utbud av butiker, restauranger, caféer och all tänkbar service. Inom kort avstånd finns även stormarknader, apotek och hälsofaciliteter. För strandälskare ligger de vackra sandstränderna i La Zenia och Playa Flamenca endast en kort bil- eller cykeltur bort.
Bostaden har en modern och välplanerad planlösning med en öppen yta mellan vardagsrummet och det stilrena köket, vilket skapar en trivsam atmosfär för både avkoppling och socialt umgänge. Här finns även plats för ett matbord och en praktisk köksö med extra förvaring. Från köket leder en elegant glasdörr ut till en charmig patio, där du hittar tvättmaskinen och en uppfriskande utedusch. På entréplanet finns även en praktisk gästtoalett.
En trappa upp finner du två ljusa och rogivande sovrum med inbyggd förvaring och plats för dubbelsäng. Master bedroom har vackra glasdörrar som leder ut till en mysig balkong, perfekt för morgonkaffet i morgonsolen. Badrummet på detta plan är rymligt och stilfullt, med dubbelhandfat och en stor, modern dusch.
Denna bostad erbjuder hela tre utemiljöer att njuta av. På markplan har du en inbjudande uteplats för härliga frukostar och utanför entrédörren, en trappa upp, finns ytterligare en sittplats där du kan koppla av i morgonsolen. Från balkongen tar du dig vidare till den imponerande takterrassen, en plats med sol hela dagen och en underbar vy över området. Här finns gott om utrymme för solsängar, en loungegrupp och middagar under stjärnhimlen.
Bostaden är belägen inom ett privat och låst område med tillgång till parkeringsplatser för de boende. Hela urbanisationen är mycket välskött, och det gemensamma poolområdet, med sina två pooler omgiven av lummig grönska och palmer, bjuder in till avkopplande dagar med sol och bad i en rofylld miljö.
Missa inte chansen att uppleva denna underbara bostad, som Bjurfors Costa Blanca säljer exklusivt. Kontakta oss idag för mer information eller för att boka en visning.



Ett enastående poolområde med två pooler, lummiga grönområden och inbjudande umgängesytor.
Uteplats på markplan, en sittgrupp vid entrén en trappa upp samt en takterrass som gör det enkelt att njuta av det härliga spanska klimatet.
La Zenia är området för dig som vill vara mitt i smeten och ha gångavstånd till allt du kan tänkas behöva under din vistelse i Spanien. Gränsen mellan Playa Flamenca och La Zenia är ofta svår att peka ut, då områdena går in i varandra. Här har du liv året om med många bra restauranger, barer och inte minst Zenia Boulevards köpcentrum med sitt enorma utbud av 150 butiker, flera aktiviteter för barn och ett gediget urval av restauranger.
Läget är priviligierat med gångavstånd till flera härliga sandstränder som La Zenia Beach och Cala Capitán, och du har även närhet till grönområden och ett flertal golfbanor, däribland Villamartin, Campoamor, Las Ramblas och Las Colinas. Om du vill bo riktigt strandnära ska du titta närmare på La Zenias gamla delar på strandsidan om 332:an. Här präglas husen av spansk charm och fristående hus blandas med lägenheter och bungalows.
På andra sidan 332.an ligger centrum med lite nyare bostäder och fler radhusvarianter. De senaste åren har även en hel del nybyggnation tillkommit. La Zenia är ett bra alternativ, både för den som är ute efter ett åretruntboende eller den som planerar att besöka bostaden sporadiskt under året.
Från och till Alicantes flygplats tar du dig enklast via AP7.an och det tar ca 40 minuter.
Har du frågor kring att sälja eller köpa bostad i La Zenia? Tveka inte att kontakta våra mäklare i Torrevieja så hjälper vi gärna dig.
C/ Turquesa - Euromarina La Zenia Beach
03189 Orihuela Costa
Visa i Google Maps (öppnas i nytt fönster)Ansvarig mäklare
Extra kontaktperson