Intressant projekt med bra läge i Los Altos
Los Altos, Orihuela Costa
Missa inte din drömbostad! Nu kan du snabbt skapa en bevakning via vår kostnadsfria tjänst och få tips om bostäder i Spanien som passar just dina intressen och behov.
Skapa bevakningNybyggda lägenheter med två sovrum, rymliga terrasser och härlig utsikt i Los Altos
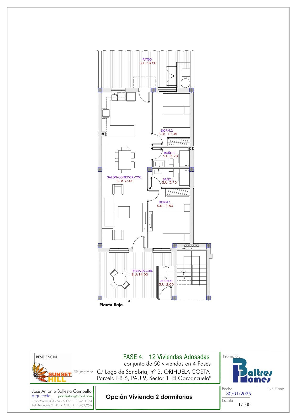
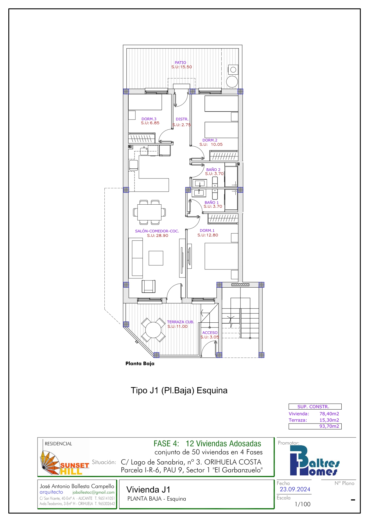
Bjurfors Costa Blanca presenterar Sunset Hill, ett mycket intressant projekt med totalt 50 nybyggda lägenheter. Här kan du välja mellan flera typer av fastigheter, där du kan hitta bottenvåningslägenheter med terrass och källare, översta våningslägenheter med takterrass och balkong eller lägenheter med balkonger, belägna i ett kvarter om 4 våningar.
Lägenheterna som hör till kvarteret har rymliga balkonger och de översta våningarna erbjuder även en solig takterrass. Alla bostader har en öppen planlösning mellan vardagsrum och kök, två rymliga sovrum med inbyggda garderober och två badrum, varav ett en-suite till huvudsovrummet.
Bostaderna levereras med installerad A/C genom kanaler, vitvarupaket, duschväggar i badrum, parkeringsplats och förråd.
Urbaniseringen kommer att erbjuda en mycket trevlig gemensam pool, trädgård, social yta med grill och toaletter, konferensrum och gym.
I närheten hittar du flera butiker, stormarknader och restauranger. Inom en kort bilresa kan du nå de vackra stränderna i Orihuela Costa och Torrevieja, samt den populära golfbanan Villamartin Golf.
Välkommen att kontakta Bjurfors Costa Blanca för mer information eller för att boka ditt besök!



*Juni 2024
Gemensam pool med grönområden
Orihuela Costa ligger på den södra kusten i provinsen Alicante, i regionen Vega Baja, i det område som kallas Södra Costa Blanca. Det är strandområdet i staden Orihuela, vars centrum ligger längre in i landet, cirka 35 kilometer från kusten.
Orihuela Costa gränsar i norr till Torrevieja och i söder till Pilar de la Horadada, vilket gör den till den sydligaste kommunen i provinsen Alicante.
Kommunen har blivit epicentrum för shopping tack vare köpcentret La Zenia Boulevard, vilket är det största i hela Alicante-provinsen, med ett brett utbud av shopping, restauranger och fritidsanläggningar, som lockar besökare från alla omgivande kommuner.
Orihuela Costa är även ett paradis för strandälskare, med inte mindre än 11 stränder och vikar längs dess 16 kilometer långa kustlinje. Den blå flaggan och dess turistkvalitetscertifiering har gjort det till den kommun med högst antal utmärkelser per kilometer kustlinje i hela Spanien.
Från norr till söder i kommunen kan du njuta av stränderna i Punta Prima, Cala Mosca och Cala Estaca (Playa Flamenca), Cala Cerrada och Cala Bosque (La Zenia), Cala Capitán och Playa de la Caleta (Cabo Roig), Calas de Aguamarina, Playa de La Glea och Playa de Barranco Rubio (Campoamor) och Playa de Mil Palmeras, som den delar med kommunen söder om Pilar de la Horadada.
Det är ett område med ett stort antal semesterhem och andraboenden vilket gör att befolkningen dubblas flera gånger om på sommarhalvåret, även om vi på senare år ser en trend med högre grad inflyttning av yngre permanentboende från hela Europa.
Har du frågor kring att sälja eller köpa bostad i Orihuela Costa? Tveka inte att kontakta våra mäklare i Torrevieja så hjälper vi gärna dig.
Ansvarig mäklare