Inbjudande radhus med privat pool i omtyckta Villamartin
Villamartin, Orihuela Costa
Missa inte din drömbostad! Nu kan du snabbt skapa en bevakning via vår kostnadsfria tjänst och få tips om bostäder i Spanien som passar just dina intressen och behov.
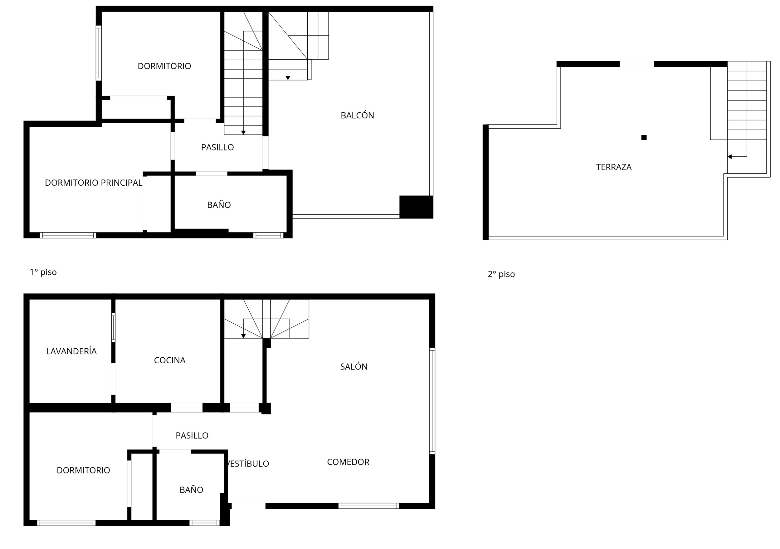
Skapa bevakningStilfull bostad med tre sovrum, två badrum, parkering på tomten samt flertalet uteplatser.
Här presenterar vi ett stilfullt och välplanerat radhus som på ett utmärkt sätt förenar komfort, funktionalitet och ett mycket attraktivt läge i hjärtat av Villamartin.
I närområdet finns ett brett utbud av restauranger, caféer, barer, livsmedelsbutiker, apotek och annan service som gör vardagen både enkel och bekväm. Villamartin Plaza, med sitt livliga torg och stora restaurangutbud, nås med en kort promenad. För större shoppingupplevelser ligger det populära köpcentret La Zenia Boulevard på bekvämt avstånd, med hundratals butiker, restauranger och nöjen.
För golfentusiasten är läget svårslaget, med flera välrenommerade golfbanor i direkt närhet, såsom Villamartin Golf, Real Club de Golf Campoamor och Las Ramblas. Den aktive har även tillgång till padelbanor, träningsanläggningar och vackra promenadstråk. Medelhavets kristallklara vatten och de fina stränderna längs kusten nås enkelt med bil eller cykel, och Torreviejas stadspuls med sitt rika utbud av kultur, shopping och nöjesliv ligger endast en kort bilresa bort.
Bostadens utomhusmiljöer är något alldeles extra. På entréplanet finns en inbjudande uteplats med privat pool, perfekt för avkopplande dagar i solen eller svalkande dopp under varma sommarkvällar. En trappa upp väntar en generös terrass med gott om plats för loungemöbler, och högst upp kröns hemmet av en rymlig takterrass. Här kan du skapa din egen oas med solstolar, matgrupp och kanske ett utekök, samtidigt som du njuter av solen från morgon till kväll och den öppna utsikten över omgivningarna.
Invändigt möts du av ett ljust och trivsamt vardagsrum med stora fönsterpartier som släpper in rikligt med dagsljus. Här finns gott om plats för både soffgrupp och matplats, vilket gör rummet till hemmets naturliga samlingspunkt. Köket är praktiskt utformat med generösa arbetsytor och smarta förvaringslösningar som gör matlagningen både enkel och inspirerande.
De tre sovrummen är placerade i lugna delar av huset och erbjuder en harmonisk atmosfär med fint ljusinsläpp. Samtliga rum har plats för säng, sängbord och förvaring och lämpar sig väl för både familj och gäster. Bostaden disponerar två helkaklade badrum, varav det ena är utrustat med badkar för avkopplande stunder och det andra med dusch. Båda badrummen har toalett och handfat i tidlös design.
Parkering finns antingen på den privata tomten eller ute på gatan.
Detta hem, som säljs av oss på Bjurfors Costa Blanca, passar lika bra som permanentboende som semesterbostad. Kontakta oss gärna redan idag för mer information eller för att boka en visning.



Trevlig privat pool på tomten
Villamartin som ligger strax söder om Playa Flamenca har under en lång tid varit ett attraktivt område för Skandinaver och Nordeuropéer. Mycket tack vare de många golfbanorna i området är det ett grönt, vackert, trivsamt och väletablerat område med en blandning av villor, radhus och lägenheter samt ett stort utbud av restauranger och caféer. Det finns ett flertal mindre shoppingcenter som erbjuder den service du behöver, oftast på gångavstånd.
Ett av våra mest populära områden i Villamartin heter Los Dolses, där vi har förmedlat många bostäder genom åren. Främst beror det på det priviligierade läget, då detta är området i Villamartin som ligger närmast havet men också för att det är relativt nya bostäder med ljusa materialval som marmor och vita PVC-fönster byggda i med mycket charm i spansk stil. Detta kombinerat med flera grönområden och all service på gångavstånd gör det svårt att inte tycka om.
Närheten till de fyra populära golfbanorna Campoamor, Villamartin, Las Ramblas och Las Colinas är ingen nackdel för den som gillar att spela golf. Ett flertal stränder finns på 5-10 minuters bilväg bort såsom Playa Flamenca, La Zenia, Cabo Roig och Campoamor - med andra ord ett stort antal möjligheter att njuta av Medelhavets vågor och sanddynor.
Villamartin Plaza är torget där det händer! Här är det alltid liv och rörelse och det gäller att vara ute i god tid till middagen om du inte bokat bord på någon av de många restaurangerna. Väl värt ett besök om inte annat för att insupa atmosfären och kanske få en skymt av de fina papegojorna högt uppe i palmerna.
En annan mycket trivsam del av Villamartin är området omkring köpcentrumet La Fuente. Här finns flera nybyggda (men färdiga) projekt och även här är det alltid mycket folk i rörelse. Ett belgiskt bageri, en vinbar och ett gediget utbud av barer och restauranger, samt flera mataffärer mitt emellan Campoamors och Las Ramblas golfbana och vidsträckta grönområden gör det till ett attraktivt område både för permanentboende såväl som semesterfirare.
Ansvarig mäklare
Extra kontaktperson