Stilrent parhus med egen pool i Urb. Entre Golf i populära Villamartin
Villamartin, Orihuela Costa
Missa inte din drömbostad! Nu kan du snabbt skapa en bevakning via vår kostnadsfria tjänst och få tips om bostäder i Spanien som passar just dina intressen och behov.
Skapa bevakningTilltalande bostad med två sovrum, ett badrum, en toalett, parkering på tomten och tillgång till ett välskött gemensamt poolområde.
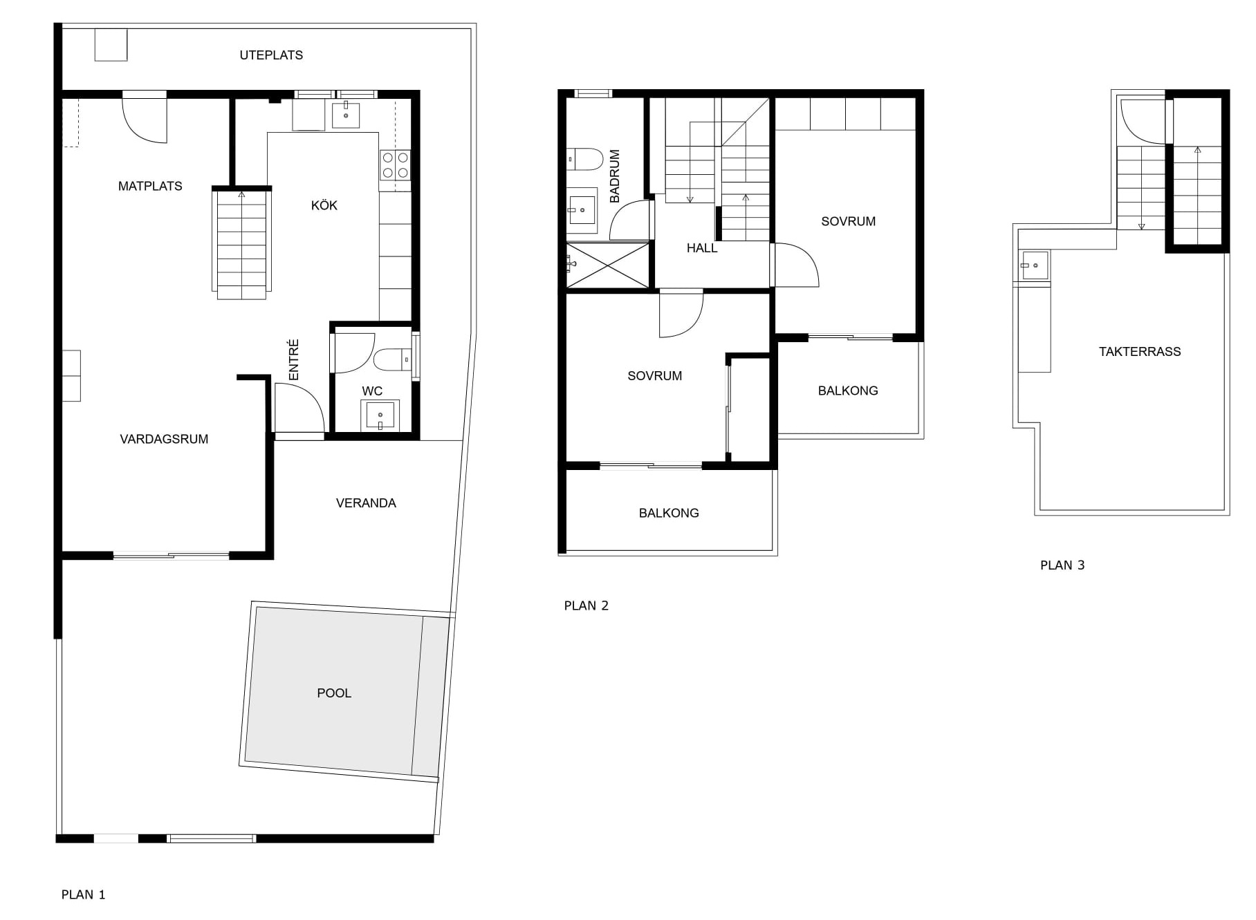
Välkommen till detta välskötta och stilfulla parhus i charmiga Entre Golf – en av Villamartíns mest uppskattade och lugna urbanisationer. Här erbjuds en perfekt kombination av komfort, funktionalitet och medelhavsliv, och bostaden passar lika bra som permanentboende som semesterhem.
Du bor med egen privat pool, ett soligt och lättskött trädgårdsutrymme samt möjlighet till parkering inne på tomten. För dig som föredrar enkelhet finns även gott om smidig parkering längs gatan precis utanför huset.
Bostaden är strategiskt belägen på populära Calle Navia – en lugn gata med närhet till all tänkbar service. Inom kort gångavstånd finns mataffärer, restauranger, caféer, apotek och bussförbindelser. Villamartín Plaza och La Fuente – två av områdets mest livliga och populära mötesplatser – ligger bara några minuter bort. Dessutom når du flertalet golfbanor, däribland Villamartín Golf, samt stränderna vid Orihuela Costa på bara en kort bilfärd.
Huset nås både via en traditionell ytterdörr och genom stora glaspartier från vardagsrummet, vilket suddar ut gränsen mellan inne och ute och ger ett underbart ljusinsläpp i bostadens hjärta.
På entréplan möts du av ett rymligt vardagsrum i öppen planlösning med en generös matsalsdel – perfekt för middagar och umgänge med familj och vänner. Flera grannar har valt att göra om matsalsdelen till ett extra sovrum – möjligheterna är många.
Det praktiska köket i vinkel är utrustat med träfärgade skåpsluckor, gott om förvaringsutrymme och arbetsytor – perfekt för dig som uppskattar matlagning. Här finns även en gästtoalett, diskret placerad för maximal integritet.
Från matsalsdelen tar du dig vidare ut till en trevlig patiodel, där även tvättmaskinen är praktiskt placerad. Härifrån har du direkt tillgång till poolområdet och vidare ut mot husets framsida – en mycket funktionell och uppskattad detalj.
En trappa upp finner du två rymliga dubbelrum, båda med inbyggda garderober och varsin privat balkong – idealiska för att börja morgonen med en kopp kaffe eller avsluta dagen i kvällssolen. Det ljusa, helkaklade badrummet är modernt inrett med dusch, fräscha ytskikt och stilrena detaljer.
Ytterligare en trappa upp väntar en underbar takterrass med vidsträckt utsikt över området – ett riktigt smycke i bostaden. Här finns diskho, grillplats och utrymme för solstolar, loungemöbler eller middagsbord. Detta är den perfekta platsen för att njuta av solen hela dagen, omgiven av det rofyllda lugnet som präglar Entre Golf.
Förutom den privata poolen har du även tillgång till urbanisationens gemensamma poolområde, som ligger bara ett stenkast bort. Det är mycket välskött, med riktigt gräs, parasoller och generösa ytor för umgänge. Här kan du njuta av en simtur i lugn och ro eller möta grannar för en trevlig pratstund i solen.
Detta är ett boende som tilltalar både permanentboende och semesterfirare, och det säljs exklusivt genom oss på Bjurfors Costa Blanca. Kontakta oss redan idag för att ta del av den utmärkta planlösningen och det attraktiva läget!



Egen privat och inbjudande pool samt tillgång till ett gemensamt, välskött poolområde i närområdet.
Flera trevliga uteplatser samt två balkonger där du kan njuta av det spanska klimatet året runt.
Villamartin som ligger strax söder om Playa Flamenca har under en lång tid varit ett attraktivt område för Skandinaver och Nordeuropéer. Mycket tack vare de många golfbanorna i området är det ett grönt, vackert, trivsamt och väletablerat område med en blandning av villor, radhus och lägenheter samt ett stort utbud av restauranger och caféer. Det finns ett flertal mindre shoppingcenter som erbjuder den service du behöver, oftast på gångavstånd.
Ett av våra mest populära områden i Villamartin heter Los Dolses, där vi har förmedlat många bostäder genom åren. Främst beror det på det priviligierade läget, då detta är området i Villamartin som ligger närmast havet men också för att det är relativt nya bostäder med ljusa materialval som marmor och vita PVC-fönster byggda i med mycket charm i spansk stil. Detta kombinerat med flera grönområden och all service på gångavstånd gör det svårt att inte tycka om.
Närheten till de fyra populära golfbanorna Campoamor, Villamartin, Las Ramblas och Las Colinas är ingen nackdel för den som gillar att spela golf. Ett flertal stränder finns på 5-10 minuters bilväg bort såsom Playa Flamenca, La Zenia, Cabo Roig och Campoamor - med andra ord ett stort antal möjligheter att njuta av Medelhavets vågor och sanddynor.
Villamartin Plaza är torget där det händer! Här är det alltid liv och rörelse och det gäller att vara ute i god tid till middagen om du inte bokat bord på någon av de många restaurangerna. Väl värt ett besök om inte annat för att insupa atmosfären och kanske få en skymt av de fina papegojorna högt uppe i palmerna.
En annan mycket trivsam del av Villamartin är området omkring köpcentrumet La Fuente. Här finns flera nybyggda (men färdiga) projekt och även här är det alltid mycket folk i rörelse. Ett belgiskt bageri, en vinbar och ett gediget utbud av barer och restauranger, samt flera mataffärer mitt emellan Campoamors och Las Ramblas golfbana och vidsträckta grönområden gör det till ett attraktivt område både för permanentboende såväl som semesterfirare.
Ansvarig mäklare
Extra kontaktperson