Page is also available in
Rymligt radhus med gott om uteplatser och gemensamt poolområde
Rojales – Ciudad Quesada, Vega Baja
Missa inte din drömbostad! Nu kan du snabbt skapa en bevakning via vår kostnadsfria tjänst och få tips om bostäder i Spanien som passar just dina intressen och behov.
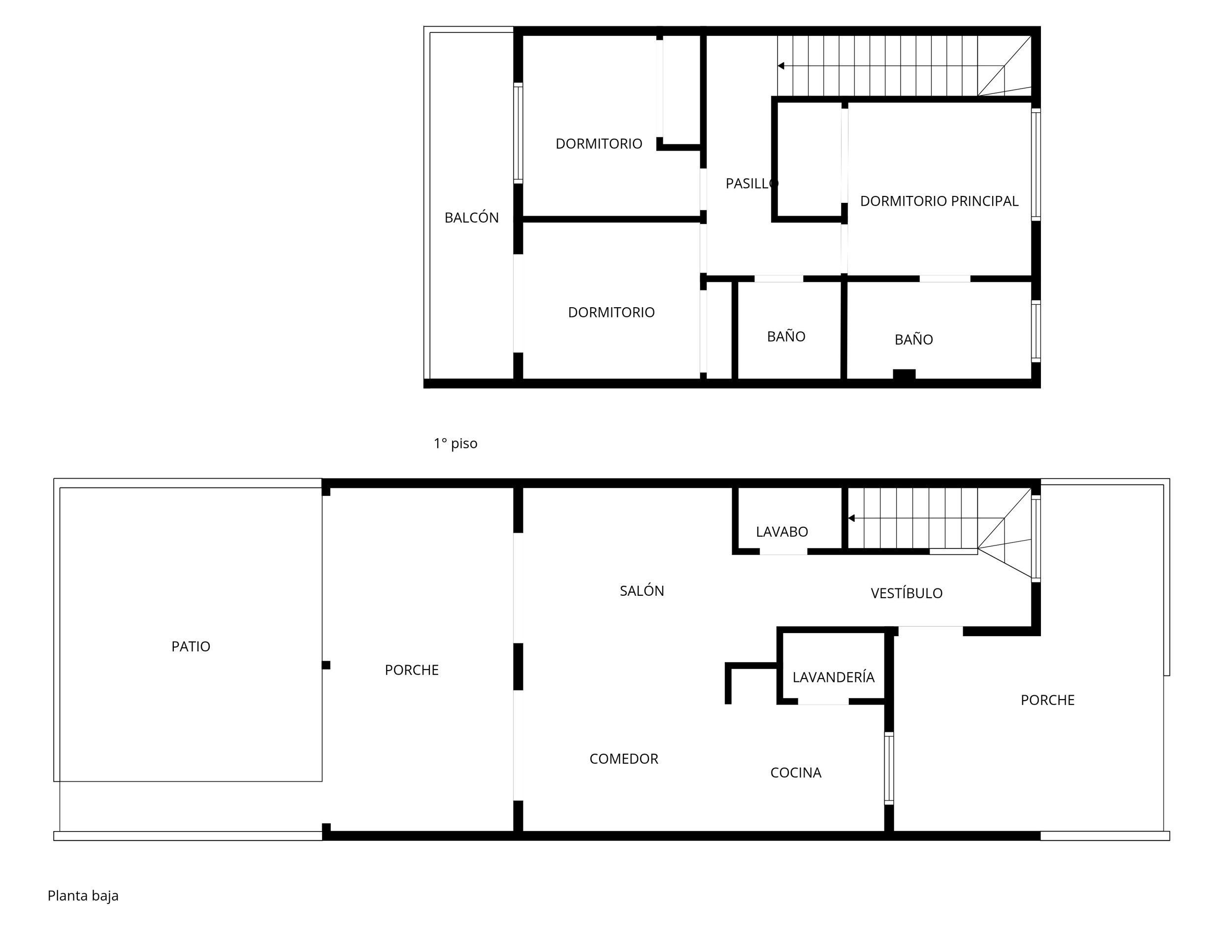
Skapa bevakningInbjudande radhus bestående av tre sovrum, två badrum och en toalett, flertalet rymliga uteplatser samt mysigt och grönskande gemensamt poolområde.
Strategiskt placerat på ett hörn i en lugn del av populära Ciudad Quesada finner vi detta rymliga radhus med tre sovrum, två badrum och en gästtoalett. Bostaden erbjuder generösa uteplatser på markplan både framför och bakom huset – och på en av dem finns dessutom plats för bilparkering. En trappa upp väntar en rymlig balkong med utsikt över det grönskande och gemensamma poolområdet.
Vardagsrum och matsal har fina ytor samt stora glaspartier som vetter mot en av de privata uteplatserna. Planlösningen är delvis öppen mot det välutrustade köket. På entréplanet ligger även bostadens gästtoalett.
På övre plan finns de tre sovrummen, två kompletta badrum samt den härliga balkongen.
Till bostadsområdet hör ett stort och lummigt poolområde som skapar en trivsam miljö för både avkoppling och sociala stunder.
Serviceutbud, matbutiker och övriga bekvämligheter nås på bara några få minuters promenadavstånd, och goda vägförbindelser finns såväl norrut som söderut.
För mer information om detta trevliga hörnradhus är ni varmt välkomna att kontakta oss på Bjurfors Costa Blanca.



Trevligt gemensamt poolområde omgivet av grönska
Privat uteplats på markplan såväl framför som bakom bostaden samt en balkong en våning upp
Ciudad Quesada i Rojales kommun ligger söder om Alicante och en och en halv mil norr om Torrevieja. Den charmerande orten var ursprungligen en traditionell by i ett lantbruksområde. Idag finner vi här en fin kombination av äldre och modern arkitektur och det är ett väl fungerande samhälle i sig med tillgång till skola, vård och omsorg.
Quesada är rent och snyggt med många fristående villor och radhus. Här blandas nationaliteter från hela världen, men främst många fastboende spanjorer. Det finns ett stort utbud av saker att se och göra; allt från restauranger och butiker till golfbana och Aquapark. Quesada angränsar till två mycket trevliga spanska byar vilka är Benijófar och Rojales, vilket ger en mer genuin spansk känsla till området. Det finns även flera vandringsleder runt omkring vilket inbjuder till aktivitet. Närheten till allt gör Quesada till ett mycket attraktivt ställe att både bo permanent och semestra på.
Den fantastiska stranden i Guardamar ligger fem till tio minuter bort med bil. Här kan ni njuta av stränder som Moncayo vilken räknas som en av Costa Blancas vackraste och längsta. Badet är barnvänligt utan stenar och med plats för lekplatser, fotboll och beachvolley. Det är en av de få stränder där du kan få lite mer privat utrymme även på sommaren, då det som regel är väldigt mycket folk på samtliga stränder.
Från Quesada tar det endast 30 minuter till Alicante flygplats via AP7.an och det finns inga betalstationer på den sträckan.
Har du frågor kring att sälja eller köpa bostad i Ciudad Quesada? Tveka inte att kontakta våra mäklare i Alicante eller Torrevieja så hjälper de gärna dig.
Av. Jerez de la Frontera - Lagunas de Sol
03170 Vega Baja
Visa i Google Maps (öppnas i nytt fönster)Ansvarig mäklare
Extra kontaktperson