Radhus i nyskick med takterrass, havsutsikt & centralt läge
Capistrano Village, Nerja kommun
Missa inte din drömbostad! Nu kan du snabbt skapa en bevakning via vår kostnadsfria tjänst och få tips om bostäder i Spanien som passar just dina intressen och behov.
Skapa bevakningNyproducerat av hög kvalitet, med garage & poolområde
Exklusivt med Bjurfors. Detta moderna och rymliga radhus av hög standard ligger i ett nytt område byggt 2021 med endast 14 hus. Bekvämt beläget bara en kort promenad från Nerjas centrum och stränder.
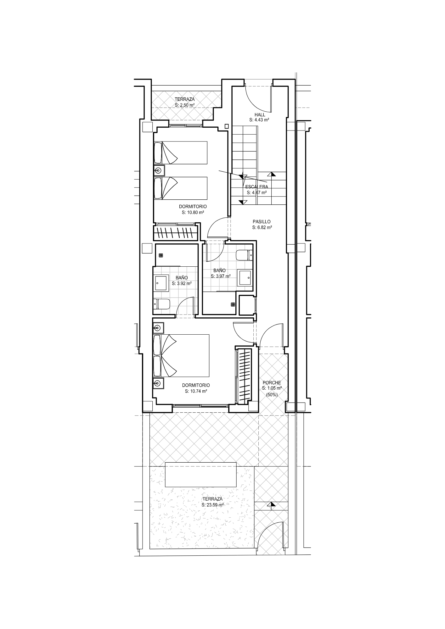
Entrén har en terrassyta på 23 kvm, och denna våning har två sovrum med inbyggda garderober samt två badrum, båda ensuite. Elektriska jalusier.
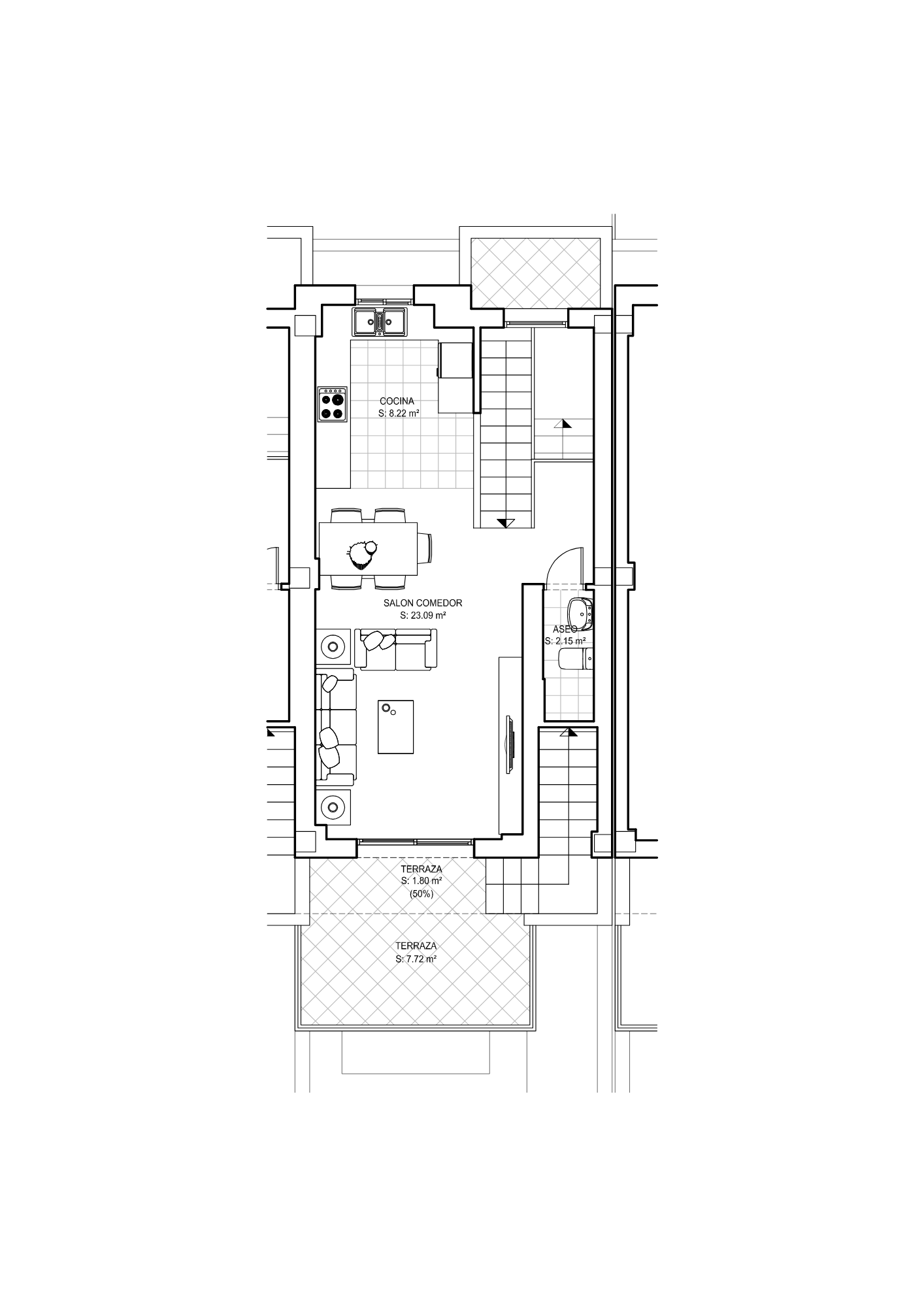
På första våningen finns det ljusa vardagsrummet med öppen planlösning och kök, samt en gästtoalett. Vardagsrummet öppnar upp mot en södervänd terrass på 10 kvm med havsutsikt och elektrisk markis. Härifrån leder trappan upp till den stora takterrassen. Denna yta på 40 kvm bjuder på spektakulär 360-graders utsikt över havet och bergen. Det är förinstallerat för en jacuzzi.
I källaren finns tvättmaskin och torktumlare, gott om förvaring samt kylskåp. Garaget har plats för upp till två bilar. Möjlighet finns att göra ytterligare ett sovrum.
Huset har ett Smart hemsystem med central AC/värme, golvvärme, elektriska persienner och videoporttelefon. Uthyrningslicens är möjlig.
Föreningen har ett härligt poolområde med solstolar och en jacuzzi. Det finns gott om parkeringsplatser.
Vi berättar gärna mer om bostaden, och hos oss kan du även gå på digital visning.
Visste du att Bjurfors har tillgång till hela utbudet av bostäder till salu på Costa del Sol? Kontakta oss så hjälper vi dig att hitta din drömbostad, helt kostnadsfritt.



Källarplan
Entréplan
Övre plan
Takterrass
Capistrano Village är ett pittoreskt bostadsområde med äkta andalusisk bykänsla. Det är ett av Nerjas mest eftersökta område att köpa bostad tack vare sin vita arkitektur och balkonger med smidesjärn, subtropiska trädgårdar och kullerstensgränder. Utbudet av bostäder består av lägenheter, radhus och villor. Att äga fastighet här medför goda uthyrningsmöjligheter.
Här finns två välskötta poolområden inklusive barnpool, restaurang, en mindre bar och en liten mataffär. Är man intresserad av padel eller tennis finns det flera banor i närheten där man kan spela matcher året runt. Med bil tar man sig till den populära stranden Burriana på 5 minuter, alternativt promenerar på runt 15 minuter. Till Nerja centrum är det gångavstånd.
Ansvarig mäklare