Page is also available in
Unik duplex-takvåning precis vid medelhavet och Playa del Cura i Torrevieja
Torrevieja Centro, Torrevieja
Missa inte din drömbostad! Nu kan du snabbt skapa en bevakning via vår kostnadsfria tjänst och få tips om bostäder i Spanien som passar just dina intressen och behov.
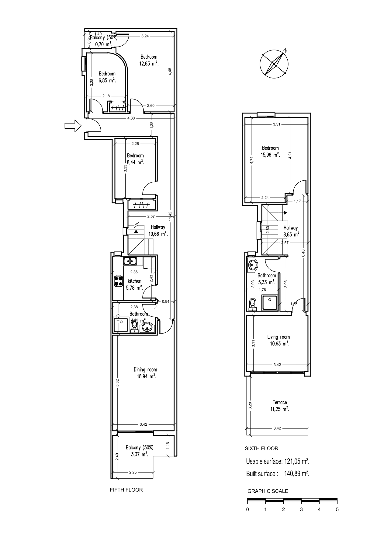
Skapa bevakningOtrolig duplex-takvåning bara några få steg från medelhavet med hela fyra sovrum, två badrum samt balkong och takterrass med delvis havsutsikt.
Med ett fantastiskt läge, bara ett stenkast från den populära Playa del Cura och det glittrande Medelhavet i hjärtat av Torrevieja, finner vi denna mycket unika duplex-takvåning med både balkong och en rymlig takterrass med delvis havsutsikt.
Bostaden är genomtänkt planerad och erbjuder på entréplan tre sovrum samt ett uppdaterat badrum med duschkabin. Här finns även ett separat, välutrustat kök och ett ljust, inbjudande vardagsrum med direkt utgång till en mysig balkong med tak där Medelhavet skymtar till vänster.
Den breda trappan som leder upp till övervåningen är praktiskt utrustad med ett förråd – perfekt för exempelvis strandtillbehör, resväskor eller städutrustning.
På övervåningen möts vi av ett stort huvudsovrum med goda förvaringsmöjligheter samt bostadens andra badrum, även detta med duschkabin. Här finns dessutom ett inglasat uterum med gott om plats för bland annat en matgrupp. Uterummet leder vidare ut till den soliga takterrassen, utrustad med grill och loungegrupp – en idealisk plats för att njuta av långa, ljumma sommarkvällar. Från terrassen har man dessutom en trevlig vy mot Medelhavet mellan de omgivande lägenhetshusen.
Båda uteplatserna vetter mot syd-sydväst och erbjuder rikligt med sol från morgon till kväll.
Bostaden är i mycket gott skick och erbjuder genomgående ventilation, nymålade väggar samt A/C som både värmer och kyler efter behov.
För mer information om denna välskötta och unika takvåning är ni varmt välkomna att kontakta oss på Bjurfors Costa Blanca!



Mysig balkong från vardagsrummet med havsutsikt såväl som inglasat uterum och takterrass högst upp, även här med havsutsikt
Den mest kända semesterorten söder om Alicante är Torrevieja som har förvandlats från en gammal fiskeby till en modern mellanstor stad under de senaste decennierna. Med drygt 100 000 invånare har Torrevieja mångdubblat sin population de senaste 30 åren. Här finns förutom fina sandstränder, badvikar och vackra strandpromenader ett stort urval av affärer, restauranger och barer samt ett rikt nattliv.
Torrevieja ligger 36 km söder om Alicantes flygplats och människor från hela världen har lockats hit av olika anledningar, främst det hälsosamma klimatet med 320 soldagar om året, men även de möjligheter som ett mångkulturellt turistparadis ger. Här finns allt man kan behöva för att leva och bo året om och även om det finns många utländska invånare här, är det fortsatt en myllrande spansk stad med trånga gator och flera små torg.
I den norra delen av Torrevieja, ligger Torre La Mata som kan skryta med sin långa strandpromenad kantad av restauranger och uteställen. Här bor du med direkt närhet in till stan, men slipper befinna dig mitt i myllret. Här kan vi erbjuda alla typer av bostäder i alla möjliga prisklasser – Norra delen av Torrevieja har verkligen något för alla!
Söder om staden efter Mar Azul ligger viken Cala Ferris; vilken erbjuder en fin kontrast till allt runt omkring. Inramat av palmer med små gyllene sanddyner, är detta ett ställe att njuta av en lugn simtur i det kristallklara vattnet eller något att dricka på Restaurante Ferris med terrassen precis bredvid havets skvalpande vågor.
Har du frågor kring att sälja eller köpa bostad i Torrevieja? Tveka inte att kontakta våra mäklare i Torrevieja så hjälper de gärna dig.
Ansvarig mäklare