Som Miami men i Malaga
Malaga stad, Malaga
Missa inte din drömbostad! Nu kan du snabbt skapa en bevakning via vår kostnadsfria tjänst och få tips om bostäder i Spanien som passar just dina intressen och behov.
Skapa bevakningInflyttningsklart, sista lägenheten
Exklusivt projekt i samarbete med Antonio Banderas
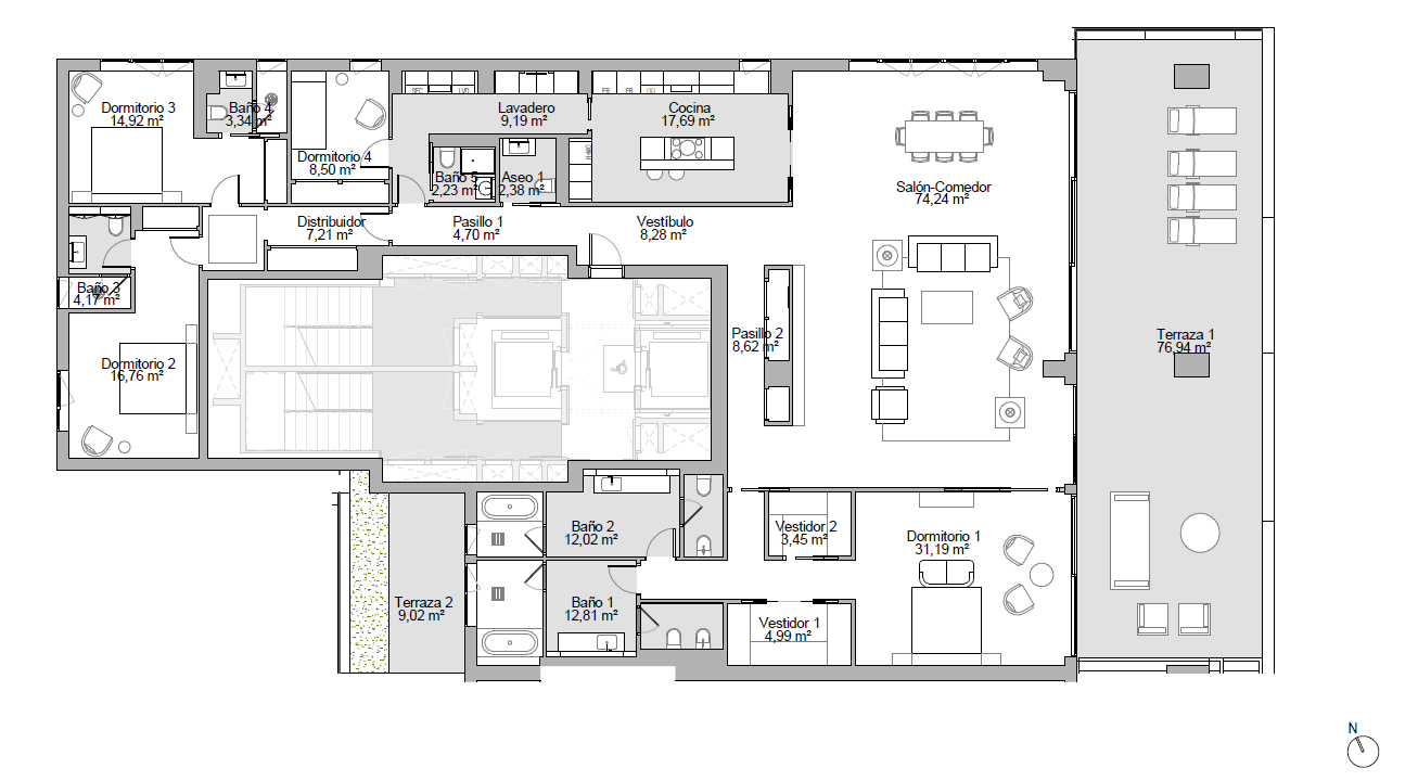
Vi presenterar en unik möjlighet att förvärva den sista lägenheten med 4 sovrum och 5 badrum, samt en gästtoalett, i detta prestigefyllda projekt.
Belägen på våning 19, erbjuder denna bostad en stor terrass på 99 m² med fantastisk havsutsikt, perfekt för middagar med nära och kära.
Lägenheten omfattar totalt 316 m² och är designad för att maximera utsikten och komforten.
Malaga Towers består av tre torn med 21 våningar och cirka 70 lägenheter per torn, alla med modern design, hög säkerhet och förstklassiga faciliteter. Här får du en exklusiv boendeupplevelse direkt vid stranden, i en stad som ständigt utvecklas och är full av liv, konst och kultur.
Miss denna unika chans att bli en del av ett projekt som kombinerar lyx, säkerhet och oöverträffad livskvalitet.
Kontakta oss idag för mer information och visning.
Du vet väl att Bjurfors har tillgång till hela utbudet av bostäder till salu på solkusten, så tveka inte att kontakta oss så hjälper vi dig att hitta din drömbostad.



Tre pooler, en uppvärmd och två utomhus varav en infinity med poolbar. Utöver detta finns spa, gym, co-working, massagerum och lekrum för barn.
Man kan kalla Malaga för Costa del Sols huvudstad. Det är den näst största staden i provinsen Andalusien efter staden Sevilla och Spaniens 6:te största stad med ca 600.000 invånare. På Malagas flygplats landar man när man vill besöka solkusten, och det går tåg direkt från flygplatsen till centrum vilket tar ca 15 minuter. I Malaga finns anrik historia, museer, en gammal mysig stadskärna, moderna shoppingkvarter och massor av barer och caféer.
Den mest kända stranden i Malaga heter Playa de la Malagueta, och är båda fin och lång men flera strandrestauranger.
I Malaga tar man sig lättast fram gående. Själva kärnan är det äldsta kvarteret i Malaga där floden Rio Guadalmedina är gränsen åt väster och hamnen åt söder och berget åt öster. Väster om floden ligger tåg- och busstationerna. Mitt i gamla stan ligger den kända gågatan Marquéz de Larios, på denna gata finns många butiker, så som Mango, Massimo Dutti, Desigual m.m. Vidare finner du mängder med restauranger och barer runt de små gränderna i gamla stan.
Ett område som blivit ett av de populäraste på senaste år är SoHo Art District, som ligger mellan gamla stan och havet. Soho är ett livligt och kreativt område bestående av alternativkultur och har uppstått till stor del tack vare CAC (Centro de Arte Contemporáneo). Området är fullt av kaféer, restauranger, gallerier och är känt för sin graffiti och gatukonst.
Det tar ca 15 minuter med bil till Malagas flygplats.