Exklusiv takvåning med utsikt över den rosa saltsjön i Los Balcones
Los Balcones, Torrevieja
Missa inte din drömbostad! Nu kan du snabbt skapa en bevakning via vår kostnadsfria tjänst och få tips om bostäder i Spanien som passar just dina intressen och behov.
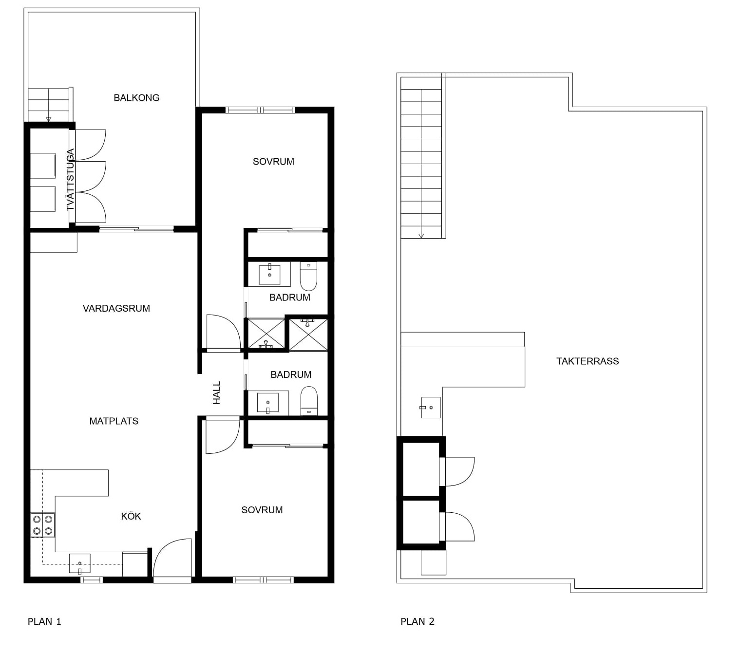
Skapa bevakningModern bostad med två sovrum, två badrum (varav ett en suite), balkong, takterrass och inbjudande gemensamt poolområde.
Välkommen till denna exklusiva takvåning i det eftertraktade området Laguna Beach i Los Balcones, strax söder om Torrevieja – ett boende där varje detalj är noggrant utvald för att skapa en harmonisk och elegant livsstil i en miljö som förenar modern arkitektur med naturens skönhet.
Området är uppskattat för sin natursköna omgivning, sitt lugna tempo och den goda tillgången till service. Här bor du granne med Laguna Rosa, den unika rosa saltsjön som skiftar färg beroende på ljuset och sägs ha hälsobringande egenskaper. I närheten finns både vandrings- och cykelleder, naturreservat och utsiktsplatser – perfekt för dig som värdesätter natur och frisk luft.
Samtidigt har du nära till allt du behöver. I området finns restauranger, caféer, mataffärer, apotek och vårdcentral – allt inom bekvämt avstånd. Du tar dig enkelt till stränderna i Torrevieja och Punta Prima, liksom till flera golfbanor i närområdet. Kommunikationerna är goda, oavsett om du kör själv eller föredrar kollektivtrafik.
Redan vid entrén till denna bostad, belägen en trappa upp, möts du av en känsla av rymd och ljus. Den öppna planlösningen mellan kök och vardagsrum ger ett luftigt och inbjudande intryck, där blicken naturligt dras mot den stora balkongen och den grönskande växtväggen – en levande konstinstallation som förhöjer helhetsintrycket.
Köket är ett riktigt smycke med ljusa träfärgade luckor, svart stenskiva och generös förvaring. Här finns gott om plats för matbord – perfekt för både vardagsmiddagar och sociala tillställningar. De stora skjutbara glaspartierna släpper in rikligt med dagsljus och förstärker den varma, inbjudande atmosfären.
De två sovrummen är varsamt inredda i harmoniska färgtoner och har platsbyggda garderober som optimerar förvaringen utan att kompromissa med stilen. De två badrummen – båda med dusch och golvvärme – håller genomgående hög standard med stilrena materialval, smarta lösningar och sobert färgsatta ytor.
Från vardagsrummet når du den generösa balkongen med utsikt över det vackra gemensamma poolområdet. Här samsas parasoller, gröna växter och loungemöbler med stora sociala ytor – en perfekt plats för att njuta av solen, ta ett dopp eller umgås med grannar och vänner.
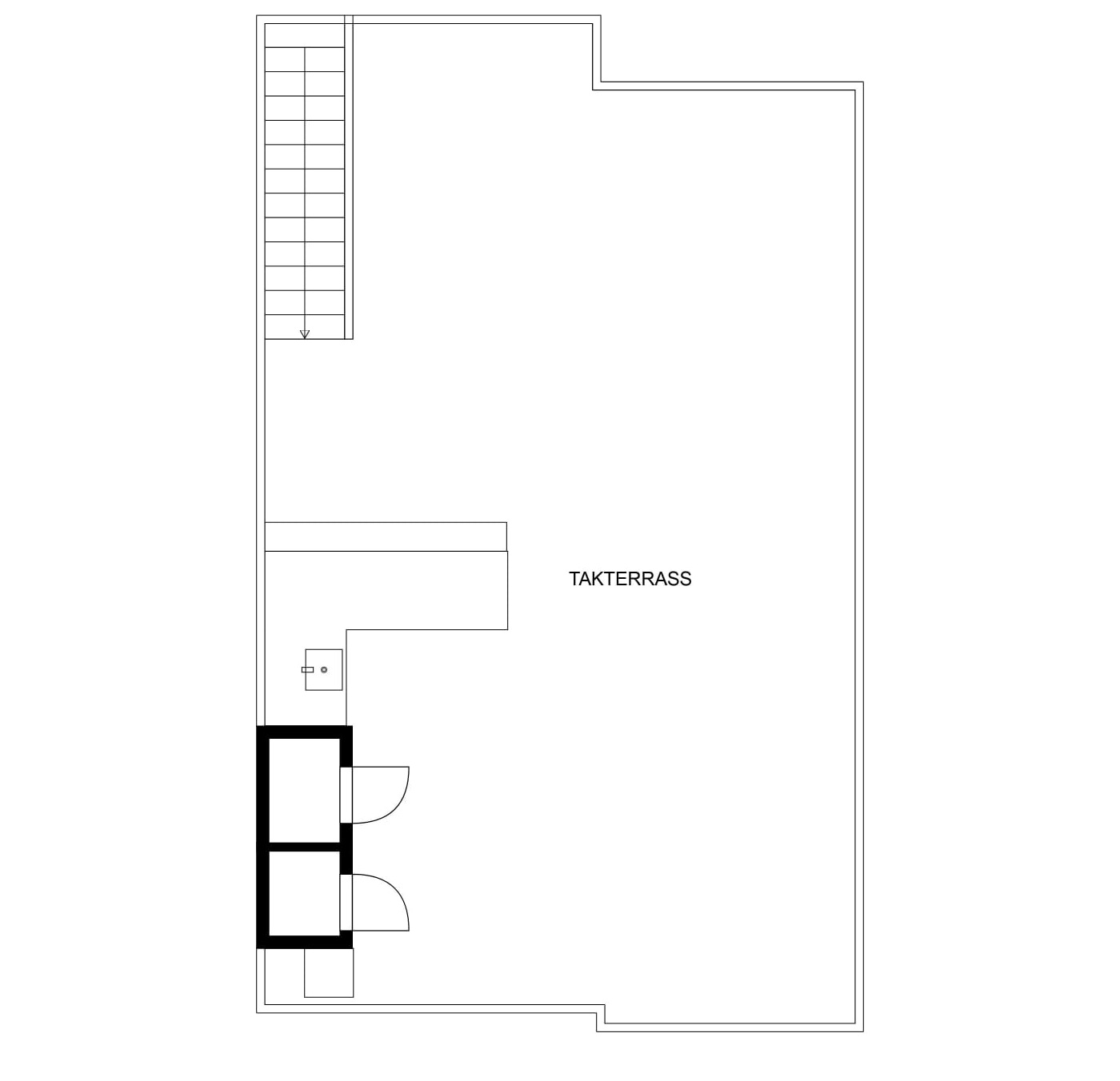
Bostadens verkliga hjärta är dock den privata takterrassen en trappa upp – en sann dröm för livsnjutare. Härifrån har du en enastående utsikt över den rosa saltsjön, apelsinodlingarna och det vackra landskapet som omger området. Den generösa ytan rymmer både en stor loungegrupp, matplats för middagar under stjärnorna och ett komplett utekök med bland annat diskmaskin och full uppsättning husgeråd – allt för att göra al fresco-måltider till en njutning. Här finns även smart förvaring för dynor och tillbehör, vilket gör det enkelt att hålla ordning och skydda möblerna mot väder och vind.
Till bostaden hör dessutom en egen parkeringsplats samt ett förråd i ett underjordiskt garage – en bekvämlighet som förenklar vardagen.
Detta är mer än bara ett boende – det är en plats för avkoppling, gemenskap och livskvalitet. En takvåning för dig som inte vill kompromissa med estetik, funktion eller läge.
Kontakta oss på Bjurfors Costa Blanca idag för mer information eller för att boka en visning.



Vackert och trivsamt poolområde med stora umgängesytor
Mysig balkong med vy över poolen samt en ansenlig takterrass med panoramautsikt över saltsjön och närområdet
Los Balcones är ett genuint, spanskt villaområde bara några kilometer från centrala Torrevieja. Här finns det en blandning av arkitektoniska stilar som präglar villorna och ger en unik känsla till området.
Området ligger högt och många av bostäderna har en fin utsikt över saltjöarna och/eller havet. I Los Balcones har många sina primära bostäder vilket gör att området är väl befolkat året runt.
Det finns breda huvudgator som ramar in ett fint parkområde, med olika avdelningar för barn stora och små. Det finns även en tennisklubb med fina grusbanor i området.
Nära till bostäderna finns välsorterade supermarkets som Dialprix och Mercadona samt ett flertal restauranger och barer. Torreviejas sjukhus ligger bara ett par minuter bort i bil från Los Balcones.
De närmaste stränderna är Playa Naufragos i Torrevieja och Punta Prima stranden. Det är även en kortare biltur till de mysiga äkta spanska byarna San Miguel de Salinas och Los Montesinos.
Har du frågor kring att sälja eller köpa bostad i Los Balcones - Los Altos? Tveka inte att kontakta våra mäklare i Torrevieja så hjälper de gärna dig.
Ansvarig mäklare
Extra kontaktperson