-
Köpa
Köpa -
Sälja
Sälja - Hitta bostad
- Skapa bevakning
- Hitta mäklare
Morup, Falkenberg
Välkommen till en unik havsnära gård mellan Varberg och Falkenberg – ett avskilt läge där strandängar möter ett öppet hav. Här ges en sällsynt möjlighet att leva nära naturen på stora ytor, utan insyn, med frihet att utveckla gården efter dina egna drömmar och behov.
En enkel allé leder ned från vägen och öppnar upp mot en charmig gårdsplan med flera välhållna ekonomibyggnader. Här finns stall, dubbelgarage, verkstad, lada, förråd, uterum och gästhus – en gård med stora möjligheter. Med totalt 15 hektar mark skapas perfekta förutsättningar för hästhållning, lantlig verksamhet, olika projekt eller helt enkelt ett liv med generösa ytor och frihet. På gården har det tidigare funnits både får och hästar. På fastigheten finns möjlighet till jakt på småvilt och sjöfågel.
Bostadsbyggnaden, även den välskött och välunderhållen, har generösa sällskapsytor, flera sovrum varav ett är ett master bedroom med eget badrum, ett rejält lantligt kök samt vackra eldstäder som skänker både trivsel och karaktär. Här finns gott om plats för såväl vardagsliv som festliga tillställningar.
Läget på västkusten kan inte bli bättre – mellan Göteborg och Malmö, på kommungränsen mellan Varberg och Falkenberg nära service, natur, hav och motorväg. Perfekt för dig som pendlar, med smidiga förbindelser norrut mot Göteborg och söderut mot Köpenhamn oavsett om du åker tåg eller bil.
Här kan du flytta in direkt eller så väljer du att skapa ett boende helt efter dina önskemål – oavsett om du drömmer om en gård med djur, ett rofyllt sommarställe eller ett året runt-boende i naturskön miljö.
Upplev årstidernas skiftningar och låt dig omfamnas av det öppna landskapet – och det öppna havet - detta är livskvalitet på riktigt.
Byggnader:
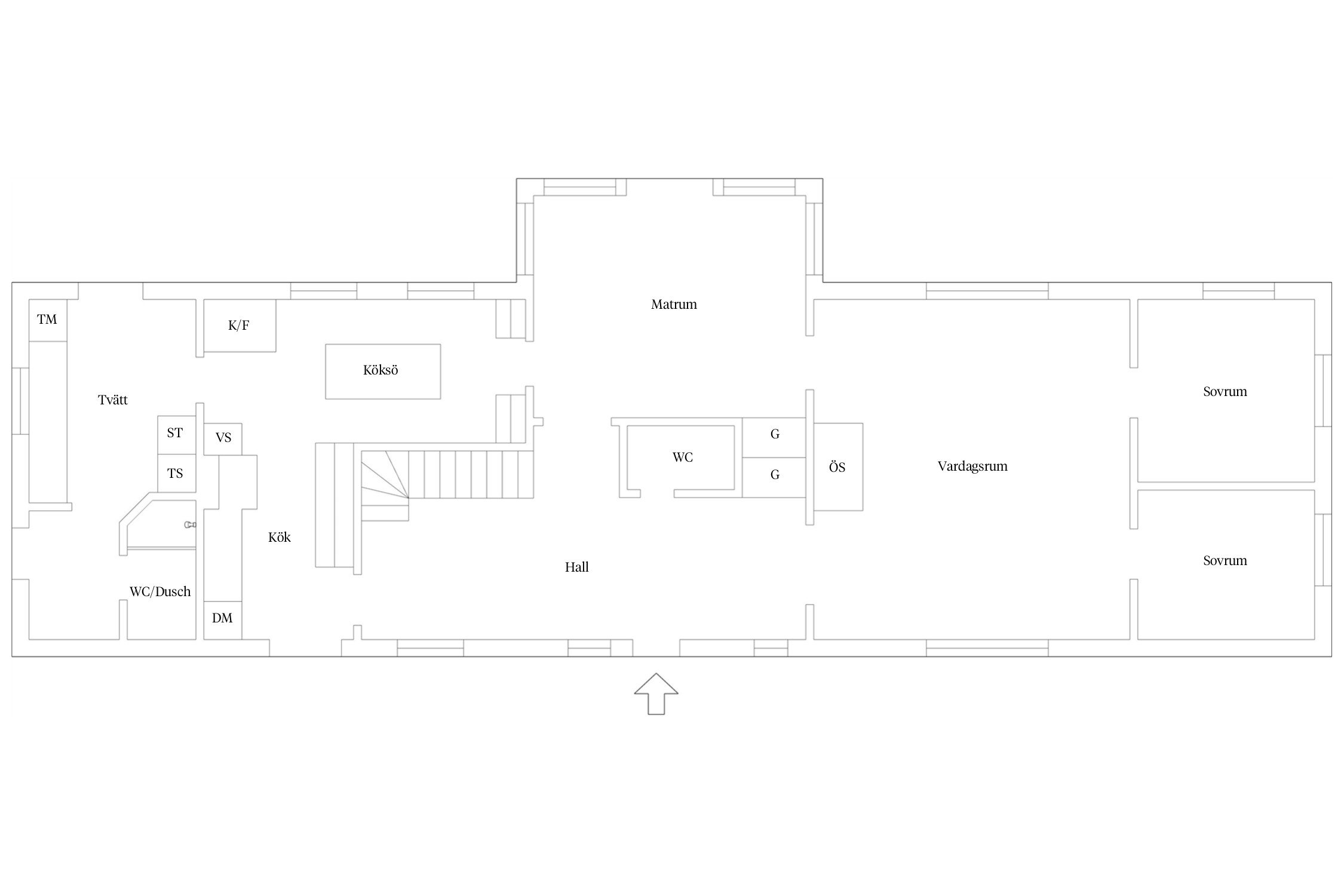
Bostadshus om 7 ROK. Entréplan med stor möblerbar hall med klinkergolv och gäst-wc. Lantligt kök med altandörr ut till gården, klassiskt med vita skåpsluckor, vedspis, köksö, rostfria vitvaror. Tvättstuga/groventré med klinkergolv, arbetsbänk och god förvaring, tvättmaskin, torkskåp och städskåp. Badrum med dusch. Stor matsal med altandörrar. Vardagsrum med öppen spis och stor yta för socialt umgänge. Två sovrum.
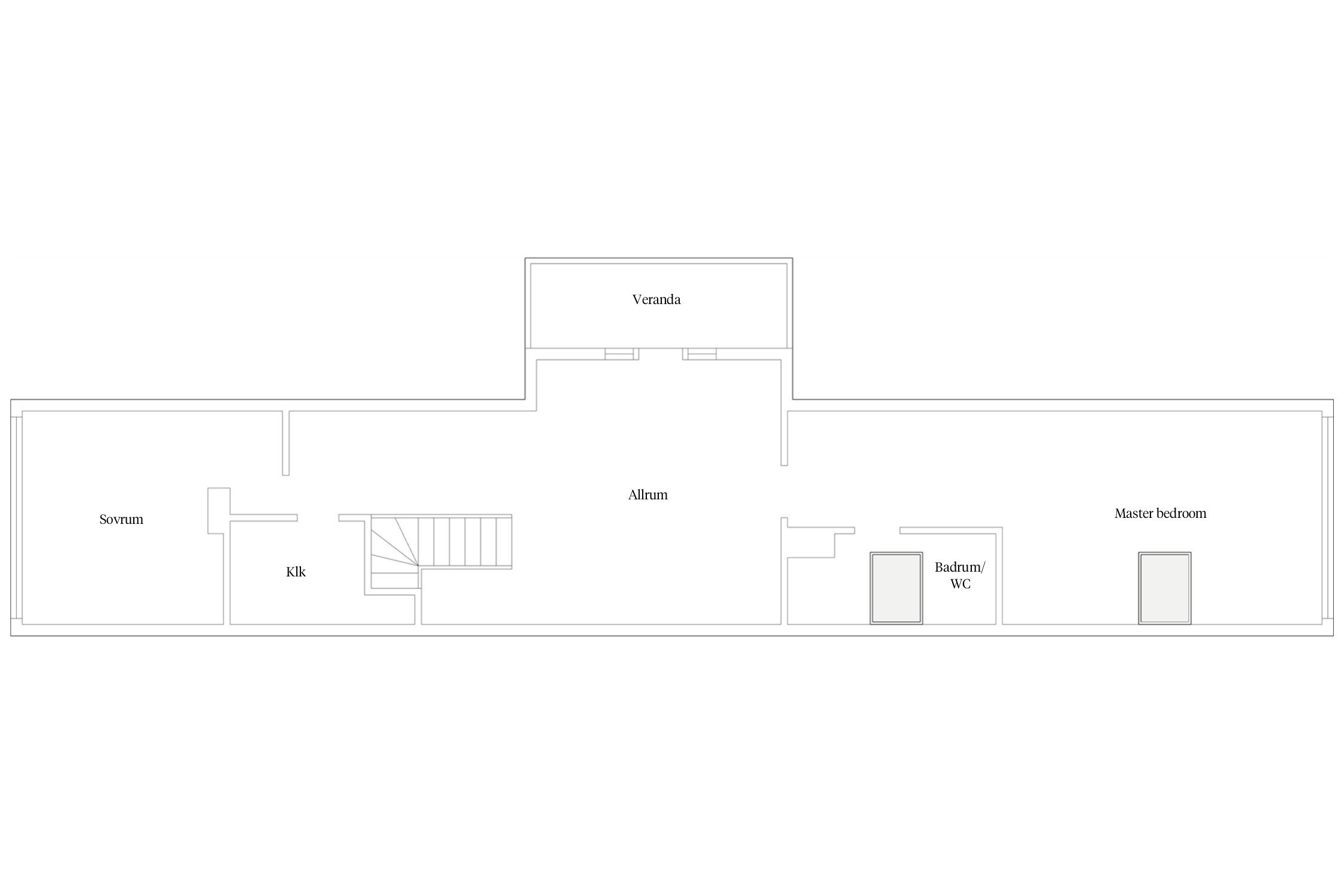
En trappa upp finns allrum med utgång till balkong. Ett större sovrum och ett master bedroom med eget badrum.
Lada/ekonomibyggnad ca 120 kvm flexibla ytor med uterum och trädäck mot havet.
Stall/ekonomibyggnad ca 210 kvm innehållande stall, sadelkammare, loge, förråd och garage.
Dubbelgarage med förråd/snickarbod ca 80 kvm.
Gästhus ca 16 kvm.
Förråd med ”lösdrift".
Tillträde efter överenskommelse
Privat bokade visningar.
Fastigheten säljs med friskrivning för eventuella fel och brister. Säljarna är dock skyldiga att redovisa de fel och brister som de känner till.
Ansvarig mäklare
Extra kontaktperson



Planritning entréplan
Planritning andra våning
Stallbyggnad
Ekonomibyggnad med uterum
Morups-Grytås 2:16
Kommunalt vatten med egen anslutning samt eget avlopp med 3-kammarbrunn.
Tomtarea 1000 m².
Parkering med elbilsladdare. Dubbelgarage
Vägplan (2018-08-28) Natura 2000-område (2004-04-01)
Samfällighet: Falkenberg morup s:24
Samfällighet: Falkenberg morup s:25
Samfällighet: Falkenberg morups-grytås s:2
Samfällighet: Falkenberg morups-grytås s:3
Samfällighet: Falkenberg morups-grytås s:6
Samfällighet: Falkenberg morups-grytås s:7
Samfällighet: Falkenberg morups-grytås s:8
Samfällighet: Falkenberg morups-lyngen s:16
Samfällighet: Falkenberg morups-lyngen s:17
Skattetal: mantal 55/216
Last: Ledningsrätt Avlopp, 1382-12/55.2
Last: Ledningsrätt Vatten, 1383-98/58.1
Posten uppvärmning avser både el och värme. Försäkring: Hemförsäkring 6000 kr/år, lantbruk 6000 kr/år
Intäkter: Arrende 15 000 kr/år, bete 9000 kr/år. Elprisområde 3.
Driftkostnader och elförbrukning är inhämtade från säljaren och bör endast ses som en uppskattning. Kostnaderna kan variera och baseras på förbrukning och avtal.
Areal: 4 ha.
Areal: 11 ha.
Mangårdsbyggnaden totalt ombyggd och renoverad 1993-1996. Därefter löpande underhåll och renoveringar bl.a kök och badrum. Ekonomibyggnader renoverade och löpande underhållna.
Det finns 4 st pantbrev uttagna om sammanlagt 1 010 000 kr
Lada ekonomibyggnad ca 120 kvm, flexibla ytor med uppvärmt uterum och trädäck mot havet
Stall/ekonomibyggnad ca 210 kvm, stall, sadelkammare, loge, förråd och garage
Dubbelgarage med förråd/snickarbod ca 80 kvm, uppvärmt
Gästhus, ca 16 kvm
Förråd med lösdrift
Falkenberg erbjuder havet med de långa sandstränderna, skogen och de många sjöarna, stadens gemyt och Ätradalens öppna landskap. I Falkenberg kan man också ta del av det stora utbud av evenemang, nöjen och aktiviteter som finns här. Extra glädjande är att Du hittar Sveriges största utflyktsmål i Falkenberg - Gekås Ullared. I Falkenberg är man mycket stolta över sin kommun.
Falkenberg har småstadens charm, turistortens rika utbud av boende och aktiviteter och inlandets välkomnande naturrikedom. Ätran rinner som en livsnerv genom kommunen.
Kommunen har ca 41 000 invånare och är den till ytan största kommunen i Halland.
Köpa, sälja eller värdera bostad i Falkenbergs kommun? Kontakta våra mäklare i Falkenberg! Passa också på att anmäla dig till vår kostnadsfria söktjänst Boagenten som hjälper dig att hitta ditt drömboende.
Vi har ett nära partnerskap med SEB Private Banking för att ge dig det bästa affärsläget. Som Private Bankingkund hos SEB får du ett individuellt erbjudande och en personlig kontakt som ser till helheten utifrån dina finansiella behov.
Kontakta mäklaren om du behöver hjälp med en boendekalkyl. När du köper din bostad genom Bjurfors kan du ansöka om bolån till en förmånlig ränta hos vår samarbetspartner SEB.
Med en bred lokal närvaro i Sverige, ett internationellt nätverk, samt ett eget register med aktiva intressenter och investerare – har vi förutsättningar att matcha rätt bostad med rätt köpare.
SE ALLA BOSTÄDER BJURFORS BEYOND