-
Köpa
Köpa -
Sälja
Sälja - Hitta bostad
- Skapa bevakning
- Hitta mäklare
Lomma
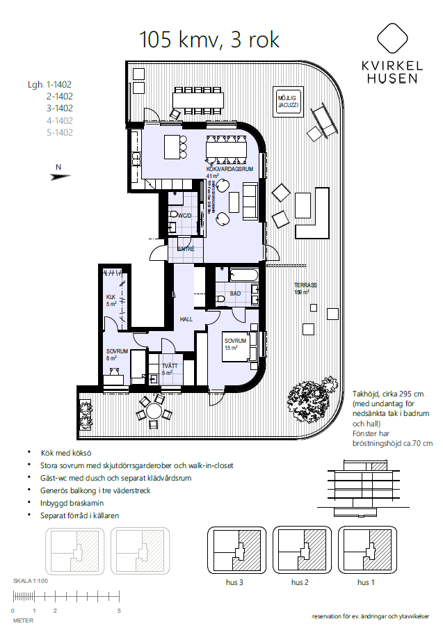
Här bor du i höjd med trädtopparna. Den generösa takterrassen om 159 m² ger en trädgårdskänsla med möjlighet att skapa olika miljöer på olika delar av terrassen. Våningen är planerad med en mer privat sovrumsdel och en väl tilltagen sällskapsdel, där kök och vardagsrum bjuder in till allt från större bjudningar till sköna kvällar i soffan. Våningen är fördelad på 3 rok om 105 m².
Du som besökt Lommas långa sandstrand vet hur vackert det är. Söderut ligger båthamnen med Öresundsbron i fonden. Höje å ramar in åt öster och naturskyddade dammar avgränsar mot norr. Nu kan det bli din hemmaplan, din plats på jorden.
Läs mer på hemsidan: https://lommanorra.se/kvirkelhusen
Läs mer i broschyren här: https://epaper.webtopsolutions.com/epaper.asp?id=1625742
Ansvarig mäklare



Takterrassen om 159 m²
Bostadsrättens indirekta nettoskuldsättning baseras på föreningens skulder/lån minus föreningens räntebärande tillgångar och likvida medel. Beräkningen är gjord och baseras på senaste tillgängliga årsredovisningen. För mer information kontakta ansvarig fastighetsmäklare.
Lomma är en tätort i Lomma kommun. Eftersom Lomma ligger vid mynningen till Höje å blev det redan under 1600-talet en naturlig plats för tull, omlastning och handel. Lomma är en blomstrande sommarort som speciellt under semestermånaderna drar mycket folk från de kringliggande kommunerna.
Varje sommar hålls en uppskattad folkfest i centrala Lomma med marknad, uppträdanden, tivoli, långlördag, utställningar, veteran- och sportbilsutställning, hantverksmässa, ponnyridning, konserter och mycket mer. För den som vill bada finns fina sandstränder och välskötta badplatser.
I Lomma centrum finns restauranger, fiskbod, bibliotek samt annan service som banker, apotek, vårdcentral, mataffärer och gym. Med en kort bil- eller bussresa kan du ta dig till större shoppingcenter som Burlövs Center och Nova Lund.
Landskapet i Lomma kommun är övervägande flackt och naturen präglas av det öppna landskapet och havet. Vacker natur finns framförallt i anslutning till stranden som till exempel området kring mynningen vid Lödde å och Alnarps ängar. Det kommunala naturreservatet Slättängsdammarna anses ha ett stort biologiskt och kulturhistoriskt värde. Tallplanteringarna Habo fure och Kyrkfuret bildar tillsammans ett större rekreationsområde med skogskänsla.
Alnarp är en mindre ort i Lomma kommun som också är säte för Sveriges lantbruksuniversitet, SLU. Här finns även den fantastiskt vackra botaniska trädgården i Alnarpsparken samt Alnarps slott som byggdes 1862. Området ligger som en grön oas mitt i det skånska landskapet. Strax intill ligger Alnarpsgården med lantbruksmuseum och undervisningslokaler. Nära byn ligger Alnarps restaurang, som förutom lunch och á la carte även erbjuder en mängd trevliga och uppskattade events som ostprovningar, temaveckor och studentfirande. Från Lomma går flera olika busslinjer och tåg, så att du lätt kan pendla till både Malmö och Lund.
Vill du köpa, sälja eller värdera bostad i Lomma kommun? Välkommen att kontakta Bjurfors mäklare i Lomma / Bjurfors mäklare i Bjärred. Passa också på att anmäla dig till vår kostnadsfria söktjänst Boagenten som hjälper dig att hitta ditt drömboende.
Strandfuregatan - Kvirkelhusen Etapp 1, lgh 2-1402
234 34 LOMMA
Visa i Google Maps (öppnas i nytt fönster)Vi har ett nära partnerskap med SEB Private Banking för att ge dig det bästa affärsläget. Som Private Bankingkund hos SEB får du ett individuellt erbjudande och en personlig kontakt som ser till helheten utifrån dina finansiella behov.
Kontakta mäklaren om du behöver hjälp med en boendekalkyl. När du köper din bostad genom Bjurfors kan du ansöka om bolån till en förmånlig ränta hos vår samarbetspartner SEB.
Med en bred lokal närvaro i Sverige, ett internationellt nätverk, samt ett eget register med aktiva intressenter och investerare – har vi förutsättningar att matcha rätt bostad med rätt köpare.
SE ALLA BOSTÄDER BJURFORS BEYOND