-
Köpa
Köpa -
Sälja
Sälja - Hitta bostad
- Skapa bevakning
- Hitta mäklare
Friliggande villa från 1968 med ikonisk arkitektur, ljusa rumsvolymer och stort poolområde
Bellevue Sjösida, Malmö
Bjurfors Beyond presenterar ett stilsäkert renoverad 60-talsvilla om 280 kvm, åtta rum och skyddad utemiljö med pool, pergola, utekök och grönytor.
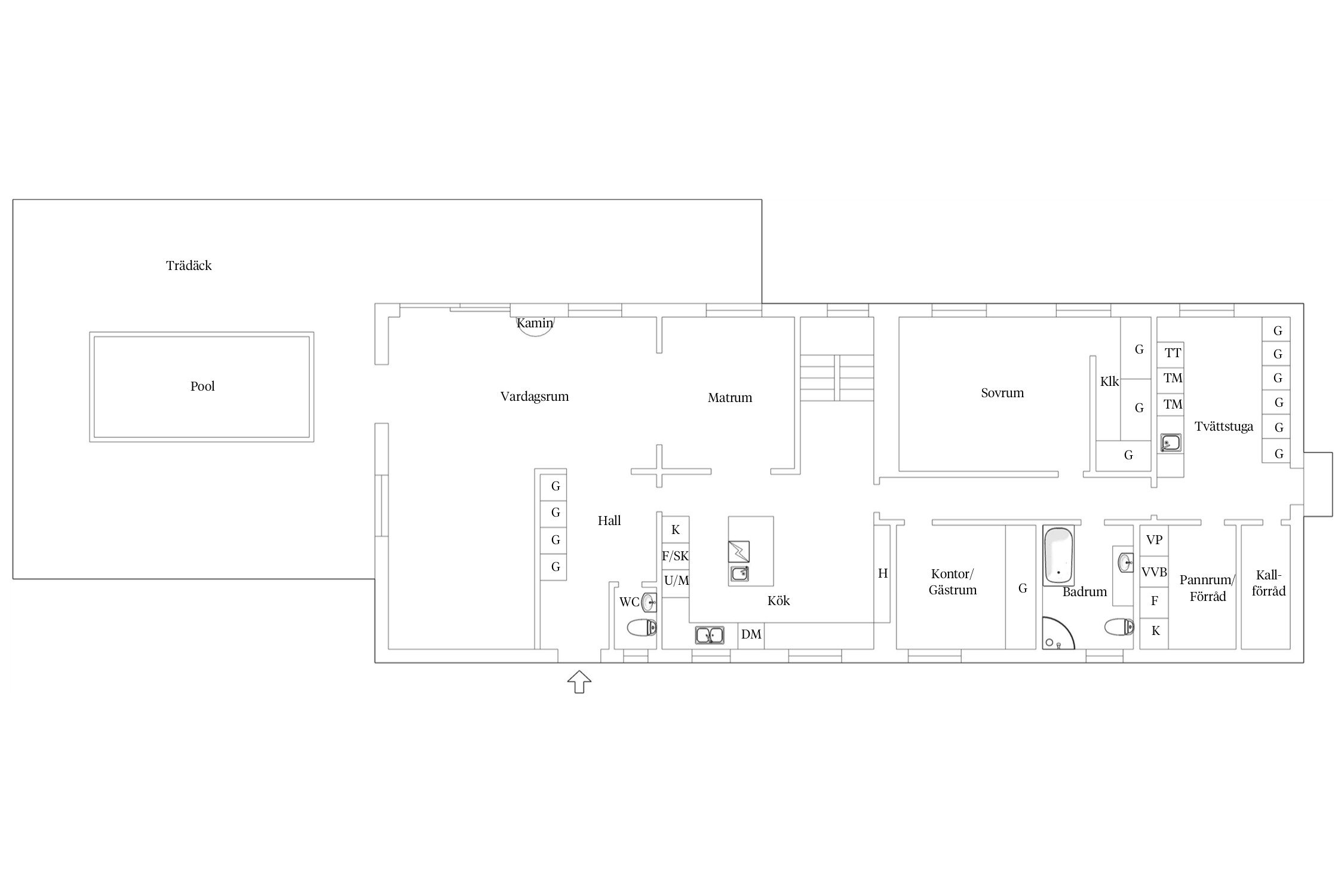
Den stora villan vänder sin vitputsade gavel under ljust tegeltak, ut mot gatan. Huset ligger långt in på tomten – grönska, vita träplank och en lerslammad tegelmur begränsar insynen till framsidans poolområde och det långa trädäcket.
När sommarkvällens skymning faller över det fridfulla villakvarteret, och poolbelysningen får vattnet att glittra i blått, går tankarna nästan till en klassisk resort. De L-formade sällskapsytornas omfattande skjutglaspartier står på vid gavel ut till trädäcket. I pergolan under tak är långbordet dukat och matlagningen är i full gång i uteköket. Den stora villan byggdes 1968 men har i omgångar renoverats. De tidlöst rena arkitekturlinjerna är bevarade men bostaden har ytterligare öppnats för ljus och fria parkettytor. Detaljer som teakdörrar, fönsterbrädor i natursten samt fiskbensparketter möter samtida design som skjutglaspartier och braskamin. På entréplanet är planlösningen till stor del öppen med stora sällskapsytor, matsal och nyskapat kök med inredning i massiv ek och arbetsytor i kalksten och svart granit. I köket tar ett oljat betonggolv över och fortsätter in i en inre hall som förbinder till arbetsrum, master bedroom-svit, sobert badrum och groventré med tvättstuga. På övre planet finns stort allrum, tre stora sovrum, en inre hall och nyskapat badrum. Övre planets breda fönsterkupor och glaspartier skapar en ljus atmosfär även på detta plan. Bostadens förvaring är exemplarisk med flertalet formrena garderobsväggar, flera förrådsrum, walk-in-closet, originalgarderober mm.
Välkomna att kontakta mäklare för visning.
Parkera på uppfarten med handhuggen gatsten och plats för flera bilar. Dubbla träportar leder in till poolområdet där marksten i skiffer löper längs garagebyggnaden och fram till entrén på ena långsidan som ligger skyddad av träplank. Stensättningen är kantad av gatsten och grönskande planteringar.
ENTRÉHALL
Den stiltroget detaljskurna entrédörren i teak är flankerad av ett högsmalt parti i hamrat glas. Den rymliga entréhallen tar emot med ett ljust tegelgolv och ansenlig takhöjd. Till vänster finns en takhög garderobsvägg i mörkblått med stiliserade spegelfronter. Rakt fram tar fiskbensparketten över i sällskapsytorna och till höger skymtar köket.
GÄST-WC
Bakom en teakdörr med stiltrogna trycken i borstat stål ligger ett nyskapat gäst-wc. Fönstret mot entrésidan har hamrat glas och på golvet vilar orientalisk klinker. Här finns en formren liten handfatskommod samt en wc-stol.
SÄLLSKAPSYTOR
I halvöppen planlösning med entréhallen öppnar sig nu de stora, L-formade sällskapsytorna med ekparkett i fiskbensläggning med fris. Arkitekturlinjerna är tidlöst öppna och rena med en stark känsla av rumsvolym och fria ytor. Ljuset faller in i kaskader från två väderstreck via stora fönsterpartier med smäckra fönsterbrädor i natursten. Mot träterrassen vetter ett närmast heltäckande skjutglasparti som varma kvällar låter sällskapsytorna fortsätta ut under bar himmel. En kallare kväll möter dina gäster doften av saffran och knastrande björkved. Den svarta kaminen med sparsmakad design låter lågorna visas från tre håll. De stora ytorna har plats för både festmingel och vardagskvällar – det är lätt att föreställa sig det sena sextiotalets cocktailpartyn och coola soulmusik härinne.
POOLOMRÅDE & TERRASSER
Utöver skjutglaspartiet leder även dubbla altandörrar ut till träterrassen och det stora poolområdet i trä. Det senare ligger skyddat av de lerslammade tegelmurarna, garageväggen samt klättrande grönska. Här finns flera loungeytor och det fria söderläget fångar solen större delen av dagen. När poolbelysningen tänds i skymningen känns platsen nästan som en resort. Terrassen fortsätter på husets långsida, här finns en pergola under tak med plats för midsommarens långbord. Ett parti med uteklinker tar över i villans kompletta utekök som även det ligger under pergolans tak.
MATSAL
I öppen planlösning med sällskapsytorna fortsätter fiskbensparketten in i villans matsal med brett fönsterparti mot trädäckets pergola. Fönsterbrädan i natursten är en stiltrogen detalj. Matsalen är trivsam och lagom för både familjens vardagspasta och mycket större middagar då långbordet kan förlängas flera meter in i sällskapsytorna.
KÖK
I vinkel, och i öppen planlösning, ligger köket, med lackat betonggolv och en hög, inbyggd bokylla i vitt. Den platsbyggda inredningen har lådor i massiv ek samt överskåp med slätvita fronter och dolda beslag. En fristående köksö med sidor i ek har arbetsyta i svart granit och här finns både gasplatta och två stekhällar under en formren fläkt i rostfritt. Den långa diskbänken under ett fönster mot entrén är i kalksten med underlimmade hoar. Stänkskydden är i vitglaserat kakel, satt i helförband ända upp till taket. Kyl och frys är helintegrerade och de synliga vitvarorna är i rostfritt från Gaggenau och Siemens.
ARBETSRUM
Det vackra betonggolvet försvinner i väg i en inre hall i villans djup. Dörrarna radar upp sig på båda sidor och direkt till höger ligger ett arbets- eller gästrum med fönster mot entrésidan. Här ligger ett blont trägolv och ena väggen har takhöga garderober med släta fronter i grått och dolda beslag.
BADRUM
I fil ligger avdelningens oerhört sobra badrum med stora, gråmelerade klinkerplattor och vitt väggkakel. Ett fristående handfat i vitt porslin vilar på en bred kommod i ek med rymlig förvaring i lådor. Kommoden är i samma stil som köksinredningen. Här finns vägghängd wc, takdusch bakom glas samt ett fristående svart badkar med vit innersida. Samtliga blandare är fina detaljer; med sparsmakad design i patinerad gulmetall och elegant monterade direkt i väggen. Fönstret har frostat glas och i taket finns downlights.
MASTER BEDROOM
På andra sidan den inre hallen ligger villans stora och ljusa master bedroom en suite med walk-in-closet. Två fönster med brädor i natursten vetter ut mot grönskan och pergolan på husets långsida. Här ligger en mjuk hotellmatta som bidrar till den harmoniska atmosfären.
WALK-IN-CLOSET
Bakom ena kortväggen döljer sig en klassisk walk-in-closet som får ljus från ett av fönstren. Den mjuka mattan kommer igen och den takhöga, platsbyggda inredningen går i mörkbrunt med öppen klädförvaring, hyllor samt lådor med fronter i glas.
TVÄTTSTUGA & GROVENTRE
I slutet av den inre hallen ligger ett förråds- och teknikrum till höger. Rakt fram finns villans stora tvättstuga med gråmelerad klinker. Här finns en groventré i gaveln med entrédörr med hamrat glas samt en kattlucka. Tvättstugan har fönster mot trädgården, takhög garderobsvägg, arbetsytor, vask, tumlare, dubbla tvättmaskiner, överskåp samt ingång till ett kallförråd med hyllor.
ÖVRE HALL
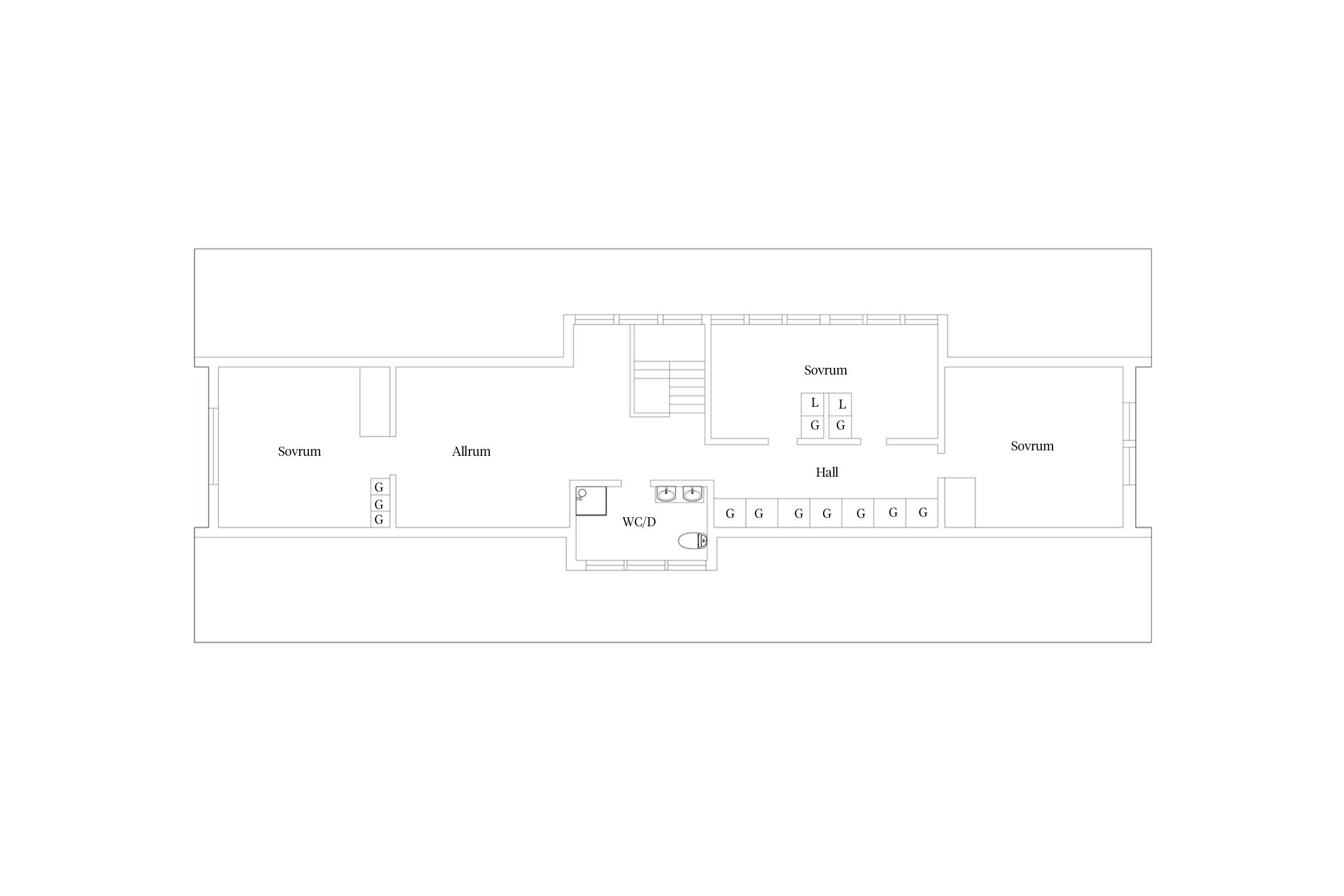
Tillbaka vid köket leder en U-trappa med räcken i klarglas upp till övre planet. På vilplanet vetter ett fönster mot pergolan och ovanför trappan kastar breda glaspartier ett massivt ljus över hallen. Till höger häruppe ligger ett stort allrum och till vänster löper en lång inre hall med fiskbensparkett och teakdörrar. Hela den högra långväggen består av takhöga skjutdörrsgarderober med praktisk inredning samt fronter med spegelglas och trärena karmar.
SOVRUM
Bakom den första dörren till vänster ligger ett långt och ljust rum i en takkupa med svagt sluttande tak och sex kvadratiska glaspartier. Utsikten över grönskan och kvarterets takåsar öppnar sig. Här ligger enstavsparkett och det stora rummet var tidigare två mindre. Detta kan relativt enkelt återställas eftersom det finns två dörrar och två platsbyggda garderober. Rummet har drag av klassisk ateljé med inspirerande utsikt, ljus och mycket himmel.
SOVRUM
Tillbaka ute i den inre hallen ligger ett rymligt gavelrum med blygsamma inslag av snedtak och utsikt ner mot trädgården. Rummet har trestavsparkett och extra förvaring i kattvindarna.
BADRUM
I höjd med trappan ligger planets ljusa badrum, även det placerat i en kupa med tre glaspartier. På golvet ligger schackrutig klinker och väggarna har rektangulärt, vitt helkakel. Här finns kommod med dubbla handfat, wc-stol, spegelskåp och duschalkov med vägg i glasbetong.
ALLRUM
Det rymliga allrummet med fiskbensparkett får fint ljus från det långa glaspartiet över trappan. Svagt sluttande snedtak på bägge sidor skapar karaktär och ytan känns given för tevespel och tonårshäng.
SOVRUM
Det andra gavelrummet är lika stort som det första med samma trestavsparkett, gavelfönster och en platsbyggd garderob. Häruppifrån ser du ner över det skyddade poolområdet.
GARAGE
På uppfarten finns den stora garagebyggnaden med elport och förrådsrum som nås från uppfarten och inifrån villans entrésida.
Ansvarig mäklare
Bokad visning.



Tydingen 9
Nuvarande ägare har ägt fastigheten sedan 2013 och gjort nedan renoveringar och förbättringar:
Utekök .
Renovering av tvättstuga.
Renovering av badrum, entréplan och ovanvåning.
Jordat all el, ovanvåning.
Utebelysning.
Bytt ytskikt på trädäcket.
Två rum, entréplan, blev Master Bedroom med Walk-in-closet.
Fyra mindre sovrum, ovanvåning, blev två större sovrum.
Bytt trappräcke.
Ny värmepanna.
Installerat larm.
Garage och förråd.
Fiber
Driftkostnader och elförbrukning är inhämtade från säljaren och bör endast ses som en uppskattning. Kostnaden kan variera och baseras på förbrukning och avtal.
Fridhem är ett av Malmös allra mest attraktiva bostadsområden med sin omedelbara närhet till havet och Slottsstadens levande gator med handel och matställen. Förr var Fridhem en egen stadsdel och benämndes då som en villastad i Malmö. Området är känt för sina ståtliga byggen som innefattar allt från arkitektritade funkishus till palatslika patriciervillor. Här finns närliggande Fridhemsskolan och flera förskolor. Ribersborgsstranden och det vackra Kallbadhuset, som uppfördes 1898 och är klassat som byggnadsminne, ligger bara ett stenkast bort. Att ta ett vinterdopp från bryggan och sedan värma sig i bastun är tradition för många.
Mellanheden är ett fridfullt villaområde som lockar många barnfamiljer för dess närhet till havet, fritidsaktiviteter och skolor. Området präglas av rik grönska, både från vackert uppvuxna villaträdgården och små parker och gröningar som finns mellan husen. Villor från 1910–30-talet är främst representerade här. I området finns ett populärt kafé med inredningsbutik. Skolbarn har nära till tre av stadens bästa skolor; Geijersskolan, Djupadalsskolan och Mellanhedsskolan.
Bellevue och Bellevue sjösida med sina stillsamma villagator är belägna norr om Geijersgatan och Gamla Limhamn. Bellevue Sjösida innefattar bebyggelsen längs med havet i områdena Bellevue, Västervång och Fridhem. I Bellevue har man bekvämt nära till Geijersskolan och flera förskolor. I båda områdena finns många vackra byggstilar representerade. Allt från pampiga residens från förra sekelskiftet till stilrena funkisformer. Ett unikt område är radhuslängorna på Bülow Hübes väg som är ritade av Sten Samuelson och Fritz Jaenecke. För golfintresserade ligger Hylliekrokens Golfcenter på gång-och cykelavstånd.
Ett område nära Ribersborgsstranden som fick stor uppmärksamhet när det uppfördes under 1990-talet är Potatisåkern. De karaktäristiska flerbostadshusen med rymliga och påkostade lägenheter är ett fint exempel på postmodernistisk arkitektur. Husen öppnar sig mot havet mellan Limhamnsvägen och Köpenhamnsvägen, med en cykeltunnel under som visar vägen till strandpromenaden.
Västervång ligger söder om Köpenhamnsvägen och följer Ribersborgstranden. Här radar villor med välskötta trädgårdar upp sig längs lugna gator. Mycket av bebyggelsen är från 1940-talet, liksom det charmiga och radhusområdet Friluftsstaden som ansluter till södra delen av Västervång. Området är ett av Malmös mest kända och uppfördes i ledning av byggmästare Eric Sigfrid Persson. Husen fick stor internationell uppmärksamhet på grund av dess nyskapande finesser såsom sopnedkast direkt vid köksbänken och inbyggda skohyllor.
Vill du köpa, sälja eller värdera bostad på Bellevue Sjösida? Kontakta Bjurfors mäklare på Limhamn! Passa också på att anmäla dig till vår kostnadsfria söktjänst Boagenten som hjälper dig att hitta ditt drömboende.
Vi har ett nära partnerskap med SEB Private Banking för att ge dig det bästa affärsläget. Som Private Bankingkund hos SEB får du ett individuellt erbjudande och en personlig kontakt som ser till helheten utifrån dina finansiella behov.
Kontakta mäklaren om du behöver hjälp med en boendekalkyl. När du köper din bostad genom Bjurfors kan du ansöka om bolån till en förmånlig ränta hos vår samarbetspartner SEB.
Med en bred lokal närvaro i Sverige, ett internationellt nätverk, samt ett eget register med aktiva intressenter och investerare – har vi förutsättningar att matcha rätt bostad med rätt köpare.
SE ALLA BOSTÄDER BJURFORS BEYOND