Hoppa till innehåll

Ljust och sobert botadsrättsradhus i tre plan med havsutsikt

Falsterbo, Vellinge

Gräsandsvägen 9A

Utgångspris:
12 500 000 kr
Avgift:
3 000 kr
Antal rum:
6
Boarea:
202 kvm*
Byggår:
1991
Balkong:
Ja

*Enligt areamätning

Ljust och sobert botadsrättsradhus i tre plan med havsutsikt

Bjurfors Beyond presenterar tidlöst formrena och ljusa rumsvolymer med vidöppen transparens mot den grönskande trädgården och utsikt över havet.

Beskrivning

En sommarkväll uppe på den trevliga balkongen är atmosfären magisk. Över den stora trädgårdens skyddande grönska är himlen ofta röd och till vänster är utsikten fri över Flommens naturreservat och ut över havet. Falsterbos legendariska badhytter radar upp sig några hundra meter bort och enstaka slag hörs från golfbanan nedanför.

Det höga radhuset om 202 kvm över tre plan byggdes 1991 och har renoverats i omgångar. Formspråket är tidlöst rent med putsad fasad, brant tegeltak och stora glaspartier. Det fridfulla läget är svårslaget, med Flommens naturreservat som närmsta granne. Fågelvägen är det knappt en kilometer till havsbadet och du cyklar dit på några minuter. Radhuset är ett av endast tre i den välskötta och lågt belånade föreningen. Bostaden ligger i byggnadens ena gavel och har tillgång till den i särklass största trädgården. Radhuset känns som en privat villa både inomhus och ute i trädgården, tack vare den frodiga grönskan. Interiören präglas av blonda rumsvolymer, ekparketter i alla rum samt ett tidlöst skandinaviskt formspråk. Kökets, groventréns och den inre hallens klassiska Höganäsklinker kompletterar bilden. På entréplanet finns ljusa sällskapsytor i öppen planlösning med matplats. Glaspartier i två väderstreck skapar öppen transparens mot utemiljö och fri himmel. Härifrån kommer du ut på ett generöst trädäck som gränsar till stora och insynsskyddade gräsytorna kantade av varierad grönska. Här nere på entréplan finns även det rymliga Kvänumköket, ett nyrenoverat och sobert badrum samt en groventré med tvättstuga. På mellanplanet finns hall, två sovrum, stort badrum samt ett allrum med havsutsikt och terrassbalkong. Tredje planet har drag av klassisk penthouse med två rum och takfönster. Det lugna och privata läget i Falsterbo kräver troligen ingen djupare förklaring. Här lever du ett aktivt liv vid havet; nära hav, hamn, stränder, golfbanor och helt unik natur.

Interiör

Det höga gavelhuset ligger längst till höger i längan med tre bostäder. En stensatt trädgårdsgång skär igenom framsidans kortklippta gräsytor. Entrésidan är kantad av hög och lummig grönska med bland annat Rhododendron och buxbomklot. Här finns en morgonsolig uteplats inramad av växtlighet.

ENTRÉHALL
Entréns vita spegeldörr är flankerad av ett högsmalt glasparti med råglas. Det kastar extra ljus över entréhallens klassiska Höganäsklinker. De vita spegeldörrarna med sparsmakat designade trycken radar upp sig. I det djupa siktperspektivet skymtar grönskan bortom glaspartierna i bostadens djup.

GROVENTRÉ & TVÄTTSTUGA
Bakom den första spegeldörren till vänster ligger en groventré med tvättstuga och utgång till entrésidan. Den Höganäsklinkern följer med in och i ett första utrymme finns tvättmaskin, torktumlare, arbetsyta, väggskåp, värmepump samt en porslinsvask i vitt. En groventré med fönster mot entrésidan ligger innanför. Här finns en hatthylla och en takhög garderobsvägg med vita skjutdörrar.

BADRUM
Några steg in i entréhallen fortsätter klinkergolvet in i köket till höger och till vänster ligger ett nyrenoverat badrum. Tonen är sober med golv och väggar i mikrocement, en formren handfatskommod samt dusch bakom industriglas med svarta karmar. Blandaren i mattsvart bidrar till det grafiska uttrycket.

SÄLLSKAPSYTOR
I slutet av den inre hallen tar bostadens öppna planlösning över med ett blont och vackert plankgolv i ek. Känslan av rymd och öppen yta är omedelbar. Till höger i de ljusa sällskapsytorna finns en naturlig matplats som skjuter ut en bit mot trädgården. Vackert ljusinsläpp via fyra stora glaspartier i två väderstreck som låter trädgårdens skyddande grönska omfamna rummet. De låga och smäckra fönsterbänkarna i ljus marmor är en fin detalj.

KÖK
I höjd med matplatsen leder en spegeldörr in till köket. Den vita inredningen från Kvänum är tidlös med släta fronter och sparsmakade beslag i vitmetall och trä. Höganäsklinkern ger en varm kontrast i den ljusa interiören och ljuset faller in från glaspartier i två väderstreck. Arbetsytorna är i tålig Corean med en bred, underlimmad ho i rostfritt. Vitvarorna är integrerade med inslag av rostfritt. Vid fönsterpartiet mot entrésidans grönska finns en trivsam matplats med platsbyggd bänk.

TRÄDÄCK & TRÄDGÅRD
En varm junikväll står sällskapsytornas altandörr på vid gavel. Gästerna minglar ut i kvällssolen med sina glas. Ett trädäck i nivå med både sällskapsytans parkett och gräsmattan tar över. Trädgården är överraskande stor och den höga och varierade grönskan med buskar och prydnadsväxter skapar en helt skyddad plats. In till vänster om altandörren, under en nerfällbar markis, finns en skyddad loungedel där grönskan klättar på väggen. Det långa trädäcket har plats för långbord och längst bort finns en grillplats inramad av grönska och träväggar i olika höjd. Runt hörnet, på gavelsidan, finns ytterligare stora gräsytor kantade av en hög mur med klätterväxter. Trädgården är lättskött med robotgräsklippare och bevattningssystem.

ÖVRE HALL
Den öppna trappan i hallen har steg i ek och vita räcken. Trappan har en avsats och slutar i mellanplanets centrala hall. Här ligger en trestavsparkett i ek som går igen i alla rum. Hallen förbinder tre sovrum och ett badrum.

SOVRUM 1
Bakom en spegeldörr till höger ligger det första sovrummet med inslag av snedtak. Det har fönsterkupa mot entrésidan och en takhög garderobsvägg med stiliserade spegelfronter.

SOVRUM 2
I fil ligger ett lika stort sovrum med takkupa, snedtak och skjutdörrsgarderob.

BADRUM
Planets badrum känns rymligt med ljus från ett fönster i husets gavel. Här finns ljusblå klinker och vitt, liggande helkakel. Badrummet har en duschalkov med vägg i glasbetong samt en fondvägg i blåmelerad mosaik. Här finns även fristående badkar på tassar, wc samt en handfatskommod i vitt.

WALK-IN-CLOSET
I en passage med trappa upp till övre plan och ingång till det största rummet finns en större walk-in-closet med platsbyggd förvaring.

ALLRUM
En frostad glasdörr leder in till ett stort och ljust allrum. Rummet är även tänkbart som ett master bedroom och har generösa glaspartier mot grönskan. Till vänster är utsikten helt fri över Flommen och havet.

TERRASSBALKONG
En altandörr leder ut till bostadens långa terrassbalkong med trägolv och smidesräcke. I solnedgången är vyerna svårslagna och du sitter omfamnad av blomdoft och fågelkvitter.

ÖVRE ALLRUM
Bakom en spegeldörr i hallen leder en vit trätrappa upp till bostadens tredje plan med drag av klassiskt penthouse. Här ligger ett ljust allrum med snedtak, trestavsparkett och stort takfönster med solskydd.

SOVRUM
En skjutdörr delar av till nästa rum, även det med snedtak, ekparkett och takfönster. De två rummen känns givna för tonårshäng, om det inte är häruppe du fäller upp staffliet eller stämmer gitarren.

Ansvarig mäklare

Vill du veta mer om bostaden?

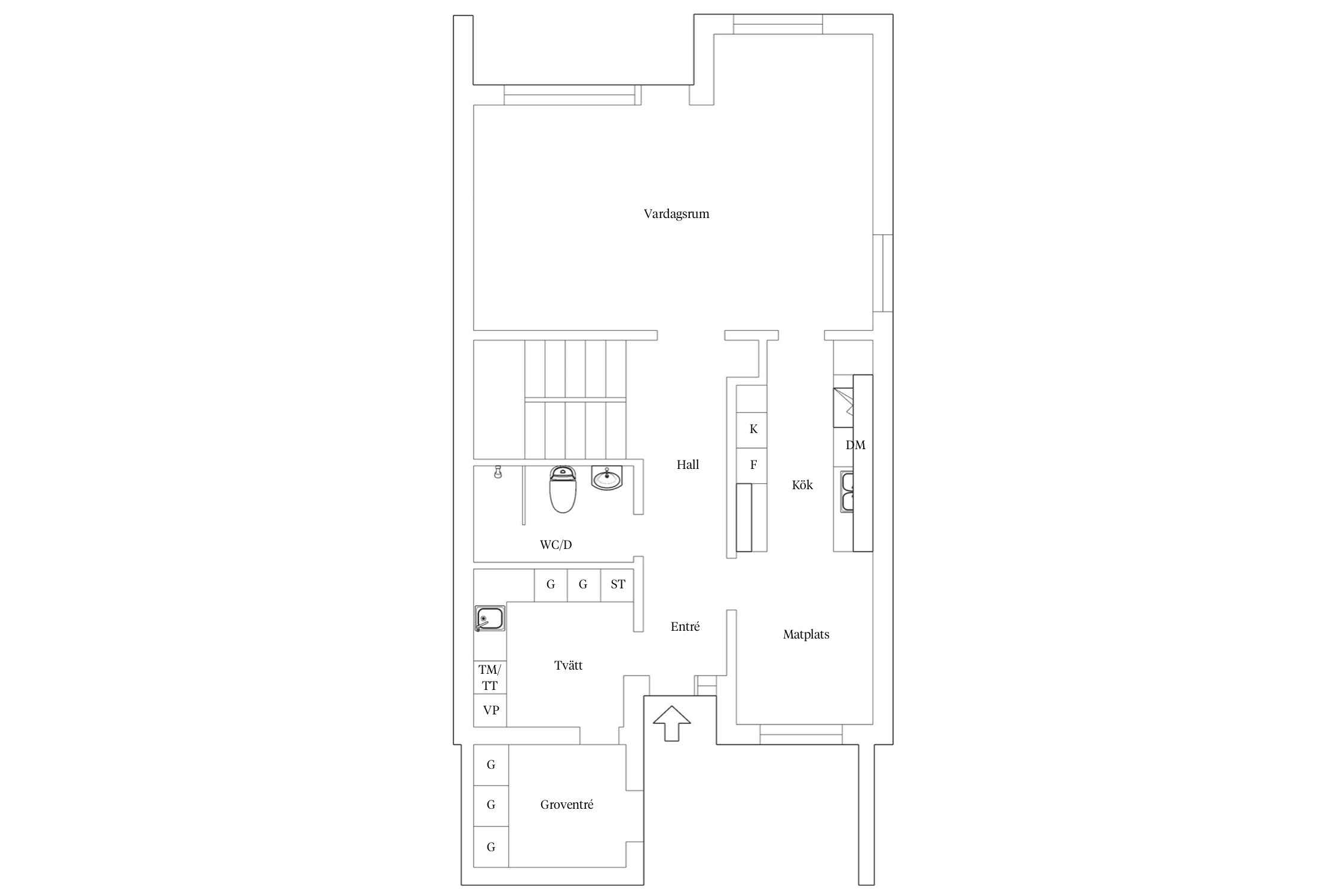
Planritning

Planlösning

Plan 1

Planlösning

Plan 2

Planlösning

Plan 3

Fakta om bostaden

Information

Typ
Radhus
Upplåtelseform
Bostadsrätt
Utgångspris
12 500 000 kr
Lägenhetsnummer
1
Våningsplan
0
Rum
6
Antal sovrum
4
Max antal sovrum
5
Boarea
202 kvm*
Balkong
Ja
Uteplats
Ja
Bilplats
Ja

*Enligt areamätning

Månadsavgift

Avgift/hyra
3 000 kr

Byggnadssätt

Byggnadstyp
1 ½ plan med inredd vind
Byggår
1991
Uppvärmning
Vattenburen värme samt direktel på plan 3.

Nyttjanderätt av lättskött trädgård med robotgräsklippare och bevattningssystem.
Garaget har tidigare varit inrett som ett gästrum.

Ombyggnad, Renoveringar

2022: Målning väggar och tak invändigt.
2023: Renoverat badrum på plan 1.
2023: Microcement i kök som stänkskydd, nya handtag på köksskåp.
2023: Byggt en walk in closet på plan 2.

Övriga byggnader/utrymmen

Garage samt förråd.

Uteplats/balkong

Balkong
Ja
Uteplats
Ja

Trädgård med trädäck och balkong.

Parkering

Bilplats
Ja

Garage och en parkeringsplats

TV/bredband

Fiber

Ekonomi

Andel i föreningen
0,3333%
Andel av årsavgiften är
0,3333%
Bostadsrättens indirekta nettoskuldsättning
128 987 kr

Andelstal är 1/3

Bostadsrättens indirekta nettoskuldsättning baseras på föreningens skulder/lån minus föreningens räntebärande tillgångar och likvida medel. Beräkningen är gjord och baseras enbart på den senaste tillgängliga årsredovisningen. För mer information kontakta ansvarig fastighetsmäklare.

Driftskostnad (per månad)

Personer i hushållet
2
Värme
2 700 kr
Summa
2 700 kr
Elförbrukning
13 000 kWh/år

Driftskostnader och elförbrukning är inhämtade från säljaren och bör endast ses som en uppskattning. Kostnaden kan variera och baseras på förbrukning och avtal.

Energideklaration

Utförd
Ja
Energiklass
F
Energideklarationsdatum
2022-07-27

Bostadsrättsförening

Namn
Brf Gräsanden
Organisationsform/typ
Bostadsrättsförening
Antal lägenheter
3
Äkta/oäkta bostadsrättsförening
Äkta
Föreningen tillåter juridisk person som köpare
Nej
Föreningen äger marken
Ja

Allmänt om föreningen

Brf Gräsanden är en äkta bostadsrättsförening med 3 lägenheter i Falsterbo. Föreningen bildades år 2006.

Föreningens ekonomi

Föreningen sköter själva den ekonomiska förvaltningen.

Renoveringar - Utförda och planerade

Utförda: Fiber installerades i augusti 2022. Nya räcken till balkongerna.
Nya markiser.

Parkering

Till varje lägenhet hör ett garage och en uppställningsplats.

TV/bredband

Fiber installeras i augusti 2022.

Övrigt

Förråd i anslutning till garaget samt intill huset.

Om Falsterbo

Att bo i Skanör Falsterbo

Området Skanör/Falsterbo erbjuder dig ett härligt varierat liv med många olika aktiviteter. Här hittar du bland annat tio naturreservat, två golfbanor, fantastiska stränder och ett paradis för fågelskådare. Det underbart vackra ljuset från havet och de böljande sanddynerna har inspirerat många kända konstnärer.

Området Skanör/Falsterbo erbjuder dig ett härligt varierat liv med många olika aktiviteter. Här hittar du bland annat tio naturreservat, två golfbanor, fantastiska stränder och ett paradis för fågelskådare. Det underbart vackra ljuset från havet och de böljande sanddynerna har inspirerat många kända konstnärer.

Skanör är en ort i Vellinge kommun som idag är i stort sett sammanväxt med tvillingorten Falsterbo. I centrala Skanör finns Bäckatorget med små mysiga boutiquer. En av de äldsta och vackraste byggnaderna är Rådhuset, som klarat sig undan både bränder och översvämningar. Mitt emot Rådhuset ligger den vackra medeltidskyrkan. Ett av de mest kända landmärkena här är Skanörs Fiskrögeri med sina två vita skorstenar. Den som vill ha färsk fisk hellre än rökt kan handla nyfångade läckerheter av lokala fiskare nere i hamnen. Missa inte den återuppbyggda och populära Badhytten alldeles bredvid Skanörs hamn där man har låtit sig inspireras av kustnära serveringar från såväl USA som Karibien. Förutom en restaurangdel finns en övervåning med två barer och generöst tilltaget soldäck med vacker utsikt.

Falsterbo upptäcktes som badort kring förra sekelskiftet, men är idag kanske mest känd för den fashionabla och mycket uppskattade Falsterbo Horseshow. Evenemanget lockar varje år hästsportintresserade från när och fjärran. För golfaren finns den anrika Falsterbo golfklubb som är Sveriges tredje äldsta golfklubb. Här finns landets enda 18- håls linksbana belägen vid Öresund och Östersjön.

Något av det bästa med Skanör och Falsterbo är ändå de fantastiska kilometerlånga stränderna med ljuvligt mjuk vit sand. Stränderna, som brukar kallas för ”Sveriges Riviera”, är mycket uppskattade och välbesökta under vackra sommardagar.

Vid stranden i Falsterbo finns också det anrika Falsterbohus som tidigare tjänade som badhotell och kasino. Numera är det ombyggt till attraktiva och strandnära bostadsrätter.

Måkläppen är en fridlyst halvö med ett rikt djur- och naturliv. Den mellersta delen av kuststräckan kallas Flommen och består av ett för landet unikt lagunlandskap omgivet av strandängar. Området är framför allt känt för det imponerande flyttfågelsträcket under hösten, men du kan även få se både gråsäl och knubbsäl här. Måkläppen är en av de största uppehållsplatserna för säl runt hela Östersjön.

Vill du köpa, sälja eller värdera bostad i Falsterbo? Kontakta Bjurfors mäklare i Höllviken! Passa också på att anmäla dig till vår kostnadsfria söktjänst Boagenten som hjälper dig att hitta ditt drömboende.

Karta

Gräsandsvägen 9A

Gräsandsvägen 9A

239 41 FALSTERBO

Visa i Google Maps (öppnas i nytt fönster)

Finansiering

Vi har ett nära partnerskap med SEB Private Banking för att ge dig det bästa affärsläget. Som Private Bankingkund hos SEB får du ett individuellt erbjudande och en personlig kontakt som ser till helheten utifrån dina finansiella behov.

Läs mer om Private Banking

Kontakta mäklaren om du behöver hjälp med en boendekalkyl. När du köper din bostad genom Bjurfors kan du ansöka om bolån till en förmånlig ränta hos vår samarbetspartner SEB.

Ansök om lånelöfte hos SEB

Vi matchar köpare med rätt bostad

Med en bred lokal närvaro i Sverige, ett internationellt nätverk, samt ett eget register med aktiva intressenter och investerare – har vi förutsättningar att matcha rätt bostad med rätt köpare.

Anmäl intresse - Bjurfors Beyond
SE ALLA BOSTÄDER BJURFORS BEYOND