-
Köpa
Köpa -
Sälja
Sälja - Hitta bostad
- Skapa bevakning
- Hitta mäklare
Nedre Johanneberg, Göteborg
*Till avgiften tillkommer ett obligatoriskt tillägg avseende internet om 354 kr/mån.
**Areauppgifter enligt säljaren och bostadsrättsföreningen
Bjurfors Beyond presenterar en ljus femrumsvåning på grönskande Terrassgatan med bevarade originaldetaljer och det sena 20-talets stilfullhet.
De höga, kuperade kvarteren i nedre Johanneberg är kända för sin grönska och mycket fridfulla atmosfär. Trots detta väntar folklivet på Götaplatsen och Avenyn bara några minuters promenad bort. Den höga Terrassgatan ligger som en skyddad oas, alldeles ovanför stadsbruset.
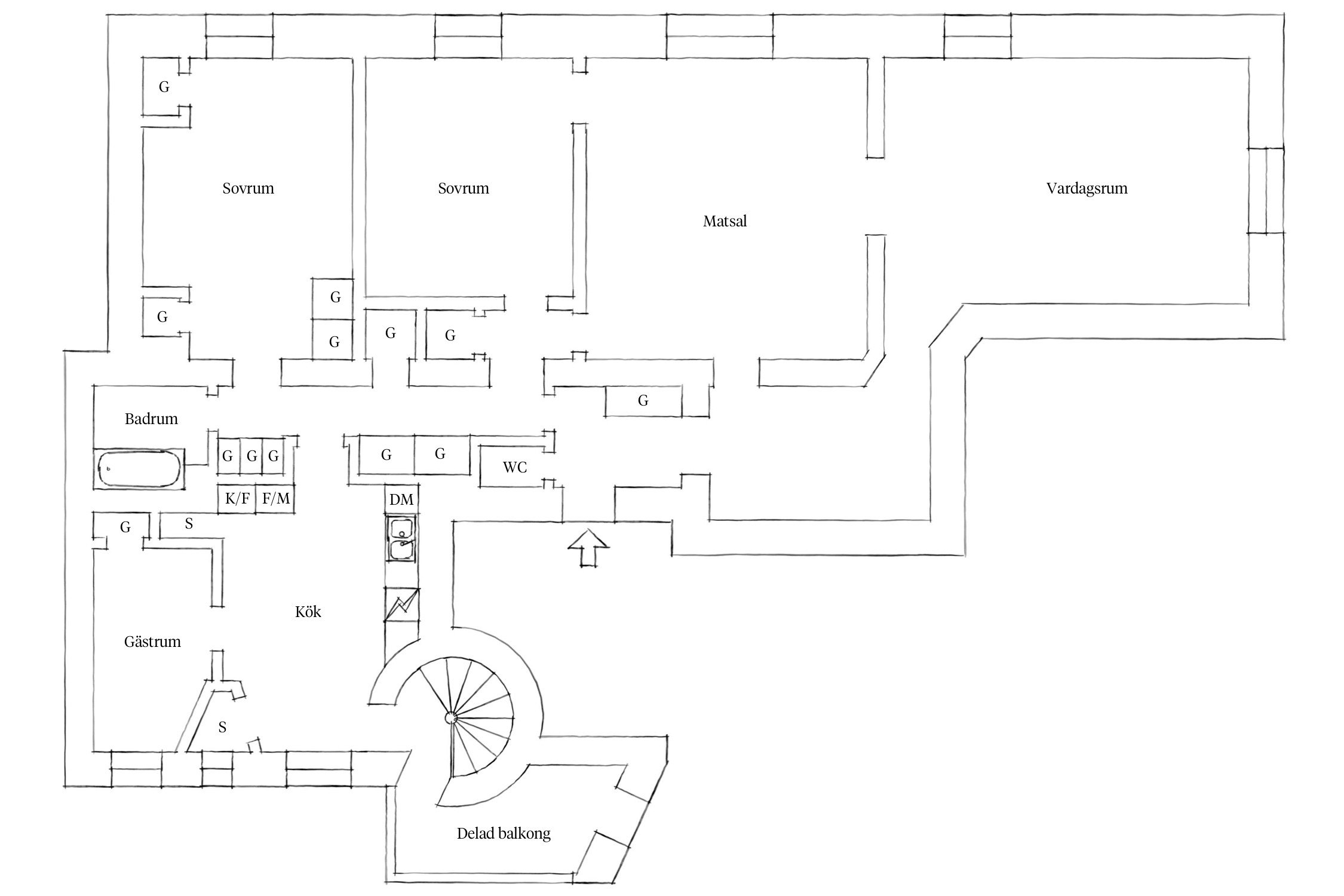
Det ståtliga tegelpalatset byggdes 1929 i stram nyklassicistisk stil med spröjsade fönster, smidesbalkonger och sparsam utsmyckning. Det mycket höga läget gör att även de lägre bostadsplanen har utsikt över sluttningen, grönytorna och grönskan ner mot Götaplatsen. Redan i den pampiga trapphallen möter tidsperiodens klassiska elegans med spröjsade ekdörrar, terrazzogolv, marmorerade kolonner, väggmålningar och spegeldörrar i mörk ek med detaljer i mässing. Uppe i den stora våningen breder ekparketterna i mestadels holländsk läggning ut sig under ansenlig takhöjd. Bevarade originaldetaljer från tiden understryker periodens ljusa och lätta elegans. Här finns djupa fönsternischer, spröjsade fönster, detaljskurna listverk, rader av spegeldörrar, djupa dörrfoder med sockelklossar, sparsmakade takrosetter, serveringsgång med spegeldörrar mm. I fil ut mot den grönskande utsikten ligger fyra ursprungliga salonger där ljuset faller vackert över fria ytor och tidlösa detaljer. Entréhallen förbinder till en klassisk förhall som i sin tur förbinder till matsal och sällskapsytor med ljus och utsikt i två väderstreck. Takhöjden och de stora rummens blonda atmosfären ger en härlig rumsvolym. I fil med dessa rum finns två stora sovrum och in mot den charmiga innergården ligger den L-formade våningens stiltrogna kök med bevarad jungfrukammare och utgång till delad balkong i söderläge. I våningens mitt löper en serveringsgång med bevarade originalskåp och ingång till badrum. Den trevligt asymmetriska planlösningen överraskar med vinklar och vrår samt djupa passager. Här finns både originalgarderober och platsbyggda förvaringslösningar i nygammal stil. Det centrala läget, i grönskande kvarter precis ovanför city, tillhör stadens mest eftertraktade. Den gamla bostadsrättsföreningen är stabil och välskött, precis som den praktfulla fastigheten i sig.
ENTRÉHALL
En stiltrogen entrédörr med speglar, och en innerdörr i samma stil, leder in till våningens stora entréhall. Under det höga taket med mjukt rundat möte med väggarna breder ekparketten ut sig med tidsperiodens detaljskurna fotlister. Till vänster skymtar den långa serveringsgången och till höger ligger tidsperiodens klassiska förhall.
GÄST-WC
Bakom en av våningens många vackra spegeldörrar med originaltrycken i vitmetall och svart bakelit ligger ett gäst-wc med klinker, vitt kakel, handfat och wc-stol.
FÖRHALL
Till höger i entréhallen, innanför en dörröppning med detaljskurna dörrfoder med sockelklossar, öppnar sig en förhall med ekparkett i holländsk läggning med fris. De tidstypiska listverken kommer igen och hallen förbinder till matsal och sällskapsytor i fil. Det var härinne som det sena 20-talets gäster välkomnades innan de bjöds in i salongerna. Idag har det trivsamma rummet platsbyggda bokhyllor.
SÄLLSKAPSYTOR
Längst in i förhallen, i en djup passage, finns ytterligare en ståtlig spegeldörr. Här bakom väntar våningens stora och ljusa sällskapsytor med stiltroget djupa och spröjsade fönsterpartier i två olika väderstreck. Det höga rummet är omfamnat av grönska i sluttningen ner mot stan. Du kan skymta husen kring Götaplatsen, knappt 400 meter ner. Den tidlöst vackra salongen har det sena 20-talets lätta elegans med stiliserad takrosett och de svagt rundade taklinjerna som ger en organisk atmosfär. Över fria ytor sträcker ekparketten ut i holländsk läggning med fris. Längs ena väggen reser sig platsbyggda bokhyllor i vitt.
MATSAL
I fil, bakom dubbla skjutdörrar med vardera fyra speglar, ligger den rymliga och ljusa matsalen. Mot grönskan och utsikten vetter ett brett, tredelat fönsterparti med spröjsade rutor och djupa fönsterbrädor. Parkettgolvet och detaljerna går igen och rummet har plats för stora middagar under den närmast obligatoriska kristallkronan i takrosetten. Härinne har det dinerats i snart 100 år och den historiska feststämningen sitter i väggarna. Via en djup dörröppning kommer du ut i förhallen igen.
SOVRUM
En spegeldörr i matsalen leder ut till en passage som förbinder till serveringsgången. Till höger i passagen ligger ett större sovrum med fönster mot utsikten. Detta var en av de ursprungliga salongerna i fil, tänkbart även som bibliotek, arbets- eller teverum. I taket sitter en takrosett och den holländska parketten kommer igen. Ytterligare en spegeldörr längst in i rummet förbinder tillbaka till matsalen.
SERVERINGSGÅNG
I den långa serveringsgången med parkett är inredningen till stor del fint bevarad. Här finns flera takhöga garderober, en klädkammare och serveringsskåp.
KÖK
En bevarad dörr med speglar i valsat råglas reser sig till vänster. Här ligger det rymliga köket med trestavsparkett och stilenlig inredning i vitt med spegelfronter och inslag av takhög vitrin. Köket får ljus via ett högt fönsterparti mot innergårdens charmiga miljö och grönska. Arbetsytorna är i mörkbetsad ek och rostfritt. Stänkskydden består av stiltroget vitglaserat kakel satt i halvförband. Köket har plats för matbord och via köksentrén når du den delade balkongen med utsikt över innergården i söderläge.
GÄSTRUM
Den gamla jungfrukammaren är bevarad och nås via en spegeldörr i köket. Det lilla arbets- eller gästrummet har spröjsat fönster mot gården samt klädkammare bakom spegeldörr.
BADRUM
I slutet av serveringsgången ligger våningens badrum med vitt helkakel, klinker, downlights, handfatskommod, wc, badkar samt tvättmaskin.
MASTER BEDROOM
Ett steg från badrummet ligger ett romantiskt och privat placerat sovrum med parkett, takrosett och fönsterparti mot utsikten över sluttningen och grönskan. Två inbyggda garderober med spegeldörr flankerar en alkov med plats för dubbelsängens huvudända. Här inne finns även en hög, platsbyggd garderob med spegeldörrar. Med fönstret på glänt vaknar du till koltrastsång.
Bokad visning. Du kan även ringa Bjurfors Bokningscenter 031-761 79 50. Välkommen!



*En trappa upp från entrén, ej BV.
**Areauppgifter enligt säljaren och bostadsrättsföreningen
Till avgiften tillkommer ett obligatoriskt tillägg avseende internet om 354 kr/mån.
Till bostaden nyttjas två förråd; ett stort på vinden och ett lite mindre i källaren.
Gemensam balkong i trapphus, läge söder.
Ansluten till kabelnät. Leverantör: Com Hem.
Bostadsrättens indirekta nettoskuldsättning baseras på föreningens skulder/lån minus föreningens räntebärande tillgångar och likvida medel. Beräkningen är gjord och baseras enbart på den senaste tillgängliga årsredovisningen. För mer information kontakta ansvarig fastighetsmäklare.
Brf Rupicus förvärvade fastigheten Johanneberg 2:7 i hörnet Terrassgatan/Gibraltargatan år 2008 från dåvarande bostadsaktiebolaget Rupicus som alltsedan 1923 ägt och förvaltat fastigheten i syfte att bereda bostad åt aktieägarna. Fastighetens total bostadsyta uppgår till 3317 kvadratmeter samt lokalyta uppgår till 320 kvadratmeter. I föreningen finns 25 stycken lägenheter med bostadsrätt samt 4 lokaler och tre garageplatser med hyresrätt. Föreningens ekonomi är exceptionellt god med en belåningsgrad på låga 536 kr/kvm. Lägg därtill att man enligt årsredovisningen för 2025 har en stark kassa vilket innebär att nettoskulden för lägenheten endast är 19.607 kr.
Fastigheten är försäkrad i Trygg Hansa.
Utförda historiska underhåll
Stambyte samt relining i markplan.
Hissrenovering
Målning och reparation av fönster och tak
Planerade underhåll
Relining av vertikala stammar och omgörning av gården under 2026 samt målning eller byte av
förnster under de närmaste åren.
Föreningen har tre stycken garageplatser. Boendeparkering gäller i området.
TV och bredband via Tele2 ingår.
Gemensam tvättstuga på vinden. Sophantering på innergården.
BO I GÖTEBORGS HJÄRTA
När du bor i Nedre Johanneberg får du det bästa av två världar. Du bor mitt i Göteborgs hjärta vilket bäddar för spontant aktivt stadsliv och samtidigt har du närheten många grönområden.
BEKVÄMT BOENDE
Nedre Johanneberg är en av Göteborgs mest populära stadsdelar. Många väljer att bo här just för att det är så nära till Göteborgs mest centrala delar - Korsvägen, Södra vägen, Götaplatsen och Avenyn. Promenerar du nerför Avenyn möts du av innerstadens främsta shoppingdistrikt.
Det stora flertalet av områdets byggnader är från 1920-talet, med många fantastiska exempel på nordisk klassicism. De tidstypiska storgårdskvarteren med symmetriska tegelfasader och planterade innergårdar har satt sin karaktäristiska prägel på hela området.
GRÖNA YTOR OCH TRAFIKNAV
I Nedre Johanneberg blir du härligt bortskämd med flera gröna parker. Näckrosdammen är den självklara platsen för grillning eller en paus i solen och i Vasaparken kan du ta en skön promenad. Eftersom det är gångavstånd till allt ser man hela tiden människor i rörelse. Du som rör dig i snabbare tempo väljer Mossens motionsslinga, eller tränar på någon av de många träningsanläggningarna som finns i området.
På tal om gångavstånd, är det aldrig långt till någonting när du bor i Johanneberg. Med flera stombusslinjer, gott om hållplatser och en av lokaltrafikens stora knutpunkter Korsvägen på promenadavstånd, är Nedre Johanneberg bästa läget oavsett om du ska till Mölndal, Centralstationen eller ut i vida världen via Landvetter.
BO MED NÄRHET TILL SKOLOR
Johanneberg tillhör stadsdelen Centrum där förskolorna och skolorna är indelade i två geografiska spår, Guldhedsspåret och Burås-/Johannebergsspåret. Varje spår har verksamhet för barn från 1 till 16 år och barnen behöver alltså inte byta spår under sin förskole- och skoltid. I centrala Göteborg finns också flera alternativa skolor som till exempel Franska förskolan och International School of the Gothenburg Region (ISGR). Göteborgs universitet har flera institutioner i området, bland annat ligger Humanisten i anslutning till Näckrosdammen.
Köpa, sälja eller värdera bostad i Nedre Johanneberg? Kontakta våra mäklare i Göteborg! Passa också på att anmäla dig till vår kostnadsfria söktjänst Boagenten som hjälper dig att hitta ditt drömboende.
Vi har ett nära partnerskap med SEB Private Banking för att ge dig det bästa affärsläget. Som Private Bankingkund hos SEB får du ett individuellt erbjudande och en personlig kontakt som ser till helheten utifrån dina finansiella behov.
Kontakta mäklaren om du behöver hjälp med en boendekalkyl. När du köper din bostad genom Bjurfors kan du ansöka om bolån till en förmånlig ränta hos vår samarbetspartner SEB.
Med en bred lokal närvaro i Sverige, ett internationellt nätverk, samt ett eget register med aktiva intressenter och investerare – har vi förutsättningar att matcha rätt bostad med rätt köpare.
SE ALLA BOSTÄDER BJURFORS BEYOND