-
Köpa
Köpa -
Sälja
Sälja - Hitta bostad
- Skapa bevakning
- Hitta mäklare
Rymlig enplansvilla med ljusa rumsvolymer och smakfull design med högt läge och mycket vacker vy
Nösund, Orust
*Areauppgifter enligt taxeringsinformationen
Bjurfors Beyond presenterar här spännande arkitektur och dramatisk havsutsikt i en stilfull villa med pool på ett mycket högt och skyddat klippläge.
De transparenta sällskapsytorna öppnar panoramautsikten via heltäckande glaspartier. Ute på terrasserna, som bitvis nästan tycks sväva i den höga klippbranten, är vyerna milsvida över hav och skärgård. Med sluttningens grönska i förgrunden känns utsikten nästan som ett flygfoto och i solnedgången glöder naturen nedanför.
Den välplanerade och trevliga villan om 160 kvm är ensam i sitt slag och stod klar vid millenieskiftet. Villan tronar på ett högt, sällsynt privat och fritt läge. Stilen är tidlöst formren i en bohuslänsk tradition, vitt i vitt, med fasader i stående planel med lockläkt. De påtagligt stora glaspartierna och långa panoramafönstren ger en fin harmoni till formspråket. Planlösningen är till stor del öppen med inslag av inre hall och passager med förbindelse mellan två enheter bägge inrymmande bl.a. kök, sovrum och badrum. Känslan av stora och sällsynt ljusa rumsvolymer är påtaglig och förstärks av den fria himlen, närvaron av havet och det höga läget. Villans påkostade designlinje präglas av platsbyggd design, vackra rustika golv och tak. Villan har upp till fyra sovrum, två badrum, master bedroom en suite med walk in closet, sällskapsytor, kakelugn - öppen spis - vespis, platsbyggd förvaring, platsbyggda kök, stor matsal med magisk utsikt, flera terrasser och uteplatser i olika väderstreck, exklusivt poolområde med stor pool, gäststuga med extra sovplatser, uppfart med plats för flera bilar, vattenburet system till bergvärme, trädgård med platsbyggda murar/trädgårdsinlsag, motordrivna markiser, infravärme, app-styrt system för belysning samt förberett för integrerad ljudanläggning, säkerhetssystem med kodlås, kameror och larm/brandlarm.
Kör från Nösund genom Boxvikstunneln och strax efter den in på asfalterad tillfartsväg upp till ett välskött område med tre fastigheter. Längst upp, ovan tunneln, ligger unika Boxvik 268. Denna fastighet ger dig möjlighet till ett härligt åretrunt- eller fritidsboende där du får många timmar över för annat än husskötsel och gräsklippning. Huset är beläget nära det genuina samhället Nösund, med havet och Bohusläns vackra fauna inpå knuten. I Nösund har du fina möjligheter till bad och båtliv, rekreation och god mat på anrika Nösunds Värdshus eller på den också väl kända Nösundsgården. Här finns även; tennisplan, sjöbodsförening, båthamnsförening, segelsällskap, föreningen Nösund och Nösunds kulturhistoriska sällskap. Badhus och bastu samt vackert belägna Sjöstugan kan hyras för festliga tillfällen. I området Boxvik och Nösund finns badplats med badbrygga och hopptorn och en liten strand för de små. Fina vägar, stigar och klippor, perfekt att promenera med hunden eller hajka med vännen på morgonen.
En underbar plats och också för socialt umgänge med många trevliga grannar från området. Kort och gott kan sägas att detta är ett ställe att vistas på såväl på sommaren såväl som en vacker vinterdag. Ett unikt tillfälle på en underbar plats, något utöver det vanliga! Välkommen till idyllen på Boxvik och vackra Nösund.
Arkitektritat enplanshus med enastående havsutsikt. Huset är välbyggt med högkvalitativa materialval och Uppfört år 2000 om 160 m2 fördelat på 6 rum och kök, varav 2 rok kan avskiljas som separat del. Altandäck finns i alla väderstreck och fördelat över dessa finns tio fjärrstyrda eldrivna markiser. Tre terrasser har fast installerade värmare med tidur. Vattenburen golvvärme ligger i samtliga rum i villan och solcellsanläggning i söderläge på mark samt bergvärme ger låga driftskostnader. Soldränkt gjuten och kaklad pool på 4x8 meter har skjutbart tak från 2023. Båtplats vid egen boj i viken nedanför. Till fastigheten hör 1/3 av gränsande natursamfällighet med möjlighet att vinterförvara egen båt.
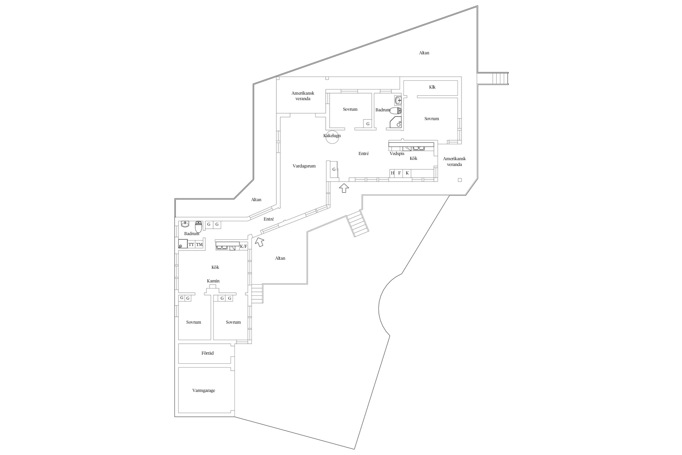
Bakom entrédörren breder ett vackert trägolv ut sig under härlig takhöjd. Det höga läget och den milsvida utsikten presenterar sig omedelbart i det raka siktperspektivet från hallens vackra fönsterparti. Till vänster finns en hel garderobsvägg med skjutdörrar. Och till höger visar vackra pardörrar in till husets huvudbostad. Till vänster om hallen nås trevlig gästbostad/generationsboende.
Huvudbostadens sällskapsytor är spektakulära och bjuder fina platser för sociala samkväm och rekreation. Access till altan/terrass som löper utmed stora delar av huset och från nästan alla rum i huset bjuds en magisk vacker vy över hav och land. Inslag som kakelugn, platsbyggt kök, fina sovrum och vackra detaljer, stilfulla materialval är genomgående.
Gästbostaden alt. generationsboendet bjuder på två fina sovrum, ett något mindre allrum i integration med ett praktiskt lite mindre kök. Access till uteplatser och altaner. De rustika materialen är en självklarhet även i denna del av huset.
Två fräscha, helkaklade hygienutrymmen - varav ett med tvättpelare tvätt/tork. Apparat/teknikrum i källaredel i soutterräng.
Isolerat garage och förråd samt isolerad gäststuga med extra sovplatser adderar praktiska inslag till fastigheten.
Ansvarig mäklare



Boxvik 1:33
*Areauppgifter enligt taxeringsinformationen
Kaklad pool med stort poolområde/trädäck
Löpande underhållet, exteriörmålning
2025:
Fast elinstallation av robotklippare S:5.
Nya vindskivor samt måleriarbete på garagegavel.
2024:
Uppgradering trätrall altaner.
2023:
- Installation av elbilsladdare. Utbyggnad och uppdatering av poolområde.
- Installation av skjutbart pooltak fabrikat Gullberg&Jansson.
- Ny ytterligare robotklippare fabrikat Gardena till utökat område.
2022:
- Ny torktumlare fabrikat Bosch.
- Röjning, utjämning och markberedning av samfälligheten S:5
- Köp av robotklippare fabrikat Husqvarna till S:5
2021:
- Installation av solcellsanläggning c:a 100 m2 på tomtmark.
- Köp av tomtmark: utökning Boxvik 1:33.
- Köp av mark: 1/3 av Samfälligheten Orust Boxvik S:5 tillhörande Orust Boxvik 1:33.
- Renovering av badrum.
2020:
- Renovering av poolområde: överdrag, altanräcke av glas samt trädäck.
- Ny kyl/frys fabrikat Bertazzoni 90 cm fristående.
- Ny inbyggnadsugn och mikrovågsugn fabrikat Husqvarna i huvudkök.
- Ny Kyl/frys fabrikat Siemens i gästkök.
2019:
- Uppdatering huvudkök: lackering luckor och byte av handtag, uppdatering bänkbelysning. Ny diskmaskin fabrikat Bosch.
- Byggnation av trallgolv för diverse vinterförvaring under altanen.
2018:
- Ny Spis/ugn i gästkök: fabrikat Cylinda. Ny vinkyl fabrikat Qlima.
- Byggnation av golv på huvudvind.
2017:
- Nybyggnation av varmgarage; Garageport Hörmann Automatic m. fjärrkontroll. Luftvärmepump garage fabrikat Samsung.
- Uppdatering av inomhus värmestyrning.
- Installation av robotklippare fabrikat Husqvarna.
- Byte av 2st Ytterdörrar, fabrikat Leksandsdörren.
- Installation av flaggstång, 12m invändig vev, bergsmontage.
- Installation av poolstädare.
- Installation av Telia fiber.
- Trappstenar i röd bohusgranit till ekonomibyggnadernas entrétrappor.
- Installation av Securitas larm samt utomhus övervakningskamera.
- Reparation tak - demontering solfångare
2016:
Ny bergvärmepump
Genom tidigare ägare 2002: Krypgrundsavfuktare
Garage 26 kvm - isolerat varmgarage, isolerad gäststuga, förrådsbod
Träterrasser/altaner med generösa ytor och med magisk vy över natur och arkipelag. Uteplatser, både öppna och med tak, runtom på den stora tomten i samtliga väderstreck. Ljuvligt poolområde med stora trädäck och gott om plats för rekreation.
Enskilt vatten - djupborrad brunn, Enskilt avlopp - minireningsverk Biovac.
Stort varmgarage med plats för en bil samt förvaring. Snyggt stensatt plan framför garaget ger plats åt ytterligare 2-3 bilar. Samägande av yta nedanför/invid infarten till tomten ger ytterligare möjlighet för parkering för ex. gäster.
Samfällighet: Orust boxvik s:5
Förmån: Officialservitut Väg, 1421-2021/37.1
via fiber
Elförbrukning minskas genom produktion via solpaneler som ger ca 19 300 kWh per år och där överskottsproduktion säljs - hur mycket som säljs ut alt. används direkt kan variera och styras av fastighetsägaren. Kostnad för el är beräknad på elkostnad om ca 1,20 kr/kWh och sammantaget köp av 16 940 kWh. Säljaren har 'direktanvänt' 6 520 kWh. Nuvarande ägare har kontinuerligt laddat en elbil och en pluginhybrid varför ca 6 000 kWh kan räknas bort ur elförbrukningen om man inte laddar bil. Kostnad VA avser kostnad för serviceavtal för minireningsverk.
Orust är västkustens största och Sveriges tredje största ö med 15 300 bofasta personer. Under sommarhalvåret dubblas siffran genom fritidsboende och turister. Till Orust hör en levande skärgård med vackra och populära öar som Gullholmen, Käringön, Malö och Flatön.
Du ges möjlighet till ett tryggt boende nära skolor och samhällsservice omgiven av ett storslaget natur- och kulturlandskap. På Orust harmonierar landsbygd med tätorter och charmfulla fiskesamhällen. Du hittar höga berg, nakna klippor, lummiga skogar och sandstränder. Du kan med lätthet vara bofast på Orust och pendla till arbete på annan ort genom väl utvecklade kommunikationer både norr- och söderöver.
Bo på Orust
Det är populärt att bo på Orust. Var du än befinner dig är havet inte långt borta och Orust har dessutom en levande landsbygd med kött- och mjölkproducerande bönder. Du kan välja att bo i eget hus i något av de små samhällena eller på landsbygden eller i bostads- och hyresrätter nära samhällskärnorna. Orust kommun har en aktiv samhällsplanering. Bebyggelsen ökar, dock alltid med hänsyn till kulturlandskapet och byggnadstraditionen såväl som miljön, naturliga kretslopp samt resurs- och energihushållning.
Samhällsservice
Samhällsservice finns inom räckhåll för alla. I kommunhuset i Henån får du hjälp med information kring det mesta som rör kommunen. I Henån, som är kommunens centralort, finns också bl.a. vårdcentral och apotek. Orust har också arbetsförmedling, försäkringskassa, postcentral, banker och butiker. Här finns flertalet förskolor, grundskolor och gymnasium. För äldre Orustbor finns äldreboenden med hög standard samt flera trivsamma områden med pensionärslägenheter.
Kultur och nöjen
Utbudet av kultur och nöjen är rikligt. Restauranger, caféer, campingar, museer, gallerier och många andra ställen finns runtom på ön. Flertalet trevliga och välbesökta arrangemang ordnas, bl.a. Taubespelen på Ängön och musikkvällar på Slussens pensionat som varje år gästas av rikskända artister.
Du kan också spela golf på Orust. Det finns två artonhåls golfbanor, Morlanda i väster och Allmag i öster.
Billigt och bra handlar du på Orust egna Ullared – Göksäter.
Köpa, sälja eller värdera bostad i Orust kommun? Kontakta våra mäklare i Bohuslän! Passa också på att anmäla dig till vår kostnadsfria söktjänst Boagenten som hjälper dig att hitta ditt drömboende.
Vi har ett nära partnerskap med SEB Private Banking för att ge dig det bästa affärsläget. Som Private Bankingkund hos SEB får du ett individuellt erbjudande och en personlig kontakt som ser till helheten utifrån dina finansiella behov.
Kontakta mäklaren om du behöver hjälp med en boendekalkyl. När du köper din bostad genom Bjurfors kan du ansöka om bolån till en förmånlig ränta hos vår samarbetspartner SEB.
Med en bred lokal närvaro i Sverige, ett internationellt nätverk, samt ett eget register med aktiva intressenter och investerare – har vi förutsättningar att matcha rätt bostad med rätt köpare.
SE ALLA BOSTÄDER BJURFORS BEYOND