Page is also available in
Förtjusande markplanslägenhet bara minuter från medelhavet i Los Frutales, Torrevieja
Rosaleda – Los Frutales, Torrevieja
Missa inte din drömbostad! Nu kan du snabbt skapa en bevakning via vår kostnadsfria tjänst och få tips om bostäder i Spanien som passar just dina intressen och behov.
Skapa bevakningMarkplanslägenhet med källarvåning, tre sovrum och två badrum i otroligt omtyckta Los Frutales.
Denna inbjudande och smakfullt inredda bostad erbjuder en harmonisk kombination av modernt boende, genomtänkt planlösning och ett utmärkt läge nära Medelhavets glittrande kust.
Med endast några hundra meter till den populära stranden Los Locos och nära Torreviejas stadspuls bor du i ett levande område som erbjuder strandliv, restauranger och service året runt.
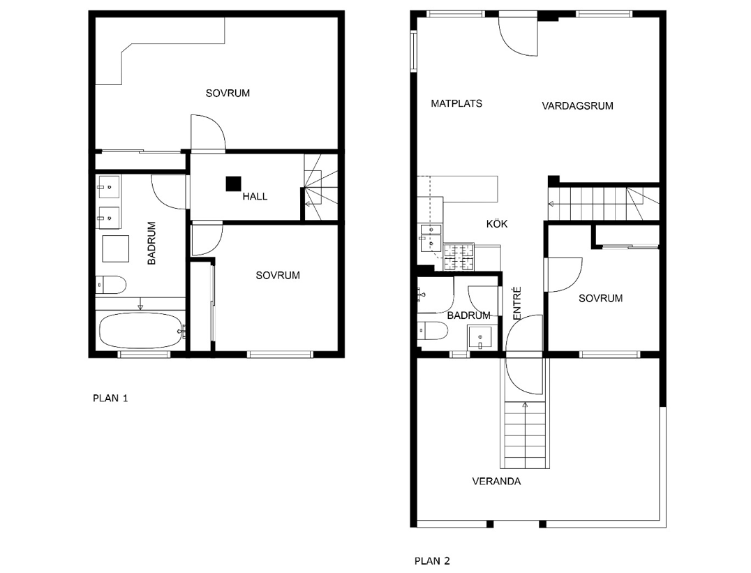
Hemmet är perfekt för den större familjen eller för dig som önskar gott om plats för gäster. Bostaden omfattar två rymliga våningsplan, där varje del har sin egen funktionella karaktär.
Entréplanet utmärks av ett ljust och öppet sällskapsutrymme där vardagsrum och kök möts i en luftig planlösning – idealiskt för både vardag och sociala tillställningar. Det moderna köket erbjuder generösa arbetsytor, riklig förvaring och kvalitativa vitvaror. Här finns även ett rymligt sovrum samt ett fullt utrustat badrum med dusch.
En våning ned väntar en trivsam och välplanerad källarvåning som fungerar som en privat och avskild del av hemmet. Här finns ytterligare två stora och inredda sovrum samt ett fräscht badrum med badkar – perfekt för familjemedlemmar, gäster eller tonåringar som önskar mer integritet.
Bostaden erbjuder även flera attraktiva utemiljöer där terrasser och uteplatser med olika sollägen ger möjlighet att njuta av solen från morgon till kväll. Från entréplanet når du en solig södervänd terrass som inbjuder till avkoppling, måltider utomhus och trevliga stunder i det behagliga medelhavsklimatet.
Som boende i området har du dessutom tillgång till en gemensam pool, vilket höjer livskvaliteten ytterligare – oavsett om du vill svalka dig under sommaren eller njuta av en stunds ro vid vattnet.
Sammantaget är detta en inflyttningsklar, trivsam och flexibel bostad som förenar semesterkänsla med hemtrevnad.
Med närhet till hav, strand, restauranger och service erbjuds en ideal balans mellan bekvämlighet, livskvalitet och Medelhavets charm. Välkommen att kontakta oss på Bjurfors Costa Blanca redan idag.



Gemensamt poolområde
Terrass på fram och baksida, norr- och söderläge om totalt 59 m2
Den mest kända semesterorten söder om Alicante är Torrevieja som har förvandlats från en gammal fiskeby till en modern mellanstor stad under de senaste decennierna. Med drygt 100 000 invånare har Torrevieja mångdubblat sin population de senaste 30 åren. Här finns förutom fina sandstränder, badvikar och vackra strandpromenader ett stort urval av affärer, restauranger och barer samt ett rikt nattliv.
Torrevieja ligger 36 km söder om Alicantes flygplats och människor från hela världen har lockats hit av olika anledningar, främst det hälsosamma klimatet med 320 soldagar om året, men även de möjligheter som ett mångkulturellt turistparadis ger. Här finns allt man kan behöva för att leva och bo året om och även om det finns många utländska invånare här, är det fortsatt en myllrande spansk stad med trånga gator och flera små torg.
I den norra delen av Torrevieja, ligger Torre La Mata som kan skryta med sin långa strandpromenad kantad av restauranger och uteställen. Här bor du med direkt närhet in till stan, men slipper befinna dig mitt i myllret. Här kan vi erbjuda alla typer av bostäder i alla möjliga prisklasser – Norra delen av Torrevieja har verkligen något för alla!
Söder om staden efter Mar Azul ligger viken Cala Ferris; vilken erbjuder en fin kontrast till allt runt omkring. Inramat av palmer med små gyllene sanddyner, är detta ett ställe att njuta av en lugn simtur i det kristallklara vattnet eller något att dricka på Restaurante Ferris med terrassen precis bredvid havets skvalpande vågor.
Har du frågor kring att sälja eller köpa bostad i Torrevieja? Tveka inte att kontakta våra mäklare i Torrevieja så hjälper de gärna dig.
Ansvarig mäklare
Extra kontaktperson