Page is also available in
Charmigt hörnradhus med takterrass i natursköna och idylliska Torremendo
San Miguel de Salinas, Torrevieja
Missa inte din drömbostad! Nu kan du snabbt skapa en bevakning via vår kostnadsfria tjänst och få tips om bostäder i Spanien som passar just dina intressen och behov.
Skapa bevakningRymligt radhus med tre sovrum, två badrum, gästtoalett och fint poolområde, endast tjugofem minuter från Medelhavet.
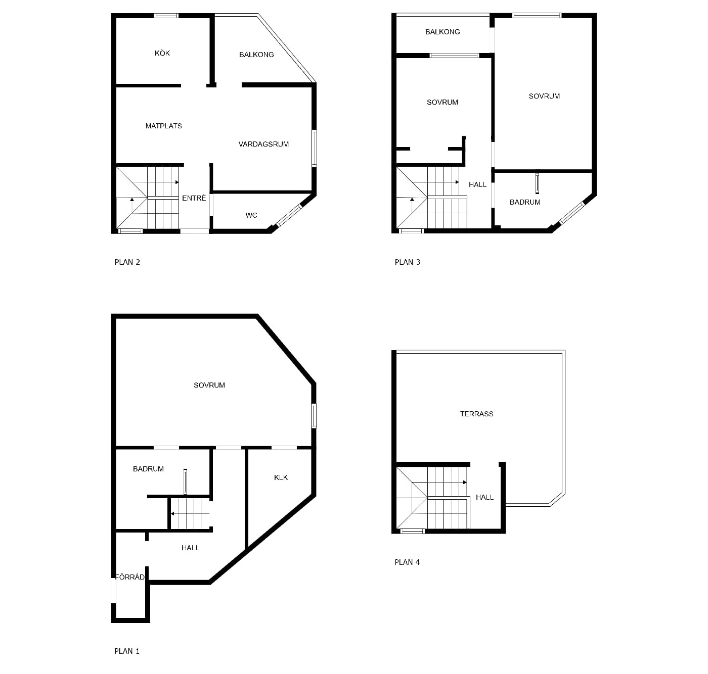
Välkommen till detta rymliga och välplanerade hörnradhus i den idylliska urbanisationen Lakeside Mews i Torremendo. Med en östlig orientering bjuder bostaden på enastående vyer över den glittrande insjön, de majestätiska bergen och den omgivande naturen. Här får du en perfekt balans mellan lugn och bekvämlighet, med stora sällskapsytor både inomhus och utomhus.
Torremendo är en trevlig spansk by som bjuder på en rofylld atmosfär och ett genuint lokalsamhälle. Belägen i hjärtat av vacker landsbygd, men ändå nära större orter, erbjuder området det bästa av två världar. Embalse de la Pedrera, den imponerande insjön, är en av de största attraktionerna och skapar en spektakulär bakgrund. Här kan du njuta av promenader, cykling och naturupplevelser i en harmonisk och avslappnad miljö. Torremendo har även lokala restauranger, butiker och service för en bekväm vardag. Samtidigt ligger Torrevieja och Orihuela Costa endast en kort bilresa bort, där du finner större shoppingcenter, nöjen och de vackra stränderna vid Medelhavet.
Huset är uppdelat på flera våningar och erbjuder gott om plats för den stora familjen. På nedre plan finns ett sovrum, ett en suite-badrum med dusch samt praktiska förvaringsmöjligheter. En unik detalj med detta hem är den direkta utgången till den egna parkeringsplatsen, som är ovanligt stor – en fördel för både bekvämlighet och funktionalitet.
På entréplan möts du av ett luftigt vardagsrum med matplats och utgång till en härlig balkong med utsikt. Här finns även ett separat och välutrustat kök samt en gästtoalett.
Övre plan har två sovrum, varav det ena är extra rymligt och har tillgång till ytterligare en balkong med vacker utsikt. Ett badrum med badkar kompletterar våningsplanet.
En sista trappa upp väntar bostadens höjdpunkt – en fantastisk takterrass med sagolik panoramautsikt över insjön, de närliggande bergen och det vackra naturområdet. Perfekt för avkoppling, middagar i solnedgången eller sociala stunder med familj och vänner.
Denna bostad, som säljs exklusivt med oss på Bjurfors Costa Blanca, är perfekt för dig som söker rymlighet, komfort och en oslagbar utsikt i en naturnära miljö.
Kontakta oss idag för att boka en visning eller om du vill ha ytterligare information.



Välskött poolområde i nära anslutning till bostaden, med trivsamma umgängesytor.
De två balkongerna på separata våningar bjuder på vackra naturvyer, och takterrassen är en privat oas med gott om plats för sociala stunder.
För dig som söker det genuina spanska och inte är beroende av det absolut kustnära läget kan den lilla jordbruksbyn San Miguel de Salinas vara ett alternativ. Byn ligger belägen på en höjd cirka 10km från kusten med vacker utsikt över apelsinlundarna och saltsjöarna.
San Miguel de Salinas har två kommunala skolor upp till gymnasienivå i byn samt den välrenommerade “El Limonar International School” inom kommungränsen. I byn finner du alla tänkbara faciliteter såsom bank, post, välsorterade matvarubutiker, slaktare, fiskaffär, bageri etc.
Det finns ett stor utbud av restauranger och barer i byn, där ”Las Cuevas” är den restaurang som sticker ut bland konkurrenterna. Insprängd i gamla grottor har man skapat en gemytlig atmosfär där internationella anrättningar får smaklökarna att slå kullerbyttor – ett måste när man besöker San Miguel de Salinas.
Bara ett stenkast, eller varför inte ett golfslag, från San Miguel de Salinas ligger den spektakulära mästerskapsbanan Las Colinas Golf and Country Club. Banan som stått värd för kvaltävlingar till Europa Touren håller alltid mycket hög kvalitet avseende såväl banans status samt kringservice.
För den cykelintresserade finns många härliga småvägar att ge sig ut på inom kommunen. Ett guldkorn är den tighta, slingrande CV-952. Vägen tar dig på en fantastiskt vacker, och stundtals utmanande tur i kuperad terräng bland apelsin och citrusodlingar via den härliga restaurangen Rebate hela vägen ut till havet! Ett stopp på Rebate är något som kan rekommenderas för att släcka törsten och ladda batterierna.
Har du frågor kring att sälja eller köpa bostad i San Miguel de Salinas? Tveka inte att kontakta våra mäklare i Torrevieja så hjälper de gärna dig.
Ansvarig mäklare
Extra kontaktperson