-
Köpa
Köpa -
Sälja
Sälja - Hitta bostad
- Skapa bevakning
- Hitta mäklare
Äntligen är ett bostadsrättsradhus till salu på Nyponvägen!
Fridhem, Gävle
*I avgiften ingår värme, vatten, kabel-tv och garage
**Enligt föreningen
Anmälan krävs.
Äntligen är ett bostadsrättsradhus till salu på Nyponvägen! Huset är disponerat i 3 plan med sovrum i entréplan och på övervåning. På baksidan finns en insynsskyddad trädgårdstomt med morgonsol och på framsidan finns en uteplats i markplan samt en balkong med kvällssol. Här bor du bekvämt med närhet till både förskola, skola, lekpark, affär och smidiga bussförbindelser – allt inom kort promenadavstånd.
Föreningen är välskött och har under åren genomfört flera stora investeringar som skapar trygghet för dig som ny ägare. Bland annat har man bytt fönster till moderna 3-glas, lagt om yttertak, friköpt marken som tidigare varit tomträtt, utfört stamrenovering samt renoverat badrum. Allt för att du ska kunna flytta in och njuta av ett bekymmersfritt boende.
Varmt välkomna på visning till Nyponvägen 3D!
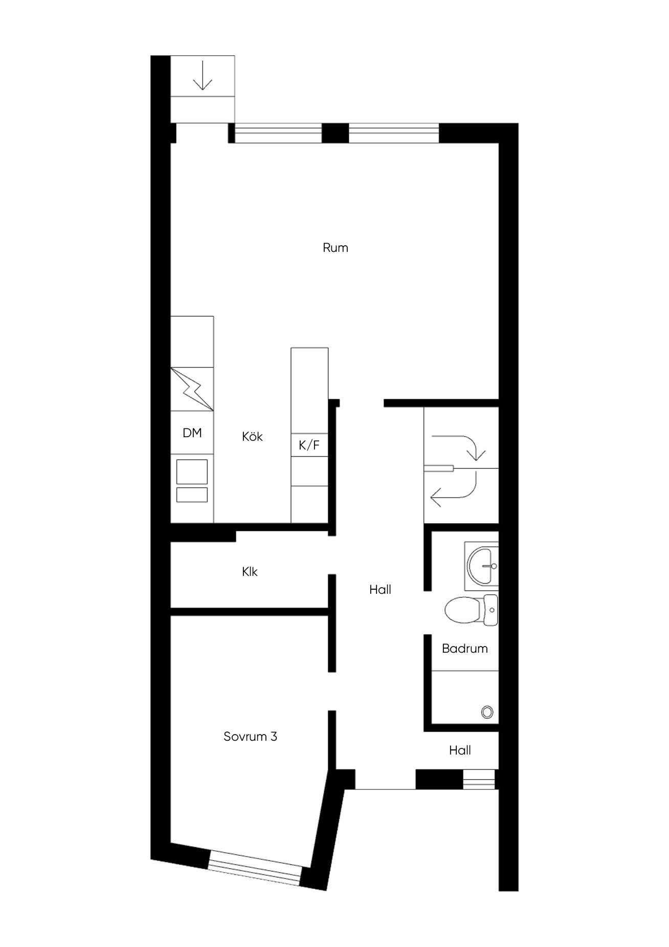
ENTRÉPLAN:
-Välkomnande hall med avhängningsmöjligheter.
-Kök utrustat med spis, ung, fläkt, mikro, kyl, diskmaskin samt tillhörande matrum. Utgång till uteplatsen. Motorstyrd markis över hela.
-Sovrum som passar perfekt som arbetsrum/gästrum.
-Helkaklat badrum renoverat 2015 i samband med stambytet. Utrustat med klinker (golvvärme) och kakel, wc, dusch.
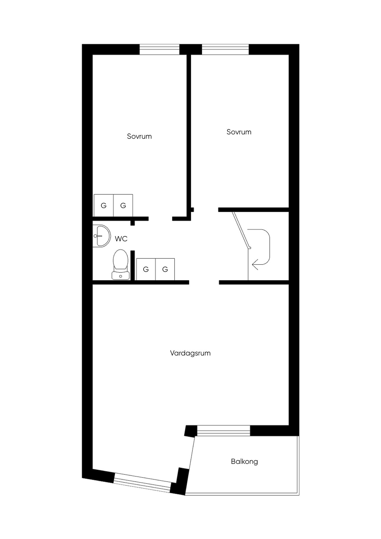
ÖVERVÅNING:
-2 sovrum med fönster mot baksidan.
-Ljust och rymligt vardagsrum med gott om plats för önskad möblering. Utgång till balkong i härligt västerläge.
-Gäst-wc.
KÄLLARVÅNING:
-Relaxrum med bastu.
-Tvättstuga utrustad med tvättmaskin, torktumlare och tvättbänk.
-Förvaring/sovrum med klinkergolv och golvvärme via elslinga.
-Matkällarförråd och ytterligare ett förråd under trappen.



Entréplan
Övervåning
Källarvåning
*Enligt föreningen
I avgiften ingår värme, vatten, kabel-tv och garage
Uteplats finns på baksida och framsida. Balkong med utgång från vardagsrummet på övervåningen.
Garageplats i länga med motorvärmaruttag ingår i månadsavgiften.
Bredband via GavleNet.
Bostadsrättens indirekta nettoskuldsättning baseras på föreningens skulder/lån minus föreningens räntebärande tillgångar och likvida medel. Beräkningen är gjord och baseras på senaste tillgängliga årsredovisningen. För mer information kontakta ansvarig fastighetsmäklare.
Brf ToppmurklanFöreningen består av 18 st radhus varav samtliga upplåtes med bostadsrätt. Föreningen bildades 1962. Föreningen äger marken.
Kabel-TV (Comhem) basutbud ingår i månadsavgiften. Bredband tecknas separat av medlem. Fiber finns indraget till samtliga lägenheter via Gavlenet.
Till varje lägenhet hör en garageplats. Ingår i månadsavgiften.
Föreningen tar inte ut någon överlåtelseavgift och pantsättningsavgift.
2001 Nya ytterdörrar
2007 Fjärrvärme och fiber installation
2011 Friköpning av tomten
2015 Stambyte
2020 Energideklaration, OVK och radonmätning
2021 Takbyte
2022 Fönsterbyte
Garage i länga ingår i månadsavgiften.
Kabel-TV via Comhem. Fiber via Gavlenet.
Vill du köpa, sälja eller värdera bostad i Gävleborg? Kontakta våra mäklare! Passa också på att anmäla dig till vår kostnadsfria söktjänst Boagenten som hjälper dig att hitta ditt drömboende i Gävleborg.
Här hittar du alla våra lediga bostäder till salu i Gävleborgs län just nu!
Kontakta mäklaren om du behöver hjälp att ta fram en boendekalkyl.
När du köper din bostad genom Bjurfors kan du ansöka om bolån till en förmånlig ränta hos vår samarbetspartner SEB.
Anmälan krävs.
Ansvarig mäklare