Hoppa till innehåll

Välskött hyresfastighet på Birkagatan 12!

Södertull, Gävle

Birkagatan 12

Pris:
6 500 000 kr
Antal rum:
9
Boarea / Biarea:
225 kvm / 100 kvm*
Tomtarea:
672 kvm
Typ:
Friliggande villa

*Areauppgifter enligt taxeringsinformationen

ANMÄL DIG TILL VISNING

  1. Anmäl dig till mäklaren för visningstid

Ansvarig mäklare

Jens Bengtsson

Fastighetsmäklare / Franchisetagare

Bjurfors Gävle
Jens Bengtsson

BOKA EN KOSTNADSFRI VÄRDERING

Välskött hyresfastighet på Birkagatan 12!

Beskrivning

Varmt välkomna till denna välskötta fastighet på Birkagatan 12. Fastigheten är en mindre hyresfastighet med tre lägenheter, två st om 2 rok i entréplan samt en 5 rok på övervåningen i två plan. Fullt uthyrt idag. Fastigheten har under åren 1996/1997 genomgått en större renovering med bl a utbyggnad av trapphus, två takkupor, byte till 3-glasfönster samt total renovering interiört. El och VVS är utbytt i hela fastigheten. Bergvärme är installerad med dubbla borrhål och pannan är nyligen servad. Grunden är omdränerad samt isolerad utvändigt. Fiber är indraget. Ommålad utvändigt hösten 2025. Som sagt var, en mycket välhållen fastighet med kanonläge på Södertull.
Fastigheten som är av typkod 320 (hyresfastighet) kommer att säljas genom övertagande av aktierna i en fastighetspaketering.

Interiör

Huset har en tillbyggd entré med gemensamt trapphus med diverse förvaring.

Samtliga lägenheter har parkettgolv.

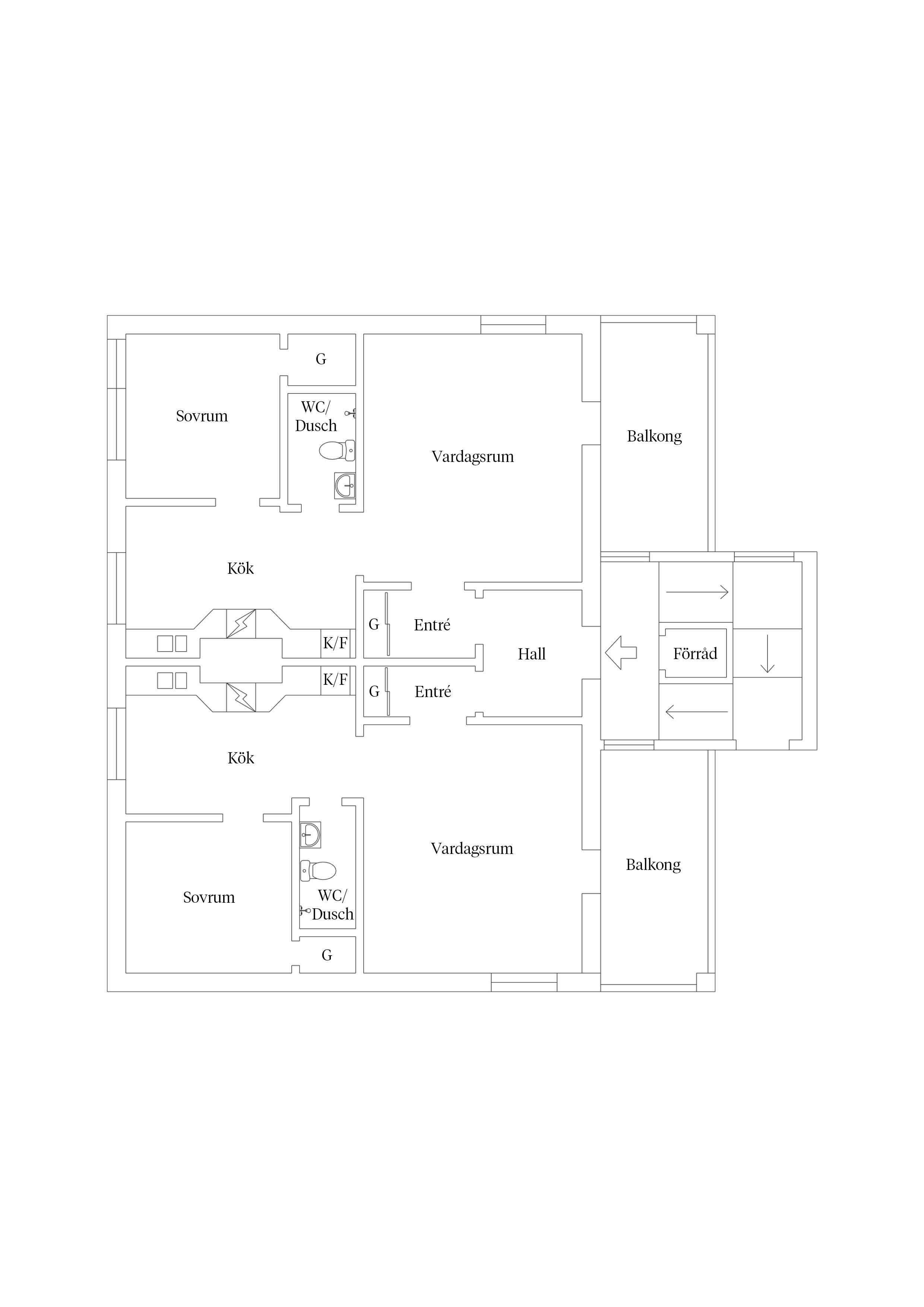
ENTRÉPLAN: Lägenhet 1 om 45 kvm. Innefattande hall, vardagsrum, kök, sovrum samt badrum. Vardagsrummet har parkettgolv och utgång till balkong finns här. Köket med diskmaskin, kyl/frys, spis, ugn samt fläkt. Sovrum innanför. Badrum med kakel på väggar och linoleummatta på golv dusch, wc och tvättställ.
Lägenhet 2 om 45 kvm. Innefattande hall, vardagsrum, kök, sovrum samt badrum. Vardagsrummet har parkettgolv och utgång till balkong finns här. Köket med diskmaskin, kyl/frys, spis, ugn samt fläkt. Sovrum innanför. Badrum med kakel på väggar och linoleummatta på golv dusch, wc och tvättställ.
ÖVERVÅNING: Lägenhet 3 om ca 135 kvm fördelar på 2 plan. Lägenheten består av hall med trappa till övervåningen. Du når vardagsrummet från hallen och vardagsrummet har en öppen planlösning med köket. Från vardagsrummet når du också de 2 sovrummen som har vardera utgång till varsina balkonger. Badrummet har linoleummatta på golv och kakel på väggarna, badkar, wc och tvättställ. Köket med diskmaskin, spis, ugn samt kyl och frys. På övervåningen finns extra badrum med kakel på väggar och linoleummatta på golv dusch, wc och tvättställ. 2 sovrum med takkupor.
KÄLLARVÅNING: Källaren med putsade väggar och klinkergolv. Här finns 2 stora förråd, tvättstuga med tvättmaskin och torktumlare, separat torkrum, pannrum samt bastu med relax i form av helkaklat med dusch.

Planritning

Planlösning

Entréplan

Planlösning

Övervåning

Planlösning

Våning 2

Planlösning

Källarvåning

Fakta om bostaden

Fastighetsbeteckning

Södertull 11:7

Information

Typ
Friliggande villa
Upplåtelseform
Friköpt
Pris
6 500 000 kr
Rum
9
Antal sovrum
6
Boarea
225 kvm*
Biarea
100 kvm
Tomtarea
672 kvm

*Areauppgifter enligt taxeringsinformationen

Byggnadssätt

Byggnadstyp
2 plan med källare
Byggår
1946
Fasad
Trä
Stomme
Trä
Bjälklag
Trä
Uppvärmning
Bergvärme med dubbla borrhål
Takbeklädnad
Tegelpannor
Ventilation
Mekansik frånluft
Fönster
3-glas fönster

Radonmätning utförd 2020 med mätvärden lägre än 20 Bq/m3.

Övriga byggnader/utrymmen

Förråd för cyklar osv.

Besiktning

Besiktigad
Nej

Uteplats/balkong

4 balkonger fördelat på 1 för lägenheterna i entréplan och 2 st för lägenheten på övervåningen.

Vatten/Avlopp

Kommunalt vatten och avlopp.

Tomt

Uppvuxen trädgårdstomt med fruktträd.

Parkering

Uppställningsplats för flera bilar vid entrén.

Planbestämmelser

Stadsplan (1942-07-17)

TV/bredband

Fiber via Gavlenet.

Ekonomi

Taxeringsvärde
3 451 000 kr
Byggnadsvärde
2 496 000 kr
Fastställt
2025
Kod
320, Hyreshusenhet, bostäder
Fastighetsskatt/Avgift
10 353 kr

Driftskostnad (per år)

Värme
31 400 kr
Försäkring
6 348 kr
Renhållning
6 000 kr
Vatten/Avlopp
23 100 kr
Summa
66 848 kr

Finns separata elmätare för varje lägenhet och en för fastigheten.

Energideklaration

Utförd
Ja
Energiklass
C
Energiförbrukning per kvm och år
44
Energideklarationsdatum
2020-05-28

Övrigt

Hyresintäkt för lägenhet 1 är 78 000 kr/år. Hyresintäkt för lägenhet 2 är 78 000 kr/år. Hyresintäkt för lägenhet 1 är 150 000 kr/år. I hyran ingår värme och vatten. Finns separata elmätare för varje lägenhet och en för fastigheten. Hyresgästernas el är ej medräknad i kalkylen. Hyresintäkt 2026 om 306 000 kr/år och en beräknad driftskostnad som uppgår till ca 66 000 kr/år ger ett driftnetto om ca 240 000 kr/år.

Pantbrev

Det finns 5 st pantbrev uttagna om sammanlagt 1 400 000 kr

Om Gävleborg

Vill du köpa, sälja eller värdera bostad i Gävleborg? Kontakta våra mäklare i Gävle. Passa också på att anmäla dig till vår kostnadsfria söktjänst Boagenten som hjälper dig att hitta ditt drömboende i Gävleborg.

Här hittar du alla våra lediga bostäder till salu i Gävleborgs län just nu!

Karta

Boendekalkyl

Kontakta mäklaren om du behöver hjälp att ta fram en boendekalkyl.

När du köper din bostad genom Bjurfors kan du ansöka om bolån till en förmånlig ränta hos våra banksamarbetspartners Söderberg & Partners och SEB.

Ansök om lånelöfte hos Söderberg & Partners

Ansök om lånelöfte hos SEB

Håll koll på detta objekt

Anmäl dig till visning

Anmäl dig till mäklaren för visningstid

Mäklare

Ansvarig mäklare

Jens Bengtsson, Bjurfors Gävle
Kampanjbild Boneo