-
Köpa
Köpa -
Sälja
Sälja - Hitta bostad
- Skapa bevakning
- Hitta mäklare
Kombinera ett trevligt attraktivt boende med din nästa arbetsplats
Fole, Gotland
*Areauppgifter enligt taxeringsinformationen
Kontakta mäklaren för mer information gällande budgivningen.
Vill du kombinera ett trevligt och attraktiv boende med din eventuella nästa arbetsplats då kan detta vara tillfället som du väntat på.
Endast ca 2 mil ifrån Visby ligger denna trevliga fastighet bestående av en enplansvilla samt en industrilokal där nuvarande ägare haft livsmedelsproduktion från år 2003 fram till 2020. Här finns alla möjligheter för en ny ägare att omgående starta upp en egen verksamhet i befintlig lokal.
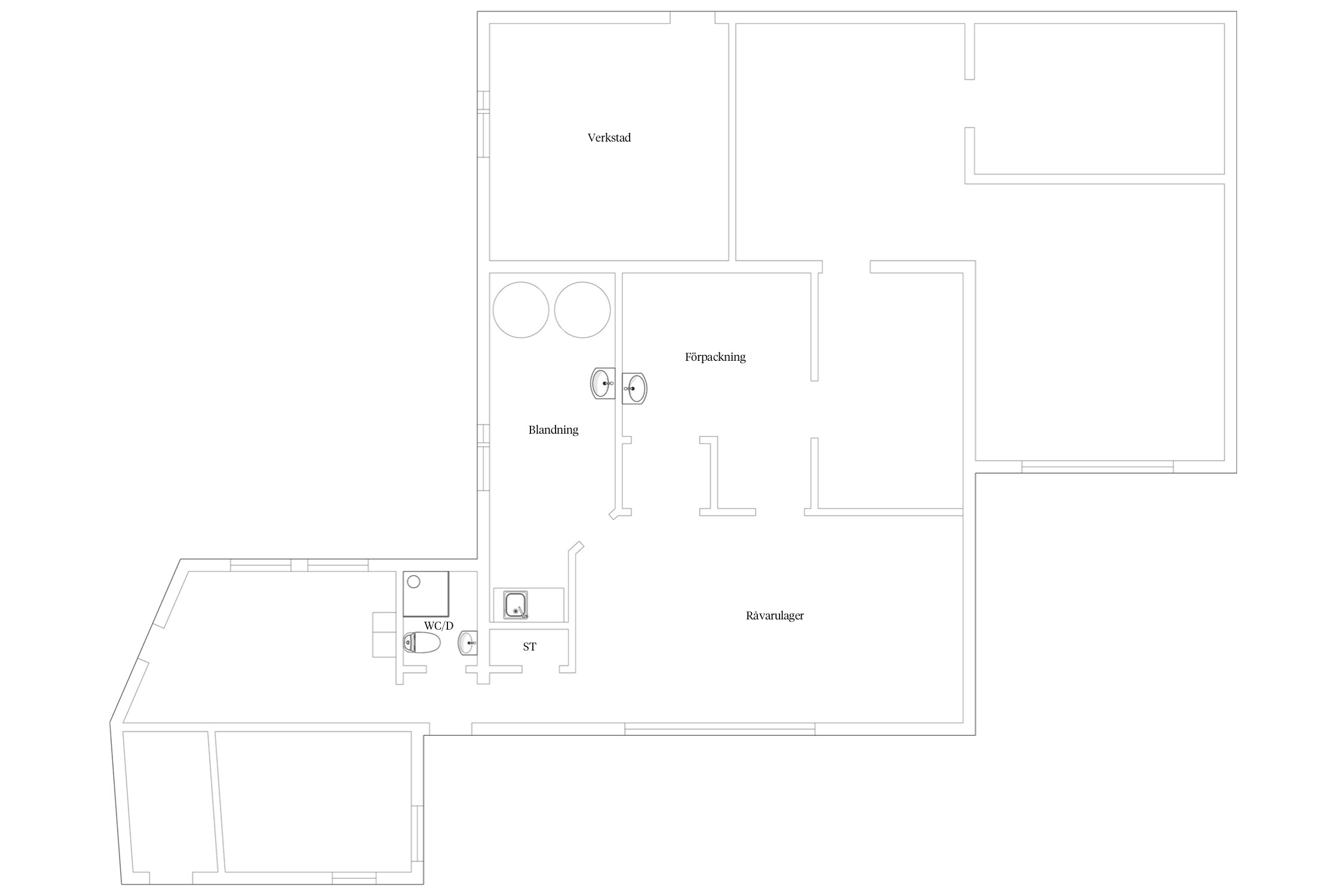
Om du inte vill utnyttja industrilokalen för eget bruk finns möjligheten att hyra ut med goda hyresintäkter. Den kommersiella lokalen ligger väl avskilt från bostadshuset och är ca 250 kvm.
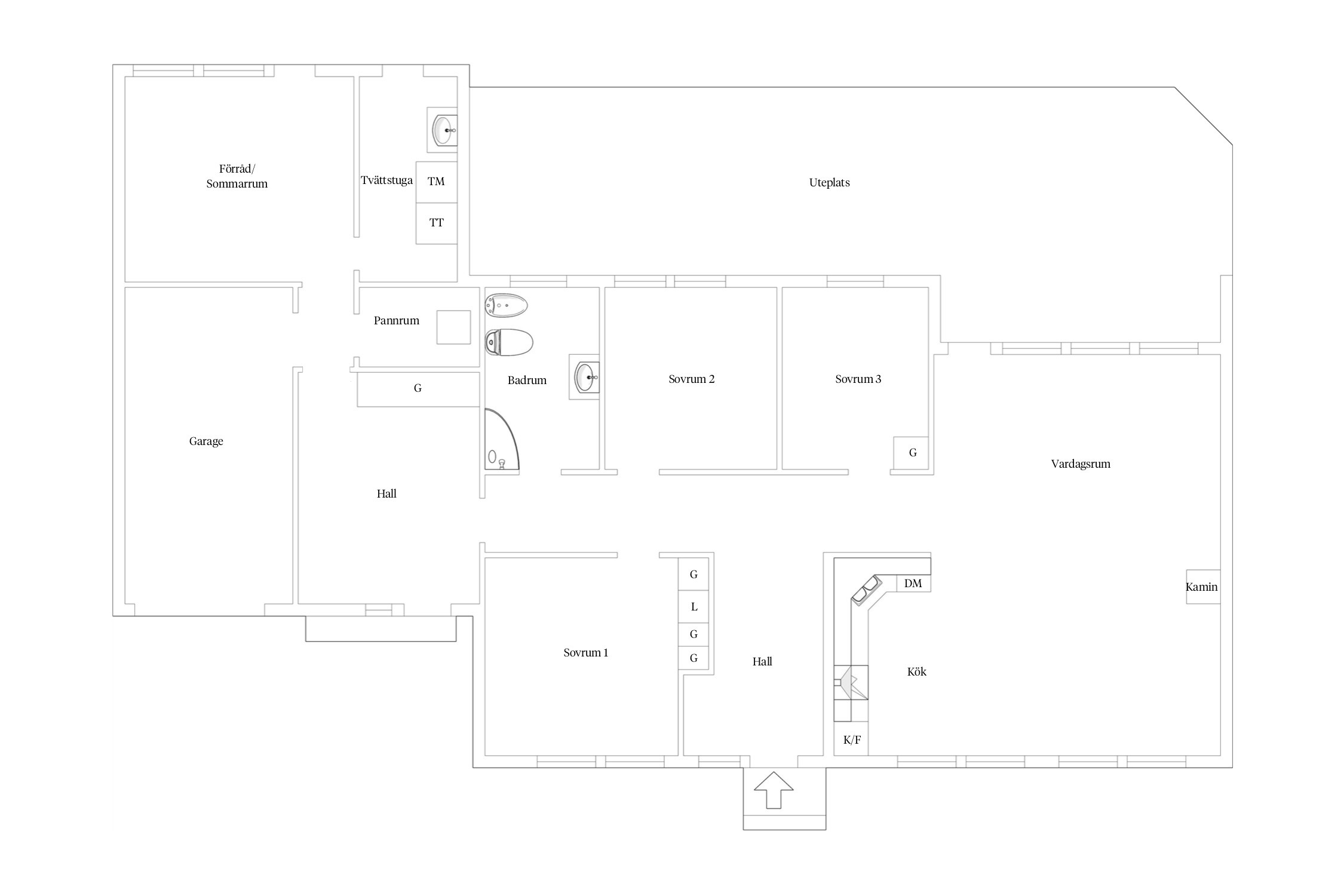
Bostadshuset består av 3 sovrum, ett stort fint badrum och kök och vardagsrum i en öppen planlösning. Vardagsrummet har utgång till en stor härlig altan. Kök och badrum är i ett gott och fräscht skick. Renoveringar har skett löpande mellan åren 2015 - 2017.
Fole är en väldigt populär socken mycket pågrund av sin närhet till Visby samt att det här finns både mataffär ( ICA Nära Krampboden ) som har öppet året runt måndag- söndag. Här finns även Fole skola för årskurserna F-6 samt Stora Tollby gård som producerar potatis och grönsaker med egen gårdsförsäljning.
Lägg märke till att denna fastighet har två olika taxeringskoder 220 småhusenhet samt Industrienhet , livsmedelsindustri 422 vilket kan innebära att du behöver prata med din bank gällande ett eventuellt lånelöfte.
Tveka inte att kontakta oss på Bjurfors för mer information om bostaden.



Planlösning bostadshus
Planlösning industrilokal
Fole stora sojdeby 1:27
*Areauppgifter enligt taxeringsinformationen
2015 totalrenovering av duschrum
2017 renoverades kök
2019 hall renoverades med ny platta, och flytande golvkonstruktion
2015 - 2019 har vissa isolerglasfönster installerats
2022 installerades ny kamin samt skorsten
Industri avkastningsberäknad kontor
Industri avkastningsberäknad lager
Industri avkastningsberäknad produktionslokal
Industri avkastningsberäknad lager
Industri avkastningsberäknad produktionslokal
Uteplats i söderläge
På Fole Stora Sojdeby 1:27 finnns information om en enskild avloppsanläggning för rening av WC- och BDT-vatten med beslut från 2003 som avser 2 hushåll på fastigheten. Anläggningen utfördes samma år (2003) och består av en trekammarbrunn med efterföljande infiltration på 60 kvm gemensam med ett hushåll från grannfastigheten Fole Stora Sojdeby 1:28. Infiltrationen är placerad på Fole Stora Sojdeby 1:23.
Enskilt vatten
Vidbyggt garage med plats för en bil samt parkering på uppfarten
Förmån: Avtalsservitut Avloppsledning mm, 09-IM1-78/4622.1
Förmån: Officialservitut Väg, 09-FOL-180.1
Mobilt bredband
Nyttjanderätt Kommunikationsledning
Driftkostnader och elförbrukning är inhämtade från säljaren och bör endast ses som en uppskattning. Kostnaden kan variera och baseras på förbrukning och avtal.
Det finns 5 st pantbrev uttagna om sammanlagt 449 300 kr
Bjurfors är självklart verksamma på en av Sveriges soligaste platser – Gotland. Med vår stora lokalkännedom och med koll på landets flyttströmmar till och från Gotland hittar vi rätt köpare och rätt bostad. Välkommen till Bjurfors Gotland för en lyckad bostadsaffär!
Vill du köpa, sälja eller värdera bostad på Gotland? Kontakta våra mäklare på Gotland! Passa också på att anmäla dig till vår kostnadsfria söktjänst Boagenten som hjälper dig att hitta ditt drömboende.
Kontakta mäklaren om du behöver hjälp att ta fram en boendekalkyl.
När du köper din bostad genom Bjurfors kan du ansöka om bolån till en förmånlig ränta hos vår samarbetspartner SEB.
Kontakta mäklaren för mer information gällande budgivningen.
Kontakta mäklareAnsvarig mäklare
Extra kontaktperson