-
Köpa
Köpa -
Sälja
Sälja - Hitta bostad
- Skapa bevakning
- Hitta mäklare
Ostört läge med en elegant och tidlös design samt fri havsutsikt och enastående terrassytor
Kullavik - Kyvik, Kungsbacka
*Areauppgifter enligt taxeringsinformationen
Bjurfors Beyond presenterar unik arkitektur, sju mycket ljusa rum samt ett helt vidunderligt havspanorama på ett av Korshamns allra högsta lägen.
Valåsvägen letar sig upp mellan grönskan och slutar på en av Korshamns allra högsta punkter. Runt den L-formade privatvillan, med helt unik arkitektur, löper långa och stora terrassytor. Villans båda plan är till stor del inramade av nästintill heltäckande glaspartier mot havet. Detta ger sammantaget en närmast vidunderlig panoramautsikt i långt mer än 180 grader över sluttningen, skärgården och ut över havet. I solnedgången ligger horisonten fri och det privata och skyddade läget är bokstavligen höjt över det vanliga.
Den spektakulära byggnaden uppe på krönet är gestaltad av arkitekt SAR Christer Nordstrand. Villan är lösvirkesbyggd och arkitektens vision var att ta vara på det unika och mycket höga utsiktsläget. Den höga och fria platsen fångar solen under hela dagen och de nästintill heltäckande glaspartierna ger interiören en öppen transparens till såväl vyerna som de stora terrassytorna. Villan går i en tidlöst skandinavisk och blond ton med sparsmakad design och rena naturmaterial. En stark känsla av ljusa ytor och ansenlig rymd uppfyller i princip hela bostaden – havsutsikten är ständigt närvarande. Det övre planets stora sällskapsytor i öppen planlösning med matsal och kök genomkorsas av ljus från tre håll och häruppe ligger även den sobra master bedroom-sviten med privat läge och egen utgång till en stor altan. En trappa ner från altanen överraskar villan med en helt skyddad trädgårdsdel i två etage. Trädgården mot söder vetter mot grönområde som ej får bebyggas enligt nuvarande planbestämmelser så denna del är mycket privat och insynsskyddad. Entréplanets till stor del öppna planlösning rymmer stort allrum med havsutsikt, tre sovrum – med utgång till terrassytor, varav två av sovrummen har havsutsikt – samt en groventré med tvättstuga. Villan har fyra sovrum, två sobra badrum, exklusivt kök med grafiskt ren ton, öppen spis, terrassbalkong, stora terrassytor, sällskapsytor på båda planen, platsbyggda förvaringslösningar, stor entréhall, rejäl carport, stor uppfart, grönskande trädgård i flera etage, uteförråd mm. Huset och förrådet är tillsammans på totalt ca 234 kvm.
Via en kort promenad når du den idylliska badviken Korshamn där en nyttjanderätt till en båtplats på ytterbryggan kan ingå i köpet. Kullavik har flera badvikar och stränder som är kantade av de typiska västkustklipporna. Namn som Kyvik, Kullaviks hamn, Gillvik, Kullsvik eller Skalvik väcker en stormflod av sommarminnen för generationer av sommargäster. Många som seglar längs kusten har för vana att glida in till kajen i Kullaviks Båthamn där seglingsintresset är extra stort. Den svenske designern och seglarlegenden Pelle Pettersson lade en gång till här och är sedan dess bosatt på orten. Kullaviks Kanot- & kappseglingsklubb har haft framstående seglare i både världs- och sverigeeliten. Förutom havet, med sina givna möjligheter till båt- och vattensport - finns en självklar närhet till naturen. Ett stycke bort passerar dessutom västkustens vackraste cykelbana, den gamla Säröbanans banvall. Detta var Sveriges första tåglinje som fram till 50-talet forslade Göteborgarna ut till deras sommarhus längs kusten. En skön morgon kanske du vill ta cykeln ända in till Göteborg, det går snabbare än du tror. Kullavik har väl utbyggda kommunikationer till såväl närbelägna Kungsbacka som Göteborg. Tar du bilen kan du parkera på Avenyen efter cirka 25 minuter. All tänkbar service finns i Kullaviks närområde, liksom flera förskolor och skolor. Den pittoreska miljön understryks av restauranger, caféer, bageri och butiker.
Den branta återvändsgatan tar på krönet av till höger efter villans entrésida. Här ligger en stor, grusad uppfart med plats för flera bilar. Under tak finns en stensatt carport med elbilsladdare invid villans groventré.
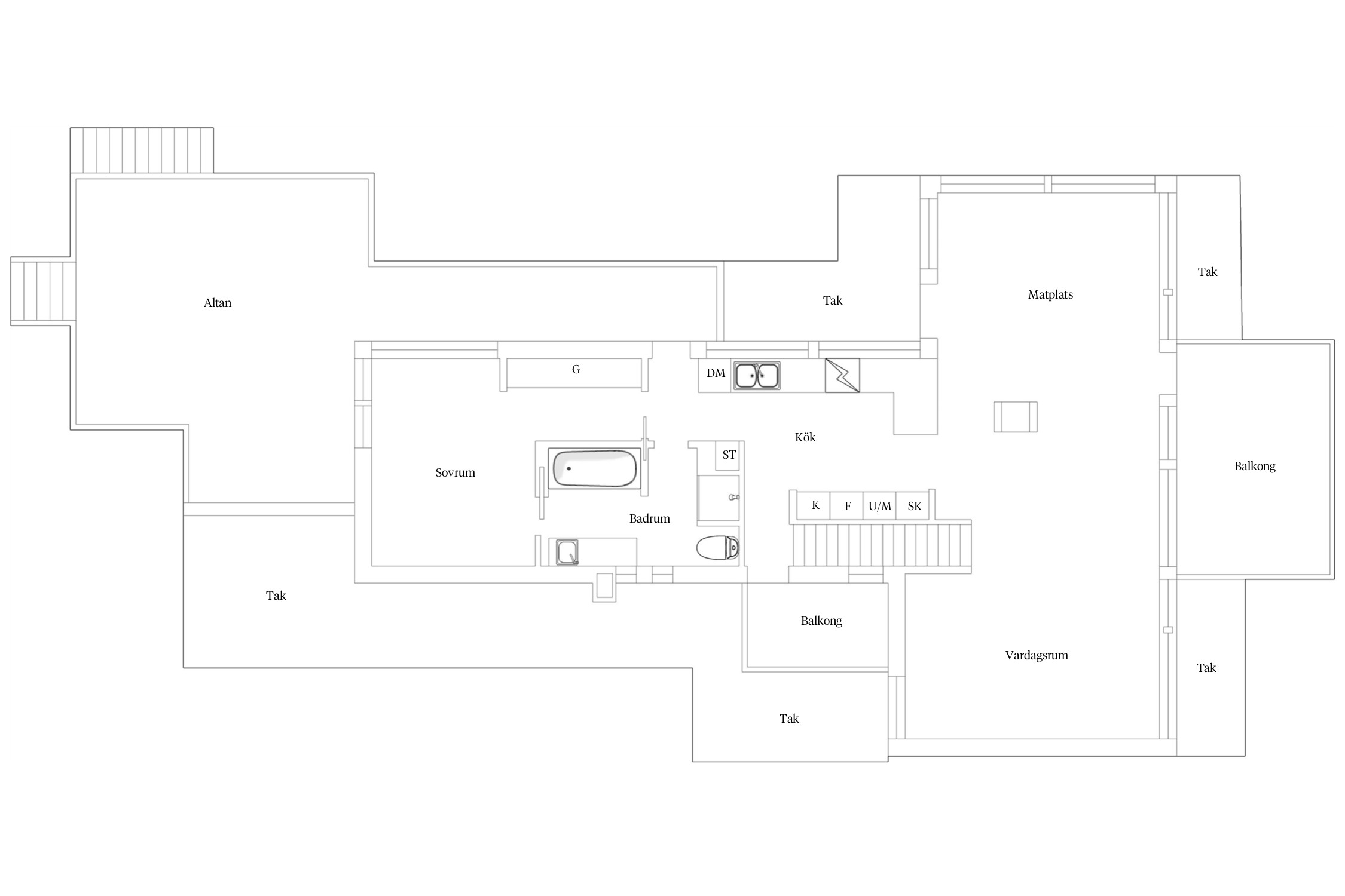
ENTRÉHALL
Villans breda huvudentré ligger under en inbjudande huvudentré med glaspartier från golv till tak . Två takhöga glaspartier, varav det ena är entrédörren, låter ljuset flöda in i den stora entréhallen med härlig takhöjd. En blond trestavsparkett breder ut sig och mitt i den stora ytan försvinner en rak trappa upp i en ljussluss. Trappan i ek och glas blir som ett högt designelement. Bakom trappan fortsätter ekparketten ut i entréplanets öppna planlösning.
SÄLLSKAPSYTOR
Bjud upp gästerna till villans iögonfallande sällskapsytor i öppen planlösning med matsal och kök. Det första intrycket är snudd på oförglömligt. Vitlaserad parkett försvinner iväg åt båda håll och besökaren står plötsligt öga mot öga med skärgård, hav och himmel. Det mycket höga läget över Korshamn, och sluttningen ner mot havet, blir uppenbart och ljuset faller in från tre håll. Två av väggarna har i princip heltäckande glaspartier som öppnar de höga, milsvida och spektakulära vyerna i långt mer än 180 grader. Den rena arkitekturen är tidlöst modern och känslan av stora och öppna rumsvolymer är påtaglig. Den vidöppna transparensen mot utemiljön understryker känslan av rymd. I de stora ytornas mitt reser sig en formren öppen spis i vitputs, glas och svart smide. De flammande lågorna kan ses från två håll i det stora rummet. I ena änden finns en naturlig vardagsrumsdel med ljus från två håll. Sällskapsytorna är skapade för fest med många gäster, men den trivsamma rumsligheten gör dem lika anpassade för familjens vardagsliv.
TERRASSBALKONG
Via ett glasparti i sällskapsytorna kan gästerna leta sig ut på terrassbalkongen som är inramad av räcken i klarglas. Utsikten när solen går ner vid västerhavets horisont är svårslagen och vågorna slår knappt 400 meter ner. Det höga läget ger en trygg och skyddad plats trots den fria utsikten
KÖK & MATSAL
I ytornas vänstra hörn möts glaspartierna i hörnet och utsikten breddar sig. Här finns plats för matsalsbord med många gäster. I anslutning och i vinkel ligger det stora köket som delas av med en köksö med barhäng. Nedanför den traditionella bardisken finns plats för amatörbartenderns arbete. Ytterligare stora glaspartier löper över långa arbetsytor i blanksvart granit från Nero. Den lådbaserade inredningen i minimalistiskt vitt har sparsmakat designade beslag i borstat stål. De svarta arbetsytorna med underlimmad ho i rostfritt skapar ett grafiskt intryck i den ljusa miljön och åt båda håll finns utgångar till terrassytorna, med morgon- respektive kvällssol. Vitvarorna är helintegrerade med bland annat dubbla ugnar och en extrabred, nyinstallerad induktionshäll. Spis från 2024, spisfläkt från ca 2022, två kombiugnar/mikro från 2010, frys från 2024, kyl från 2010, diskmaskin från ca 2020. Vit ektarkett.
TERRASSER & TRÄDGÅRD
En av villans absoluta huvudnummer är de stora terrassytorna som omfamnar stora delar av villans söder, norr- och västerfasad och fångar solljuset hela dagen. Från köket kan man gå ut på västerbalkongen som leder fram till en stor altanyta i soligt söderläge med glasräcken. Här finns plats för både lounge och långbord. Trappor leder ner till trädgårdens övre grönytor och en helt privat och skyddad stenterrass omfamnad av klippor och grönska. Trädgården vetter mot grönområde så det blir ett mycket insynsskyddat läge. Ytterligare ett etage ner, i höjd med entréplanet, ligger den japanskinspirerade trädgården med grönska, singel och stenpartier i skydd av en hög thujahäck.
MASTER BEDROOM
Altanen nås även från övre planets smakfulla master bedroom-svit. Den är privat placerad i villans bortre gavel. Rummet har stora glaspartier i två väderstreck och trestavsparkett. En takhög garderobsvägg med skjutdörrar i frostat glas tar hand om förvaringen. Utsikten öppnar den fria havshorisonten i sydväst.
BADRUM
Svitens badrum är L-format och går i en sober gråvit ton med vattenburen värmeklinker och väggkakel från klassiska Höganäs. Här finns duschalkov bakom glasbetong, wc i egen alkov, handdukstork och stilren kommod med fristående handfat. Badkaret är elegant inkaklat med vit mosaik. Kakel och klinkers från Höganäs. Dusch och blandare bytt 2022. Badkar. Handdukstork. Vattenburen golvvärme samt el/komfort golvvärme vid behov.
ALLRUM
Tillbaka nere i entréhallen öppnar sig det stora allrummet. Parketten sveper ut i de stora och ljusa ytorna där ena väggen har stora glaspartier. Trots att rummet ligger en våning ner känner man att det är ett högt läge och man kan även njuta av den hänförande havsutsikten även från detta rum samt se ut över det idylliska kustsamhället. Rummet är ljust och generöst och förbinder till tre sovrum.
SOVRUM
Till höger ligger det första som även det har havsutsikt samt utgång till trädgårdens nedre del. Rummet har parkett och skjutdörrsgarderob.
BADRUM
På denna sida ligger även planets smakfulla badrum, nära entréhallen. Det har en grafisk ton med grafitsvart klinker och vitkaklade väggar. Här finns handfatskommod med fristående handfat, wc-stol samt dusch bakom glasvägg. Kakel och klinkers från Höganäs. Dusch och blandare bytt 2022. Handdukstork. Vattenburen golvvärme samt el/komfort golvvärme vid behov.
SOVRUM
I villans andra hörn ligger ytterligare ett sovrum. Det har glaspartier i två väderstreck, havsutsikt och utgång till trädgårdens nedre del.
SOVRUM
Planets största sovrum har en lekfullt L-formad planlösning som ger en separerad sov- och en arbetsyta. Rummet har parkett, höga glaspartier i två väderstreck samt utgång till den japanskinspirerade trädgården.
GROVENTRÉ
En dörr i entréhallen leder in till en inre hall med groventré och flera stora skjutdörrsgarderober samt golv med klinker.
TVÄTTSTUGA
Den inre hallen förbinder till tvättstugan med grafitgrå klinker, en stor klädkammare, vask, maskiner, arbetsyta och garderober. Innanför ligger ytterligare ett förråd med villans teknik och bergvärmeenhet. Tvättmaskin från ca 2020. Torktumlare från 2010. Kakel/klinker från Marte Nero Acapulco.
Ansvarig mäklare
Extra kontaktperson



Kyvik 1:198
*Areauppgifter enligt taxeringsinformationen
2011 gjordes en stagning på skorsten då den är utsatt för vind. (Varla Bleck & plåt AB) 2013 skrapades fasader och balkar på grund av felaktig färg vid nybyggnation. (Effektiv Måleri AB)
2017 åtgärdades inträngning av vatten vid smygar och fasadpanel kring fönster och balkongdörr. (Ocab Göteborg AB)
2022 målades samtliga fasader. (Tiptop Måleri Göteborg AB)
2023 är ett tidigare läckage vid FTX-anläggningen åtgärdat. (Varla Bleck & Plåt AB)
Sotning är utfört senast 2023.
Radonmätning är utfört 2012 med ett årsmedelvärde på < 30 bq.
Carport med vidbyggt förråd
Altan i söder samt stenlagd altan i söder. Balkong i norr samt balkong i österläge. Betongstenslagd uteplats i norrläge samt uteplats med sjösten i västerläge.
Kommunalt vatten, Kommunalt avlopp.
Carport med plats för två bilar, två elbilsladdare ingår.
Detaljplan (2002-03-07)
Gemensamhetsanläggning: Kungsbacka kyvik ga:16 ändamål: Vägar
Förmån: Avtalsservitut Väg mm, 1384IM-04/37534.1
Fiber
Uppvämning inklusive hushålls el. Laddning för elbilar tillkommer på elräkningen á 9500 kronor för nuvarande ägare
Det finns 4 st pantbrev uttagna om sammanlagt 9 800 000 kr
Den lantliga idyllen, med vackra badvikar och stränder, klippor och skön natur gör Kullavik till en alldeles speciell plats på jorden. Njut av stillheten en ljummen sommarkväll, när doften från havet blandas upp med nyklippt gräs och grillad entrecote från de intilliggande trädgårdarna.
OMRÅDET
Någon lär ha sagt att i Kullavik är det aldrig långt till sommaren. Förmodligen menade personen att närheten till havet och det lantliga läget gör att det känns somrigt året om. Som kullaviksbo är man gärna ute i alla väder och många tar uppfriskande dopp i havet i alla väder. Att promenera längs klipporna eller ner mot stranden för en fika eller bara njuta av solen blir snabbt vardag för den som väljer att bosätta sig här.
NATUR OCH FRITID
Landskapet runt Kullavik är kuperat, med klippor och grönområden och har lockat seglare och sommargäster i århundraden. Här frodas seglarkulturen och den lokala seglingsklubben har genom åren haft många framstående seglare, både inom Sverige och i världseliten. Har du andra intressen än segling, finns en tennisklubb och flera närbelägna golfklubbar, som Särö, Vallda Golf, Kungsbacka GK och Sveriges äldsta golfklubb i Hovås. Många kullaviksbor tar också vara på möjligheterna i naturen runt knuten. På promenadavstånd breder Sandsjöbacka naturreservat ut sig med sina vida vidder, hedar och trolsk ekskog. Som gjort för timslånga hundpromenader, trail running eller fågelskådning. Tar du hellre cykeln löper Säröbanans gamla banvall genom samhället mellan Göteborg och Särö. Kring förra sekelskiftet transporterade tåget prominenta sommargäster ut till badorterna Särö, Billdal och Kullavik. Gästerna tillhörde i regel en välbeställd societet som lät uppföra pampiga sommarvillor, gärna i nationalromantisk stil på natursköna tomter. Med åren har sommarresidensen fått sällskap av ny bebyggelse, vilket har skapat ett mycket varierat villalandskap av stora och mindre hus i olika stilar och epoker, samt radhus, lägenheter och mindre stugor. Idag är de flesta hus permanentboenden. Och det är inte undra på. Med grönskande skogar i ryggen och blicken mot havet finns alla förutsättningar för en harmonisk tillvaro. Att det därtill är lika smidigt att ta sig in till Göteborg som till charmiga Kungsbacka för att handla, eller göra ärenden gör Kullavik till en plats där det är lätt att trivas.
Köpa, sälja eller värdera bostad i Kullavik? Kontakta våra mäklare i Göteborg! Passa också på att anmäla dig till vår kostnadsfria söktjänst Boagenten som hjälper dig att hitta ditt drömboende.
Vi har ett nära partnerskap med SEB Private Banking för att ge dig det bästa affärsläget. Som Private Bankingkund hos SEB får du ett individuellt erbjudande och en personlig kontakt som ser till helheten utifrån dina finansiella behov.
Kontakta mäklaren om du behöver hjälp med en boendekalkyl. När du köper din bostad genom Bjurfors kan du ansöka om bolån till en förmånlig ränta hos vår samarbetspartner SEB.
Med en bred lokal närvaro i Sverige, ett internationellt nätverk, samt ett eget register med aktiva intressenter och investerare – har vi förutsättningar att matcha rätt bostad med rätt köpare.
SE ALLA BOSTÄDER BJURFORS BEYOND