-
Köpa
Köpa -
Sälja
Sälja - Hitta bostad
- Skapa bevakning
- Hitta mäklare
Särö - Särön, Kungsbacka
*Areauppgifter enligt ritning
Bjurfors Beyond presenterar nyskapande och fascinerande arkitektur i en nybyggd, ännu oinredd, villa med fri havsutsikt – ca 30 m från stranden.
Den smala strandvägen slingrar sig längs Stallviken som ligger mellan Särön och fastlandet. En lång träbro leder över till golfbanan på andra sidan. Den smala gångbron hindrar större båtar att passera nedanför den nybyggda villan som ligger i en brant sluttning, knappt 30 meter från havsviken. Villans formrena gestaltning med stora glaspartier är smått spektakulär och byggnaden är i skrivande stund endast stomrest, det vill säga oinredd. Detta ger köparen alla möjligheter att – efter eget tycke och smak – välja ytskikt, golv, fast inredning, utrustning mm.
I den branta sluttningen ger den mycket speciella byggnaden ett närmast spektakulärt intryck. Formspråket är befriande rent och enkelt med tre, lätt förskjutna, huselement med höga och branta sadeltak. De infällda taken i ljusgrå Rheinzinkplåt, i kombination med den uppbrutna fasaden, gör att snarast upplevs som en lätt volym på platsen. Trots en imponerande bruksarea på totalt ca 433 kvm. Tillsammans med de stora glaspartierna mot havet ger den yttre gestaltningen en spännande interiör med stora och ljusa rumsvolymer, öppna upp till nock. Huset är ritat av Trigueiros Architecture som lyckats skapa en sällsynt mjuk och harmonisk anpassning till den branta tomten, strax över vattnet.
Konstruktionen är mycket gedigen med stomme och bjälklag i betong. På övre plan finns sällskapsytor i öppen planlösning med skjutglaspartier ut till den stora terrassen. Ljuset faller in från flera håll och på det övre planet finns planlösningsförslag med möjlighet att inreda matsal och kök, allrum med öppen spis, fyra sovrum, badrum samt en stor master bedroom-svit med badrum, studio och walk-in-closet. På sluttningsplanet finns planlösningsförslag att inreda allrum, biorum, spa-avdelning, förrådsytor, tvättstuga och garage. Villan har möjlighet att ha upp till sex sovrum och fyra badrum. Baksidan med söder och västersol är skyddat av berget och här finns terrasser och uteplatser i olika etage. Uppfarten har plats för flera bilar och stenläggningen antyder husets spännande nivåskillnad. Läget är högt och fritt med utsikt mot Stallviken och Särö golfbana som ligger ca 200 meter bort. Dit går du via den långa träbron som byggdes av Anders Helmish Åkerman på 1840-talet och förbinder halvön med fastlandet. Särö var en klassisk badort och sommarresidens för många Göteborgsfamiljer i början av 1900-talet. Här finns givna möjligheter till båt- och vattensport och promenader längs stranden. Flera fina sandstränder finns några minuter bort. Den populära Blomstermåla restaurang når du efter en kort promenad och golf- respektive tennisbanan ligger ett par minuter bort. Finns även en restaurang vid Särö Kyrka som är mycket nära fastigheten. Du har också gångavstånd till nya Särö Skola, dagis, apotek, vårdcentral, bensinstation, affärer, restauranger mm. En ljummen kväll, när en stilla kvällsbris driver viken lugna vågor mot stranden, är det svårt att tro att centrala Göteborg väntar en kort bilresa bort.
Läs mer på
Trigueiros Architecture (Sthlm)
Arkitekter: Vasco Trigueiros & Maria Trigueiros
Hemsida: trigueiros.net
Se även Villa Särö på deras hemsida under ”Projects”.
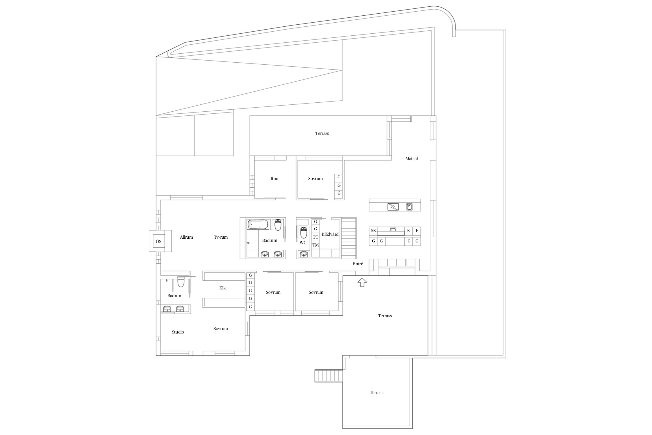
Nedan planlösning är endast ett förslag då huset är helt oinrett.
MATSAL & KÖK
Från en av baksidans höga terrasser kommer du in i entréhallen. Den öppna planlösningen rymmer kök, matsal och sällskapsdel. Det höga läget över Stallviken blir uppenbart och ljuset faller in i floder från två olika håll. Det höga sadeltaket reser sig ända upp till nock och känslan av rymd dominerar intrycket. De omfattande glaspartierna i olika storlekar är strategiskt placerade för att öppna den höga och fria panoramautsikten maximalt över vattnet och ut över omgivningarna. Partierna löper ända nerifrån golvet och blir som stora muralmålningar av vatten, grönska och den levande skärgårdsmiljön.
TERRASS
Från matsalsdelen kommer du – via ett skjutbart glasparti – ut på den stora terrassen som tycks sväva fritt över strandsluttningen. Det är knappt 30 meter ner till vågorna. Terrassen ligger delvis under tak.
TVÅ SOVRUM
Via en inre hall till vänster når du två sov- eller arbetsrum med glaspartier ut mot viken. Även här ger det mellersta av de tre sadeltaken öppet upp till nock.
BADRUM
Mittemot sovrummen finns ett större badrum och en separat wc. På denna sida om den inre hallen finns även villans klädvårdsavdelning.
SÄLLSKAPSYTOR
Den inre hallen fortsätter in i det tredje byggelementet med högt sadeltak. Här ligger ett stort allrum med kvadratiskt glasparti mot viken. Även härinne är rumsvolymen ansenlig och på ena väggen löper murstocken till den öppna spisen upp till nock.
MASTER BEDROOM-SVIT
Med olika stora glaspartier i tre väderstreck, och vänt in mot villans skyddade baksida, ligger en master bedroom-svit. Den är komplett med sovrum, studio, badrum och stor walk-in-closet. Härifrån kommer du ut på baksidans terrasser.
TVÅ SOVRUM
I fil med master bedroom, i ytterligare en inre hall, ligger två sov- eller barnrum med glaspartier mot baksidans branta grönska. Dessa rum har access till samma centralt placerade badrum och separata wc som de andra två sovrummen.
ALLRUM
En trappa i entréhallen leder ner till villans sluttningsplan. Här finns en entrédörr från uppfarten och, med skjutbara glaspartier och utsikt mot viken, ligger ett ljust och härligt allrum som även är tänkbart som sovrum.
SPA-AVDELNING
All- eller sovrummet rummet ligger en suite med villans stora spa-avdelning med plats för relax, badkar, dubbla duschar, handfat, separat wc samt bastu. Via allrummet har du inte många steg ner till de svalkande vågorna.
FÖRRÅDSYTOR
Planets entréhall leder vidare åt andra hållet och till höger finns en inre hall med tre stora förrådsrum.
TVÄTTSTUGA
Här ligger även den stora tvättstugan med plats för vask, förvaring, maskiner, teknikenheter mm.
BIORUM
I andra änden av den inre hallen ligger ett stort biorum med glaspartier och utsikt mot viken. Här finns även ingång till ett mindre badrum.
GARAGE
Villans garage har direkt access till nedre planets hall samt till tvättstugan.
Ansvarig mäklare
Extra kontaktperson



Särö 1:485
*Areauppgifter enligt ritning
FTX är klart utom genom yttertak. Köksfläkt utom genom yttertak också klart. Avluftare för avlopp är också klart ut genom yttertak. Taket är klädda med Rheinzink.
Endast ränndalarna gjordes i rostfri plåt på grund av teknisk hållbarhet
Kommunalt vatten, Kommunalt avlopp. Vatten, avlopp och el är indraget och betalt.
Byggnadsplan (1981-03-12) Bygglov finns för villan.
Gemensamhetsanläggning: Kungsbacka Särö GA:5 ändamål: Vägar
Internet: Fiber är indraget.
Finns inga driftkostnader då huset ej är färdigbyggt, endast kostnader för vägförening (Senaste fakturan för 2024 var på 250 kr (vägförening) och 320 kr frivillig avgift) .
Även försäkring för fastigheten har ägaren betalt 4560 kronor, avser byggnad/villa under uppförande.
Det finns 4 st pantbrev uttagna om sammanlagt 3 570 000 kr
En ljuvlig västkustdröm, med rogivande naturområden, kala klippor, salta bad och mjuka sandstränder – det är Särö. De pampiga sekelskiftesvillorna, från tiden då den exklusiva badorten etablerades utmärker området allra mest. Många av dem är helt unika i sin storslagna arkitektur.
NATUR
På Särö, Kungsbackas eget lilla paradis bara tre mil från Göteborg, bor runt 3000 personer. Ändå består stora delar av halvön av vidsträckta naturområden, där man kan ströva genom orörda landskap. Västerskog och Nordanskog är två bergshöjder med varierande natur och lövskogar. Och i öster ligger Sandsjöbacka Naturreservat med vandringsleder och badsjöar. Utmed Särös kustlinje är det lätt att hitta sina egna favoritstränder eller klippor för att ta sitt dagliga morgon- eller kvällsdopp – båda självklara ritualer för en säröbo.
HISTORIA
När badanläggningen uppfördes 1839 etablerades Särö som en av de första bad- och kurorterna i Sverige. Sommargästerna anlände då med ångfartyg till ångbåtsbryggan, och så småningom med tåg från Göteborg, via Säröbanan som hade slutstation Särö Västerskog. Idag har tågbanan blivit en cykelväg som löper plant, rakt och naturskönt hela vägen till centrala Göteborg. Det gamla stationshuset vid kajkanten hyser idag den omtyckta restaurangen Blomstermåla. Det sägs att det var på Särö som de första tennismatcherna spelades i Sverige. Särö Lawn Tennis klubb kom till när societeten tillbringade somrarna här, däribland tenniskungen Gustaf V som gärna svingade sin racket där. Än idag präglas vardagen för säröborna av mycket idrott och aktiviteter. Läget gör att möjligheterna till golf, tennis, bad, båtliv och hästsport är oändliga.Man får anta att det var ett gott liv de första sommargästerna levde och det är kanske inte så konstigt att de valde just Särö. För här är det verkligen lätt att njuta av det goda i livet: unik arkitektur, trevliga etablissemang där man gärna umgås över en bit god mat och dryck, alltid tillgång till idrott och rekreation utanför knuten och inte minst – ett rikt överdåd av svensk natur när den är som vackrast.
Köpa, sälja eller värdera bostad på Särön? Kontakta våra mäklare i Kungsbacka! Passa också på att anmäla dig till vår kostnadsfria söktjänst Boagenten som hjälper dig att hitta ditt drömboende.
Vi har ett nära partnerskap med SEB Private Banking för att ge dig det bästa affärsläget. Som Private Bankingkund hos SEB får du ett individuellt erbjudande och en personlig kontakt som ser till helheten utifrån dina finansiella behov.
Kontakta mäklaren om du behöver hjälp med en boendekalkyl. När du köper din bostad genom Bjurfors kan du ansöka om bolån till en förmånlig ränta hos vår samarbetspartner SEB.
Med en bred lokal närvaro i Sverige, ett internationellt nätverk, samt ett eget register med aktiva intressenter och investerare – har vi förutsättningar att matcha rätt bostad med rätt köpare.
SE ALLA BOSTÄDER BJURFORS BEYOND