-
Köpa
Köpa -
Sälja
Sälja - Hitta bostad
- Skapa bevakning
- Hitta mäklare
Grandios grosshandlarvilla med sensationellt ljus, tidlös atmosfär och en kunglig historia på Särön
Särön, Kungsbacka
*Areauppgifter enligt mätning
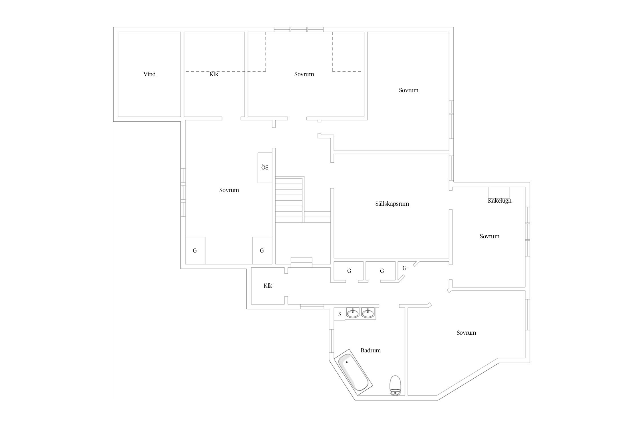
Bjurfors Beyond presenterar en stiltrogen skärgårdsvilla om 10 rum och 2 kök samt 2 rok ovan garage – med närhet till Särö Västerskog.
Den långa vägen är belagd med gatsten och passerar mellan höga lövträd och prydliga hus från olika epoker. På en stor hörntomt vid gatans slut reser sig den stiltrogna skärgårdsvillan från 1894. Läget är högt och fritt, en bra bit upp på klippan som bitvis omfamnar tomtens olika etage och uteplatser. En skyddande thujahäck löper längs granitmuren och en bred stentrappa med skiffersteg svänger upp till den skifferbelagda gårdsplanen. Husets imponerande vårdträd – en mycket gammal ek – breder ut sina grönskande grenar över sommaridyllen.
Villan Fjellbos höga husgrund är i vackert murad granit och fasaden har stående träpanel med snickarglädje under det svarta taket med utsprång och kupor. Arkitekturen är tidstypiskt för det sena 1800-talet med drag av den då populära Schweizerstilens lekfulla snickerier. Ovanför uteplatsen i skiffer sträcker sig de närmast heltäckande och spröjsade glaspartierna runt villans hörn och den U-formade glasverandan. Där innanför öppnar sig de stora sällskapsytorna där kvällssolen faller vackert över slipade, vitlaserade trägolv. Det stora rummet är som en gigantisk punschveranda och periodens detaljer radar upp sig med detaljskurna listverk, långa fönsterbrädor, överfönster, smäcker öppen spis och synliga takbjälkar i det höga och vita paneltaket. I fil ligger en ansenlig matsal med samma blonda trägolv, bröstpanel och ljus från två håll. En vit duk och några levande ljus räcker för att återskapa atmosfären när Göteborgs societet, samt en och annan kunglighet, dinerade härinne. I öppen planlösning ligger det ljusa och stiltroget nyskapade köket med barhäng, helintegrerade vitvaror och kallskafferi. På detta plan finns bland annat även ett femstjärnigt badrum och en lång inre hall. En stiltrogen trätrappa leder upp till övervåningen med sällskapsytor, sobert badrum och upp till fem rymliga sovrum. Även här är interiören stiltrogen med trägolv, detaljskurna listverk, breda fönsterpartier, klädkammare, öppen spis, kakelugn och spegeldörrar. Ett av hörnrummen, med utsikt mot vårdträdets grönska, sägs varit kung Gustav V:s favoritrum när han flera gånger övernattade här. Utöver alla dessa sovrum har villan två separata och kompletta gästlägenheter med allrum, pentry, badrum och sovrum. Den ena ligger på entréplanet med egen entré och den andra ligger över garaget. Lägenheterna öppnar även för generationsboende eller eget företagande. Villan ligger på en privat hörntomt omfamnad av klippor och lummig grönska. Den stora trädgården är skyddad med omfattande gräsytor samt flera uteplatser i olika etage med höga utsiktsplatser över de pastorala omgivningarna. Även tomtbiten Särö 1:410 på ca 80 kvm som idag används som en parkeringsplats ingår i köpet. Villa Fjellbo har en rik historia och byggdes av grosshandlaren och redaren August Carlsson. Huset övertogs av familjen Fjellbo och senare av den uppburna släkten Keiller som bland annat grundade Götaverken. De ägde villan från 1903 till 1957. Det fria läget på södra Särö är svårslaget med några minuter till morgondoppet i Särö Västerskog eller Bassängbacken och det är även given närhet till skärgårdsatmosfären och båtlivet. Möjlighet att köpa båtplats finns vid Bassängbacken. Till centrala Göteborg tar det en halvtimme med bil.
Fastigheten säljs via god man med offentlig aktion via samäganderättslagen. Fastigheten säljs med friskrivningsklausul. Kontaktuppgifter till god man; Natalie Comrin, natalie.comrin@comrinadvokatbyra.se, 0737 – 06 80 01.
ENTRÉHALL
En bred granittrappa leder upp till de tredelade spegeldörrarna med spröjsat glas och överfönster. Av lätt insedda skäl strålar entréhallen av ljus från flera håll. Ett slipat och vitlaserat brädgolv tar emot under det höga, vitmålade paneltaket.
SÄLLSKAPSYTOR
Till vänster reser sig en vacker vägg i vitmålat ribbträ och med tidstypiska snickerier. Väggen blir som en portal in till de storslagna sällskapsytorna där det vitlaserade golvet sträcker ut över öppna och fria ytor. Känslan av somrigt ljusa rumsvolymer är påtaglig under det höga paneltaket med synliga bjälkar. Längs två av väggarna löper nästan heltäckande glaspartier med spröjs och överfönster. Här finns glasade utsprång och en U-formad liten veranda med hög panoramautsikt. Det tidlöst vackra rummet låter kvällssolen falla in över den blonda interiören – den höga utsikten över grönska och vidsträckta, pastorala omgivningar är svårslagen. En höstkväll samlas gästerna framför brasan i den smäckra öppna spisen i vitputs.
MATSAL
På andra sidan entréhallen leder glasade pardörrar in till den rymliga matsalen med vitt paneltak. Trägolvet följer tröskellöst in i rummet som får massor av ljus från tre stora fönsterpartier i två väderstreck. En detaljskuren bröstpanel skapar karaktär och det är lätt att föreställa sig de stora middagarna, när det begav sig runt sekelskiftet. Med Göteborgssocieteten i frackar och sidenklänningar.
KÖK
En fristående köksö i vitt delar av mot köket som ligger i vinkel och i öppen planlösning. Två fönsterpartier ger bra arbetsljus och öppna vyer över de stora gräsytorna. Ett grafitgrått klinkergolv tar över och barhänget i ek rymmer allt från sommarfrukostens yoghurtskålar till grillkvällens fördrinkar. Det nyskapade köket har stiltrogen inredning i vitt med inslag av spröjsad vitrin. Vitvarorna är helintegrerade med inslag av rostfritt. Den klassiska järnspisen påminner om förra sekelskiftets glansdagar.
INRE HALL
Längst in finns ett klassiskt kallskafferi och en spegeldörr leder ut till den inre hallen som i andra änden slutar borta i entréhallen. Här finns en entréhall med klinker och glasad pardörr ut till en trappa ner till trädgården.
TVÄTTAVDELNING
Bakom en skjutdörr i hallen finns en klädkammare med förvaring, tvättstapel och arbetsyta.
BADRUM
Bakom en spegeldörr i hallen finns ett nyskapat och mycket sobert badrum med marmorerad granitkeramik på golv och väggar. Här finns formren handfatskommod, spegelskåp, vägghängd wc samt traditionell takdusch bakom glasväggar.
ÖVRE PLAN
Trätrappan med svarvade räcken och vit bröstpanel leder upp till den stora övervåningen med hela sex rum, flera klädkammare samt badrum. Alla rum har slipade plankgolv, breda fönsterpartier och tak med vit pärlspontspanel. Bland de många rummen, fördelade över två halvetage, kan nämnas ett rymligt allrum, ett större sovrum med öppen spis, walk-in-closet och originalgarderober samt ett sovrum med vit kakelugn och enastående utsikt över nejden via breda fönsterpartier. Ett av hörnrummen är omfamnat av ekens grönska och här sägs kung Gustav V ha bott flera gånger. Planets badrum känns femstjärnigt med marmorerad granitkeramik på golv och väggar, kommod med dubbla handfat, vägghängd wc samt ovalt, fristående badkar. Den charmiga övervåningen har mängder av vinklar och vrår samt rejält med klädkammare och platsbyggda garderober.
GÄSTLÄGENHET
På entréplanet, med egen entré från husets baksida, ligger en komplett gästlägenhet. Inredningen går i samma blonda ton med trägolv, paneltak och stiltrogna fönsterpartier. Till vänster i entrén ligger ett komplett pentrykök och rakt fram finns en hög skjutdörrsgarderob. I öppen planlösning finns ett större allrum med stora fönsterpartier mot grönskan. I fil ligger ett sovrum.
GÄSTHUS
Husets garage är byggt i sluttningsplan. Ovanpå finns ett gästhus med brant sluttande taklinjer ända upp till nock. Tonen går i samma blonda ton med ekgolv och detaljskurna listverk. Här finns ett komplett pentry i öppen planlösning med ett allrum där fönstren radar upp sig längs långväggen och gaveln. Bakom en dörr finns ett sovrum och huset har även kaklat badrum med handfat, wc och dusch. Utanför ingången finns en skyddad stenterrass.
Ansvarig mäklare
Extra kontaktperson
Bokad visning. Du kan även ringa Bjurfors Bokningscenter 031-761 79 50. Välkommen!



Särö 1:6 samt Särö 1:410
*Areauppgifter enligt mätning
*Garage/lägenhet byggdes 2018
2013;
Tak, kök, tilläggsisolerade ytterväggar på övervåning samt i lägenheten.
Borrade bergvärme, tog bort två stycken villa dieseltankar i källaren. Bytt varmvattenberedare.
Golvvärme i hall, kök, badrum i lägenheten.
Omfattande renovering av lägenheten, el, badrum, kök, isolerade ytterväggar, element.
Bytte plåt på taket samt betongpannor, målade huset och murade om skorstenen i köket samt förlängde andra skorstenen med 1,5 meter då den var för låg. Satte stege på skorstenen samt stegfötter på taket för sotaren.
Restaurerade upp stenmuren mot Stallbacken samt öppnade upp infarten.
Stenläggde infarten med gatsten.
, bytte fönster i vardagsrummet till 2 glas från 1 glas.
El byttes i huset samt gjorde om inkommande el till markburen.
Bytt gamla avloppsrör till tomtgräns, finns ca 3-4 meter gamla kvar i källaren.
Nytt golv i undervåningen, nya golvvärmeslingor.
2018 så byggdes garaget samt lägenheten som är två rum och kök. Garage/lägenheten har stengrund, trästomme och plåttak.
2020; Badrum på övervåningen, el, vattenburen golvvärmen
2021; Gästtoalett med dusch, el vattenburen golvvärme.
Skifferaltan runt huset, grävt ut delar av källaren från jord till berg.
Garage samt en ovanliggande bostad som är uppförd 2018. Energiklass F på denna bostad.
Kommunalt vatten och avlopp.
Tomtarea 2 330 m² på särö 1:6 samt 80 kvm på särö 1.410
Finns möjlighet att parkera två bilar på den kullerstenbelagda parkeringsplatsen på Stallbacken samt finns två parkeringsplatser utanför garage samt flera parkeringsplatser på Särö 1:410
Byggnadsplan (1981-03-12)
Gemensamhetsanläggning: Kungsbacka särö ga:5 ändamål: Vägar
Last: Avtalsservitut Kraftledning, D201900171026:1.1
Fiber
Fiber
Avtalsservitut D-2019-00171026:1
Driftkostnaderna är baserade på 2022 då ägarna sist bodde 4 personer i hushållet. Övrigt är larm. Elförbrukning under 2022 var 27.000 kWh/år
Fastigheten säljs med offentlig aktion via samäganderättslagen. Fastigheten säljs med friskrivningsklausul. Kontaktuppgifter till god man; Natalie Comrin, natalie.comrin@comrinadvokatbyra.se, 0737 – 06 80 01.
Det finns 27 st pantbrev uttagna om sammanlagt 7 330 000 kr
En ljuvlig västkustdröm, med rogivande naturområden, kala klippor, salta bad och mjuka sandstränder – det är Särö. De pampiga sekelskiftesvillorna, från tiden då den exklusiva badorten etablerades utmärker området allra mest. Många av dem är helt unika i sin storslagna arkitektur.
NATUR
På Särö, Kungsbackas eget lilla paradis bara tre mil från Göteborg, bor runt 3000 personer. Ändå består stora delar av halvön av vidsträckta naturområden, där man kan ströva genom orörda landskap. Västerskog och Nordanskog är två bergshöjder med varierande natur och lövskogar. Och i öster ligger Sandsjöbacka Naturreservat med vandringsleder och badsjöar. Utmed Särös kustlinje är det lätt att hitta sina egna favoritstränder eller klippor för att ta sitt dagliga morgon- eller kvällsdopp – båda självklara ritualer för en säröbo.
HISTORIA
När badanläggningen uppfördes 1839 etablerades Särö som en av de första bad- och kurorterna i Sverige. Sommargästerna anlände då med ångfartyg till ångbåtsbryggan, och så småningom med tåg från Göteborg, via Säröbanan som hade slutstation Särö Västerskog. Idag har tågbanan blivit en cykelväg som löper plant, rakt och naturskönt hela vägen till centrala Göteborg. Det gamla stationshuset vid kajkanten hyser idag den omtyckta restaurangen Blomstermåla. Det sägs att det var på Särö som de första tennismatcherna spelades i Sverige. Särö Lawn Tennis klubb kom till när societeten tillbringade somrarna här, däribland tenniskungen Gustaf V som gärna svingade sin racket där. Än idag präglas vardagen för säröborna av mycket idrott och aktiviteter. Läget gör att möjligheterna till golf, tennis, bad, båtliv och hästsport är oändliga.Man får anta att det var ett gott liv de första sommargästerna levde och det är kanske inte så konstigt att de valde just Särö. För här är det verkligen lätt att njuta av det goda i livet: unik arkitektur, trevliga etablissemang där man gärna umgås över en bit god mat och dryck, alltid tillgång till idrott och rekreation utanför knuten och inte minst – ett rikt överdåd av svensk natur när den är som vackrast.
Köpa, sälja eller värdera bostad på Särön? Kontakta våra mäklare i Kungsbacka! Passa också på att anmäla dig till vår kostnadsfria söktjänst Boagenten som hjälper dig att hitta ditt drömboende.
Vi har ett nära partnerskap med SEB Private Banking för att ge dig det bästa affärsläget. Som Private Bankingkund hos SEB får du ett individuellt erbjudande och en personlig kontakt som ser till helheten utifrån dina finansiella behov.
Kontakta mäklaren om du behöver hjälp med en boendekalkyl. När du köper din bostad genom Bjurfors kan du ansöka om bolån till en förmånlig ränta hos vår samarbetspartner SEB.
Med en bred lokal närvaro i Sverige, ett internationellt nätverk, samt ett eget register med aktiva intressenter och investerare – har vi förutsättningar att matcha rätt bostad med rätt köpare.
SE ALLA BOSTÄDER BJURFORS BEYOND