-
Köpa
Köpa -
Sälja
Sälja - Hitta bostad
- Skapa bevakning
- Hitta mäklare
Tvårummare i Alvesta i populär förening!
Alvesta
*(Avgiften kommer att höjas till 3 625 kr/månad fr.o.m. 1/1-2026.)
**Föreningens information
Bokad visning.
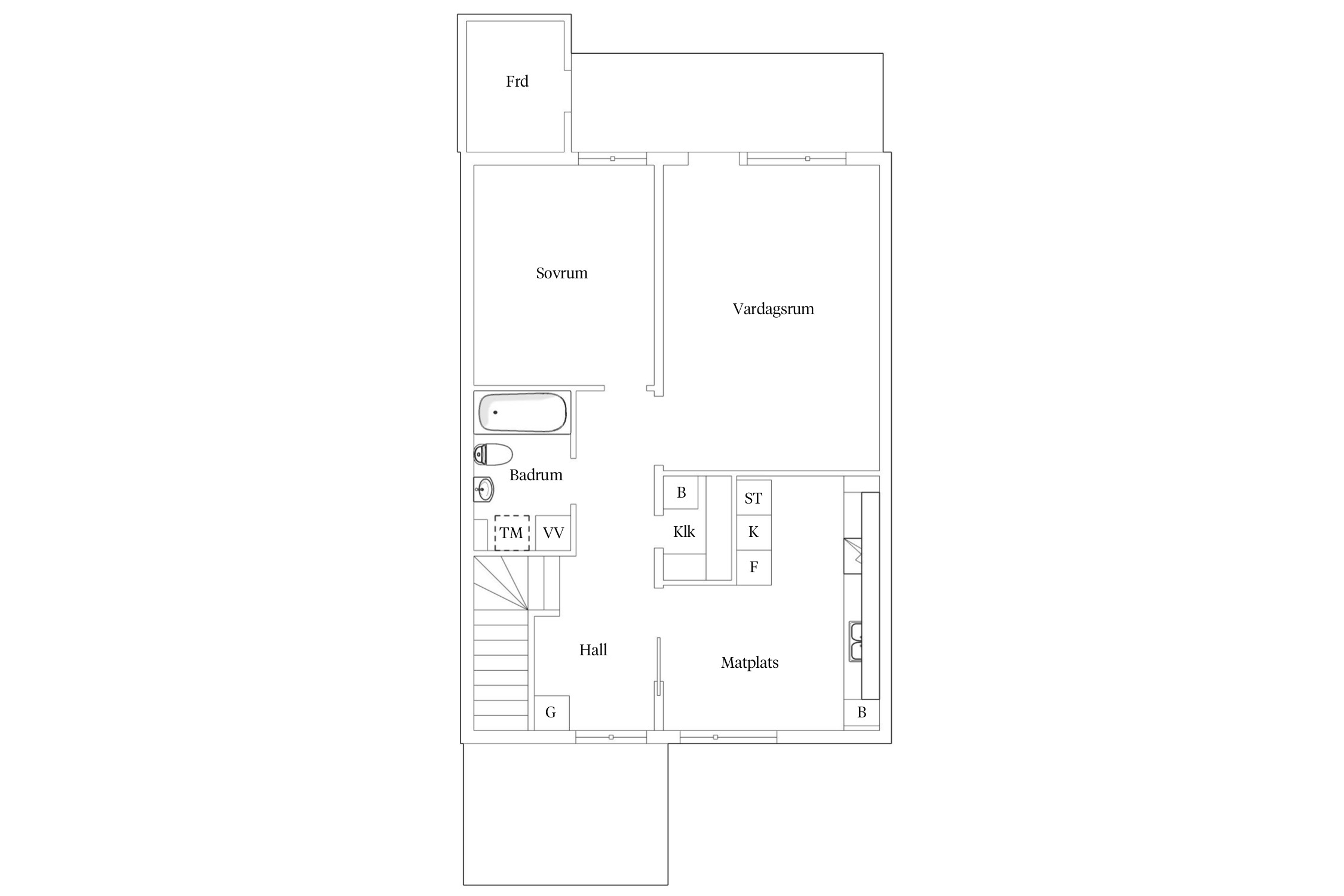
Varmt välkomna till Aringsåsvägen 26F och denna välplanerade tvårummare! Här finns nu möjlighet att förvärva en bostadsrätt i populära BRF Aringsberg. Här bor ni en trappa upp på 72,5 välplanerade kvadratmeter samt med väl tilltagen balkong. Området erbjuder lugn och ro med närhet till natur och service. Bostaden fördelar sig på två plan med hall på entréplan och kök, vardagsrum, sovrum och badrum.
Välkomna på visning!
Entré
Välkomnande och praktisk entré på markplan. Här finns generöst med yta för avhängning samt förvaring av ytterkläder. Övriga bostaden når vi via trappan.
Kök
Köket är både rymligt och praktiskt och erbjuder även gott om utrymme för matplats.
Vardagsrum
Luftigt vardagsrum med stor fönsterparti samt utgång till bostadens härliga balkong.
Sovrum
Väl tilltaget sovrum med plats för dubbelsäng samt förvaringsmöjligheter.
Badrum
Praktiskt badrum utrustat WC, dusch, tvättmaskin samt torktumlare.



Aringsberg 2
*Bostadens entré/hall ligger på markplan. Övriga bostaden på plan 2
**Föreningens information
(Avgiften kommer att höjas till 3 625 kr/månad fr.o.m. 1/1-2026.)
Via fiber
Fiber
Bostadsrättens indirekta nettoskuldsättning baseras på föreningens skulder/lån minus föreningens räntebärande tillgångar och likvida medel. Beräkningen är gjord och baseras enbart på den senaste tillgängliga årsredovisningen. För mer information kontakta ansvarig fastighetsmäklare.
Förbrukning: 8339kWh per år
Vill du köpa, sälja eller värdera bostad i Kronobergs län? Kontakta våra mäklare i Växjö! Passa också på att anmäla dig till vår kostnadsfria söktjänst Boagenten som hjälper dig att hitta ditt drömboende.
Här hittar du alla våra lediga bostäder till salu i Kronobergs län just nu!
Kontakta mäklaren om du behöver hjälp att ta fram en boendekalkyl.
När du köper din bostad genom Bjurfors kan du ansöka om bolån till en förmånlig ränta hos vår samarbetspartner SEB.
Bokad visning.
Ansvarig mäklare