-
Köpa
Köpa -
Sälja
Sälja - Hitta bostad
- Skapa bevakning
- Hitta mäklare
Lammhult, Växjö
*Areauppgifter enligt taxeringsinformationen
På ett trivsamt läge på lugn gata finner man denna villa som är i genomgående fint skick och karaktäriseras av en luftig planlösning med rymd och ett härligt ljusflöde från stora fönsterpartier. Husets planlösning är genomtänkt med flera rum och öppna sociala ytor. Trädgården på baksidan har ett idealiskt och skyddat läge där man kan njuta av solen stora delar av dagen och kvällen. Uteplatsen, det inglasade uterummet samt den överbyggda balkongen ger mervärde åt bostaden och erbjuder fina sällskapsytor såväl ute som inne. Det trivsamma boendet är välskött och väl omhändertaget. Huset erbjuder en varm färgsättning som ger ett ombonat intryck. Genomgående har huset gott om förvaringsmöjligheter i form av garderober och rymliga förråd. Här finns också en vacker uteplats på framsidan av huset som inbjuder till avkoppling. Trädgårdens stora gräsyta är lättskött och här finns plats för både studsmatta och fotboll. En anslutning till bostadens entré finns även rymlig uppfart med plats för flera fordon. I Lammhult bor man i ett barnvänligt samhälle med barnomsorg, idrottsplatser och förskoleklass till årskurs 9 med nybyggd skola. Lammhult är beläget mitt i möbelriket och här finner man de populära möbelbutikerna Svenssons, Nilssons, Poppins och Norrgavel. Den härliga naturen finns alltid inom räckhåll med både vackra sjöar och skogar som passar för en utflykt med familjen. I centrum finns all nödvändig samhällsservice. Till Växjö tar det endast 35 minuter med bil och det finns täta buss och tåglinjer både norr och söderut. Varmt välkomna på visning!
Entréplan:
Hall: I hallen finns goda avhängningsmöjligheter med plats för en större garderobsmöbel där man på ett enkelt sätt kan hänga in och dölja sina ytterkläder. Via hallen når man även ett tilltaget förråd som är utrustat med smart förvaring samt goda tvättmöjligheter. I förrådet finns även bostadens frys att tillgå. I passagen in mot kök och vardagsrum finns det även plats för en fristående förvaringsmöbel. I denna passage finns även bostaden smidig gästtoalett.
Gästtoalett: Smidig gästtoalett som nås från hallen och är utrustat med WC och tvättställ. Toaletten har blå plastmatta och en mönstrad våtrumstapet satt på vägg.
Kök: Trivsamt kök som går i ljusa och varma färger med avskalad design och lättskötta bänkytor. Den härliga matplatsen har utrymme för stort köksbord och här kan man njuta framför det stora fönsterpartiet. Den maskinella köksutrustningen består av ugn med spishäll, spisfläkt, diskmaskin samt kyl. Från köket når man en av bostadens uteplatser som vetter mot framsidan. Uteplatsen har trätrall och kan möbleras med en större soffgrupp.
Vardagsrum: Tilltaget sovrum med goda möbleringsalternativ samt ett fint ljusinsläpp från fönsterpartiet. Rummet ger plats åt en inbjudande soffhörna och färgsättningen ger en rogivande stämning. Från rummet når man baksidan med dess härliga uteplats och inglasade uterum. Vidare når man även trädgården som omgärdas av en skyddande häck.
Övre plan:
Allrum: Allrummet på övre plan ger fina umgängesytor och plats för soffa samt övrigt möblemang efter behov. Rummets färgsättning ger en avkopplande känsla och härifrån når man bostadens balkong. Rummet kan med fördel delas av så att det skapas två separata rum.
Sovrum: Sovrum med anpassningsbara ytor och fint ljusinsläpp. Här finns yta att möblera med både säng och ett skrivbord. Rummet har flera garderober för bekväm klädförvaring.
Sovrum: Tilltaget sovrum som man möbleras med en dubbelsäng. Rummet har ett stort fönsterparti mot den lugna baksidan. Rummet har flera rymliga garderober som på ett enkelt sätt tar hand om klädförvaringen.
Badrum: Helkaklat badrum med både ljus klinker och kakel. Badrummet är utrustat med WC, duschhörna tvättställ samt badrumsspegel.
Entréplan
Hall
I hallen finns goda avhängningsmöjligheter med plats för en större garderobsmöbel där man på ett enkelt sätt kan hänga in och dölja sina ytterkläder. Via hallen når man även ett tilltaget förråd som är utrustat med smart förvaring samt goda tvättmöjligheter. I förrådet finns även bostadens frys att tillgå. I passagen in mot kök och vardagsrum finns det även plats för en fristående förvaringsmöbel. I denna passage finns även bostaden smidig gästtoalett.
Gästtoalett
Smidig gästtoalett som nås från hallen och är utrustat med WC och tvättställ. Toaletten har blå plastmatta och en mönstrad våtrumstapet satt på vägg.
Kök
Trivsamt kök som går i ljusa och varma färger med avskalad design och lättskötta bänkytor. Den härliga matplatsen har utrymme för stort köksbord och här kan man njuta framför det stora fönsterpartiet. Den maskinella köksutrustningen består av ugn med spishäll, spisfläkt, diskmaskin samt kyl. Från köket når man en av bostadens uteplatser som vetter mot framsidan. Uteplatsen har trätrall och kan möbleras med en större soffgrupp.
Vardagsrum
Tilltaget sovrum med goda möbleringsalternativ samt ett fint ljusinsläpp från fönsterpartiet. Rummet ger plats åt en inbjudande soffhörna och färgsättningen ger en rogivande stämning. Från rummet når man baksidan med dess härliga uteplats och inglasade uterum. Vidare når man även trädgården som omgärdas av en skyddande häck.
Övre plan
Allrum
Allrummet på övre plan ger fina umgängesytor och plats för soffa samt övrigt möblemang efter behov. Rummets färgsättning ger en avkopplande känsla och härifrån når man bostadens balkong. Rummet kan med fördel delas av så att det skapas två separata rum.
Sovrum
Sovrum med anpassningsbara ytor och fint ljusinsläpp. Här finns yta att möblera med både säng och ett skrivbord. Rummet har flera garderober för bekväm klädförvaring.
Sovrum
Tilltaget sovrum som man möbleras med en dubbelsäng. Rummet har ett stort fönsterparti mot den lugna baksidan. Rummet har flera rymliga garderober som på ett enkelt sätt tar hand om klädförvaringen.
Badrum
Helkaklat badrum med både ljus klinker och kakel. Badrummet är utrustat med WC, duschhörna tvättställ samt badrumsspegel.



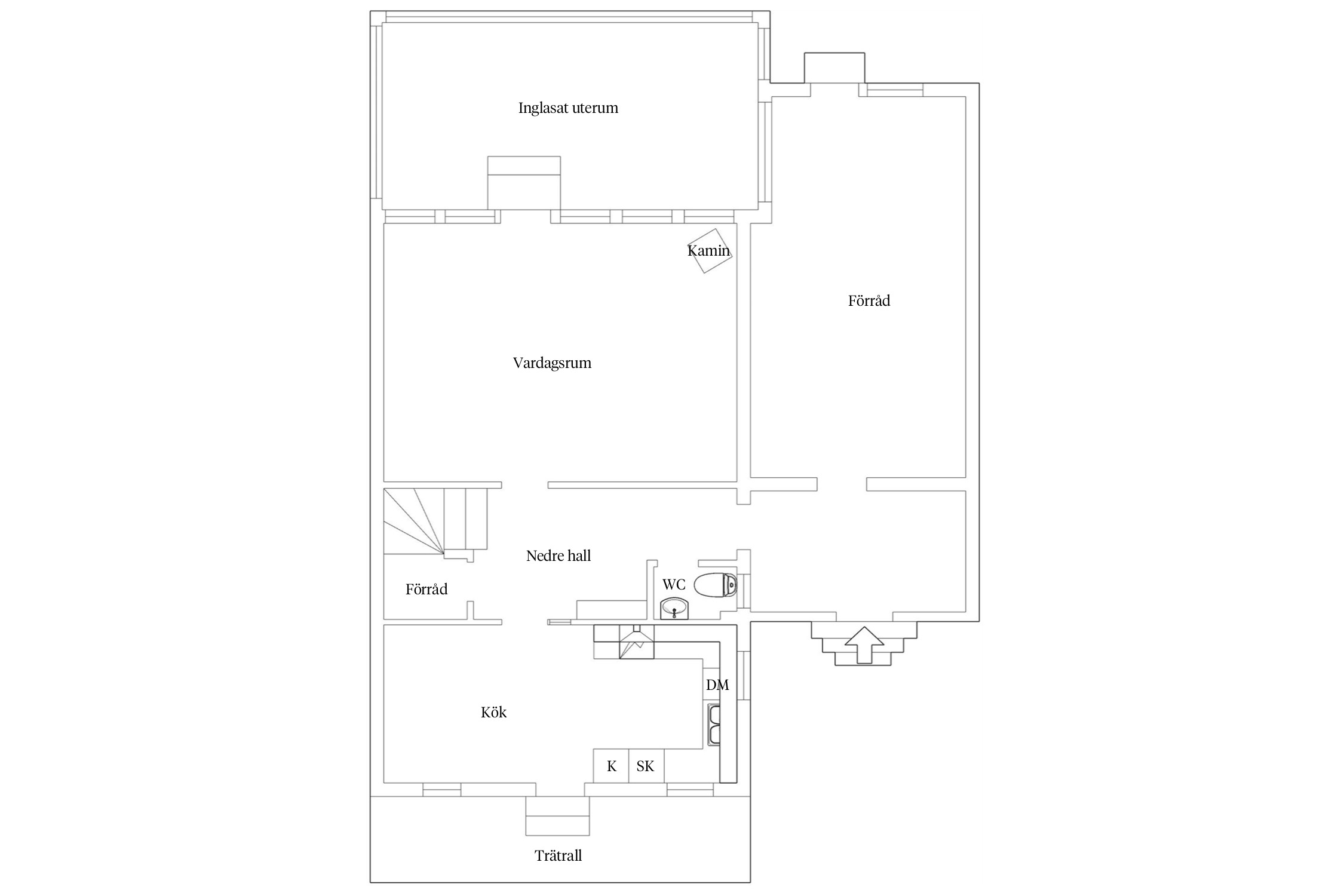
Planritning
Planritning
Lammhult 47:3
*Areauppgifter enligt taxeringsinformationen
Kommunalt vatten. Kommunalt avlopp.
Stadsplan (1973-10-10)
Gemensamhetsanläggning: Växjö Lammhult GA:14 ändamål: Garage och/eller parkering, Gemensamhetsanläggning: Växjö Lammhult GA:5 ändamål: Avloppsanläggning, Elledning och/eller belysning, Garage och/eller parkering
Driftkostnader och elförbrukning är inhämtade från säljaren och bör endast ses som en uppskattning. Kostnaden kan variera och baseras på förbrukning och avtal. Samfällighetsavgiften gäller kostnad för garage om 1 000 kr/år. Fördelningen mellan el och uppvärmning är uppskattad.
Det finns 6 st pantbrev uttagna om sammanlagt 574 200 kr
Vill du köpa, sälja eller värdera bostad i Kronobergs län? Kontakta våra mäklare i Växjö! Passa också på att anmäla dig till vår kostnadsfria söktjänst Boagenten som hjälper dig att hitta ditt drömboende.
Här hittar du alla våra lediga bostäder till salu i Kronobergs län just nu!
Kontakta mäklaren om du behöver hjälp att ta fram en boendekalkyl.
När du köper din bostad genom Bjurfors kan du ansöka om bolån till en förmånlig ränta hos våra banksamarbetspartners Söderberg & Partners och SEB.
Ansvarig mäklare