-
Köpa
Köpa -
Sälja
Sälja - Hitta bostad
- Skapa bevakning
- Hitta mäklare
Stilrent radhus med moderna val och praktisk funktionalitet!
Lugnet, Växjö
*Inkl. parkeringsplats
**Föreningens information
På Förhand ligger bostäder som av olika anledningar inte är ute till försäljning just nu men som kan komma att säljas om förutsättningarna är rätt.
Välkommen till ett stilrent radhus där moderna val möter praktisk funktionalitet i en perfekt kombination. Här finner man en bostad som erbjuder en bekväm och avslappnad livsstil med alla bekvämligheter du behöver. Den enhetliga färgsättningen med harmoniska kulörer genomsyrar hela boendet. Lägenheten är både hemtrevlig och stilren och har en tilltalande funktionell planlösning där bostaden erbjuder tre rymliga sovrum vilket ger plats för hela familjen. Redan i den välkomnade och kvadratsmarta hallen möts man av väl genomtänkta materialval och disposition som genomsyrar hela bostaden. Både vardagsrummet och köket har ett fint ljusinsläpp från stora fönsterpartier som bjuder in utemiljön och ger luftig känsla. Uteplatsen och trädgården nås från bostadens kök och tack vare läget på hörntomt finns det möjlighet att gå runt bostaden. De stora gräsytorna ger en frihetskänsla och ger plats åt både lek och umgänge. Vidare på entréplanet finns även ett helkaklat badrum samt en separat praktisk tvättstuga. Övre planet har tre sovrum av bra storlek samt ett helkaklat badrum med badkar. Här finner man en bostad som ger en bekymmersfri vardag med moderna bekvämligheter. På Lugnet bor man på ett lugnt och barnvänligt område. Det finns både förskola och grundskola och goda bussförbindelser in till centrum. Med bra cykelleder och promenadstråk tar man sig enkelt både till affärer och ut i naturen. Det stora handelsområdet Norremark med all service ligger inom räckhåll och Evedal med Helgasjöns alla aktiviteter inbjuder till fysisk aktivitet och rekreation. På nära cykelavstånd hittar man både 4H-gården, Hagavallen med fotbolls- och tennisplaner, Växjö Golfklubb, ridstall och bad i Helgasjön. Det finns också underbar natur i närområdet och nyligen bildades Hovshaga naturreservat som bland annat omfattar Arabybadet, Ryttartorpet, Pene och Kronoberg.
Entréplan
Hall
Bostadens hall har en stilren känsla som sedan följer med genom hela lägenheten. Här finner man ett ljust klinkergolv och väggarna är vitmålade. I hallen finns två garderober samt en rymlig avhängningsyta med plats för både hatthylla och skoställ.
Vardagsrum
Fint och ljust vardagsrum med stora fönsterpartier som släpper in mycket ljus till hela bostaden. Den uppsatta väggen delar upp vardagsrummet och köket på ett smart sätt. Vardagsrumsdelen kan med enkelhet möbleras med soffa samt TV-möbel.
Kök
Stilrent kök i vit färgsättning där det finns rymlig förvaring och bra arbetsytor. Den maskinella köksutrustningen består av spishäll, spisfläkt, diskmaskin, ugn, inbyggd mikrovågsugn samt kyl och frys i fullhöjd. Den trivsamma matplatsen har plats för ett matbord om ca 6 personer och de stora fönsterpartierna ger köket får ett fint ljus. Från köket nås bostadens privata och härliga baksida med trädäck och gräsyta. Tack vare att bostaden är belägen på hörntomt finns möjligheten att gå runt bostaden. Gräsytan är lättskött och uteplatsen dukar man gärna upp med matbordsmöblemang.Från köket når man även bostadens tvättstuga.
Badrum
Snyggt badrum i ljusa färger med ljusgrått klinkergolv och vitt kakel satt på vägg. Badrummet är utrustat med tvättställ med kommod, spegelskåp med förvaring, WC samt duschhörna med vikbara duschväggar. Här finns även en handukstork samt ett fönsterparti för ljusinsläpp.
Tvättstuga
Praktisk och separat tvättstuga som nås från både kök samt groventrén från framsidan vilket underlättar vardagsbestyren. Tvättstugan är utrustad med tvättmaskin och torktumlare. Här erbjuds även funktionell förvaring i form av över- och underskåp samt en arbetsbänk samt tvättho.
Övre plan
Sovrum
Avkopplande sovrum som går i ljusa färger där de lättmöblerade ytorna ger plats åt en dubbelsäng med tillhörande sängbord. Dubbla fönsterpartier som vetter mot baksidan ger ett fint ljusinsläpp. I rummet finns även en skjutdörrsgarderob att tillgå.
Sovrum
Sovrum med fönsterpartier i två väderstreck. Rummet är idag möblerat med säng och rummets yta ger även plats åt övrigt möblemang efter behov. Här finns även en skjutdörrsgarderob.
Sovrum
Sovrum som med fördel kan möbleras efter behov. Rummet är idag möblerat med både säng samt en arbetshörna med skrivbord. Från rummet har man tillgång till en rymlig klädkammare.
Badrum
Helkaklat badrum på övre plan utrustat med badkar, tvättställ med kommod, WC samt spegelskåp med belysning. Gråt klinkergolv och vitkaklade väggar. Stort och insynsskyddat fönster.



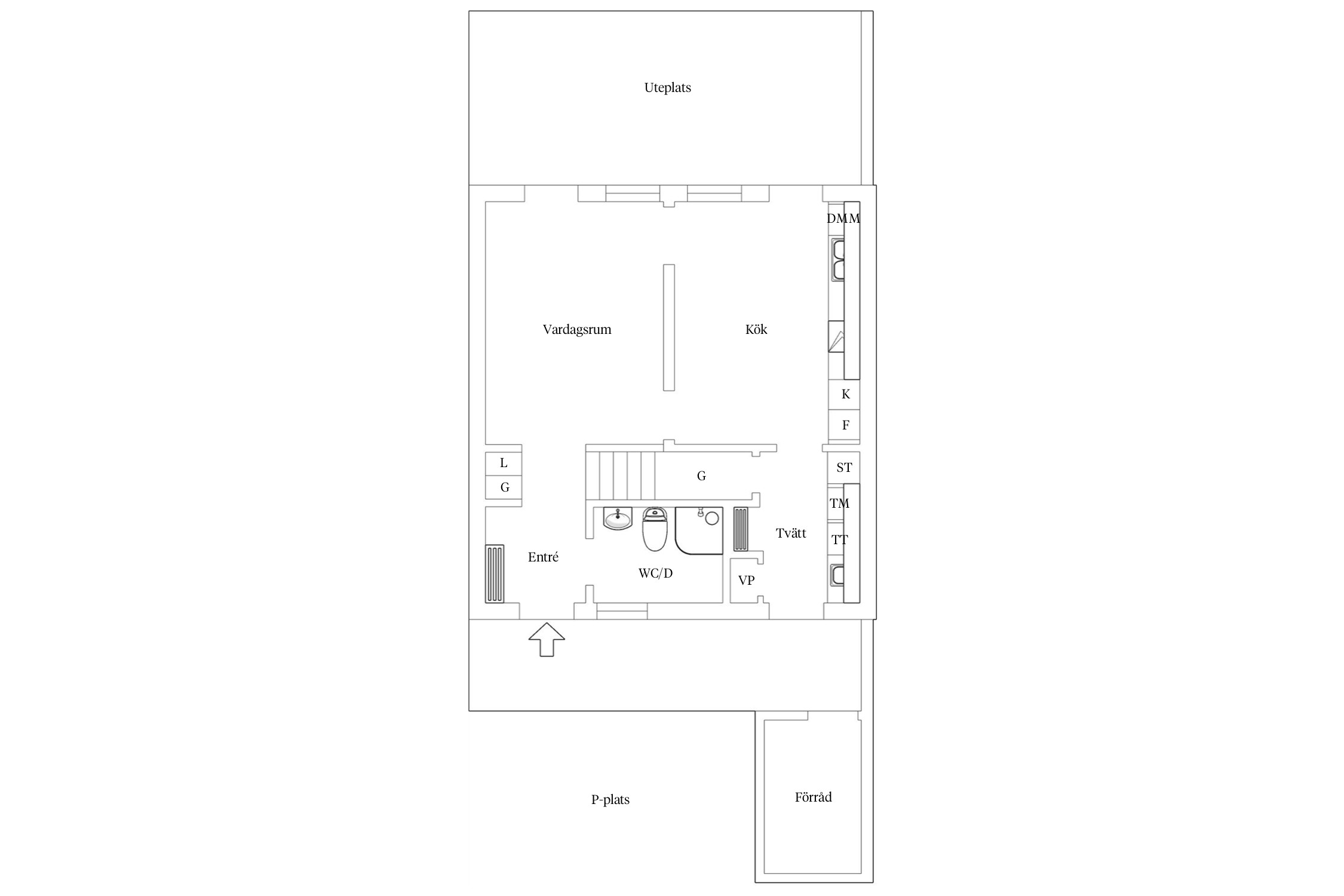
Planritning
Planritning
*Föreningens information
Inkl. parkeringsplats
Ett förråd ingår i upplåtelsen.
Via Fiber
Via Fiber
Bostadsrättens indirekta nettoskuldsättning baseras på föreningens skulder/lån minus föreningens räntebärande tillgångar och likvida medel. Beräkningen är gjord och baseras på senaste tillgängliga årsredovisningen. För mer information kontakta ansvarig fastighetsmäklare.
Driftkostnaderna är personliga och bör endast ses som en uppskattning. I samband med månadsavgiften debiteras en kostnad för VA om 308 kr/månaden. Avräkning sker 1 gång per år.
Under Övrigt redovisas ett obligatoriskt tillägg för bredband, telefoni och TV via Telia, 203 kr/månad samt kostnad för bostadsrättstillägg om 180 kr/månad samt 100kr/månad för driftsäkerhetsavtal för fjärrvärmecentralen.
På fastigheten Sanatoriet 29 i Växjö har föreningen Brf Lunden i Växjö totalt 21 st bostäder fördelat på fem huskroppar i två plan.
Inga beslutade avgiftshöjningar.
Framför varje bostad finns plats för uppställning av en bil. Föreningen har även tillgång till åtta gästparkeringar.
TV och bredband via fiber från Telia.
Vill du köpa, sälja eller värdera bostad i Kronobergs län? Kontakta våra mäklare i Växjö! Passa också på att anmäla dig till vår kostnadsfria söktjänst Boagenten som hjälper dig att hitta ditt drömboende.
Här hittar du alla våra lediga bostäder till salu i Kronobergs län just nu!
Kontakta mäklaren om du behöver hjälp att ta fram en boendekalkyl.
När du köper din bostad genom Bjurfors kan du ansöka om bolån till en förmånlig ränta hos vår samarbetspartner SEB.