-
Köpa
Köpa -
Sälja
Sälja - Hitta bostad
- Skapa bevakning
- Hitta mäklare
Ljus och välplanerad bostad på hörnläge!
Lugnet, Växjö
*Inkl. parkeringsplats
**Föreningens information
Bokad visning.
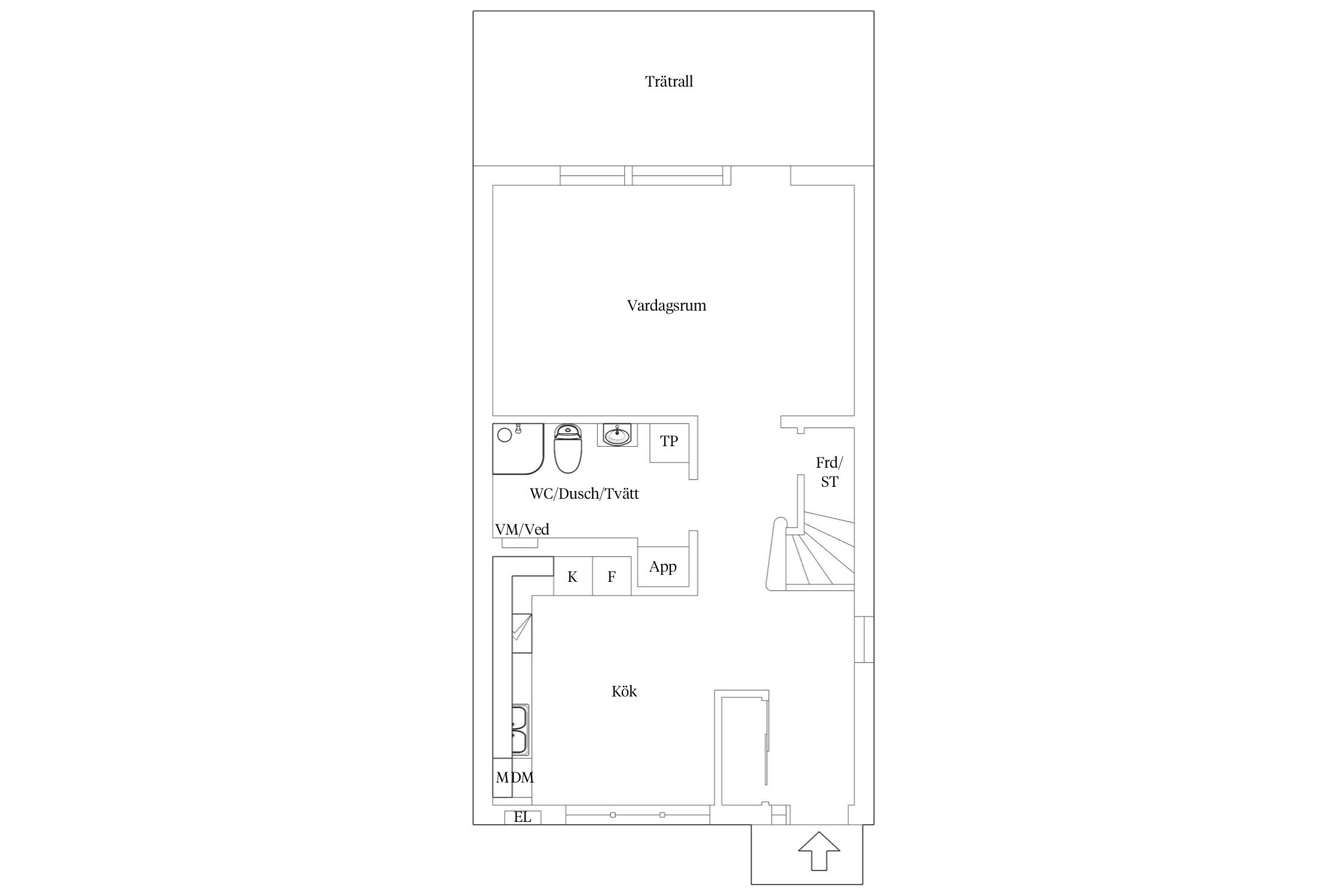
Välkommen till Lugnets väg 5H, en ljus och välplanerad bostad om 105 kvadratmeter, fördelat över två trivsamma plan. De enhetliga färgvalen binder samman inredningen på ett elegant sätt och ger rummen en lugn, sammanhållen känsla. Belägen på ett hörnläge, omgiven av naturens lugn, men ändå med bra kommunikationsmöjligheter till stadskärnan.
På entréplanet välkomnas ni av en ljus och inbjudande hall med praktisk förvaring i form av en skjutdörrsgarderob. Härifrån tar ni er vidare till det stilrena köket i grått utförande. Köket har ett härligt ljusinsläpp och plats för ett matbord framför fönsterpartiet. Vardagsrummet är mysigt och ljust med stora fönster som ger ett fantastiskt ljusflöde. Här finns även utgång till en upphöjd uteplats med trätrall. Badrummet är helkaklat och utrustat med praktisk tvättutrustning. Ovanvåningen är den privata ytan med fyra väl tilltagna sovrum där varje rum bjuder på ljus och funktionell förvaring. Sovrummen är alla smakfullt inredda med avkopplande färgval och bra förvaringsmöjligheter – från garderober till skjutdörrsgarderober och garderobsväggar. Här finns gott om plats för både vuxna och barn eller för att skapa ett kontor för den som önskar. På övre plan finns även ett helkaklat badrum med badkar.
Det populära hörnläget ger en privat känsla för bostaden. I anslutning till entrén på framsidan har ägarna gjort en extra rymlig stenläggning vilket ger utrymme för två parkeringsplatser. Här finns även ett förråd som är enkelt att nyttja.
På Lugnet bor ni på ett lugnt och barnvänligt område. Det finns både förskola och grundskola och goda bussförbindelser in till centrum. Med bra cykelleder och promenadstråk tar ni sig enkelt både till affärer och ut i naturen. Det stora handelsområdet Norremark med all service ligger inom räckhåll och Evedal med Helgasjöns alla aktiviteter inbjuder till fysisk aktivitet och rekreation. På nära cykelavstånd hittar ni både 4H-gården, Hagavallen med fotbolls- och tennisplaner, Växjö Golfklubb, ridstall och bad i Helgasjön. Det finns också underbar natur i närområdet och nyligen bildades Hovshaga naturreservat som bland annat omfattar Arabybadet, Ryttartorpet, Pene och Kronoberg.
Entréplan
Hall
Ljus och inbjudande hall där funktion möter stil. Här möts ni av stora, snyggt lagda kakelplattor och en neutral färgpalett på väggarna. För förvaringen står en praktisk skjutdörrsgarderob. Utanför entrén väntar en stenlagd yta, perfekt för att placera en sittgrupp. Bilen parkerar ni enkelt i direkt anslutning till entrén. Här finns även ett förråd som är enkelt att nyttja.
Kök
Köket är både smakfullt och välplanerat där design och funktion går hand i hand. Med ett stilrent grått utförande och genomtänkta materialval skapas en modern helhet. Framför det generösa fönsterpartiet finns en naturlig plats för matbordet. Den maskinella köksutrustningen består av diskmaskin, inbyggd mikrovågsugn, spishäll, ugn samt kyl och frys i fullhöjd.
Vardagsrum
Vardagsrummet bjuder in till avkoppling med sin ljusa och luftiga känsla. Tack vare de stora fönsterpartierna och den genomtänkta färgsättningen fylls rummet med naturligt ljus. Här finns en mysig plats för soffgruppen. Från vardagsrummet kliver ni rakt ut på en fin uteplats med trätrall som ligger upphöjd och erbjuder vyer över omgivningarna. Uteplatsen skyddas av en markis och ligger i härligt västerläge.
Badrum
Badrummet är stilrent inrett med snygga och tidlösa materialval. Här möts ni av ett grått klinkergolv i fin kontrast till väggarnas vita kakel. Utrymmet är välplanerat med både duschplats och tvättutrustning vilket gör vardagen smidig och bekväm. Badrummet är utrustat med duschhörna med vikbara duschväggar, spegelskåp med förvaring, tvättställ med kommod samt en tvättpelare med tvättmaskin och torktumlare.
Övre plan
Sovrum
Ett rymligt och trivsamt sovrum med fin färgsättning som skapar en varm och ombonad känsla. Det stora fönsterpartiet släpper in gott om dagsljus och ger rummet ett härligt ljusflöde. Förvaringen är generös tack vare dubbla garderober.
Sovrum
Det här sovrummet präglas av ljusa, fina färger och ett härligt ljusinsläpp som ger rummet en inbjudande atmosfär. Här finns också en garderob för smidig förvaring.
Sovrum
Större sovrum som rymmer både säng och övrigt möblemang. De avkopplande färgerna skapar en rogivande miljö. Även här finns ett stort fönsterparti som ger ett fantastiskt ljusinsläpp. Förvaringslösningen är både snygg och funktionell tack vare en skjutdörrsgarderob.
Sovrum
Det fjärde sovrummet används idag som ett kontor med skrivbord men passar lika bra som gästrum, barnrum eller extra sovplats. En hel garderobsvägg löser förvaringen på ett smart och effektivt sätt.
Badrum
Även detta badrum håller samma stilrena design som badrummet på entréplan. Här finner ni ett helkaklat utrymme med grått klinkergolv och vitt kakel som är utrustat med badkar, tvättställ med kommod, spegelskåp med förvaring samt WC.



*Föreningens information
Inkl. parkeringsplats
Till bostaden hör ett utvändigt förråd.
På framsidan finns två stycken parkeringsplatser.
Bostadsrättens indirekta nettoskuldsättning baseras på föreningens skulder/lån minus föreningens räntebärande tillgångar och likvida medel. Beräkningen är gjord och baseras på senaste tillgängliga årsredovisningen. För mer information kontakta ansvarig fastighetsmäklare.
Driftkostnaderna är inhämtade från säljaren och bör endast ses som en uppskattning. Kostnaden kan variera och baseras på förbrukning och avtal. I samband med avgiften debiteras en obligatorisk kostnad för VA (375 kr/mån) samt obligatorisk kostnad för Telia Triple Pay (203 kr/mån). I posten för EL är kostnad för laddning av EL-bil inkluderad. Säljarna uppskattar att cirka 30% av den totala kostnaden är för EL-bilsladdning.
På fastigheten Sanatoriet 37 har föreningen Brf Gläntan totalt 23 st bostadsrättslägenheter fördelat på 6 radhus i två plan.
Föreningen har i dagsläget inga beslutade avgiftsändringar men avser att följa den ekonomiska planen där inflationsantagandet är en årlig ökning på 2% av avgiften.
Fastigheten är fullvärdesförsäkrad i Moderna Försäkringar.
Det finns i dagsläget inga planerade renoveringar.
Vill du köpa, sälja eller värdera bostad i Kronobergs län? Kontakta våra mäklare i Växjö! Passa också på att anmäla dig till vår kostnadsfria söktjänst Boagenten som hjälper dig att hitta ditt drömboende.
Här hittar du alla våra lediga bostäder till salu i Kronobergs län just nu!
Kontakta mäklaren om du behöver hjälp att ta fram en boendekalkyl.
När du köper din bostad genom Bjurfors kan du ansöka om bolån till en förmånlig ränta hos vår samarbetspartner SEB.
Bokad visning.