-
Köpa
Köpa -
Sälja
Sälja - Hitta bostad
- Skapa bevakning
- Hitta mäklare
Smakfullt boende i två plan med huskänsla och egen trädgård!
Öjaby, Växjö
*ink vatten, bredband och IP-telefoni.
**Föreningens information
Bokad visning.
Välkommen till ett boende som kombinerar det bästa av två världar – friheten med egen trädgård och bekvämligheten med ett bekymmersfritt boende. Här bor ni i en charmig gavellägenhet med genomgående planlösning, två badrum och två uteplatser i olika väderstreck – perfekt för både lugna morgnar och sociala kvällar. Altanen bjuder in till långa stunder i det fria, med plats för både loungemöbler och odlingar. Den lummiga och välskötta utemiljön i området förstärker känslan av harmoni och avskildhet.
Invändigt möts ni av en genomgående smakfull interiör med sobra färgval och moderna ytskikt. Entréplanet rymmer ett stilrent kök, renoverat badrum med dusch, matplats och ett trivsamt vardagsrum med direkt access till altanen. På övre plan finner ni två rogivande sovrum i bra storlek, ett andra stilrent badrum samt förvaring i både hall och sovrum.
Ett väl omhändertaget hem med det lilla extra – perfekt för er som söker ett bekvämt och trivsamt boende med villakänsla i ett lugnt och omtyckt område.
I populära Öjaby bor ni med direkt närhet till härlig natur med fina promenadstråk och badplatser nere vid Helgasjön. Här finns även ett brett utbud att fritidsaktiviteter och idrott. På vintern finns även en populär spolad isbana som har öppet för allmänheten. Här finns flertalet förskolor samt skola med årskurserna F-6. Med goda kommunikationer tar ni er lätt in till Växjö Centrum och till handelsområdena Grand Samarkand och I11. På bekvämt cykelavstånd tar ni er även till Småland Airport.
Ett attraktivt boende för er som önskar en charmig bostadsrätt med egen trädgård.
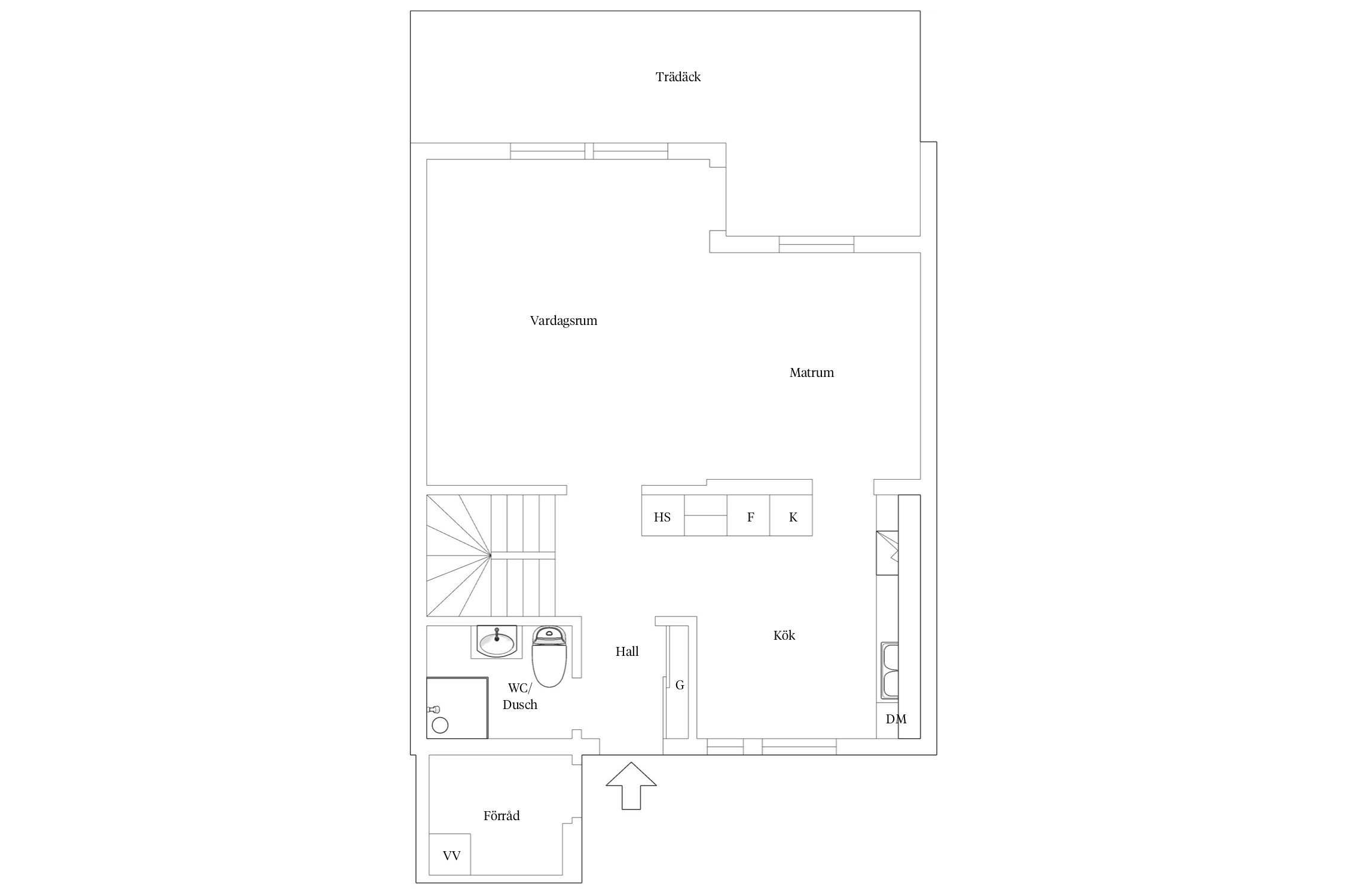
Entréplan
Hall
Redan i hallen möts ni av ett ljust och inbjudande intryck med genomgående ljusa ytskikt som skapar en luftig känsla. Här finns gott om plats för avhängning, och i anslutning till trappan ryms även en mindre möbel, perfekt för exempelvis sittbänk eller förvaring. En praktisk skjutdörrsgarderob med spegel ger både generöst med förvaringsutrymme och extra rymd åt entrén
Kök
Stilrent kök med vit köksinredning som erbjuder generösa arbetsytor och goda förvaringsmöjligheter. Vid det trevliga fönsterpartiet finns en trivsam plats för matplats. Den maskinella utrustningen består av ugn med spishäll, köksfläkt, diskmaskin samt kyl och frys i fullhöjd, vilket ger både funktion och bekvämlighet i vardagen.
Matrum
Ljust och luftigt matrum med öppen anslutning till både kök och vardagsrum – en social och genomtänkt planlösning som passar perfekt för såväl vardagsliv som festliga tillställningar. Rummet präglas av ljusa väggar och golv i harmonisk färgskala samt ett fint ljusinsläpp som skapar en trivsam atmosfär. Här finns gott om plats för ett större matbord och möjlighet att duka upp för många gäster.
Vardagsrum
Ett trivsamt och generöst vardagsrum med gott om plats för både soffgrupp och övrig möblering. Ljusa väggar och ljust golv bidrar till en behaglig och inbjudande känsla. Härifrån nås bostadens härliga uteplats på baksidan samt den egna trädgården – en naturlig förlängning av rummet under årets varmare månader.
Badrum
Smakfullt och funktionellt badrum med dusch. Rummet är inrett i olika grå nyanser med plastmatta och matchande väggbeklädnad som skapar ett stilrent intryck. Utrustat med toalett, handfat med kommod för förvaring samt spegelskåp – allt i en praktisk och genomtänkt helhet.
Övre plan
Hall
Praktisk och genomtänkt hall med generösa förvaringsmöjligheter längs ena långsidan. Ett funktionellt utrymme som binder samman de privata rummen på ett smidigt och harmoniskt sätt.
Badrum
Välutrustat badrum med dusch och tvättmöjligheter. Rummet har mörk plastmatta som kontrasterar snyggt mot de ljusa väggarna och skapar en stilren helhet. Här finns både tvättmaskin och arbetsbänk, vilket gör utrymmet praktiskt för vardagens bestyr. Utrustningen inkluderar även toalett, handfat med kommod samt spegelskåp för extra förvaring.
Sovrum
Rymligt och rogivande sovrum med behaglig färgsättning som skapar en lugn atmosfär. Det generösa ljusinsläppet bidrar till en ljus och trivsam känsla, och förvaringen är väl tillgodosedd genom flera garderober.
Sovrum
Ett harmoniskt sovrum med väggar i en behaglig blå kulör som ger rummet en lugn och ombonad känsla. Det trevliga fönstret i nisch släpper in fint ljus och skapar en charmig detalj i rummet. Ett trivsamt utrymme som passar utmärkt som barnrum, gästrum eller arbetsrum.



*Föreningens information
ink vatten, bredband och IP-telefoni.
Vid entrén till bostadens finns ett förråd.
Föreningen har 36 garageplatser (Separat kö). Föreningen har även fyra laddplatser. Det finns även gästparkeringar i området.
Bostadsrättens indirekta nettoskuldsättning baseras på föreningens skulder/lån minus föreningens räntebärande tillgångar och likvida medel. Beräkningen är gjord och baseras på senaste tillgängliga årsredovisningen. För mer information kontakta ansvarig fastighetsmäklare.
Driftskostnaderna är personliga och bör endast ses som en uppskattning. I kostnaden för EL ingår uppvärmning.
Bostadsrättsföreningens hus färdigställdes år 1980 på fastigheten Sidensvansen 1 i Växjö. Fastigheten adresser är Kantorsvägen 12-58 (jämna nr) och Stig Klockares väg 1-55 (udda nr).
Det finns i dagsläget inga beslutade avgiftsändringar.
Fastigheten är försäkrad i Länsförsäkringar Kronoberg. Hemförsäkring tecknas och bekostas individuellt av bostadsrättsinnehavarna. Kollektivt bostadsrättstillägg ingår i föreningens fastighetsförsäkring.
Det finns i dagsläget inga planerade renoveringar. För utförda renoveringar se årsredovisningen.
Föreningen har nyligen bytt tak och installerat solceller på de två miljörummen.
Föreningen har 36 garageplatser (Separat kö). Föreningen har även fyra laddplatser. Det finns även gästparkeringar i området.
I samband med avgiften debiteras en kostnad för bredband 500/500 via Telenor samt digital TV via Telenor - Bas HD (19 kanaler).
Föreningen har en gemensam tvättstuga, miljörum samt ett hobbyrum. I området finns det även en lekplats.
För godkännande av medlemskap i föreningen för köparen krävs det att köparen först godkänner föreningens skötselavtal av mark och kompletterande delar av fastigheten som köparen är ansvarig för. För mer information, se föreningens hemsida.
Vill du köpa, sälja eller värdera bostad i Kronobergs län? Kontakta våra mäklare i Växjö! Passa också på att anmäla dig till vår kostnadsfria söktjänst Boagenten som hjälper dig att hitta ditt drömboende.
Här hittar du alla våra lediga bostäder till salu i Kronobergs län just nu!
Kontakta mäklaren om du behöver hjälp att ta fram en boendekalkyl.
När du köper din bostad genom Bjurfors kan du ansöka om bolån till en förmånlig ränta hos vår samarbetspartner SEB.
Bokad visning.