-
Köpa
Köpa -
Sälja
Sälja - Hitta bostad
- Skapa bevakning
- Hitta mäklare
Villa på omtyckta Öster!
Öster, Växjö
*Areauppgifter enligt taxeringsinformationen
Välkommen till Bazargatan 1 och detta hem där fina detaljer möter moderna bekvämligheter på ett harmoniskt sätt. Här bor ni i ett hus med karaktär och själ, med vackra snickerier och genuin charm. Beläget på det omtyckta Öster erbjuds två våningsplan med inbjudande ytor som skapar en trivsam och funktionell boendemiljö.
På entréplan möts ni av en välkomnande hall med öppen passage mot matplats och vardagsrum. Den öppna spisen i vardagsrummet bidrar med både värme och karaktär, och köket, som ligger centralt mellan vardagsrum och matplats, erbjuder gott om arbetsytor och smart förvaring. Matplatsen i allrummet är en naturlig samlingspunkt med plats för många och härifrån nås det tilltagna trädäcket som verkligen förlänger hemmets ytor utomhus. Den inglasade delen av altanen bjuder in till sköna stunder oavsett väder medan det öppna trädäcket ger generösa ytor för umgänge. Här finns även ett spabad att tillgå. Trädgården runtom är omsorgsfullt anlagd med buskar, träd och planteringar. I en avskild del av våningsplanet finns badrum och tvättstuga med goda arbetsytor och förvaring. Övervåningen bjuder på ett mysigt allrum med utgång till balkong. Balkongen har stora ytor med möjlighet att njuta av utomhusmiljön även från ovanvåningen. Vidare finns ett praktiskt sovrum med garderober och en klädkammare i nära anslutning. På övre plan finns ytterligare ett badrum.
På Öster bor ni i en lugn och barnvänlig stadsdel nära lummiga grönområden och mysiga lekplatser. En kort promenad tar er enkelt in till centrum och även till Lasarettet vid Växjösjön. Allt från förskola till gymnasium erbjuds i närområdet. I närheten ligger också vårdcentralen med BVC och primärvård. För den aktive finns det flera anläggningar att välja på såsom simhallen och Fläktenområdet med gym, skatehall och kampsportförening. Det finns också härliga promenadstråk runt Trummen och Växjösjön med vacker natur. Inte långt härifrån finns Fyllerydsskogen med både härliga löpspår och golfbana och på samma avstånd även vackra Bokhultet.
Entréplan
Hall
Hall med öppen passage in mot både matplats och vardagsrum vilket skapar en välkomnade och genomtänkt entré. Här finns garderob och plats för hatthylla. Entrén ramas in av en charmig veranda med vackra snickeridetaljer.
Matplats/allrum
Allrum med generösa ytor som binds samman med köket och blir en naturlig plats för både vardag och samvaro. Här finns utrymme för en matplats som enkelt rymmer ett större sällskap. Från rummet leder en trappa vidare till övre plan. Utgången till altanen förlänger säsongen med både en inglasad del och ett öppet trädäck. Utomhusmiljön erbjuder gott om plats för umgänge, ett spabad för extra komfort samt smidig access till den lummiga trädgården.
Kök
Köket ligger centralt placerat mellan vardagsrum och matplats. En naturlig knutpunkt i bostaden med nära kontakt till hemmets sociala ytor. Här finns gott om både arbetsyta och förvaring. Köket är utrustat med ugn med spishäll, spisfläkt, diskmaskin samt kombinerad kyl och frys.
Vardagsrum
Trivsamt vardagsrum med öppen spis som skapar både värme och en hemtrevlig känsla. Stora fönsterpartier i tre väderstreck ger rummet ett fint ljusinsläpp under hela dagen. Här finns gott om plats för soffa, fåtöljer och övrigt möblemang. Rummet blir en naturlig plats för avkoppling och samvaro.
Badrum
Badrummet är beläget, tillsammans med tvättstugan, i en avskild del av huset. Badrummet går i ljusa färger och här finns ett fönsterparti som bidrar med ljusinsläpp. Här finner ni en dusch, WC, tvättställ med kommod samt skåpsförvaring.
Tvättstuga
Tvättstugan är en funktionell och praktisk del av bostaden placerad i anslutning till badrummet. Här finns arbetsytor för klädvård, tvättmaskin samt goda förvaringsmöjligheter. Ett fönsterparti för ljusinsläpp.
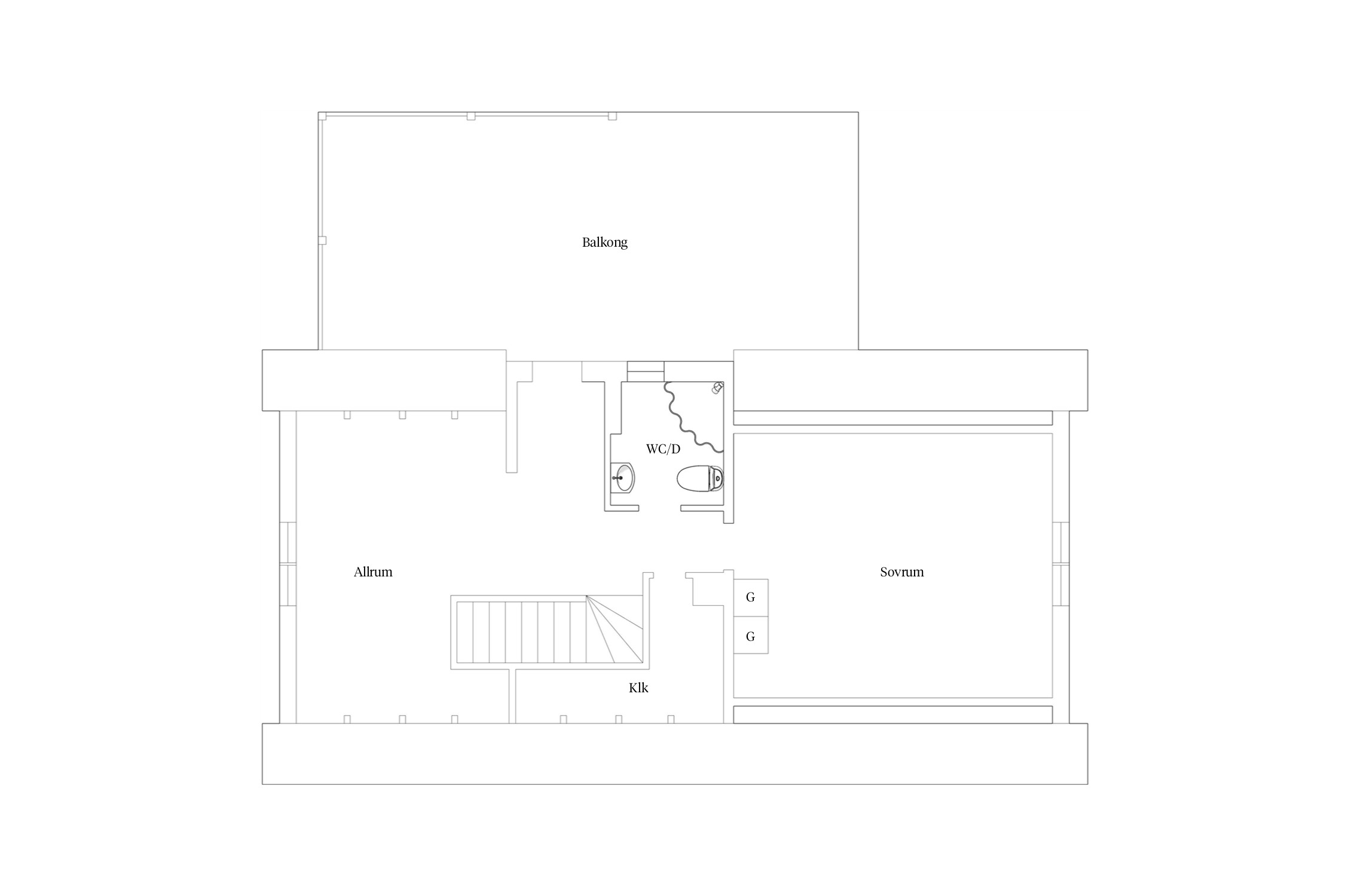
Övre plan
Allrum
Ett trivsamt allrum med detaljer som skapar karaktär och ger rummet en egen identitet. Här finns plats för möblemang efter behov, exempelvis en läshörna, arbetsplats eller extra TV-hörna. Från rummet nås även balkongen. Här finns stora ytor och möjlighet att njuta av utomhusmiljön även från ovanvåningen. Rummet kan även nyttjas som sovrum.
Sovrum
Rymligt sovrum med två garderober som ger god förvaring. Här finns fina detaljer som bidrar till rummets charm och karaktär. I nära anslutning finns en praktisk klädkammare för extra förvaringsmöjligheter. Stort fönsterparti släpper in generöst med dagsljus och skapar en ljus och behaglig atmosfär.
Badrum
Badrum på övre plan utrustat med duschhörna, WC, tvättställ samt spegelskåp med förvaring. Fönsterparti för ljusinsläpp.



Tallen 2
*Areauppgifter enligt taxeringsinformationen
*(Byggt någon gång 1800-talet)
1981
Kommunalt vatten. Kommunalt avlopp.
Stadsplan (1964-06-17)
Skattetal: mantal 12/10000
Driftkostnader och elförbrukning är inhämtade från säljaren och bör endast ses som en uppskattning. Kostnaden kan variera och baseras på förbrukning och avtal. Kostnaden för uppvärmning är inkluderad i kostnaden för EL.
Det finns 10 st pantbrev uttagna om sammanlagt 403 100 kr
Vill du köpa, sälja eller värdera bostad i Kronobergs län? Kontakta våra mäklare i Växjö! Passa också på att anmäla dig till vår kostnadsfria söktjänst Boagenten som hjälper dig att hitta ditt drömboende.
Här hittar du alla våra lediga bostäder till salu i Kronobergs län just nu!
Kontakta mäklaren om du behöver hjälp att ta fram en boendekalkyl.
När du köper din bostad genom Bjurfors kan du ansöka om bolån till en förmånlig ränta hos vår samarbetspartner SEB.