-
Köpa
Köpa -
Sälja
Sälja - Hitta bostad
- Skapa bevakning
- Hitta mäklare
Yteffektiv etta på omtyckta Söder!
Söder, Växjö
*Inkl. värme, vatten, sophantering och bostadsrättstillägg.
**Föreningens information
Bokad visning.
Här erbjuds en kvadratsmart och yteffektiv etta med stilsäker inredning där lägenhetens genomtänkta helhetsdetaljer ger en bekväm boendemiljö. Här finner ni ett helkaklat badrum, välplanerat kök samt ett stort allrum som rymmer både matplats, soffa och en naturlig plats för säng. Här bor ni i en stabil förening med låg månadsavgift på ett idealiskt läge med endast en kort promenad till Centrum.
De öppna ytorna och alla ljusa materialval gör att boendet känns luftigt. Köket kombinerar skåpsförvaring och arbetsytor på ett bra sätt. Köket och allrummet samspelar i en öppen planlösning som skapar en mycket trivsam känsla. Allrummet är lättmöblerat och kan anpassa efter egna behov. På den effektiva ytan finns det plats för både sänghörna, loungegrupp och matplats. Badrummet är helkaklat med tvättmöjligheter i form av tvättmaskin. Bostadens hall är utrustad med flera garderober för förvaring.
Lägenheten är belägen på city- och naturnära Söder med allt inom räckhåll. Utbudet av kulturella upplevelser och välrenommerade restauranger skapar ett attraktivt läge. Växjösjön med dess vackra promenadstråk erbjuder fysisk aktivitet med utegym, tennisbanor och simhall. Expansiva stationsområdet bidrar till smidiga och bekväma resemöjligheter både i närområdet och till andra städer.
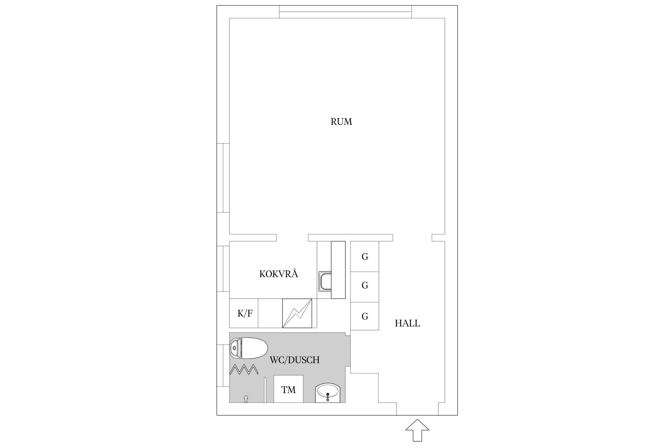
Hall
Ljus hall som erbjuder rymlig förvaring i form av tre garderober med överskåp. Här finns även bra möjlighet till avhängning då hallen ger plats åt både hatthylla och skoställ. Hallen har ett praktiskt klinkergolv och vitmålade väggar.
Badrum
Helkaklat badrum utrustat med WC, dusch med vikbara glasväggar, tvättställ med kommod samt spegelskåp med förvaring. Badrummet är även utrustat med en tvättmaskin som ger goda tvättmöjligheter. Fönstret är insynsskyddat och ger ett fint ljus insläpp.
Allrum
Allrum som får en inbjudande känsla tack vare en ljus färgsättning och fönsterpartier i två väderstreck. Här finns goda möbleringsmöjligheter vilket ger plats för både en soffa samt en sovalkov som kan avskärmas snyggt och enkelt. I anslutning till köket finns det även plats för att möblera med ett matbord och skapa en trivsam matplats.
Kök
Kök med öppna ytor in mot allrummet och där köksinredning går i vitt utförande. Ovan arbetsbänken är mörkt mosaikkakel satt som stänkskydd och väggarna är vitmålade. Den praktiska köksön ger extra arbetsytor och delar av köket från vardagsrummet på ett smart sätt. Den maskinella köksutrustningen består av ugn med spishäll, spisfläkt samt kombinerad kyl och frys.



*Föreningens information
Inkl. värme, vatten, sophantering och bostadsrättstillägg.
Relevant andelstal gällande andel av årsavgift har ej gått att få fram från föreningen eller förvaltaren.
Då föreningens tillgångar överstiger skulderna är bostadsrättens indirekta nettoskuldsättning o kr.
Driftskostnaderna är personliga och bör endast ses som en uppskattning. Posten Övrigt innefattar kostnad för kabel-TV, bredband och stambyte som varje månad debiteras som ett obligatoriskt tillägg (240 kr) från föreningen.
Föreningen äger fastigheten Vulkan 4 i Växjö kommun. På fastigheten finns 2 byggnader med 35 lägenheter som är uppförda 1965. Fastighetens adress är Trädgårdsgatan 20 och Tegnérgatan 4 och 6 i Växjö. Den tekniska och ekonomiska förvaltningen sköts av Riksbyggen.
Det finns i dagsläget inga beslutade avgiftsändringar.
Fastigheten är fullvärdesförsäkrad i Folksam och föreningen har kollektivt tecknat bostadsrättstillägg. Hemförsäkring bekostas individuellt av bostadsrättsinnehavarna.
För utfört underhåll se årsredovisningen. Det finns i dagsläget inga större underhåll planerade.
Föreningen har tillgång till 25 st parkeringsmöjligheter varav 8 st är garageplatser, 12 st carportplatser, 4 st p-platser och 1 st gästparkeringar. Till samtliga bilplatser är det separat kö och kostnaden är ca 320 - 380 kr/månad beroende på vilken variant.
Föreningen har kollektivt tecknat ett avtal för Kabel-TV (Grundutbud) och bredband via Telia
Föreningen har en gemensam tvättstuga som är belägen på entréplan på Trädgårdsgatan 20.
Vill du köpa, sälja eller värdera bostad i Kronobergs län? Kontakta våra mäklare i Växjö! Passa också på att anmäla dig till vår kostnadsfria söktjänst Boagenten som hjälper dig att hitta ditt drömboende.
Här hittar du alla våra lediga bostäder till salu i Kronobergs län just nu!
Kontakta mäklaren om du behöver hjälp att ta fram en boendekalkyl.
När du köper din bostad genom Bjurfors kan du ansöka om bolån till en förmånlig ränta hos våra banksamarbetspartners Söderberg & Partners och SEB.
Bokad visning.
Ansvarig mäklare