-
Köpa
Köpa -
Sälja
Sälja - Hitta bostad
- Skapa bevakning
- Hitta mäklare
Tvåa med välplanerade ytor och charmig karaktär!
Söder, Växjö
*Inkl. värme, vatten, sophantering och bostadsrättstillägg.
**Föreningens information
På Förhand ligger bostäder som av olika anledningar inte är ute till försäljning just nu men som kan komma att säljas om förutsättningarna är rätt.
Välkommen till nyrenoverad 2:a med retrokänsla på mysiga Söder! Bostaden ligger insynsskyddat på tredje våningen och har ett härligt ljusinsläpp från stora fönsterpartier i två väderstreck. Lägenheten disponerar 58 kvadratmeter och till lägenheten hör även en balkong ut mot lugn grönskande allé. På populära Söder bor ni med ett bekvämt gångavstånd in till centrum, perfekt läge för den som vill ha nära till allt.
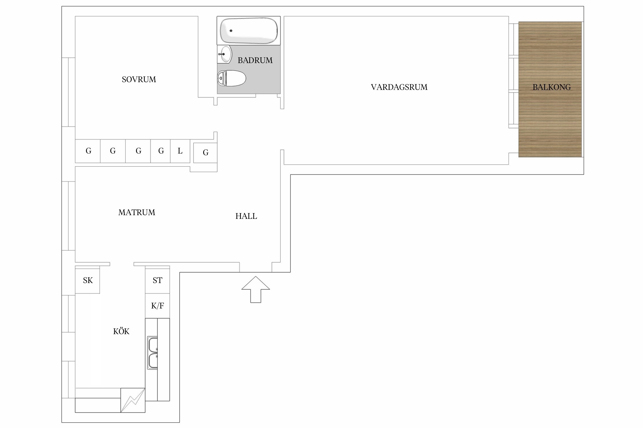
Högst upp i huset finner ni denna mysiga genomgångsbostad. Ni välkomnas av en ljus hall med mängder av förvaringslösningar. Till vänster tar ni er enkelt in till köket. De ljusa köksluckorna går smakfullt ihop med resterande inredning. Köksbänken bidrar med goda arbetsytor och förvaring erbjuds i både över- och underskåp. Matplatsen i nära anslutning till köket ger en perfekts plats för ett matbord. I det rofyllda sovrummet ryms enkelt en dubbelsäng. I sovrummet finns en hel vägg med platsbyggda garderober för smart klädförvaring. Vidare in i bostadens finner ni det rymliga vardagsrummet som är en naturlig plats att umgås på. Härlig takhöjd och flödande ljus bidrar till en luftig känsla. Från rummet når ni även den överbyggda balkongen i österläge. Bostadens badrum är helkaklat och utrustat med badkar.
På Trädgårdsgatan 20 bor ni i en stabil förening på ett idealiskt läge med endast en kort promenad till Centrum. Föreningens innergård skänker ett härligt lugn med grönytor och lummiga träd. Här finns både grillplats och sittmöbler för att kunna träffas och umgås. Det är nära till citys hela utbud med butiker, restauranger och ett varierande kulturliv. Växjösjön och dess natur med ett rikt utbud av fysiska aktiviteter och promenadstråk ligger på ett bekvämt avstånd från boendet. Här bor ni med bra kommunikationer både via cykel och kollektivt till Linnéuniversitetet.
Hall
Ni välkomnas av en ljus hall med mängder av förvaringslösningar. Hallen har en garderob samt flera överskåp för smart förvaring. Väggarna är vitmålade och på golvet ligger ett vitlaserad ekparkett som fortsätter in i lägenhetens samtliga rum. Hallens yta ger även plats för kapphylla samt en sittmöbel.
Kök
Klassiskt och välbevarat 60-talskök med trevlig retrokänsla. Köksluckorna går i ljusblå kulör vilket matcher kökets övriga inredning. Matplatsen i nära anslutning till köket ger en perfekts plats för ett matbord. Både köket och matplatsen har varsitt fönsterparti som förser ytan med mycket ljus. Den maskinella köksutrustningen består av spis, fläkt samt kombinerad kyl och frys.
Sovrum
Rofyllt sovrum med ljus färgsättning och stort fönsterparti i västerläge. Rummet möbleras enkelt upp med en större säng med tillhörande sängbord. Bra förvaringsmöjlighet i form av fem garderober med överskåp.
Badrum
Badrummet har klinker lagt på golv och väggarna är helt klädda i kakel. Badrummet nås från hallen. Här finner ni en WC, tvättställ, spegelskåp med förvaring samt ett badkar.
Vardagsrum
Vardagsrummet skapar en naturlig plats att umgås på med familj och vänner. Här finner ni en bra att yta att möblera upp med en större soffgrupp med tillhörande TV-möbel. På golvet ligger ett vitlaserad ekparkett och väggarna följer samma ljusa färgskala. Från vardagsrummet nås bostadens överbyggda balkong i österläge. Här ryms en trivsam sittgrupp.



Planritning
*Föreningens information
Inkl. värme, vatten, sophantering och bostadsrättstillägg.
Till bostaden hör ett förråd och en matkällare som ligger i entréplan.
Då föreningens tillgångar överstiger skulderna är bostadsrättens indirekta nettoskuldsättning o kr.
Under övrigt redovisas kostnaden för kabel-TV/bredband (240 kr/månad). Driftkostnader är inhämtade från säljaren och bör endast ses som en uppskattning. Kostnaden kan variera och baseras på förbrukning och avtal.
Föreningen äger fastigheten Vulkan 4 i Växjö kommun. På fastigheten finns 2 byggnader med 35 lägenheter som är uppförda 1965. Fastighetens adress är Trädgårdsgatan 20 och Tegnérgatan 4 och 6 i Växjö. Den tekniska och ekonomiska förvaltningen sköts av Riksbyggen.
Det finns i dagsläget inga beslutade avgiftsändringar.
Fastigheten är fullvärdesförsäkrad i Folksam och föreningen har kollektivt tecknat bostadsrättstillägg. Hemförsäkring bekostas individuellt av bostadsrättsinnehavarna.
För utfört underhåll se årsredovisningen. Det finns i dagsläget inga större underhåll planerade.
Föreningen har tillgång till 25 st parkeringsmöjligheter varav 8 st är garageplatser, 12 st carportplatser, 4 st p-platser och 1 st gästparkeringar. Till samtliga bilplatser är det separat kö och kostnaden är ca 320 - 380 kr/månad beroende på vilken variant.
Föreningen har kollektivt tecknat ett avtal för Kabel-TV (Grundutbud) och bredband via Telia
Föreningen har en gemensam tvättstuga som är belägen på entréplan på Trädgårdsgatan 20.
Vill du köpa, sälja eller värdera bostad i Kronobergs län? Kontakta våra mäklare i Växjö! Passa också på att anmäla dig till vår kostnadsfria söktjänst Boagenten som hjälper dig att hitta ditt drömboende.
Här hittar du alla våra lediga bostäder till salu i Kronobergs län just nu!
Kontakta mäklaren om du behöver hjälp att ta fram en boendekalkyl.
När du köper din bostad genom Bjurfors kan du ansöka om bolån till en förmånlig ränta hos vår samarbetspartner SEB.