-
Köpa
Köpa -
Sälja
Sälja - Hitta bostad
- Skapa bevakning
- Hitta mäklare
Välplanerad tvårummare!
Teleborg, Växjö
*Inkl. kallvatten, värme samt sophantering
**Föreningens information
Bokad visning.
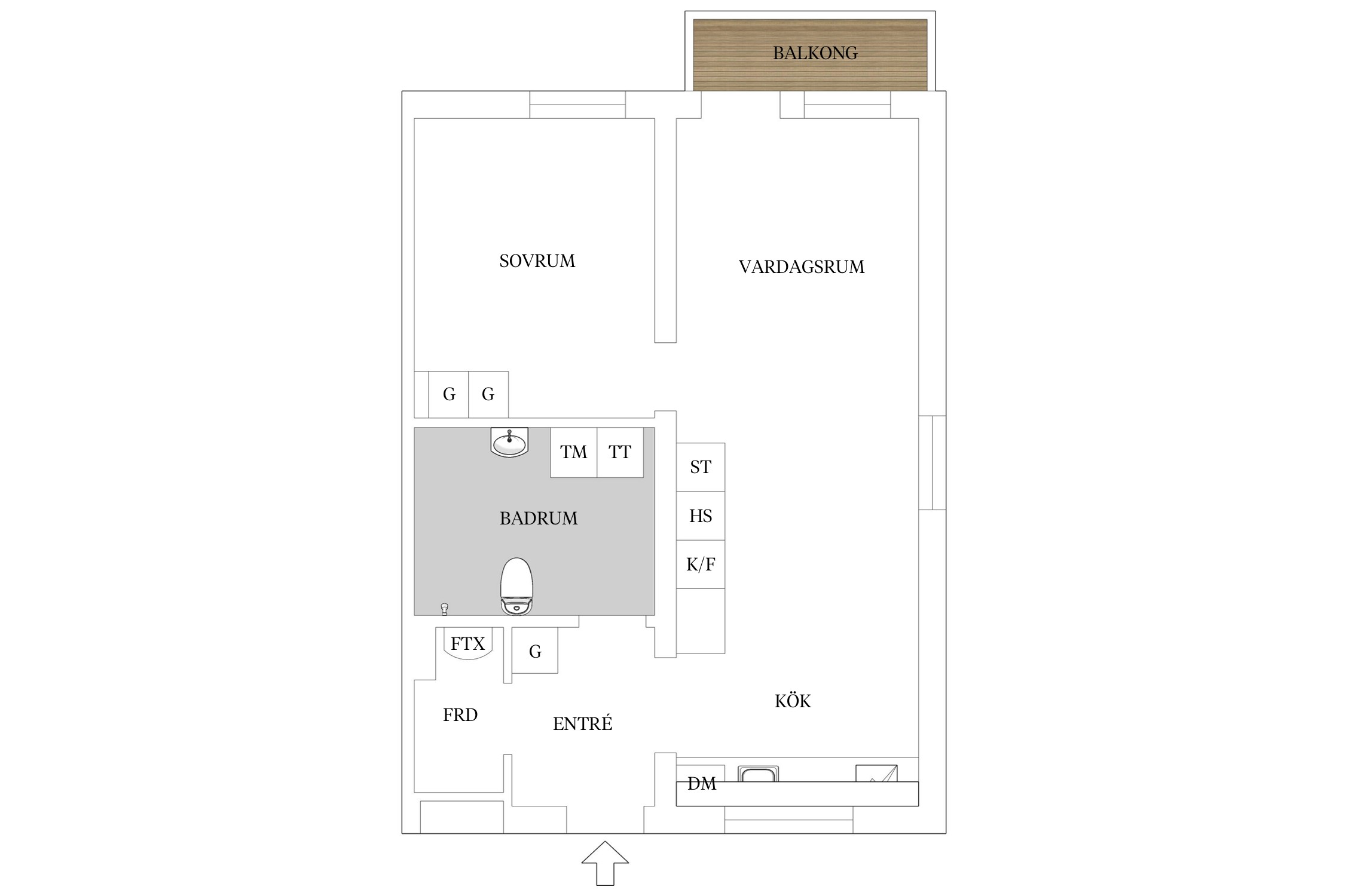
Välkommen till ett välplanerat boende med säker stilkänsla på härliga Telestadshöjden. Tack vare gavelläget och den öppna och luftiga planlösningen flödar boendet i ljus. Bostaden har en balkong med härlig utsikt som nås från vardagsrummet, härifrån har man vyer mot föreningens innegård. Det välutrustade köket har en köksinredningen som går i en ljus nyans vilket skapar en helhetskänsla med resten av boendet och ger ett enhetligt och stilmässigt intryck. Vardagsrum och kök formar tillsammans en social yta som bjuder in till umgänge. Vardagsrummet har ett trevligt ljusinsläpp från de stora fönsterpartierna. Sovrummet går i vilsamma nyanser och det finns bra förvaringsmöjligheter. Telestadshöjden erbjuder vacker natur och spännande promenadstråk. Samtidigt som man bor i ett nytt och gemytligt bostadsområde kan man njuta av lummiga skogar och gångstråk. Bra cykelleder och busskommunikation gör det smidigt att ta sig till centrum och universitetet.
Hall
Praktisk hall med hatthylla, skoställ och en garderob för smidig förvaring. Väggarna är målade i vitt och på golvet ligger ett ljust ekparkett som löper vidare in genom bostaden. Från hallen når man bostadens badrum och kök.
Kök
Välplanerat och stilrent kök med öppen planlösning mot vardagsrummet. Köksinredningen går i ljust utförande och matchas snyggt då både arbetsytan och kaklet går i trevlig färgskala. Köket är modernt och erbjuder gott om såväl arbetsytor som förvaring. Den maskinella köksutrustningen består av ugn, spishäll, spisfläkt, inbyggd mikrovågsugn, diskmaskin samt kombinerad kyl och frys.
Vardagsrum
Vardagsrummet är ljust och luftigt med stora fönsterpartier. Här finns goda möjligheter till möblering för soffgrupp samt TV och TV-bänk. Mellan kök och vardagsrummet finns det plats för en matgrupp för upp till fyra personer. Från vardagsrummet når man även lägenhetens balkong
Sovrum
Rofyllt sovrum med plats för dubbelsäng och tillhörande sängmöbel. Här finns det praktiska garderober för klädförvaring. Sovrummet får ett härligt ljusinsläpp från fönstret.
Badrum
Badrum med vet kaklade väggar och våtrumsmatta i grå nyans . Här har man en duschhörna, tvättställ, handdukstork, kombinerad tvätt och torkmaskin, WC och spegelskåp med förvaring.



Planlösning
*Föreningens information
Inkl. kallvatten, värme samt sophantering
Till bostaden hör ett förråd.
Bostadsrättens indirekta nettoskuldsättning baseras på föreningens skulder/lån minus föreningens räntebärande tillgångar och likvida medel. Beräkningen är gjord och baseras på senaste tillgängliga årsredovisningen. För mer information kontakta ansvarig fastighetsmäklare.
Driftskostnaderna är personliga och bör endast ses som en uppskattning. Debitering kommer att ske efter faktisk förbrukning.
Föreningen har totalt 40 st bostadsrätter fördelade på fem bostadshus med två våningsplan.
Föreningen har beslutat om att höja avgiften med 3% fr.o.m. 1/1-2026.
Det finns i dagsläget inga planerade renoveringar.
Det finns en parkering per bostad att hyra till en kostnad av 100 kr/månad. Utöver detta finns även 4 gästparkeringar samt 5 handikapparkeringar.
Lägenheterna är utrustade med fiber. Bostadsrättsinnehavaren väljer sedan leverantör och abonnemang.
Föreningen har en gemensam yta med sittplatser samt en lekplats. Cykelparkering finns i anslutning till varje huskropp.
Föreningen har ett gemensamt miljöhus med kärl för källsortering.
Vill du köpa, sälja eller värdera bostad i Kronobergs län? Kontakta våra mäklare i Växjö! Passa också på att anmäla dig till vår kostnadsfria söktjänst Boagenten som hjälper dig att hitta ditt drömboende.
Här hittar du alla våra lediga bostäder till salu i Kronobergs län just nu!
Kontakta mäklaren om du behöver hjälp att ta fram en boendekalkyl.
När du köper din bostad genom Bjurfors kan du ansöka om bolån till en förmånlig ränta hos våra banksamarbetspartners Söderberg & Partners och SEB.
Bokad visning.
Ansvarig mäklare