-
Köpa
Köpa -
Sälja
Sälja - Hitta bostad
- Skapa bevakning
- Hitta mäklare
Välrenoverad enplansvilla på norra Teleborg!
Teleborg, Växjö
*Areauppgifter enligt taxeringsinformationen
Anmäl dig till mäklaren för visningstid
Kontakta mäklaren för mer information gällande budgivningen.
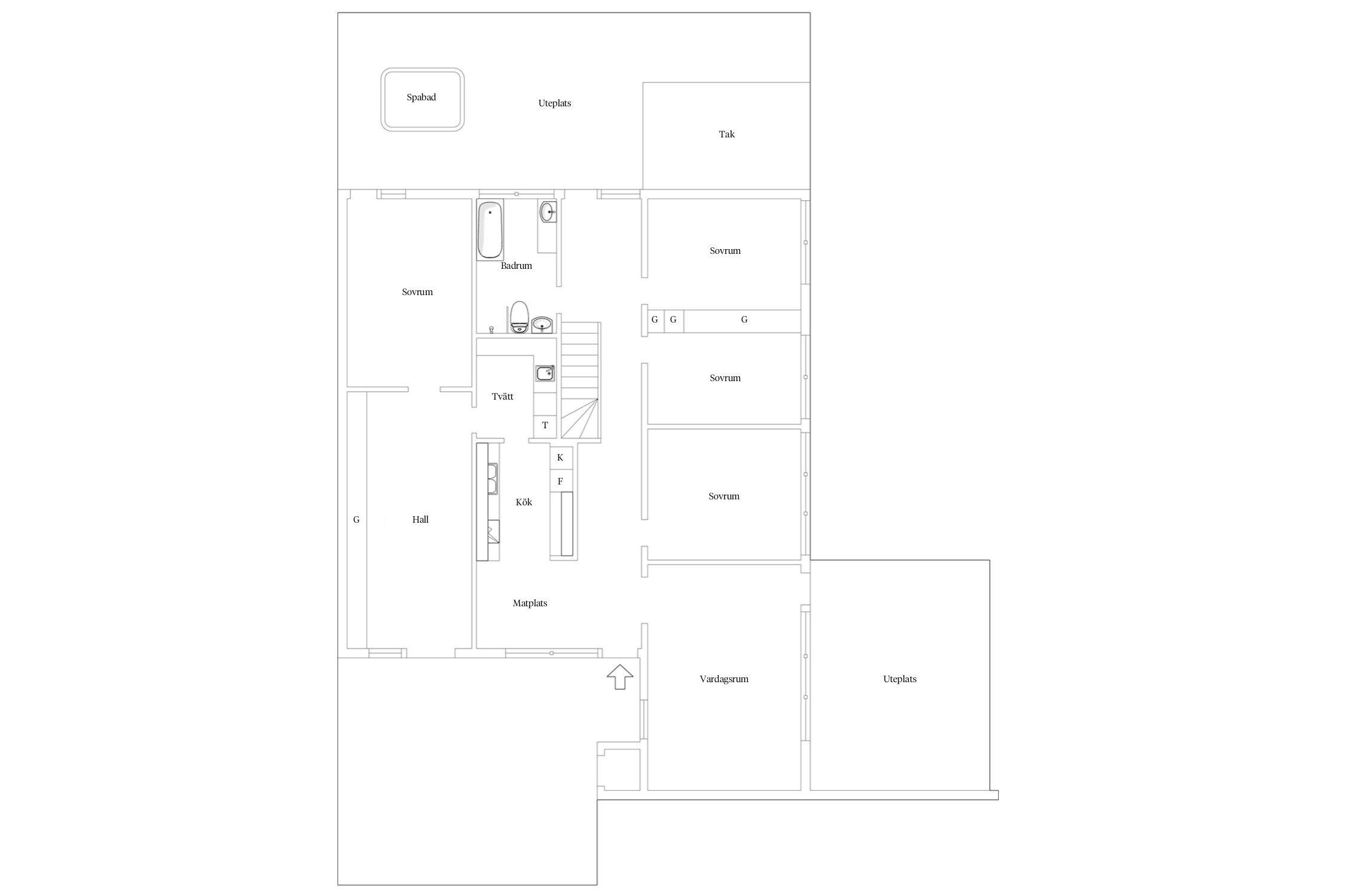
Välkommen till Nävervägen 3 och denna välrenoverad enplansvilla med källare belägen i ett trivsamt och barnvänligt område på norra Teleborg. Här erbjuds ett hem som kombinerar genomtänkt funktion med en inbjudande atmosfär där både vardag och fritid får ta plats.
Entréplanet präglas av en smart och familjevänlig planlösning med flera sovrum som skapar en naturlig uppdelning mellan privata och sociala ytor. Här finns fyra bra sovrum som ger gott om plats för familjens behov. Det ljusa köket har en fin närhet till vardagsrummet vilket bidrar till en öppen och trivsam miljö för gemenskap och umgänge. Vidare finns välplanerade och funktionella ytor med badrum och tvättstuga som underlättar vardagen och bidrar till ett bekvämt boende.
Källarplanet erbjuder ett allrum med generösa, sociala ytor som ger ett tydligt mervärde till bostaden och öppnar upp för många användningsmöjligheter. Här finns även gäst-wc, duschplats samt goda förrådsutrymmen. Källaren är i gott skick och erbjuder stora, användbara ytor som enkelt kan anpassas efter era behov. Oavsett om ni önskar extra umgängesytor, hobbyrum eller plats för de äldre barnen.
Utemiljön bjuder på en lättskött trädgård med fina ytor för både lek och avkoppling. Här finns två uteplatser i olika väderstreck vilket gör det enkelt att följa solen under dagen. På baksidan väntar ett skyddat och privat läge med stort trädäck, uteplats under tak samt spabad. En plats där ni kan njuta av lugna stunder tillsammans från dag till kväll.
På Nävervägen 3 bor ni på ett praktiskt läge med närhet både till förskolor och skolor med närhet till busshållplatser och bra cykelleder in till centrum. Det finns flera grönområden, skogspartier och lekplatser i området. Här finns även stora mataffärer, gym och matstället. För den aktive och naturintresserade har ni de tre sjöarna Bergundasjön, Trummen och Växjösjön på idealiskt avstånd. Endast cirka 400 meter från bostaden finns även ett elljusspår, perfekt för både promenader och löprundor året om. Längs vackra promenadstråken finner ni Linnés arboretum, mysiga utsiktsplatser och Teleborgs slott som erbjuder en vacker och historisk miljö för rekreation och lugn.
Entréplan
Hall
Hallen välkomnar er med en rymlig känsla och erbjuder praktiska förvaringslösningar med både skjutdörrsgarderob och avhängningsyta. Här finns gott om plats för vardagens ytterkläder och skor samtidigt som den öppna ytan ger ett luftigt intryck.
Kök
Köket har en ljus och stilren vit inredning och erbjuder en välbalanserad kombination av arbetsytor och förvaring. Den maskinella utrustningen är komplett och består av inbyggd ugn, diskmaskin, spishäll, spisfläkt, vinkyl samt kyl och frys i fullhöjd. Allt i rostfritt utförande som både är snyggt och praktiskt. Från köket når ni smidigt tvättstugan vilket skapar ett naturligt arbetsflöde i hemmet.
Vardagsrum
Vardagsrummet är ett generöst och ljust rum där ni enkelt får plats med både matbord och soffhörna. Stora fönsterpartier släpper in rikligt med dagsljus och skapar en trivsam atmosfär. Från vardagsrummet når ni även en av bostadens uteplatser.
Sovrum
Det första sovrummet har tre fönsterpartier som ger ett härligt ljusinsläpp under hela dagen. Rummet rymmer både säng och förvaringsmöbel vilket gör det till ett praktiskt och mysigt rum.
Sovrum
Sovrum med dubbla fönster och yta som erbjuder en rymlig plats för säng. Här finns även ett utrymme för en smart förvaringslösning. Här finns goda möjligheter att skapa ett personligt rum.
Sovrum
Sovrum utrustat med skjutdörrsgarderob som ger smidig förvaring. Rummet ger plats för en dubbelsäng. Här finner ni en hemtrevlig känsla där rummet är lätt möblera med en lugn atmosfär som inbjuder till vila.
Sovrum
Det fjärde sovrummet nås direkt från hallen och har utgång till baksidan av huset. Detta ger rummet en privat känsla och enkel tillgång till trädgårdens lek- och uteplatser.
Badrum
Badrummet är helkaklat och erbjuder både dusch och badkar vilket gör det funktionellt och bekvämt. Vidare finns WC, tvättställ med kommod samt badrumsspegel.
Tvättstuga
Tvättstugan är praktiskt utrustad med tvättmaskin och torktumlare samt arbetsyta med tvättho. Här finns också gott om förvaring som gör det enkelt att hålla ordning på tvätt och hushållssysslor.
Källare
Källaren är i gott skick och erbjuder stora, användbara ytor som tillför ett tydligt mervärde till bostaden. Här finns ett allrum med generösa sociala ytor. Förutom allrummet finns även gäst-wc och duschplats vilket gör källarplanet både praktiskt och flexibelt. Goda förrådsutrymmen ger plats för allt från säsongsförvaring till hobbyprylar vilket gör det enkelt att hålla ordning och struktur i hemmet.



Sparren 3
*Areauppgifter enligt taxeringsinformationen
Kommunalt vatten. Kommunalt avlopp.
Tomtindelning Stadsplan
Fiber
Fiber
Driftkostnader är inhämtade från säljaren och bör endast ses som en uppskattning. Kostnaden kan variera och baseras på förbrukning och avtal.
Det finns 4 st pantbrev uttagna om sammanlagt 1 603 000 kr
Vill du köpa, sälja eller värdera bostad i Kronobergs län? Kontakta våra mäklare i Växjö! Passa också på att anmäla dig till vår kostnadsfria söktjänst Boagenten som hjälper dig att hitta ditt drömboende.
Här hittar du alla våra lediga bostäder till salu i Kronobergs län just nu!
Kontakta mäklaren om du behöver hjälp att ta fram en boendekalkyl.
När du köper din bostad genom Bjurfors kan du ansöka om bolån till en förmånlig ränta hos vår samarbetspartner SEB.
Anmäl dig till mäklaren för visningstid
Kontakta mäklaren för mer information gällande budgivningen.
Kontakta mäklare